Размещено на портале Архи.ру (www.archi.ru)

26.06.2008

Симметрия без симметрии

Анатолий Белов
Объект:
Вилла № 9
Адрес:
Россия, Московская область, Горки-2
Архитектор:
Илья Уткин
Мастерская:
Студия Уткина

Изучая парадоксы творчества Ильи Уткина, Анатолий Белов обнаружил в проекте виллы «Горки-2» симметрию без симметрии

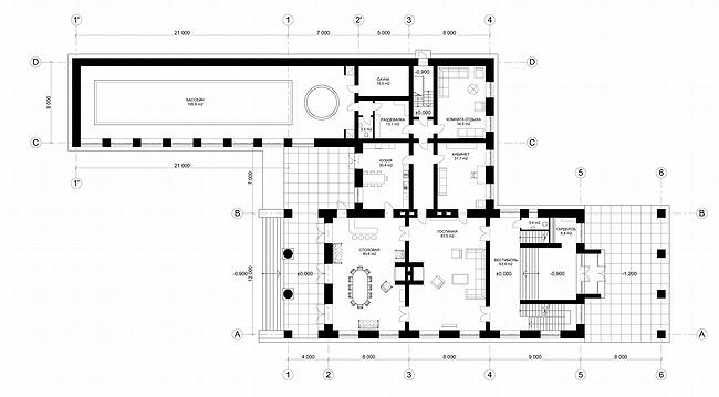
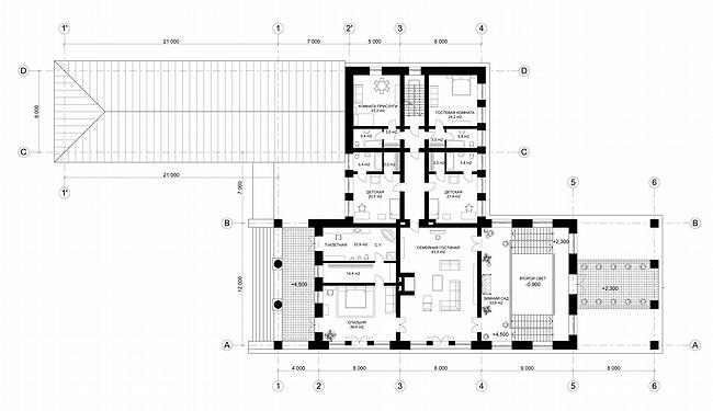
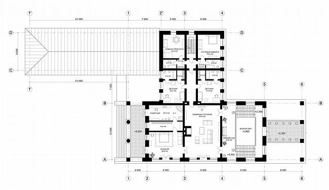
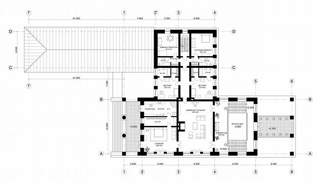
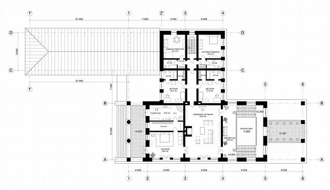
Первое, о чем спрашиваешь себя, глядя на проект виллы «Горки-2» Ильи Уткина: а что это, собственно за стиль? Вроде классика, но если приглядеться, вроде как и не совсем. Да, главный и дворовый фасады здания украшены портиками, да, дом опоясан карнизом. Но оба портика при этом не увенчаны ни фронтоном, ни аттиком, а кроме карниза и колонн никаких элементов декора в экстерьере больше не сыскать. Более того, план нарочито асимметричный, а портики мало того, что лишены полагающейся им по канону «шапки», так они еще и сдвинуты на углы здания вместо того, чтобы располагаться по центру фасадов.

Относительно асимметричности плана, правда, можно и посомневаться, что это, мол, перечеркивает всю классичность. Сделал же Андрей Воронихин Горный институт асимметричным в плане, и ничего. Все равно публика признала в этом классику. Но вот момент со смещенными вбок портиками выглядит как-то чересчур провокационно – аналогов такому решению в классике, по-моему, нет  это уже – скорее что-то из Леона Криера.

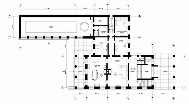
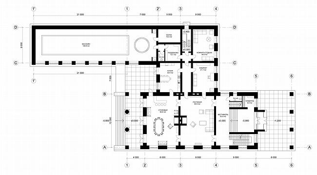
Однако если взглянуть на форму и размеры участка, а также на решение его благоустройства, все в момент проясняется. То, что сперва казалось странным и немножко неуместным, предстает в совершенно ином свете. Участок имеет форму сильно вытянутого прямоугольника, соотношения сторон которого навскидку один к трем. То есть по пропорциям это примерно как замочная скважина. Уместить на такой узкой территории классическую виллу, да еще так, чтобы ее массив не забивал пространство, чтобы это пространство дышало – задача не из легких. И Илья Уткин мастерски с ней справился.

Все дело в том, что при подъезде к участку из-за пропилей, образованных гаражом и постом охраны, мы не видим ничего, кроме портика главного фасада – флигель с бассейном остается вне нашего поля зрения. Таким образом, упомянутые пропилеи выполняют роль эдакой фотодиафрагмы, искусственно зауживающей угол зрения смотрящего на дом, рамки, отсекающей все лишнее. Выходит, ось симметрии все-таки есть, пускай она и является чисто визуальной. Она идет от въездных ворот, через блок, вмещающий входную и общественную зоны и в плане оформленный по типу амфипростильного храма, до гостевого домика в дальнем конце участка. Спору нет, план главного здания далек от академизма. Но это была та жертва, которую архитектор вынужден был заплатить за то, чтобы дом не перегородил участок, как стена. Благодаря же необычайно умелой организации пространства участка, общую асимметрию плана удалось как-то оттенить.

Вообще же, если смотреть в целом, в проекте «Горки-2» все подчинено этой визуальной оси – портики в том числе. Собственно, Илья Уткин мог их и вовсе не делать, или разместить их по центру фасадов, но тогда оказалась бы сбита симметрия пространства, особняк, возможно, получился бы сам по себе более цельный композиционно, но при этом он не имел бы такой парадный, презентабельный вид. Так что классичность данного проекта не в декоре, и не в планировке, а, как ни удивительно, в намеченной архитектором траектории движения по участку. И такое может быть.

А рассуждать непосредственно о качестве самих фасадов, по-моему, здесь бессмысленно, ведь они играют второстепенную роль. В принципе, по многим показателям они вполне удачные: пропорции аккуратные, материалы подобраны со вкусом – тонкий розовато-коричневый, почти римский, кирпич (в реальности это скорее всего будет кирпичная плитка) вполне гармонично сочетается с бежевым, очевидно, из гипса, декором. Довольно остроумно решен парадный вход: из-за того, что центральные колонны портика круглые, а те, что по бокам, квадратные, при взгляде на проекцию главного фасада кажется, будто портик обрамлен антами. В этом есть даже намек на оригинальность: разве кто-нибудь до Ильи Уткина делал фальш-анты?

Проект «Горки-2» любопытен в первую очередь следующим: при том, что как таковых признаков классичности в нем по минимуму, по ощущению он самая что ни на есть настоящая классика. Вот этот парадокс и цепляет. Классика без классики, симметрия без симметрии. Как такое может быть? Как архитектор этого добился? Но это уже вопросы не ко мне, а к автору проекта.