Размещено на портале Архи.ру (www.archi.ru)

11.12.2014

Александр Скокан: «Диагональ позволила нам увеличить общественное пространство комплекса»

Юлия Тарабарина
Объект:
Многофункциональный комплекс и Центр художественной гимнастики
Адрес:
Россия, Москва. ул. Верейская, вл. 12
Архитектор:
Александр Скокан
Мастерская:
АБ «Остоженка»
Авторский коллектив:
Архитекторы: А.А. Скокан, К.В. Гладкий, М.А. Елизарова, А.А. Кочуркин, Д.С. Павлова, Д.Н. Ступина, А.А. Федорова.
При участии: А.В.Бутусова, В.В.Сальникова.

Авторы – о проекте МФК на Верейской улице, городской среде, реках, и профессиональном диалоге.

Многофункциональный комплекс и Центр художественной гимнастики © АБ Остоженка
Многофункциональный комплекс и Центр художественной гимнастики © АБ Остоженка

Проект МФК с центром художественной гимнастики Ирины Винер был рассмотрен и в целом одобрен архитектурным советом 19 ноября (подробнее об обсуждении можно узнать на сайте архсовета). Мы поговорили с Александром Скоканом и Кириллом Гладким об особенностях места и предложенного архитекторами решения.

Архи.ру:
– В чем специфика этого проекта?

Александр Скокан:
– Помимо задачи, обусловленной программой и заданной заказчиком, а именно – разместить очень крупный объем на не слишком большом участке, – нам также пришлось считаться со спецификой территории. Образно говоря это место, где нога человеческая еще не ступала: долина реки Сетуни. В начале долины – дача Сталина, дальше Аминьевское шоссе... О Верейской улице мало кто знает; здесь существовало мощное военное предприятие, которое начиналось в 1900 году как пистонный завод, затем превратившийся в МРТЗ, радиотехнический оборонный завод. На нашем участке стояло несколько бараков, рядом – долина реки, заросшая деревьями, одичавшая и неухоженная. Почему гимнастический центр случился на этом месте – не нам судить, во всяком случае когда к нам пришли, было известно, что принято решение строить его здесь.

Так вот нашей целью было создать в этом, достаточно диком месте, где никакой городской цивилизации нет и в помине, новый фрагмент городской среды.
Карта. Многофункциональный комплекс и Центр художественной гимнастики © АБ Остоженка
Карта. Многофункциональный комплекс и Центр художественной гимнастики © АБ Остоженка
Градостроительный макет. Многофункциональный комплекс и Центр художественной гимнастики © АБ Остоженка
Градостроительный макет. Многофункциональный комплекс и Центр художественной гимнастики © АБ Остоженка

Комплекс противоречив: центр художественной гимнастики, гостиница, апартотель и офисное здание, – ничего общего между этими функциями нет, они ни эмоционально, ни логически не связаны друг с другом. Одна часть – спортивная, другая коммерческая. Поэтому мы решили объединить все части городской улицей, которая проходит через участок по диагонали, деля его на части: спортивно-общественную и офисно-жилую. Длина улицы больше двухсот метров и, как всякая городская улица, она в то же время является общим пространством, объединяющим выходящие на нее объекты. Любая другая расстановка, – проект развивается пять лет, и поначалу мы пробовали различные варианты композиции, – показалась нам менее удачной: провоцировала появление заборов, кроме того, что-то оказывалось на первой линии, что-то – на второй. Вдоль улицы в первых этажах разместились ритейлы: рестораны, магазины, кафе – на всем протяжении улицы… Таким образом получилось вполне естественно, что справа офисы, слева гимнастический центр, гостиница – все это пешеходное общественное пространство проходит через участок наискосок и выводит нас к пойме реки Сетунь в парковую зону.
Многофункциональный комплекс и Центр художественной гимнастики © АБ Остоженка
Многофункциональный комплекс и Центр художественной гимнастики © АБ Остоженка
Многофункциональный комплекс и Центр художественной гимнастики © АБ Остоженка
Многофункциональный комплекс и Центр художественной гимнастики © АБ Остоженка
Многофункциональный комплекс и Центр художественной гимнастики © АБ Остоженка
Многофункциональный комплекс и Центр художественной гимнастики © АБ Остоженка

Теперь мы знаем, что все малые московские реки – это часть целостной водной системы. Все они впадают в Москву-реку, а она теперь становится новым центром города, – и пойма реки Сетунь становится одним из отростков этого нового городского центра. Центр города придет сюда не по малоизвестной улице Верейской, а в виде парковой зоны, как продолжение пешеходного паркового маршрута. Расположенный на окраине комплекс будет связан с центром города через парк.

Именно поэтому возникает наша диагональная улица. Улица сама по себе – фрагмент городского центра, к тому же она нас выводит к парк Сетуни, соединяющий нас с Москвой-рекой. Кроме того любая диагональ позволяет, оставаясь в границах прямоугольного участка удлинить, увеличить общественное пространство комплекса.

Кирилл Гладкий:
– Диагональная улица также продолжает линию Верейской улицы, встраивается в ее перспективу в юго-восточном направлении. Верейскую улицу, впрочем, планируют расширять, менять ее направление, но в историческую трассу угол нашего комплекса встроен.
Эскиз. Многофункциональный комплекс и Центр художественной гимнастики © АБ Остоженка
Эскиз. Многофункциональный комплекс и Центр художественной гимнастики © АБ Остоженка


Александр Скокан:
– Своей планировкой мы «ловим» очевидную для этого места силовую линию. Делом в том, что расположенный чуть дальше на этой оси комплекс Верейская плаза построил Дмитрий Борисович Бархин, сын Бориса Григорьевича Бархина, известного профессора МАрхИ, который был моим учителем. Мне как ученику было интересно вступить в дискуссию с сыном моего профессора. Дмитрий Бархин работает в таком пышном классицистическом стиле
. Наш комплекс, будучи более аскетичным, находится с ним, как нам кажется, в интересном профессиональном диалоге.
Верейская плаза. Бархин Д.Б., Бархин А.Д., Максимова Л.Ю. Фотография: a-barhin.livejournal.com
Верейская плаза. Бархин Д.Б., Бархин А.Д., Максимова Л.Ю. Фотография: a-barhin.livejournal.com


– А как бы Вы определили суть этого диалога?

Александр Скокан:
– Суть в том, что мы говорим на разных языках, но в наших речах можно найти что-то общее.

– Хотя вы нанизали комплекс на общественное пространство пешеходной улицы, вы в то же время отчетливо обозначили различие объемов, у каждого из них своё лицо: рельефные волны, образованные ламелями разной глубины, покрывают фасад гимнастического центра; офисный объем покрыт «пилой» крупных выступов, а жилой дом сдержанно-клетчатый, причем со стороны реки нижняя половина его фасада желтая, верхняя – белая; желтыми вы сделали и внутреннюю поверхность арок. А откуда появились вырезы в верхней части пластины с апартаментами?

Кирилл Гладкий:
– Здесь расположены двухъярусные пентхаусы, там будут устроены террасы; да и линия верха получается богаче. Ханс Штиманн назвал на совете наш комплекс «городом в городе», так вот здесь на крыше у нас поместилась еще небольшая элитная деревня.

На кровле офисной части – небольшой сквер, попасть в который смогут все жители, там специально устроен лифт с первого этажа. Кровля гимнастического центра с восточной стороны тоже эксплуатируемая, на нее можно будет попасть из кабинетов администрации.
Многофункциональный комплекс и Центр художественной гимнастики © АБ Остоженка
Многофункциональный комплекс и Центр художественной гимнастики © АБ Остоженка

– Жилой объем нависает над офисным эффектной консолью, она впечатляет…

Кирилл Гладкий:
– Эта консоль небольшая, она поддержана лифтовой шахтой и дополнительными опорами. Серьезная консоль – в здании центра гимнастики со стороны Верейской улицы. Под ней мы организовали еще один променад.
Многофункциональный комплекс и Центр художественной гимнастики © АБ Остоженка
Многофункциональный комплекс и Центр художественной гимнастики © АБ Остоженка

– Я вижу в конце улицы, там, где она подходит к парку, мостик – там большой перепад высот?

Кирилл Гладкий:
– Под всем комплексом расположена парковка, и мы смоделировали рельеф внутри комплекса так, что в сторону реки внутренняя улица поднимается на пять метров, тогда как естественный рельеф понижается на три. Вначале вы поднимаетесь по наклонной улице, затем по лестнице спукаетесь в парк. В нижней части дома со стороны реки появляется еще один уровень окон, которого нет внутри, во дворе.
Многофункциональный комплекс и Центр художественной гимнастики © АБ Остоженка
Многофункциональный комплекс и Центр художественной гимнастики © АБ Остоженка
Многофункциональный комплекс и Центр художественной гимнастики © АБ Остоженк
Многофункциональный комплекс и Центр художественной гимнастики © АБ Остоженк


Александр Скокан:
– Тут много будет интересных эффектов, особенно на закате.
Могу вам гарантировать, что там не будет скучно. Мы еще сделали видеоролик, под музыку «Полет шмеля»…



В комплексе много арок – гигантских проемов, через которые открываются виды на парк; арки связывают его с окружением. И глядя на наш объект на архсовете, – как бы со стороны, – я отчетливо понял, что главная арка, через которую улица выводит нас в парк, могла быть ещё выше – не двенадцатиэтажной высоты, а семнадцатиэтажной. 

 
беседовала: Юлия Тарабарина
Фотография макета. Многофункциональный комплекс и Центр художественной гимнастики © АБ Остоженка / 2014
Фотография макета. Многофункциональный комплекс и Центр художественной гимнастики © АБ Остоженка / 2014
Фотография макета. Многофункциональный комплекс и Центр художественной гимнастики © АБ Остоженка / 2014
Фотография макета. Многофункциональный комплекс и Центр художественной гимнастики © АБ Остоженка / 2014
Фотография макета. Многофункциональный комплекс и Центр художественной гимнастики © АБ Остоженка / 2014
Фотография макета. Многофункциональный комплекс и Центр художественной гимнастики © АБ Остоженка / 2014
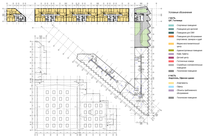
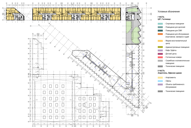
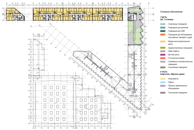
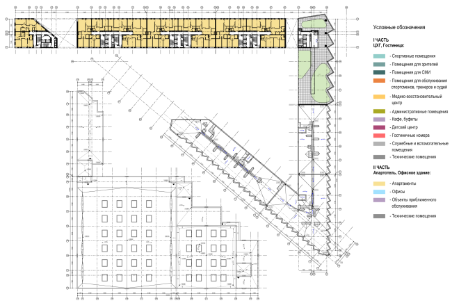
Схема сводного плана 1-го этажа. Многофункциональный комплекс и Центр художественной гимнастики © АБ Остоженка
Схема сводного плана 1-го этажа. Многофункциональный комплекс и Центр художественной гимнастики © АБ Остоженка
Схема плана 2-го этажа. Многофункциональный комплекс и Центр художественной гимнастики © АБ Остоженка
Схема плана 2-го этажа. Многофункциональный комплекс и Центр художественной гимнастики © АБ Остоженка
Схема плана 3-го этажа. Многофункциональный комплекс и Центр художественной гимнастики © АБ Остоженка
Схема плана 3-го этажа. Многофункциональный комплекс и Центр художественной гимнастики © АБ Остоженка
Схема плана 4-го этажа. Многофункциональный комплекс и Центр художественной гимнастики © АБ Остоженка
Схема плана 4-го этажа. Многофункциональный комплекс и Центр художественной гимнастики © АБ Остоженка
Схема плана 5-го этажа. Многофункциональный комплекс и Центр художественной гимнастики © АБ Остоженка
Схема плана 5-го этажа. Многофункциональный комплекс и Центр художественной гимнастики © АБ Остоженка
Схема плана 9-го этажа I части, плана кровли II части. Многофункциональный комплекс и Центр художественной гимнастики © АБ Остоженка
Схема плана 9-го этажа I части, плана кровли II части. Многофункциональный комплекс и Центр художественной гимнастики © АБ Остоженка
Схема плана -1-го этажа. Многофункциональный комплекс и Центр художественной гимнастики © АБ Остоженка
Схема плана -1-го этажа. Многофункциональный комплекс и Центр художественной гимнастики © АБ Остоженка
Схема разреза 1-1. Многофункциональный комплекс и Центр художественной гимнастики © АБ Остоженка
Схема разреза 1-1. Многофункциональный комплекс и Центр художественной гимнастики © АБ Остоженка
Схема разреза 3-3. Многофункциональный комплекс и Центр художественной гимнастики © АБ Остоженка
Схема разреза 3-3. Многофункциональный комплекс и Центр художественной гимнастики © АБ Остоженка
Многофункциональный комплекс и Центр художественной гимнастики © АБ Остоженка
Многофункциональный комплекс и Центр художественной гимнастики © АБ Остоженка
Схема развертки по улице Верейская. Многофункциональный комплекс и Центр художественной гимнастики © АБ Остоженка
Схема развертки по улице Верейская. Многофункциональный комплекс и Центр художественной гимнастики © АБ Остоженка
Схема развертки по восточному проезду. Многофункциональный комплекс и Центр художественной гимнастики © АБ Остоженка
Схема развертки по восточному проезду. Многофункциональный комплекс и Центр художественной гимнастики © АБ Остоженка
Схема развертки по северному проезду. Многофункциональный комплекс и Центр художественной гимнастики © АБ Остоженка
Схема развертки по северному проезду. Многофункциональный комплекс и Центр художественной гимнастики © АБ Остоженка
Схема развертки по западному проезду. Многофункциональный комплекс и Центр художественной гимнастики © АБ Остоженка
Схема развертки по западному проезду. Многофункциональный комплекс и Центр художественной гимнастики © АБ Остоженка
Схема озеленения. Многофункциональный комплекс и Центр художественной гимнастики © АБ Остоженка
Схема озеленения. Многофункциональный комплекс и Центр художественной гимнастики © АБ Остоженка