Размещено на портале Архи.ру (www.archi.ru)

28.11.2014

Оттачивание принципов

Анна Городинская
Объект:
Многоквартирный жилой комплекс «Европа Сити» на проспекте Медиков
Адрес:
Россия, Санкт-Петербург. Петроградский район, пр.Медиков,10
Архитектор:
Сергей Чобан
Мастерская:
Tchoban Voss Architekten
Евгений Герасимов и партнеры
СПИЧ
Авторский коллектив:
Авторский коллектив: архитекторы – Е.Л. Герасимов (рук. авторского коллектива), С.Э. Чобан (рук. авторского коллектива), В.Ф. Хиврич (главный архитектор проекта), О.В. Головко (рук. группы), А.А. Штепа, А.О. Ершова, А.А. Кузнецов, А.А. Гетманская, А.Е. Вагнер, Е.В. Басай;
конструкторы – М.Я. Резниченко (главный конструктор), Т.С. Харинская (рук. группы), М.П. Илиодорова, Т.Е. Смирнова, К.А. Власова, М.И. Кирпикова, С.П. Ненашев, Н.В. Богданова, М.А. Кокшарова, А.В. Кузнецов, Е.В. Егорова, В.Ю. Антонов, А.С. Денисов;
генплан – Е.Н. Кузнецова, А.С. Титова, И.А. Харинская

Tchoban Voss Architekten
Архитекторы – П. Земсков, Ф. Шольц

SPEECH
Архитекторы – В.В. Казуль (главный архитектор проекта), А. Кабанов, Е. Паули, Л. Картавченко, С. Попов

Разработка интерьеров – А. Перлич (главный архитектор проекта), Ю. Лаврова, М. Гришанов, Е. Плужник, Т. Любимова, В. Горелова, О. Никитина

Авторы фасадов внутриквартальных корпусов, победители конкурса молодых архитекторов – Е. Кицелев, Р. Пак, В. Пешков, К. Подвязкин, О. Ткачук, Я. Цебрук, И. Филимонова, И. Филимонов;
инженерные разделы – ООО “Проектсервис” – СПБ ПТИ, А.В. Таборский (главный инженер проекта)

Новый эксперимент в панельном строительстве: генплан и архитектура от мэтров плюс фасады от молодых архитекторов, победивших в конкурсе.

Многоквартирный жилой комплекс «Европа Сити» на проспекте Медиков. Проект, 2015
Многоквартирный жилой комплекс «Европа Сити» на проспекте Медиков. Проект, 2015
© Евгений Герасимов и партнеры, SPEECH, nps tchoban voss

В Санкт-Петербурге, на Петроградской стороне строится «Европа-Сити» – новый панельный многоквартирный жилой комплекс бизнес-класса от бюро «Евгений Герасимов и Партнеры», ‘nps tchoban voss’ и SPEECH. Он состоит из семи многосекционных девятиэтажных домов, выстроенных по красной линии улицы, и десяти четырнадцатиэтажных башен, выстроенных в два ряда по пять по дворе. И ключевое слово здесь – «панельный», так как те дома, которые возводятся на месте бывшего завода «Электрик» в треугольнике между Лопухинским садом, зеленью Спортивного комплекса «Зенит» и Ботаническим садом – не что иное, как образец современного индустриального домостроения. Впрочем, вовсе не типичный, во всяком случае, для России.
Многоквартирный жилой комплекс «Европа Сити» на проспекте Медиков. Проект, 2015. Ситуационный план
Многоквартирный жилой комплекс «Европа Сити» на проспекте Медиков. Проект, 2015. Ситуационный план
© Евгений Герасимов и партнеры, SPEECH, nps tchoban voss

За основу взята серия 137 петербургского ДСК «Блок», номенклатуру которой расширили с учетом требований данного проекта. Основание – монолитное, на него опираются панельные несущие конструкции. Фасады же будут исполнены по комбинированной технологии, совмещающей панель и навесную конструкцию с облицовкой керамической плиткой нескольких видов: глазурованной, матовой и натуральной без покрытия. В результате снаружи ничто не напоминают типовые панельные дома. Для каждого корпуса архитекторы разработали оригинальный рисунок фасадов, впрочем разнообразие сбалансировано – все варианты подчинены общей пропорциональной сетке.
Многоквартирный жилой комплекс «Европа Сити» на проспекте Медиков. Проект, 2015
Многоквартирный жилой комплекс «Европа Сити» на проспекте Медиков. Проект, 2015
© Евгений Герасимов и партнеры, SPEECH, nps tchoban voss

Одев дома неодинаковыми керамическими фасадами, авторы не только спрятали панельную разрезку и швы, но еще добились и впечатления того, что вдоль проспекта вытянулась не череда многоподъездных пластин, а несколько разных зданий, напоминающих старинные доходные дома, выстроившиеся под единый обрез карниза. Получился петербургский квартал на новый лад – и по улице мимо пройти приятно, и идентифицировать себя в пространстве не сложно: «знаешь, я уже прошел голубой дом и иду мимо белого с ярко-желтыми вставками». А скошенный под на 45° корпус  на пересечении Медиков и Павлова, хоть и не соответствует традиции, но зато позволяет при переезде через Большую Невку увидеть всю перспективу комплекса с Кантемировского моста.
Многоквартирный жилой комплекс «Европа Сити» на проспекте Медиков. Проект, 2015
Многоквартирный жилой комплекс «Европа Сити» на проспекте Медиков. Проект, 2015
© Евгений Герасимов и партнеры, SPEECH, nps tchoban voss
Многоквартирный жилой комплекс «Европа Сити» на проспекте Медиков. Проект, 2015
Многоквартирный жилой комплекс «Европа Сити» на проспекте Медиков. Проект, 2015
© Евгений Герасимов и партнеры, SPEECH, nps tchoban voss

Надо сказать, что проект очень изменился с 2007 года, когда он был впервые заявлен теми же авторами: тогда участок был разделен на несколько строгих квадратных квартала-блока. Сейчас фасады домов, выстроенных по периметру участка вдоль красной линии, узнаваемы и развивают принципы, уже знакомые нам по работам и Сергея Чобана, и Евгения Герасимова: прежде всего в подчеркнутом разнообразии фасадов каждой секции, фактически – каждого подъезда, – узнается «Микрогород «В лесу», первая очередь которого была завершена в начале осени. В данном случае, впрочем, солнечная яркость подмосковного городка несколько смирена петербуржским окружением: здесь больше рельефа, чем цвета, и геометрия более предсказуема, по справедливому замечанию авторов, «русты, тяги, карнизы, барельефы», составляющие фасадную сетку – мотивы вполне классические, делают дома в большей степени петербургскими, подспудно классицизированными. В портфолио Евгения Герасимова тоже имеется проект, подходящий для сравнения – предложение, сделанное им год назад для конкурса на «Царев сад», элитный жилой комплекс напротив Кремля, – впрочем, как Микрогород ярче, так и «Царев сад» в версии Герасимова классичнее и ассоциативнее. На фасадах «Европы-сити» мы получаем сумму, результат развития пластического языка и подхода, заявленного обоими архитекторами лет пять-семь назад.
Многоквартирный жилой комплекс «Европа Сити» на проспекте Медиков. Проект, 2015
Многоквартирный жилой комплекс «Европа Сити» на проспекте Медиков. Проект, 2015
© Евгений Герасимов и партнеры, SPEECH, nps tchoban voss
Многоквартирный жилой комплекс «Европа Сити» на проспекте Медиков. Проект, 2015
Многоквартирный жилой комплекс «Европа Сити» на проспекте Медиков. Проект, 2015
© Евгений Герасимов и партнеры, SPEECH, nps tchoban voss
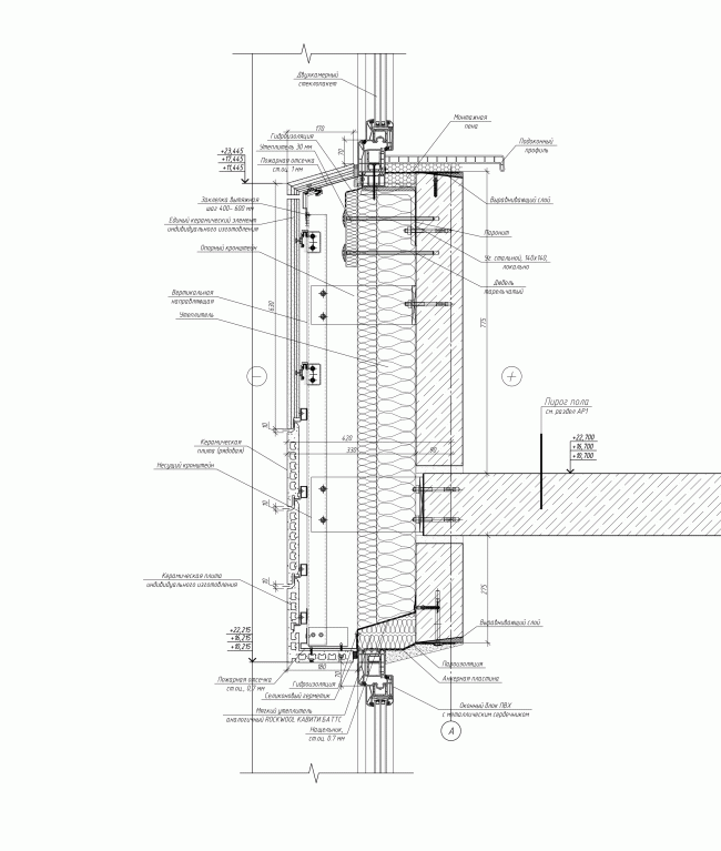
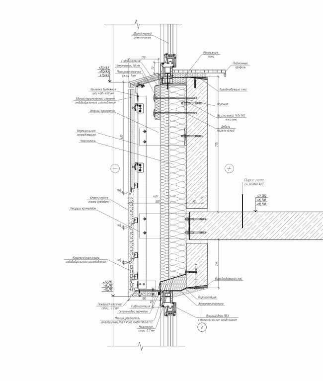
Узел крепления навесного фасада. Проект многоквартирного жилого комплекса на проспекте Медиков © SPEECH + «Евгений Герасимов и партнеры»
Узел крепления навесного фасада. Проект многоквартирного жилого комплекса на проспекте Медиков © SPEECH + «Евгений Герасимов и партнеры»
Узел крепления навесного фасада. Проект многоквартирного жилого комплекса на проспекте Медиков © SPEECH + «Евгений Герасимов и партнеры»
Узел крепления навесного фасада. Проект многоквартирного жилого комплекса на проспекте Медиков © SPEECH + «Евгений Герасимов и партнеры»
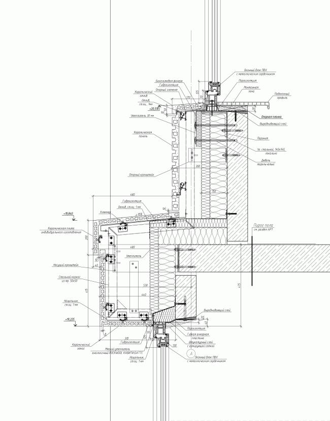
Фрагмент плана. Крепление навесного фасада на углу здания. Проект многоквартирного жилого комплекса на проспекте Медиков © SPEECH + «Евгений Герасимов и партнеры»
Фрагмент плана. Крепление навесного фасада на углу здания. Проект многоквартирного жилого комплекса на проспекте Медиков © SPEECH + «Евгений Герасимов и партнеры»

Помимо нового подхода к использованию панельных технологий и гармонизированного разнообразия фасадов в проекте «Европа-Сити» есть и еще одна, очень важная особенность. За фронтом выстроенных вдоль улицы семи девятиэтажных домов-пластин, спроектированных известными архитекторами Евгением Герасимовым и Сергеем Чобаном во дворе спрятаны десять четырнадцатиэтажных башен-«точек» с пятью разными фасадами, на концептуальное решение которых в 2010 году по инициативе тех же архитекторов был проведен конкурс среди молодых архитекторов. Конкурс был поддержан как заказчиком проекта – Группой ЛСР, так и комитетом по градостроительству и архитектуре Санкт-Петербурга и Санкт-Петербургским союзом архитекторов.

В творческом соревновании участвовали российские профессионалы моложе тридцатипятилетнего возраста, на проектирование был отведен период с 14 октября по 10 ноября 2010 года, – от участников требовалось разработать концепцию фасада, а также показать, как будет выглядеть отдельное здание и целиком группа из десяти домов. Рассмотрев поступившие проекты, жюри конкурса выбрало одного победителя и еще четырех призеров, между которыми были распределены двести тысяч рублей призового фонда. Между тем главной наградой для лауреатов стало их включение в команду проекта и использование предложенных ими концепций в дальнейшей работе. Пять премированных проектов были доработаны проектировщиками до стадии рабочих чертежей и распределены между десятью башнями: каждый проект будет повторен два раза. На данный момент, в реализации ЖК «Европа-Сити» дальше всего продвинулось строительство пяти башен во дворе комплекса: их фасады уже облицованы и уже можно увидеть, каким образом были реализованы проекты пяти победителей конкурса молодых архитекторов.
Многоквартирный жилой комплекс «Европа Сити» на проспекте Медиков. Проект, 2015. Схема застройки комплекса
Многоквартирный жилой комплекс «Европа Сити» на проспекте Медиков. Проект, 2015. Схема застройки комплекса
© Евгений Герасимов и партнеры, SPEECH, nps tchoban voss

В 2010 году победителем конкурса молодых архитекторов назвали Романа Пака с проектом, в котором фасады превращены в равностороннюю решетку широких межоконных и междуэтажных простенков. Местами белая решетка прерываются цветными вставками-углублениями – так, как будто за белой «кожей» обнаруживается более интересная разноцветная материя. Реализовали, используя цветные керамические плитки: цвет получился сдержаннее, чем в проекте, но, с другой стороны, издалека похоже на майолику начала XX века.
Башня многоквартирного жилого комплекса на проспекте Медиков по проекту Романа Пака. Фото  предоставлено архитектурной мастерской SPEECH
Башня многоквартирного жилого комплекса на проспекте Медиков по проекту Романа Пака. Фото предоставлено архитектурной мастерской SPEECH
Многоквартирный жилой комплекс «Европа Сити» на проспекте Медиков. Конкурсный проект фасадов
Многоквартирный жилой комплекс «Европа Сити» на проспекте Медиков. Конкурсный проект фасадов
© Роман Пак. Изображение предоставлено архитектурной мастерской SPEECH

Евгений Кицелев в своем проекте Celling предложил несколько более брутальное решение, впрочем, отдаленно напоминающее формы, любимые в бюро SPEECH: дома покрыты крупной решеткой, где укрупненные горизонтальные проемы, объединяющие по два окна, выстроены в строгой диагональной логике, образуя на фасадах вертикали брутального меандра.
Башня многоквартирного жилого комплекса на проспекте Медиков по проекту Евгения Кицелева. Фотография предоставлена архитектурной мастерской SPEECH
Башня многоквартирного жилого комплекса на проспекте Медиков по проекту Евгения Кицелева. Фотография предоставлена архитектурной мастерской SPEECH
Многоквартирный жилой комплекс «Европа Сити» на проспекте Медиков. Конкурсный проект фасадов башен
Многоквартирный жилой комплекс «Европа Сити» на проспекте Медиков. Конкурсный проект фасадов башен
© Евгений Кицелев. Изображение предоставлено архитектурной мастерской SPEECH

Абстрактно-красивая идея Яны Цебрук и Олега Ткачук: разделить дома по вертикали на светлую и темную половину, дала очень простые башни (стеклянная вертикаль была элементом задания и присутствует у всех, но авторы дополнили ее внизу оранжевой нишей, несколько разрядив лаконизм решения). Впрочем у авторов идеи в девяти башнях из десяти черной была верхняя половина дома, и проект назывался «игры в невесомость», светлое должно было держать темное; в построенной сейчас башне черный – низ.
Многоквартирный жилой комплекс «Европа Сити» на проспекте Медиков. Конкурсный проект фасадов башен
Многоквартирный жилой комплекс «Европа Сити» на проспекте Медиков. Конкурсный проект фасадов башен
© Яна Цебрук и Олег Ткачук. Изображение предоставлено архитектурной мастерской SPEECH
Башня многоквартирного жилого комплекса на проспекте Медиков. Авторы проекта: Яна Цебрук и Олег Ткачук. Фотография  предоставлена SPEECH
Башня многоквартирного жилого комплекса на проспекте Медиков. Авторы проекта: Яна Цебрук и Олег Ткачук. Фотография предоставлена SPEECH

Илья и Ирина Филлимоновы, наоборот, сделали свои фасады особенно пёстрыми, поместив перед окнами решетки сдержанно-фиолетового оттенка – похожие на попытку имитации ламелей, движущихся параллельно плоскости фасада по направляющим. Было это решение имитацией или нет, но в реальности оно стало чередой декоративных терракотовых вставок и черных горизонтальных полос, впрочем, подчиненных предложенному авторами ритму.
Башня многоквартирного жилого комплекса на проспекте Медиков по проекту Ильи Филимонова и Ирины Филимоновой. Фотография предоставлена SPEECH
Башня многоквартирного жилого комплекса на проспекте Медиков по проекту Ильи Филимонова и Ирины Филимоновой. Фотография предоставлена SPEECH
Многоквартирный жилой комплекс «Европа Сити» на проспекте Медиков. Конкурсный проект фасадов башен
Многоквартирный жилой комплекс «Европа Сити» на проспекте Медиков. Конкурсный проект фасадов башен
© Илья Филимонов и Ирина Филимонова. Изображение предоставлено архитектурной мастерской SPEECH

Владимир Пешков и Константин Подвязкин предложили сделать примерно треть башни светлой (почти белой), а остальное – терракотовым.
Многоквартирный жилой комплекс «Европа Сити» на проспекте Медиков. Конкурсный проект фасадов башен
Многоквартирный жилой комплекс «Европа Сити» на проспекте Медиков. Конкурсный проект фасадов башен
© Владимир Пешков и Константин Подвязкин. Изображение предоставлено SPEECH

Победитель конкурса получил 100 000 рублей, четыре других отмеченных участника – по 30 тысяч, после чего башни «перемешали» между собой, получив, как и снаружи, разные фасады, только от молодых архитекторов.
Многоквартирный жилой комплекс «Европа Сити» на проспекте Медиков. Проект, 2015
Многоквартирный жилой комплекс «Европа Сити» на проспекте Медиков. Проект, 2015
© Евгений Герасимов и партнеры, SPEECH, nps tchoban voss
Проект многоквартирного жилого комплекса на проспекте Медиков. SPEECH + «Евгений Герасимов и партнеры». Фотография © Юрий Славцов / предоставлена компанией Группа ЛСР
Проект многоквартирного жилого комплекса на проспекте Медиков. SPEECH + «Евгений Герасимов и партнеры». Фотография © Юрий Славцов / предоставлена компанией Группа ЛСР
Проект многоквартирного жилого комплекса на проспекте Медиков. SPEECH + «Евгений Герасимов и партнеры». Фотография © Юрий Славцов / предоставлена компанией Группа ЛСР
Проект многоквартирного жилого комплекса на проспекте Медиков. SPEECH + «Евгений Герасимов и партнеры». Фотография © Юрий Славцов / предоставлена компанией Группа ЛСР
***
Мы спросили руководителей двух крупных бюро, занятых в этом проекте, Евгения Герасимова и Сергея Чобана, о том, что для них важно в этом проекте.  
 
Евгений Герасимов:
«Самое интересное во всем проекте – конечно, конкурс. Он проводился при участии заказчика (СК «Возрождение Санкт-Петербург»), КГИОП, главного архитектора в то время – Юрия Митюрева, Союза архитекторов, председателем которого был Владимир Попов, а также при участии меня и Сергея Чобана, как генеральных проектировщиков всего комплекса. Целью было выбрать пять лучших проектов молодых архитекторов для внутренних «точек». Было подано порядка тридцати проектов, из них жюри отобрало пять, и я считаю они с блеском выполнены. Пять молодых архитекторов получили возможность реализовать первые в своей жизни масштабные проекты. Мы обязательно будем проводить подобную практику и в дальнейшем». 
 

Сергей Чобан: 
«Градостроительная концепция разрабатывалась совместно с Евгением Герасимовым. Как мы часто делаем, один дом проектировало бюро Евгения, другой дом – наш офис, в результате получилась парцеллированная структура из формирующих внешний фасад протяженных корпусов, внутри которой встали еще десять отдельных башен. За счет такой комбинации мы смогли повысить этажность зданий в глубине квартала, а также добились более разнообразной застройки и улучшили планировки квартир.

Основной причиной проведения конкурса и вовлечения в работу над проектом его победителей стало наше с Евгением Герасимовым стремление дать молодым архитекторам шанс проявить себя. Мне кажется, в Петербурге есть большой разрыв между старшим, активно практикующим, и молодым поколениями. В этом одно из отличий питерской архитектурной среды от московской, где за последние годы произошли серьезные изменения и был создан эффективный профессиональный «лифт», который принес известность и заказы многим молодым бюро. В Петербурге этот процесс идет не так активно, поэтому было желание посодействовать молодым архитекторам».