Размещено на портале Архи.ру (www.archi.ru)

23.12.2014

Трансформация образа

Юлия Тарабарина, Валерия Исмиева
Объект:
Жилой дом на улице Чапаева
Адрес:
Россия, Санкт-Петербург. улица Чапаева, 16, литера А
Мастерская:
Архитектурное бюро «А.Лен»
Авторский коллектив:
Руководитель проекта: С.И. Орешкин
Главные инженеры проекта: А.Г. Вайнер, А.В. Исаев, С.М. Васильев
Главный архитектор проекта: Р.В. Андреева
Архитекторы: В.В. Иванов, А.М. Шукшина, М.С. Нюхина
Главный конструктор: О.В. Гребнев

Дом на улице Чапаева – театрализованная интервенция «северного модерна» в разномастный контекст бывшей промышленной части Петроградской стороны.

Жилой дом на улице Чапаева. Проект, 2014 © А.Лен
Жилой дом на улице Чапаева. Проект, 2014 © А.Лен

Десятиэтажный жилой дом сейчас строится на нечетной стороне улицы Чапаева, в восточной части Петроградского острова (более известного как Петроградская сторона). От Петропавловской крепости здесь – двадцать минут пешком, от фешенебельного в начале прошлого XX века Каменноостровского проспекта, – десять. Но восточнее, ближе к Большой Невке фешенебельность уже и сто лет назад сменялась кирпичными корпусами промышленных зданий, хотя и очень романтическими на сегодняшний взгляд, – прямо напротив дома, который строится сейчас по проекту Сергея Орешкина, стоят здания бывшей бумагопрядильной мануфактуры, а рядом была еще и «фортепианная фабрика». Фабрики группировались, вероятно по техническим причинам, ближе к реке, а нечетная сторона улицы Чапаева до сих пор остается не по-питерски «рыхлой», – как точно охарактеризовал ее Сергей Орешкин: застроенной прерывисто, но зато с деревьями. Рядом: лицей, бомбоубежище, многоквартирный дом, спортивная площадка. Впрочем соседним домам всё же требовалось обеспечить инсоляцию по нормативам, также как и сделать облик нового дома органичным исторической среде.

Что Сергей Орешкин и сделал, «вытянув» романтический образ дома-замка северного модерна из Каменноостровского проспекта сюда, к полупромышленному когда-то, а сейчас жилому и офисному, востоку Петроградской стороны.

Две секции дома соединены наподобие буквы «Т», асимметричная перекладина которой вытянута вдоль красной линии улицы, а «ножка» уходит во двор, вглубь трапециевидного участка. Дом строится по современным стандартам: железобетонный каркас, вентфасады, один ярус подземной парковки и общественные функции в первом этаже. Внешний же его облик становится своего рода театральной декорацией, где камень, штукатурка светлых оттенков, тонкие тонированные переплеты больших окон, чугунные ограждения балконов и даже решетки для установки кондиционеров, – всё вписано в один общий сюжет, очень романтический, по собственному признанию автора. Действительно, получившийся образ дома, с одной стороны, вызывает устойчивые ассоциации с «северным модерном», с другой стороны, модерн автохтонных доходных домов Петербурга более суров и сдержан, а масштаб позволяющих себе большее дач Каменного острова, – значительно меньше, поэтому кажется, что в данном случае архитектор скрестил отзвуки петербургского модерна с легкими сказочными затеями времени более раннего, XIX века – на периферии сознания нет-нет да и замаячит какой-нибудь замок Нойшванштайн Людвига Баварского.

Объемы и декоративность главного фасада нарастают снизу вверх. Так, первый этаж главного фасада отступает в глубину, освобождая тротуар для прохожих и формируя открытую уличную галерею, без колонн, на консолях. Объём второго этажа почти лишён пластики, и только на третьем появляются эркеры, объединяющие три следующие (с третьего по шестой) этажи и бросающие изогнутые тени вниз. Простенки между эркерами прорезаны тремя широкими окнами, из которых среднее акцентировано полосатым рельефом, немного похожим на раскрытые створки парижских жалюзи, но смягченным характерной волнистой линией.
Жилой дом на улице Чапаева. Проект, 2014 © А.Лен
Жилой дом на улице Чапаева. Проект, 2014 © А.Лен

Выше пятого этажа начинается танец широких балконов с ажурными решетками, – балкон важная вещь и в архитектуре, и в истории Петербурга, никакая плохая погода не мешает, – до особняка Кшесинской, к примеру, с его важным для истории балконом, отсюда тоже пятнадцать минут пешком; и в начале улицы Чапаева, и на Малой Посадской встречаются такие балконы на эркерах. Мотив был распространен в начале XX века, впрочем, тогда он как правило трактовался более сдержанно, здесь же балконы произрастают не только на эркерах: спускаясь на этаж ниже, они затем карабкаются до самого верха и украшают четыре пентхауса, помещенные под острыми голландскими щипцами.

Ажурные решетки, поддержанные дробным ритмом оконных рам с успехом развеществляют массив дома, увлекают зрителя игрой, поддержанной более крупными формами, которые также ведут себя подвижно: щипцы врастают в плоскость фасада, и уже сложно понять, где точно их линии пересекаются между собой; вверху они же чередуются с окнами высокой мансарды. Детали сложной, местами дробно-декоративной, местами волнообразной композиции словно бы приходят в движение, не забывая, впрочем, в своем плавном смещении о законах равновесия и общей гармонии.

Балконы перерастают в ступенчатые террасы южной части дома – чего в домах северного модерна точно быть не могло, а в современной архитектуре встречается часто – ступеньки террас вызваны требованиями инсоляции, но прекрасно группируются, прирастая к башне над перекрестием секций дома. Башня таким образом обнаруживается не на углу, чего можно было бы ожидать от стилизации, а посередине, она вырезана из массы здания как его сердцевина, почти донжон, или же почти ратуша, – возможно отсюда и большая, чем у сумрачного северного модерна, театральность и ассоциативность – довольно-таки сложно совместить все требования современности с историческим образом и пластическая игра, подвижность, легкость, прозрачность не только добавляют «позитива», но и делают правила принятых стилевых рамок более гибкими. Как будто бы мы застали доходный дом модерна в тот момент роста или даже колебания: превратиться ли в ратушу, в замок, или в итальянскую виллу, – этакий момент осмысленного взросления, раздумий над собственным образом, застывший пластический поиск (чем не дань деконструкции?).

Ступенчатую композицию, позволяющую затушевать значительную высоту здания и его объём, Сергей Орешкин неоднократно применял в других своих постройках. В данном случае интересно отметить, что террасный фасад обращён в сторону расположенного чуть поодаль, через дорогу, здания с трёхступенчатым фасадом, построенного более века назад, вступая с ним в активный диалог. В связи с темой диалога отметим также, что торцы главного фасада напоминают брандмауэры соседних зданий: в них нет окон, а единственное украшение – ничем не акцентированные ячейки строгих прямоугольных ниш, деликатно структурирующих монотонные плоскости.

Архитектура дома сложна, как и поставленная перед автором задача. Начать с того, что тонкая часть нашего общества, которой вообще интересна архитектура, разделилась на две половины: тех, кто отрицает стилизацию по определению и тех, кто считает её единственно возможной в исторических городах, особенно в Петербурге; позиции взаимоисключающие. Так или иначе, но известно, что Сергей Орешкин смело работает как с остро-современной формой, так и с историческими стилизациями, – к примеру, в том же 2013 году он спроектировал для Петроградской стороны большой жилой комплекс на набережной реки Карповки, – также решенный в духе архитектуры начала века, но чуть более поздней и строгой: к неоклассике или даже ар-деко. И там, и здесь, мы наблюдаем довольно уверенное владение стилистикой и пропорциями источника, – всегда с поправкой на современность, давая нам понять, что дом возник сейчас. Впрочем, модернистские проекты сравнительно предсказуемы, а для зданий, связанных с историческими стилями особенно важно воплощение, в них требует внимания качество реализации каждой детали. Впрочем и ждать осталось недолго, дом, по-видимому, скоро построят.

Недавно дом был отмечен премией Urban Awards 2014 как «Лучший строящийся жилой комплекс бизнес-класса в Санкт-Петербурге».
 
Жилой дом на улице Чапаева. Генеральный план © А.Лен
Жилой дом на улице Чапаева. Генеральный план © А.Лен
Жилой дом на улице Чапаева. Разрез © А.Лен
Жилой дом на улице Чапаева. Разрез © А.Лен
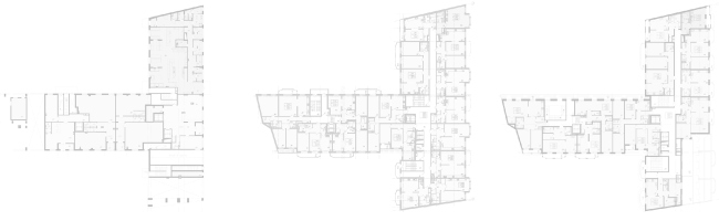
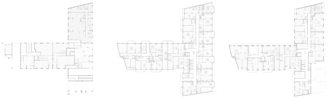
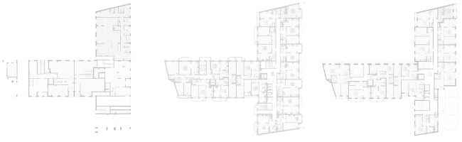
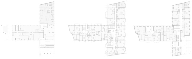
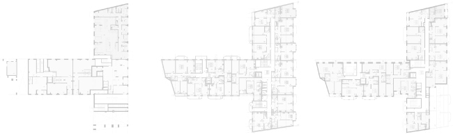
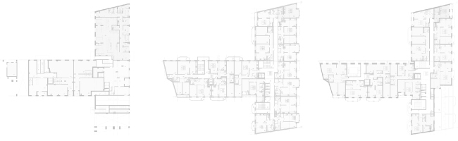
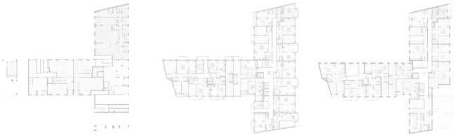
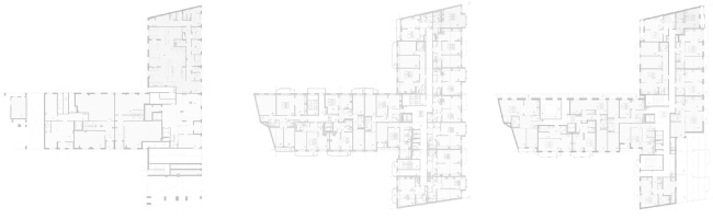
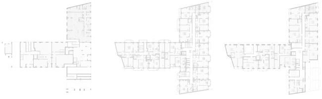
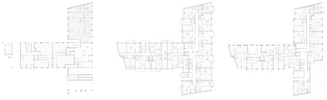
Жилой дом на улице Чапаева. Планы © А.Лен
Жилой дом на улице Чапаева. Планы © А.Лен