Размещено на портале Архи.ру (www.archi.ru)

04.02.2015

Солнечный удар. Авангард XXI века

Алла Павликова
Объект:
Жилой комплекс в Одинцово
Адрес:
Россия, Московская область, г. Одинцово, м-н 6-6А, Можайское шоссе, вл. 122
Мастерская:
АБ «Остоженка»
Авторский коллектив:
А. Скокан, Р. Баишев, Д. Гусев, К. Гладкий, А. Гнездилов, М. Елизарова, М. Матвеенко, П. Журавлёв, М. Кудряшов, Н. Медведева, Е.Алексеенко, В. Домненко, В. Сергеева, С. Помелов, А. Бутусов при участии Е. Гейченко-Белоусова

Смелая пластическая игра с объемом гигантского жилого дома в Подмосковье: сложный силуэт, впечатляющие ракурсы и – красочное напоминание о том, что авангард это наше всё.

Жилой комплекс в Одинцово. Красная арка, прорезающая угол здания, внутри которой поставлен такой же красный жилой дом © АБ Остоженка
Жилой комплекс в Одинцово. Красная арка, прорезающая угол здания, внутри которой поставлен такой же красный жилой дом © АБ Остоженка

История проекта жилого комплекса в Одинцово начиналась одновременно с историей комплекса «Акварели» в Балашихе – во время кризиса 2008 года. Именно тогда компания «Текта» не побоялась запустить сразу два крупных проекта и обратилась в бюро «Остоженка». Оба комплекса сегодня благополучно сданы в эксплуатацию и, более того, не раз были отмечены как образцовое современное жилье, отвечающее всем основным принципам формирования качественной городской среды. Только один пример: на Арх Москве-2014 они оба оказались в ряду двадцати самых актуальных проектов кварталов России.

В обоих случаях требовалось построить на ограниченной площади жилые комплексы весьма внушительных размеров. «Главная задача таких проектов – борьба с чрезмерностью, – говорит Александр Скокан, – Мы стремимся сделать гигантское здание приемлемым для своего места, используя различные приемы: арки, пятна цвета, работу с масштабом и силуэтом… Это композиционные, пластические приемы, от их использования дом меньше не становится, но можно получить интересные пространственные эффекты, способные оживить скуку современного строительства. Мне кажется, что пространство двора дома в Одинцово получилось благодаря его гигантским аркам интересным и даже захватывающим».

Участок, на котором построен дом – территория бывшей автобазы при въезде из Москвы в Одинцово, слева от Можайского шоссе, там, где россыпь коттеджей сменяется высотными жилыми массивами. Место располагало к созданию здесь своего заметного здания, своего рода въездного знака, цельного и запоминающегося, обозначающего происходящую здесь смену деревенского масштаба на городской.
Жилой комплекс в Одинцово. Ситуация © АБ Остоженка
Жилой комплекс в Одинцово. Ситуация © АБ Остоженка

С точки зрения приемов планировочного построения проект следует принципам квартальной застройки – неудивительно, что ему довелось представлять этот популярный сегодня жанр на Арх Москве. Корпуса, приподнятые на общем стилобате на один уровень от земли, «обнимают» трапециевидный участок по периметру. Один из них, самый протяженный, фиксирует границы с северо-востока и северо-запада, образуя почти прямой угол вдоль Вокзальной улицы и Можайского шоссе. Второй – неприступной стеной вырастает на западной границе площадки. Третий корпус, самый компактный, занимает позицию с юга, оставляя по сторонам широкие проходы в обустроенный на стилобате двор.
Жилой комплекс в Одинцово. Ситуационный план © АБ Остоженка
Жилой комплекс в Одинцово. Ситуационный план © АБ Остоженка
Жилой комплекс в Одинцово. Сложный силуэт © АБ Остоженка
Жилой комплекс в Одинцово. Сложный силуэт © АБ Остоженка
Жилой комплекс в Одинцово. Общий вид
Жилой комплекс в Одинцово. Общий вид
© АБ Остоженка
Жилой комплекс в Одинцово © АБ Остоженка
Жилой комплекс в Одинцово © АБ Остоженка

Интересно, что двор здесь двухуровневый, это даже не двор, а вертикальная структура: верхний, зеленый и тихий, просторно расположился на крыше стилобата, а нижний – суетный, с целой системой проездов и улиц, одна из которых прорезает комплекс насквозь, спрятался внутри. Такое решение позволило существенно сэкономить территорию, которой изначально, как впрочем, и почти всегда, не хватало для столь крупного жилого массива. Кроме того, подняв двор на один этаж, удалось почти полностью освободить его от машин, предусмотрев только пожарные проезды, протянувшиеся по внешней стороне застройки – под эффектными консолями корпусов.
Жилой комплекс в Одинцово. Консоли над пожарным проездом © АБ Остоженка
Жилой комплекс в Одинцово. Консоли над пожарным проездом © АБ Остоженка
Жилой комплекс в Одинцово. Дворовые фасады © АБ Остоженка
Жилой комплекс в Одинцово. Дворовые фасады © АБ Остоженка

При довольно простой и лаконичной планировке первое, на что обращаешь внимание, глядя на недавно построенный комплекс – его невероятно сложный силуэт с перепадом высот от двадцати четырех до семи этажей. Авторы говорят, что возникшие перепады – ответ на задачу соблюсти инсоляционные нормы, обеспечив нужным количеством света и жителей нового комплекса, и жильцов соседних с ним домов. Но здесь инсоляционная линейка была одним из инструментов проектирования. И в результате в той части, где к участку почти вплотную подходят жилые пятиэтажки, высота новых корпусов стремительно понижается до семи этажей. Со стороны Вокзальной улицы, где на некотором расстоянии от площадки строительства расположены три двенадцатиэтажных дома, границу комплекса формирует ломаный, ступенчатый блок, воздушный абрис которого следует за лучами солнца, дабы не затенить соседей.

Придумали авторы и способ обеспечить нужное количество света для квартир внутри двора. Очевидно, что понижение этажности существенно повлияло на общий выход квадратных метров. Утрату следовало восполнить: так возникла идея поработать с типологией квартир. Мы уже писали о том, как архитекторы «Остоженки» справились с подобной проблемой при строительстве комплекса «Акварели». Здесь было найдено иное решение: чтобы уместить нужное количество площадей в обозначенные габариты, корпуса, фиксирующие протяженные границы участка, расширили до двадцати двух метров против обычных шестнадцати. Сделать это удалось благодаря глубоким вертикальным нишам, которые крупным шагом прорезали объем зданий на всем их протяжении. Вокруг ниш – кухни, окна которых смотрят во двор, тогда как гостиные и спальни получают максимальное количество дневного света.

Помимо интересного типологического решения и необходимого «выхода площадей» удалось создать и очень привлекательный внешний, а точнее сказать, внешний внутридворовый, облик зданий. Фасады, обращенные во двор, благодаря глубоким прорезям-нишам превратились в подобие стройных башен разной высоты, формирующих дробную и разнообразную застройку, сомасштабную человеку. Ритм рисунка стен в сочетании с разновысотностью объемов делает комплекс похожим то ли на гигантский орган с множеством труб, то ли на природные скалы.

Особенно красиво и объемно комплекс выглядит при заходящем солнце, когда косые лучи – один их главных инструментов построения формы, здесь они вытачивают ее как скульптор резцом, – рисуют на стенах фантастические длинные тени. Одним словом: «Солнечный удар», по меткому выражению авторов, высоко оценивших соавторство солнечного света в создании их архитектуры.
Жилой комплекс в Одинцово © АБ Остоженка
Жилой комплекс в Одинцово © АБ Остоженка
Жилой комплекс в Одинцово © АБ Остоженка
Жилой комплекс в Одинцово © АБ Остоженка
Жилой комплекс в Одинцово © АБ Остоженка
Жилой комплекс в Одинцово © АБ Остоженка

Но вдохновлялись они отнюдь не солнцем, а вернее, не только им. Во всем образе комплекса явно и отчетливо угадывается любовь к русскому авангарду. Это видно и по традиционным для конструктивистов цветам – серый, белый, красный краплак; и по четкой работе с формой, где особое внимание уделяется не только объему, но и пустоте. Гигантские «куски» тела здания оказываются просто изъятыми из него, как, например, нависающие над пожарными проездами шестиметровые консоли или те же вертикальные ниши. Оттуда же, из объемно-пространственной лексики конструктивизма, и возникшая между северо-западным и западным корпусами щель, сквозь которую, как в ущелье, во двор проникают скользящие лучи заходящего солнца. И это – еще один солнечный удар.

А самым выдающимся элементом в ряду пустот стала огромная арка, которая прорезает насквозь один из корпусов, открывая вид из двора на главную артерию города – Можайское шоссе. Угол двадцатичетырехэтажного здания эффектно повис в воздухе. Опорой же для него, в лучших традициях бессмертного русского авангарда, стал насыщенно красный объем – жилой дом, поставленный внутрь этой гигантской арки, также выкрашенной в красный цвет. Красный параллелепипед – в красном кубе. Эта «красная нога» и служит тем самым условным въездным знаком в город – ярким и запоминающимся.

«…Опираясь на опыт архитекторов 1920-х годов, пользуясь их языком, мы попытались по-своему осмыслить пространство, – рассказывает Раис Баишев, – Для языка архитектуры, живописи, скульптуры воздух иногда важнее тела. Отсюда возникли и огромные консоли, и крупная арка, и «щель» между корпусами, дающая правильное ощущение пространства».

Уличные фасады, ориентированные уже на городской масштаб, решены иначе. Здесь гладкие и цельные поверхности стен практически лишены какой-либо пластики. Дробность восприятия обеспечивает только ступенчатый силуэт и колористическое решение, позволяющие избежать видения объема как чрезмерно большого. Неяркий, но плотный серый цвет венчающей части комплекса сливается с оттенками серо-голубого пасмурного осеннего неба. Основное же тело здания, «привязанное» к линии окружающей застройки, решено в ненавязчивом белом. Таким образом на фасаде как будто проведена четкая линия горизонта: все, что ниже нее – принадлежит городу, все, что выше – небу.

Стремление сгладить объем, сделать его сомасштабным не только человеку, но и окружению – в деталях. Так, чтобы облегчить массивные формы основных объемов, придуманы угловые окна, и стекла как будто «обнимают» углы здания. А это – еще один поклон идеям Баухауза и русского конструктивизма. Очень крупные, от потолка до пола, одинаковые по размеру квадратные стеклянные проемы задают общий для всего комплекса метр и ритм, а, кроме того, создают дополнительные возможности для интерьерных идей.

Вся необходимая социальная инфраструктура – в стилобате, пластическое и цветовое решение которого воспринимается уже не с дальних точек, а при подходе к нему. На уровне первого этажа в противовес плоским вертикальным формам жилых блоков, фасад нежилой части решен максимально пластично. Выполненный из цветного стекла, он напоминает стилизованный, сюрреалистический берег реки, размытый буйным потоком воды, или фрагмент скалы с выступившими породами ярко-красных суглинков… И это уже – ватерлиния, сквозь которую тоже пробивается солнце, «дробясь и качаясь на глади широких озер».
Жилой комплекс в Одинцово © АБ Остоженка
Жилой комплекс в Одинцово © АБ Остоженка
Жилой комплекс в Одинцово. Уличные фасады © АБ Остоженка
Жилой комплекс в Одинцово. Уличные фасады © АБ Остоженка
Жилой комплекс в Одинцово © АБ Остоженка
Жилой комплекс в Одинцово © АБ Остоженка
Жилой комплекс в Одинцово © АБ Остоженка
Жилой комплекс в Одинцово © АБ Остоженка
Жилой комплекс в Одинцово. Парапет стилобата с клумбой © АБ Остоженка
Жилой комплекс в Одинцово. Парапет стилобата с клумбой © АБ Остоженка
Жилой комплекс в Одинцово. Разрезы © АБ Остоженка
Жилой комплекс в Одинцово. Разрезы © АБ Остоженка
Жилой комплекс в Одинцово. Фасад, обращенный к  Вокзальной улице © АБ Остоженка
Жилой комплекс в Одинцово. Фасад, обращенный к Вокзальной улице © АБ Остоженка
Жилой комплекс в Одинцово. Южный фасад © АБ Остоженка
Жилой комплекс в Одинцово. Южный фасад © АБ Остоженка
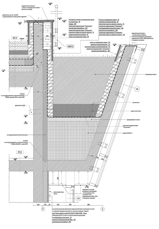
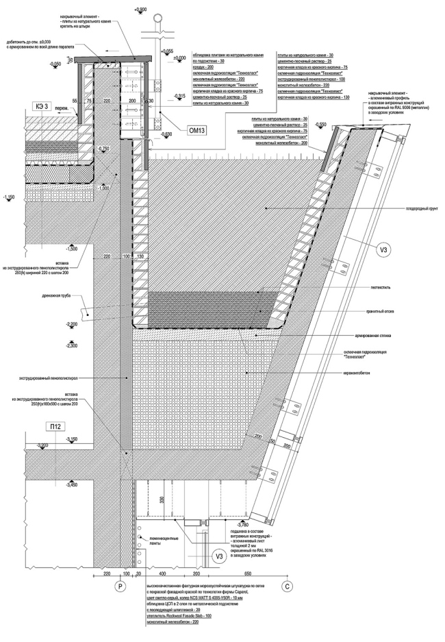
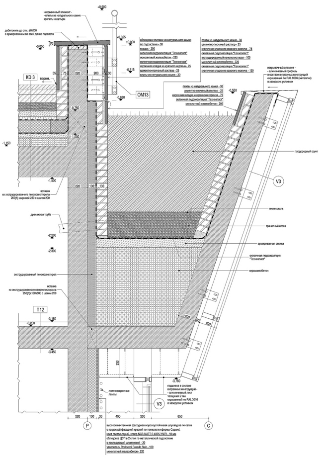
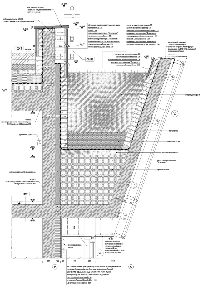
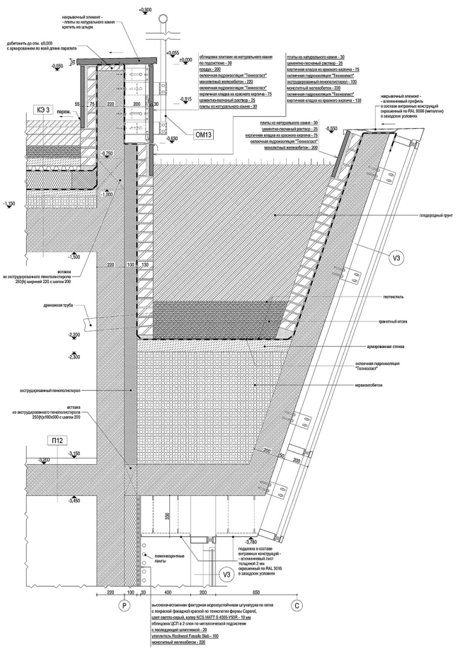
Жилой комплекс в Одинцово. Разрез © АБ Остоженка
Жилой комплекс в Одинцово. Разрез © АБ Остоженка
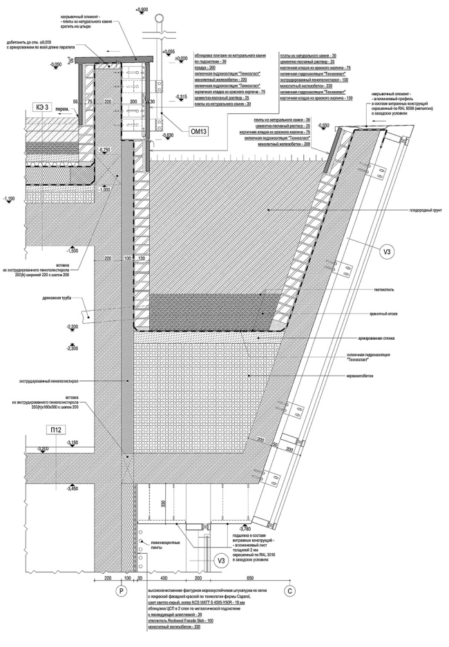
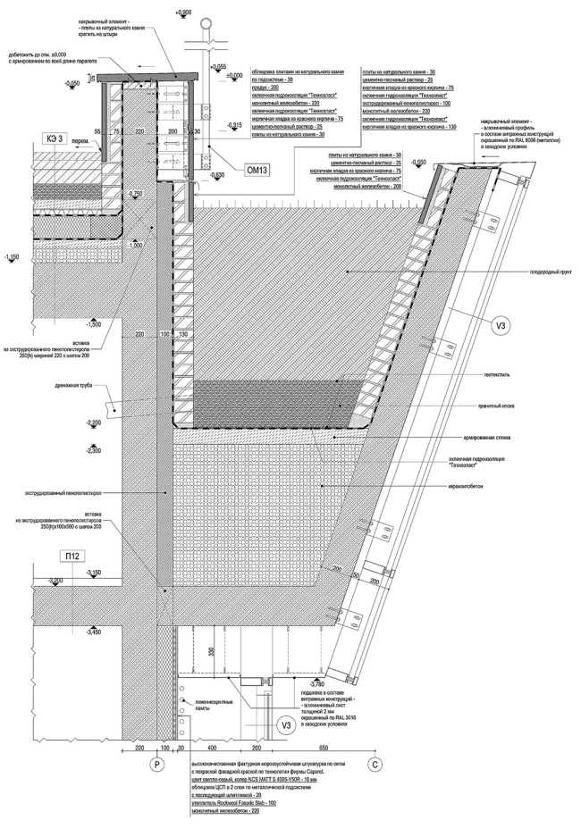
Жилой комплекс в Одинцово. Разрез © АБ Остоженка
Жилой комплекс в Одинцово. Разрез © АБ Остоженка
Жилой комплекс в Одинцово. План -1 этажа © АБ Остоженка
Жилой комплекс в Одинцово. План -1 этажа © АБ Остоженка
Жилой комплекс в Одинцово. План 1 этажа © АБ Остоженка
Жилой комплекс в Одинцово. План 1 этажа © АБ Остоженка
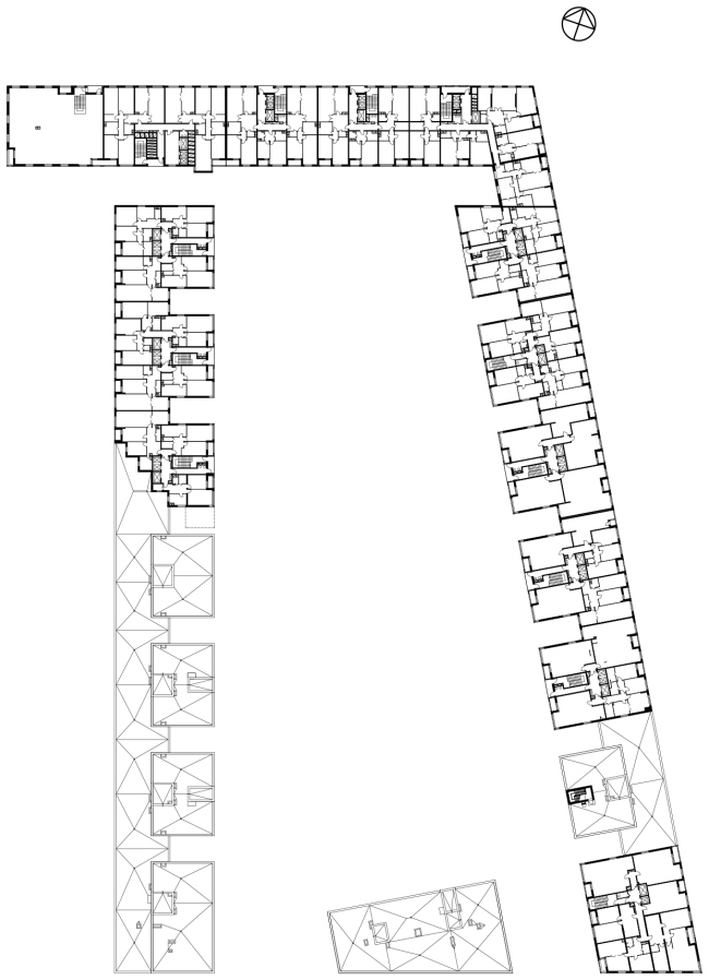
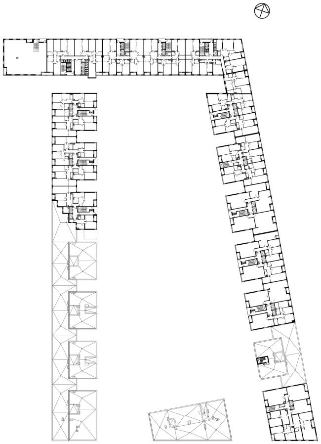
Жилой комплекс в Одинцово. План 4-7 этажей © АБ Остоженка
Жилой комплекс в Одинцово. План 4-7 этажей © АБ Остоженка
Жилой комплекс в Одинцово. План 9-13 этажей © АБ Остоженка
Жилой комплекс в Одинцово. План 9-13 этажей © АБ Остоженка