Размещено на портале Архи.ру (www.archi.ru)

11.11.2014

Охотничий камуфляж для жилого комплекса

Алла Павликова
Объект:
Жилой комплекс в Апрелевке
Адрес:
Россия, Московская область,
Архитектор:
Александр Скокан
Валерий Каняшин
Мастерская:
АБ «Остоженка»
Авторский коллектив:
А. Скокан, В. Каняшин, А. Бутусов, М. Дехтяр, П. Журавлёв, М. Кудряшов, М. Матвеенко, Г. Пронякин, О. Пономаренко, М. Скороход, В. Сергеева
 

Простых архитектурных задач не бывает, но бывают простые решения. На грани гениальности.

Жилой комплекс в Апрелевке © АБ Остоженка
Жилой комплекс в Апрелевке © АБ Остоженка

Проезжая по Киевскому шоссе мимо подмосковного города Апрелевка теперь уже сложно не заметить расставленные вдоль трассы гигантские, светящиеся ночью буквы Vesna – это риелторское название нового района, построенного по проекту бюро «Остоженка». Он расположился к югу от шоссе, среди дач на бывшем поле, – городская же, застроенная в основном пятиэтажками часть Апрелевки находится с противоположной стороны трассы, – впрочем сейчас, после установки высоких шумозащитных экранов ее почти не видно, машины едут в подобии туннеля, не замечая города. А между тем вновь построенный район – крупный шаг подмосковного города в область «дачной» зоны.

Впрочем здесь не всегда планировался городской район: «Остоженка» занимается проектом с 2009 года и тогда, в самый разгар финансового кризиса, инвестор выкупил этот участок планируя построить крупный коттеджный поселок. Но границы Москвы изменились. Изменился и генеральный план города: теперь на этом месте должно было появиться многоквартирное жилье.
 
Жилой комплекс в Апрелевке © АБ Остоженка
Жилой комплекс в Апрелевке © АБ Остоженка
Жилой комплекс в Апрелевке © АБ Остоженка
Жилой комплекс в Апрелевке © АБ Остоженка

Перед архитекторами встала непростая задача: с одной стороны, на тридцати двух гектарах нужно было создать плотную городскую застройку с большим количеством жилых домов и всей сопутствующей инфраструктурой, с другой – следовало считаться с местоположением участка: фактически за чертой города, без какой-либо транспортной, уличной, визуальной и т.п. связи с ним. По сути, еще один город без города: вокруг поля, овраги и дачные постройки…
 
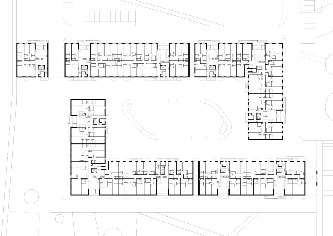
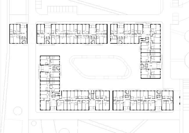
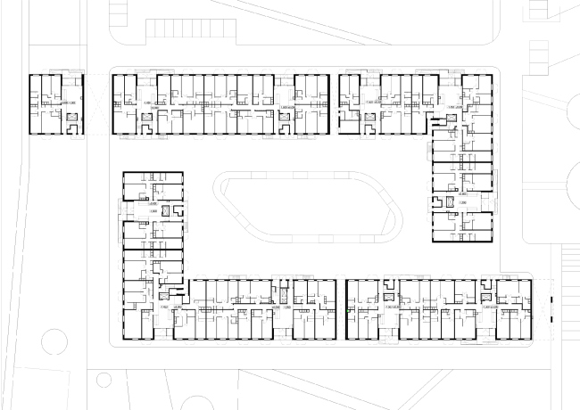
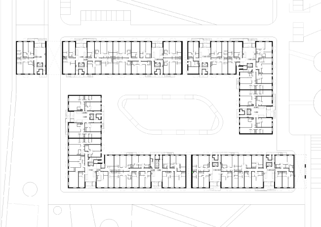
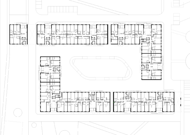
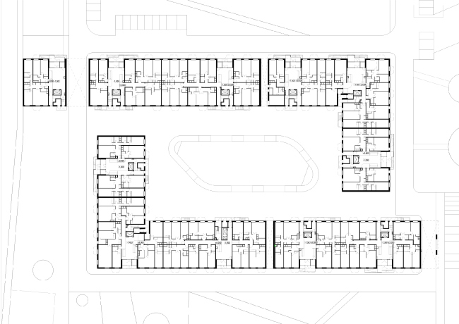
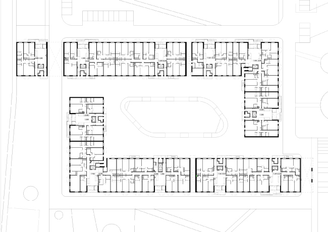
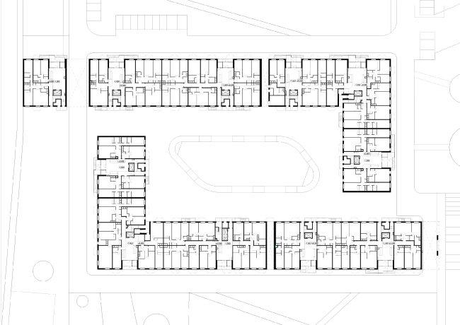
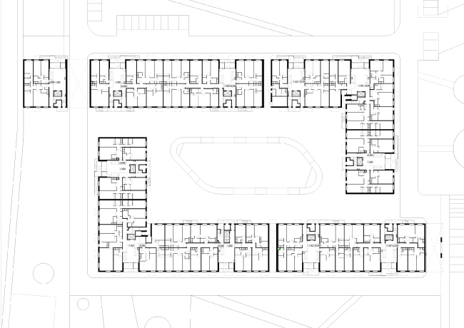
Жилой комплекс в Апрелевке. Генплан © АБ Остоженка
Жилой комплекс в Апрелевке. Генплан © АБ Остоженка

Но в кризисной ситуации все действуют по-разному: одни замирают и ждут, «когда начнется нормальная жизнь», другие – трудятся не покладая рук, не отвлекаясь на нытье и стараясь не обращать ни на что внимания. «Остоженка» – из последних. В результате: кризис – не кризис, изменились границы города – не изменились, но в течение двух месяцев родилась концепция, понравившаяся и авторам, и заказчику, и городу – она получилась родственной «духу места».

Восемь пар жилых корпусов переменной этажности – от шести до девяти этажей, свободно расставлены по участку. Из-за полного изначального отсутствия улиц, они следуют не геометрическим линиям «построения транспортной сети», а движению солнца, и напоминают пары танцоров, занявших свои позиции посреди большой и светлой залы и готовых вот-вот начать вальсировать. Каждая пара, составленная из двух протяженных Г-образных корпусов, образует почти замкнутый внутренний двор, свободный от машин и насыщенный зеленью. В логике квартального проектирования – это пространство «для своих». Пробелы между «парами» заполняет обустроенное и логично организованное общественное пространство с системой пешеходных маршрутов, зеленых скверов, спортивных и игровых площадок. И это – место «для всех».

Одна из главных идей проекта – разделение жилой и общественной зоны. Именно поэтому на территории комплекса так тихо: нет никакой суеты, паркующихся или проносящихся мимо автомобилей, снующих жителей, наскоро делающих покупки. «Чужие здесь не ходят» – вся активная общественная общегородская жизнь выведена на внешнюю границу. Школы, детские сады, непременный пассаж общественно-торгового центра и автостоянки вынесены на периметр участка, к новой кольцевой улице. Именно она позволяет избежать транзитного движения машин по территории. Один из авторов проекта Валерий Каняшин утверждает, что «это кольцо, равноудаленное от каждого жилого дома и связывающее новый район с городом, и было градостроительной основой проекта, формирующего полу-городскую, полу-загородную среду, утопающую в зелени».
Жилой комплекс в Апрелевке © АБ Остоженка
Жилой комплекс в Апрелевке © АБ Остоженка
Жилой комплекс в Апрелевке © АБ Остоженка
Жилой комплекс в Апрелевке © АБ Остоженка
Жилой комплекс в Апрелевке. Дворовая часть © АБ Остоженка
Жилой комплекс в Апрелевке. Дворовая часть © АБ Остоженка

Вполне вписывается в эту концепцию и решение фасадов. Для отделки использовали российский кирпич двух оттенков – темно-коричневый и светлая охра. Рисунок стен крупными пятнами, плавно перетекающими одно в другое, как будто результат диффузионного смешения частиц, чем-то очень напоминает охотничью амуницию – сливается с красками свежевскопанного красноватого грунта и пастельного осеннего леса. А еще можно вспомнить деревянные дома, неравномерно высыхающие на солнышке после дождя, и весенние проталины, и свежесложенные поленницы.
Жилой комплекс в Апрелевке. Фасад © АБ Остоженка
Жилой комплекс в Апрелевке. Фасад © АБ Остоженка
Жилой комплекс в Апрелевке. Фасад © АБ Остоженка
Жилой комплекс в Апрелевке. Фасад © АБ Остоженка
Жилой комплекс в Апрелевке. Фрагмент фасада © АБ Остоженка
Жилой комплекс в Апрелевке. Фрагмент фасада © АБ Остоженка
Жилой комплекс в Апрелевке © АБ Остоженка
Жилой комплекс в Апрелевке © АБ Остоженка
Жилой комплекс в Апрелевке © АБ Остоженка
Жилой комплекс в Апрелевке © АБ Остоженка
Жилой комплекс в Апрелевке © АБ Остоженка
Жилой комплекс в Апрелевке © АБ Остоженка

Следующий элемент, отличающий здания комплекса от конструктора из стандартных жилых домов, – ежеквартирные трапециевидные в плане стеклянные эркеры. Реминисценция на тему классического стеклянного эркера-фонаря. Заменившие то ли подлежащие немедленному остеклению «на свой вкус и цвет» лоджии – то ли террасы дачных домов, они выступают из всех наружных стен ровными вертикальными линиями-«градусниками». Квартиры разные, а эркеры всегда одинаковые – «в эркере все равны!». Стеклянные от пола до потолка, в помещениях они становятся главным выразительным акцентом, наполняя интерьеры светом, проникающим внутрь под разными углами. Снаружи их объемные выступы превращают простую плоскую стену в непрерывное, динамичное, волнообразное полотно, отражающее синее небо и умножающее солнечные лучи. И только торцевые стены «танцующих в паре» корпусов, лишены стеклянных поверхностей. Здесь ничто не разрушает мимикрирующий охотничий рисунок. Такое гигантское пятнистое «панно» могло бы показаться несколько тяжеловесным, однако вся эта массивная торцевая часть, нарушая законы притяжения, поднята над землей на уровень первого этажа и поставлена на металлическую V-образную опору.
Жилой комплекс в Апрелевке. Приподнятая на v-образной опоре торцевая часть жилого корпуса © АБ Остоженка
Жилой комплекс в Апрелевке. Приподнятая на v-образной опоре торцевая часть жилого корпуса © АБ Остоженка
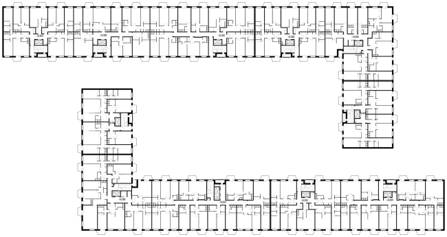
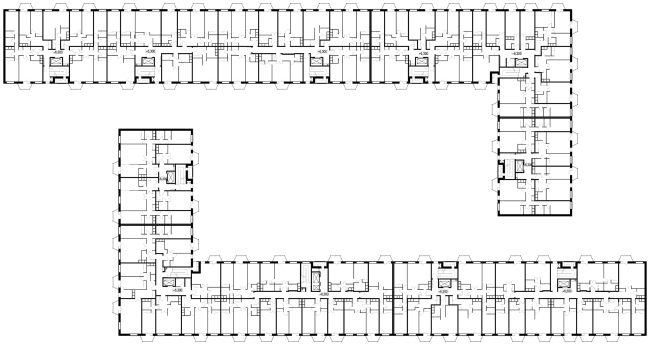
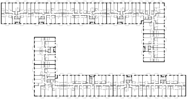
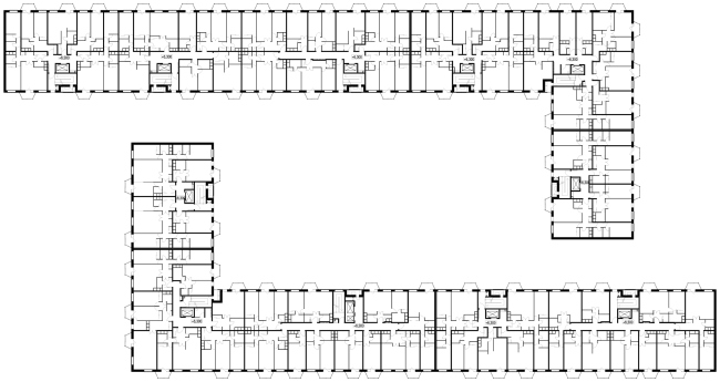
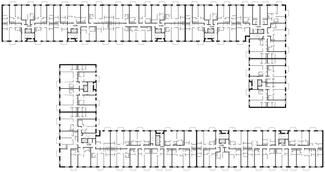
Жилой комплекс в Апрелевке. 7-й корпус. План 1-го этажа © АБ Остоженка
Жилой комплекс в Апрелевке. 7-й корпус. План 1-го этажа © АБ Остоженка
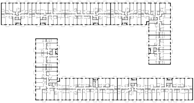
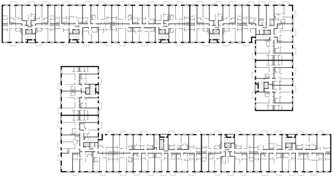
Жилой комплекс в Апрелевке. 7-й корпус. План 3-6-го этажа © АБ Остоженка
Жилой комплекс в Апрелевке. 7-й корпус. План 3-6-го этажа © АБ Остоженка

И надо честно признать, что при взгляде на панораму недавно выстроенного района не возникает ощущения его инородности в этом не то полу-городе, не то полу-загороде. Появись на этом месте вереница белокирпичных башен – монументальных и далеких от мимикрии живой природы – и впечатление было бы совсем иным.