Размещено на портале Архи.ру (www.archi.ru)

07.11.2014

В ритме московского двора

Анна Городинская, Юлия Тарабарина
Объект:
Edison House
Адрес:
Россия, Москва. Электрический переулок, 10
Мастерская:
Алексей Бавыкин и партнёры
Авторский коллектив:
ГАП: Наталья Бавыкина
Главный архитектор и руководитель мастерской: Алексей Бавыкин
Архитекторы: Дмитрий Тихонов, Михаил Марек, Ольга Хайдурова, Екатерина Лущеко, Алексей Софинский, Марина Илюшина
архитектор-визуализатор: Дмитрий Борков
архитектор-ассистент: Полина Штанько

Мастерская архитектора Бавыкина возвращается к проекту гостиницы с апартаментами в Электрическом переулке.

Гостиница с апартаментами и подземной автостоянкой в Электрическом переулке. Проект, 2014
Гостиница с апартаментами и подземной автостоянкой в Электрическом переулке. Проект, 2014
© Мастерская архитектора Бавыкина

Проект сделан для участка, на котором прошедшей весной был снесен защищаемый жителями, депутатом Еленой Ткач и «Архнадзором» остаток особняка архитектора Соколова. Дом выглядел ужасно, не имел никакого охранного статуса, больше, чем наполовину состоял из так называемой «солдатской кладки», послевоенной, неряшливой и ненадежной. Снесли дом законно, комиссия по сносу под личным руководством заммэра Хуснуллина выдала разрешение.
 
Координатор «Архнадзора» Рустам Рахматуллин предлагал восстановить особняк Соколова в прежнем виде, то есть фактически, так как от особняка оставалось мало подлинного, построить его заново в прежних формах, или еще точнее построить новодел в формах особняка Соколова, – маленький, одноэтажный памятник особняку посреди Москвы. В риторике градозащитников проект, который планируется реализовать на этом участке вместо скромного особняка, фигурировал исключительно как гигантское современное здание из стекла и бетона – типовая и несколько поднадоевшая формула восьмидесятых, обличающая нежелание даже взглянуть на предлагаемый проект, так как любая замена защищаемого – зло.
 
Между тем стекло и бетон, конечно же, присутствуют почти в любом современном здании, но дело не в них. Тонких, внимательных и к окружению, и к собственной пластике, не чуждых рефлексии проектов даже в центре Москвы по-прежнему не так уж много, чтобы ими разбрасываться. Архитектор Алексей Бавыкин совместно с дочерью Натальей Бавыкиной проектирует для этого участка с 2010 года, предлагает уже третий вариант, подчиняясь всё новым ограничениям. Раньше дом занимал весь участок, потом его ограничили пятном снесенного дома и контуры плана получили прихотливую форму, повторяющую угловатые пристройки (совершенно непонятно, зачем это делать, если дом-предшественник все равно снесли, но правила есть правила и архитекторы их выдержали, у них даже высота получилась немного меньше разрешенной). Мы спросили у Алексея Бавыкина об особняке Соколова и он ответил, что если бы на его взгляд от дома оставалось бы что-то, что можно было бы осмысленно сохранить (Бавыкин учился в МАРХИ на кафедре реставрации у С.С. Подъяпольского и кое-что понимает в сохранности и возможностях консервации), он не взялся бы за этот проект ни в коем случае. И еще – что ненавидит новоделы, не видит в них никакого смысла, и уж за новодел бы не взялся никогда.
 
Архитекторы уверены в своей правоте, да и проект, честно говоря, хотелось бы увидеть реализованным, так что имеет смысл внимательнее к нему присмотреться.
***

По небу пробежала собака и скрылась... А диалога в жанре «Скажу тебе, как архитектор архитектору», столь привлекательного в любой реконструкции, ни в первый раз, ни во второй так и не получилось. Да и получиться не могло. Тот домик, который в 1884 году построил себе «стесненный в средствах и скромный в своих желаниях неклассный художник-архитектор Соколов» – с парадным входом, рустованными пилястрами и полуциркульным фронтоном, просто превратился в развалины. Не в руины, а именно – в развалины: руины романтичны и привлекательны, развалины же убоги, непривлекательны и вызывают, к сожалению, скорее чувство брезгливости, чем интерес к своему прошлому.
 
Дом переходил из рук в руки, его перепланировали, и к нему все время что-то пристраивали: в 1899 – зимний сад, а в 1903 – одноэтажный объем кухни... После 1917-го дом, бывший по официальным документам «квартирой домовладельца», постигла участь коммунального жилья – с обязательным возведением дополнительных перегородок, прорубанием и закрытием проемов и непременным вбиванием гвоздей и костылей под корыта, санки и велосипеды в стены прихожей. А в 1970-х закончилась и эта обетованная, обустроенная жизнь, пахнувшая пирогами, кипяченым бельем и все теми же щами: домик превратили в конторское здание с плохо закрывающейся щелястой перекошенной входной дверью, очередными неизвестно кем и как поставленными перегородками, и треснувшими стеклами немытых от субботника до субботника окон. С этого времени дом, в одночасье ставший бесхозным, разрушался уже необратимо. И не было никому дела до того, что был он некогда особняком, столь редким в этой части города, что перед ним, вероятно, был палисадник, а позади него, совершенно точно – сад, куда можно было выйти через террасу. Даже стропила кровли сгнили еще лет двадцать назад...
 
Да уж, какой тут диалог? Так, солилоквиум о новоделе, столь нелюбимом Бавыкиным «строительстве нового, но точно такого же, как старое».
***
 
Проектировать в одном из самых узких и коротких московских переулков, зажатом между ощетинившимся гирьками-кокошниками псевдо-русским фасадом Фирсановской богадельни и силуэтом башни Вулыха, очень сложно. Ни пространственных, ни эмоциональных ориентиров нет: так, недорогие доходные дома, разбавленные советским домостроением. Здание целиком ниоткуда не воспринимается: кто-то видит низ, а кто-то – только верх. Кому-то удается увидеть один угол, а кому-то – противоположный. И путь поиска вариантов бесконечен. А по иронии насмешливой архитектурной судьбы и воле заказчика архитекторам Бавыкиным пришлось пройти по нему дважды.
 
Первый раз в 2010, когда на красной линии застройки должен был появиться эдакий дом-манифест: четко выраженный отступ стеклянного пентхауса, нерегулярная колоннада деревьев, произрастающая в скульптурную корону и ломанная решетка карнизного козырька.
Дом в Электрическом переулке, 2010. Вид со стороны Электрического переулка
Дом в Электрическом переулке, 2010. Вид со стороны Электрического переулка
© Алексей Бавыкин и партнёры

Возвращение в тесный створ Электрического переулка в 2013, на первый взгляд, кажется не столь ярким и декларативным. Но что-то не так с этой декларативной неяркостью. В втором варианте от «Брюсова брата» не осталось практически ничего. Ну разве что патинированный под бронзу тростник как и прежде растет на ограждении балконов, да стеклянный объем пентхауса волнуется на солнце граненым стеклом наружной стены.
Гостиница с апартаментами и подземной автостоянкой в Электрическом переулке. Проект, 2014
Гостиница с апартаментами и подземной автостоянкой в Электрическом переулке. Проект, 2014
© Мастерская архитектора Бавыкина

Дом же обрел несвойственную ему до этого трехчастность, отступил с красной линии, практически полностью совпал в плане с контуром развалившегося особняка и сразу перестал доминировать в уличной перспективе, оставив эту привилегию все той же Фирсановской богадельне, которую в советские годы не забыли надстроить на пару этажей, превратив из шкатулки-коробочки в стиле «а-ля рус» в эдакий видавший виды сундук. И на фоне такой визуальной доминанты легкий, изящный, почти невесомый объем апарт-отеля заставляет все время на себя оглядываться. Оглянешься, и сразу становится понятна позиция угловой башни, неумолимо напоминающей не то архитектуру замков и крепостей, не то здание Моссельпрома. «Башня придумана нами как небольшая доминанта, в духе характерных для старой Москвы невысоких вертикалей, – рассказывает Алексей Бавыкин, – помните, были колокольни, башни на углах, и прочие маленькие акценты, многие из них снесли за советское время. Так вот, думая над этой башенкой мы хотели каким-то образом вернуться к московскому ритму с его небольшими вертикалями.»

А внутри, за почти непроницаемой плотностью стен, в слоёном пироге этажей архитекторам Бавыкиным удалось совместить несовместимое: на земле и под землей все начинается с шахты парк-лифта, на втором, третьем, ... пятом – превращается в спальню с собственной ванной комнатой, а на шестом – трансформируется в часть пентхауса, не охваченную свободной планировкой. И вот, поставленная вглубь композиции, именно эта башня-обманка видна практически с любой точки переулка, как маяк в узком фарватере городской реки.
Гостиница с апартаментами и подземной автостоянкой в Электрическом переулке, 2014 © Мастерская архитектора Бавыкина
Гостиница с апартаментами и подземной автостоянкой в Электрическом переулке, 2014 © Мастерская архитектора Бавыкина
Схема планировочной организации земельного участка, совмещенная со схемой транспортной организации территории. Гостиница с апартаментами и подземной автостоянкой в Электрическом переулке, 2014 © Мастерская архитектора Бавыкина
Схема планировочной организации земельного участка, совмещенная со схемой транспортной организации территории. Гостиница с апартаментами и подземной автостоянкой в Электрическом переулке, 2014 © Мастерская архитектора Бавыкина
Схема развертки фасадов по Электрическому переулку. Гостиница с апартаментами и подземной автостоянкой в Электрическом переулке, 2014 © Мастерская архитектора Бавыкина
Схема развертки фасадов по Электрическому переулку. Гостиница с апартаментами и подземной автостоянкой в Электрическом переулке, 2014 © Мастерская архитектора Бавыкина
Схема фрагмента фасада N1. Гостиница с апартаментами и подземной автостоянкой в Электрическом переулке, 2014 © Мастерская архитектора Бавыкина
Схема фрагмента фасада N1. Гостиница с апартаментами и подземной автостоянкой в Электрическом переулке, 2014 © Мастерская архитектора Бавыкина

Противоположный башне объем – третий в видимом из переулка ряду, и вовсе мимикрировал под окружающую застройку. И эта неотличимость срабатывает точно, как скрепка, соединяя выразительный срединный объем со всем окружающим пространством. Делает неотъемлемой его частью.
Гостиница с апартаментами и подземной автостоянкой в Электрическом переулке, 2014 © Мастерская архитектора Бавыкина
Гостиница с апартаментами и подземной автостоянкой в Электрическом переулке, 2014 © Мастерская архитектора Бавыкина
Гостиница с апартаментами и подземной автостоянкой в Электрическом переулке, 2014 © Мастерская архитектора Бавыкина
Гостиница с апартаментами и подземной автостоянкой в Электрическом переулке, 2014 © Мастерская архитектора Бавыкина

А еще есть нестандартная кирпичная облицовка стен, от которой московская архитектура тоже давно отвыкла. Сегодня, когда речь идет об облицовке, мы чаще всего думаем о цвете и материале, а не о его пластических возможностях. Здесь вожделенная на невыразительном московском солнце пластика и рябь фасадной чешуи достигается простыми сдвижками на четверть кирпича – вперед или назад, с одинаковым шагом в ряду или с разным, повторяясь по высоте или сбиваясь с ритма. Имитируя стыки, оставшиеся от разобранной кладки, намекая на гипотетическую принадлежность дома некоей разобранной структуре – как будто вертикальный выступ со стороны двора принадлежал чему-то отломанному, от чего остались регулярные выступы кирпича: такое можно увидеть в монастырях, да и в городских дворах, если приглядеться, попадается – фактурный рисунок кладки не только делает рассматривание фасадов нескучным, но и добавляет сюжет сродни альтернативной истории, – поданную очень тонко, для тех, кто понимает, тему руины. В арке на Можайком шоссе эту тему в бытность мэром «зарубил» лично Юрий Михайлович Лужков, но архитектурная идея не умирает, а трансформируется, прорастает другими приемами.
Типы кирпичной кладки. Гостиница с апартаментами и подземной автостоянкой в Электрическом переулке, 2014 © Мастерская архитектора Бавыкина
Типы кирпичной кладки. Гостиница с апартаментами и подземной автостоянкой в Электрическом переулке, 2014 © Мастерская архитектора Бавыкина
Схема фасада в осях 1 – 7. Гостиница с апартаментами и подземной автостоянкой в Электрическом переулке, 2014 © Мастерская архитектора Бавыкина
Схема фасада в осях 1 – 7. Гостиница с апартаментами и подземной автостоянкой в Электрическом переулке, 2014 © Мастерская архитектора Бавыкина

В этом варианте проекта мало осталось от зубцов «короны» дикого ордера без капителей, зато дом многое впитал от тихого доходника в московском дворе, с его продиктованным обстоятельствами планом, выступами, обрывами, спонтанными перестройками, – именно этот образ становится главным, он же и позволяет лучше всего сродниться с окружением.
 
Так может быть и не стоит сожалеть о том, что ушли в небытие скульптуры, безмятежно лежавшие на столбах короны, отражавшиеся и множившиеся в стеклянной глади стены пентхауса, и еще о том, что никогда уже бавыкинская собака не побежит по небу над Электрическим переулком...
Схема фасада в осях А – К. Гостиница с апартаментами и подземной автостоянкой в Электрическом переулке, 2014 © Мастерская архитектора Бавыкина
Схема фасада в осях А – К. Гостиница с апартаментами и подземной автостоянкой в Электрическом переулке, 2014 © Мастерская архитектора Бавыкина
Схема фасада в осях 7 – 1. Гостиница с апартаментами и подземной автостоянкой в Электрическом переулке, 2014 © Мастерская архитектора Бавыкина
Схема фасада в осях 7 – 1. Гостиница с апартаментами и подземной автостоянкой в Электрическом переулке, 2014 © Мастерская архитектора Бавыкина
Схема фасада в осях К – А. Гостиница с апартаментами и подземной автостоянкой в Электрическом переулке, 2014 © Мастерская архитектора Бавыкина
Схема фасада в осях К – А. Гостиница с апартаментами и подземной автостоянкой в Электрическом переулке, 2014 © Мастерская архитектора Бавыкина
Схема фасадов в осях 6 – 5 и 5 – 7. Гостиница с апартаментами и подземной автостоянкой в Электрическом переулке, 2014 © Мастерская архитектора Бавыкина
Схема фасадов в осях 6 – 5 и 5 – 7. Гостиница с апартаментами и подземной автостоянкой в Электрическом переулке, 2014 © Мастерская архитектора Бавыкина
Схема фасада в осях 3 – 1. Гостиница с апартаментами и подземной автостоянкой в Электрическом переулке, 2014 © Мастерская архитектора Бавыкина
Схема фасада в осях 3 – 1. Гостиница с апартаментами и подземной автостоянкой в Электрическом переулке, 2014 © Мастерская архитектора Бавыкина
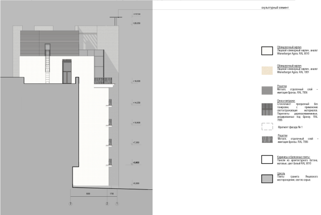
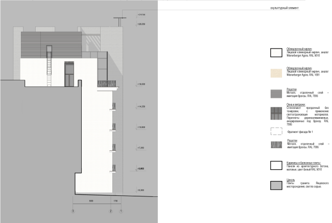
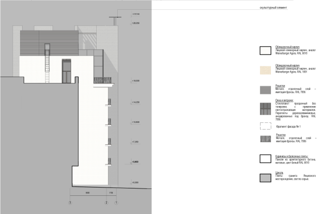
Схема разреза 2-2. Гостиница с апартаментами и подземной автостоянкой в Электрическом переулке, 2014 © Мастерская архитектора Бавыкина
Схема разреза 2-2. Гостиница с апартаментами и подземной автостоянкой в Электрическом переулке, 2014 © Мастерская архитектора Бавыкина
Схема разреза 1-1. Гостиница с апартаментами и подземной автостоянкой в Электрическом переулке, 2014 © Мастерская архитектора Бавыкина
Схема разреза 1-1. Гостиница с апартаментами и подземной автостоянкой в Электрическом переулке, 2014 © Мастерская архитектора Бавыкина
Схема плана кровли. Гостиница с апартаментами и подземной автостоянкой в Электрическом переулке, 2014 © Мастерская архитектора Бавыкина
Схема плана кровли. Гостиница с апартаментами и подземной автостоянкой в Электрическом переулке, 2014 © Мастерская архитектора Бавыкина
Схема плана 7 этажа. Гостиница с апартаментами и подземной автостоянкой в Электрическом переулке, 2014 © Мастерская архитектора Бавыкина
Схема плана 7 этажа. Гостиница с апартаментами и подземной автостоянкой в Электрическом переулке, 2014 © Мастерская архитектора Бавыкина
Схема плана 5 этажа. Гостиница с апартаментами и подземной автостоянкой в Электрическом переулке, 2014 © Мастерская архитектора Бавыкина
Схема плана 5 этажа. Гостиница с апартаментами и подземной автостоянкой в Электрическом переулке, 2014 © Мастерская архитектора Бавыкина
Схема плана 6 этажа. Гостиница с апартаментами и подземной автостоянкой в Электрическом переулке, 2014 © Мастерская архитектора Бавыкина
Схема плана 6 этажа. Гостиница с апартаментами и подземной автостоянкой в Электрическом переулке, 2014 © Мастерская архитектора Бавыкина
Схема плана 4 этажа. Гостиница с апартаментами и подземной автостоянкой в Электрическом переулке, 2014 © Мастерская архитектора Бавыкина
Схема плана 4 этажа. Гостиница с апартаментами и подземной автостоянкой в Электрическом переулке, 2014 © Мастерская архитектора Бавыкина
Схема плана 3 этажа. Гостиница с апартаментами и подземной автостоянкой в Электрическом переулке, 2014 © Мастерская архитектора Бавыкина
Схема плана 3 этажа. Гостиница с апартаментами и подземной автостоянкой в Электрическом переулке, 2014 © Мастерская архитектора Бавыкина
Схема плана 2 этажа. Гостиница с апартаментами и подземной автостоянкой в Электрическом переулке, 2014 © Мастерская архитектора Бавыкина
Схема плана 2 этажа. Гостиница с апартаментами и подземной автостоянкой в Электрическом переулке, 2014 © Мастерская архитектора Бавыкина
Схема плана 1 этажа. Гостиница с апартаментами и подземной автостоянкой в Электрическом переулке, 2014 © Мастерская архитектора Бавыкина
Схема плана 1 этажа. Гостиница с апартаментами и подземной автостоянкой в Электрическом переулке, 2014 © Мастерская архитектора Бавыкина
Схема плана -1 этажа. Гостиница с апартаментами и подземной автостоянкой в Электрическом переулке, 2014 © Мастерская архитектора Бавыкина
Схема плана -1 этажа. Гостиница с апартаментами и подземной автостоянкой в Электрическом переулке, 2014 © Мастерская архитектора Бавыкина
Схема плана -2 этажа. Гостиница с апартаментами и подземной автостоянкой в Электрическом переулке, 2014 © Мастерская архитектора Бавыкина
Схема плана -2 этажа. Гостиница с апартаментами и подземной автостоянкой в Электрическом переулке, 2014 © Мастерская архитектора Бавыкина
Схема ситуационного плана. Гостиница с апартаментами и подземной автостоянкой в Электрическом переулке, 2014 © Мастерская архитектора Бавыкина
Схема ситуационного плана. Гостиница с апартаментами и подземной автостоянкой в Электрическом переулке, 2014 © Мастерская архитектора Бавыкина