Размещено на портале Архи.ру (www.archi.ru)

17.10.2014

Выращивание города

Юлия Тарабарина
Объект:
Топология непрерывности: проект-победитель конкурса на концепцию развития исторического центра Калининграда
Адрес:
Россия, Калининград.
Архитектор:
Никита Явейн
Мастерская:
Институт Территориального Развития
Студия 44
Авторский коллектив:
Авторы проекта: Никита Явейн, Илья Григорьев, Иван Кожин, Ксения Счастливцева
Визуализация: Алексей Веткин, Андрей Патрикеев
Аннотация к проекту: Людмила Лихачева
Раздел «Транспорт»: Геннадий Шелухин (Институт территориального развития)

Проект, победивший в конкурсе на концепцию центра Калининграда.

Конкурсный проект концепции развития территорий исторического центра города Калининграда. 1-е место. Проект, 2014
Конкурсный проект концепции развития территорий исторического центра города Калининграда. 1-е место. Проект, 2014
© Студия 44 и Институт территориального развития Санкт-Петербурга
Дольфюсиха рассказывала Чачуа про милый Кёнигсберг, на что Чачуа кивал носом и страстно приговаривал: «А как же! Помню… Генерал Черняховский… Пять суток пушками ломали…»
Аркадий и Борис Стругацкие. Град обреченный 

Международный конкурс на разработку концепции архитектурно-градостроительного развития территорий исторического центра Калининграда «Королевская гора и ее окружение» завершился 18 сентября победой проекта, предложенного петербуржцами:  «Студией 44» Никиты Явейна и Институтом территориального развития, разработавшим в проекте транспортную схему. 

Центр Калининграда – знаковое место, разговоры о его обновлении или восстановлении идут уже давно, и проведенный конкурс должен стать одной из важных частей этой длящейся и запутанной истории взаимодействия советской, российской и исторической прусской идентичности в послевоенное время. Прежде всего: многие знают, но все же нужно сказать, что во время войны столица Пруссии Кёнигсберг был уничтожен почти полностью, вначале жестокой бомбежкой британской авиации в августе 1944, затем во время штурма советскими войсками. Руины Королевского замка после войны немного поисследовали, а затем взорвали (!) в 1969 году по указанию секретаря обкома. Старая застройка центра уничтожена, разрезана Эстакадным мостом и похожа местами на парк, местами на пустырь с доминантой недостроенного, но забавного Дома Советов 1970-х, рядом с руинами замка; из заметных старых построек сохранился собор с могилой Канта в нем на заросшем деревьями острове Кнайпхоф, Île de la Cité Кёнигсберга. Уже лет десять, если не больше, в городе идут споры о том, следует ли восстанавливать замок, застраивать остров и в целом – что делать с центром, который сейчас больше похож на в меру ухоженную советскую окраину, чем на исторический город. [Три других конкурсных проекта, занявших второе и два третьих места, можно увидеть здесь].
Мета-элементы генетического кода «Сердца города». Источник: НП Градостроительное Бюро  «Сердце города» (организатор конкурса), www.tuwangste.ru
Мета-элементы генетического кода «Сердца города». Источник: НП Градостроительное Бюро «Сердце города» (организатор конкурса), www.tuwangste.ru

Ответ, который дал на эти и множество других вопросов Никита Явейн, предсказуемо устроил не всех, и между тем многие специалисты отозвались о тех или иных решениях этого проекта с интересом. 

Помимо транспортной схемы (губернатору она понравилась), согласно которой центр перестает быть транзитным, эстакады разбирают, строят объездные дороги, а отрезки бывших крупных трасс в центре делают пешеходными бульварами, авторы предложили целый веер идеологических решений-подходов, различных для каждого фрагмента центра города. Здесь важно сказать, что в Средние века центр сложился из нескольких городов, которые слились и стали районами Кёнигсберга только в 1724 году. Так вот, архитекторы предложили для каждого из этих городов-районов собственный сценарий развития в диапазоне от регенерации старого города по строжайшему регламенту до крупных объемов со стеклянными фасадами, пролавировав таким образом между чистым новоделом и исторической стилизацией (ни того, ни другого здесь нет) – и неизбежной унифицированностью любого из возможных, даже самых пёстрых современных районов. 
Конкурсный проект концепции развития территорий исторического центра города Калининграда. 1-е место
Конкурсный проект концепции развития территорий исторического центра города Калининграда. 1-е место
© Студия 44 и Институт территориального развития Санкт-Петербурга
Конкурсный проект концепции развития территорий исторического центра города Калининграда. 1-е место
Конкурсный проект концепции развития территорий исторического центра города Калининграда. 1-е место
© Студия 44 и Институт территориального развития Санкт-Петербурга
Конкурсный проект концепции развития территорий исторического центра города Калининграда. 1-е место
Конкурсный проект концепции развития территорий исторического центра города Калининграда. 1-е место
© Студия 44 и Институт территориального развития Санкт-Петербурга

Лично мне самым свежим и интересным элементом проекта кажется концепция развития района Альтштадт, которую авторы совершенно правильно сделали ключевой, стартовой точкой роста центра города. Другие подобные проекты мне неизвестны, похожие есть, а таких же по смыслу – нет.

Район Альтштадт, расположенный на северном берегу реки Преголи и по площади приблизительно равный острову Кнайпхоф, сейчас занят большим зеленым сквером с липами и трассой Московского проспекта. Трассу архитекторы превращают в новый сквер-бульвар, а на территории сегодняшнего сквера – предлагают откопать засыпанные землей, но сохранившиеся там фундаменты разрушенных домов. Улицы откапывают до довоенного уровня, а дворы – внимание – до уровня самого глубокого подвала. То, что образуется внутри небольших, площадью от 100 до 400 м2 двориков, я бы назвала ретро-городом с археологическим уклоном: пространство на уровне раскопа, причем найденной в вынутом культурном слое керамикой немузейного значения архитекторы предлагают украсить фасады домов. Сохраняют и существующие деревья: укрепленные подпорными стенками участки зелени будут возвышаться над «новым средневековым» городом. 
Конкурсный проект концепции развития территорий исторического центра города Калининграда. 1-е место
Конкурсный проект концепции развития территорий исторического центра города Калининграда. 1-е место
© Студия 44 и Институт территориального развития Санкт-Петербурга
Конкурсный проект концепции развития территорий исторического центра города Калининграда. 1-е место
Конкурсный проект концепции развития территорий исторического центра города Калининграда. 1-е место
© Студия 44 и Институт территориального развития Санкт-Петербурга

Дома же планируется выстроить на цоколе откопанных фундаментов, вырастив их до объема, разрешенного установленными в предложенном регламенте строгими ограничениями – приблизительно до уровня утраченного города и с чередой островерхих крыш: наклон архитекторы определили строго в 45 градусов. Участки поделены очень дробно: по границам домов. Все новые здания на старых фундаментах должны строиться из натуральных материалов, без металла и пластика, с деревянными рамами, штукатурными, кирпичными или каменными фасадами и не более чем сорока процентами остекления. 
Парцелляция Альтштадта. Конкурсный проект концепции развития территорий исторического центра города Калининграда. 1-е место
Парцелляция Альтштадта. Конкурсный проект концепции развития территорий исторического центра города Калининграда. 1-е место
© Студия 44 и Институт территориального развития Санкт-Петербурга
Схема откапывания Альтштадта. Конкурсный проект концепции развития территорий исторического центра города Калининграда. 1-е место
Схема откапывания Альтштадта. Конкурсный проект концепции развития территорий исторического центра города Калининграда. 1-е место
Регламент для Альтштадта. Конкурсный проект концепции развития территорий исторического центра города Калининграда. 1-е место
Регламент для Альтштадта. Конкурсный проект концепции развития территорий исторического центра города Калининграда. 1-е место
© Студия 44 и Институт территориального развития Санкт-Петербурга
Регламент для Альтштадта. Конкурсный проект концепции развития территорий исторического центра города Калининграда. 1-е место
Регламент для Альтштадта. Конкурсный проект концепции развития территорий исторического центра города Калининграда. 1-е место
© Студия 44 и Институт территориального развития Санкт-Петербурга
Альтштадт. Конкурсный проект концепции развития территорий исторического центра города Калининграда. 1-е место
Альтштадт. Конкурсный проект концепции развития территорий исторического центра города Калининграда. 1-е место
© Студия 44 и Институт территориального развития Санкт-Петербурга

Иллюстрируя концепцию, визуализаторы, по выражению Никиты Явейна, «подняли» силуэты в рамках всех установленных ими ограничений – и получили обаятельнейшую картинку ретро-города с уютной атмосферой миниатюрных пространств, кафе, магазинов-лавок (к слову, схема функционирования района предложена средневековая: жилье на верхних этажах, кафе и магазины внизу, предполагается, что владельцы могли бы жить над своими лавками). Безо всякого восстановления застройки по фотографиям получился очень густой, плотный образ ретро-города, города-музея, словом, совершеннейшая Венеция, – следует, однако, помнить о том, что построенные дома будут несколько другими, с ними будут работать другие архитекторы и заказчики в рамках регламента. Можно спросить о реализуемости, стоимости этого проекта и даже о ценности сквера, скрывающего фундаменты Альтштадта, но если мы говорим о восстановлении – или создании заново городского центра, который имел бы отношение к историческому, но не по принципу Варшавы, построенной заново в старых формах, – то данное решение выглядит новым шагом даже с точки зрения приращения идей, так как оно развивает актуальную тему восстановления в ключе, адекватном принципам современной археологии и реставрации. Вариант ретро по правилам современности. 

Действительно, что нужно для того, чтобы вырастить заново уничтоженный городской центр? – Найти его корни. Корни домов – их фундаменты, и здесь диалог современной архитектуры и наследия ведется на каких-то совершенно новых основаниях. Не антитеза и не отражение, а сращивание и взаимодействие, восстановление без подделки. Этот сюжет – корень для выращивания всего центра города в целом. И если, скажем, проект решат реализовывать без него, то он потеряет внутреннюю стройность и логику; проект придуман так, что ему следует расти от начала и до конца, а не быть донором «нескольких интересных предложений» (что, как и всегда, уже обсуждается). 

Рассматривая последовательно другие части проекта, сразу же обнаруживаем антитезу: остров Кнайпхоф, о восстановлении довоенных зданий которого в городе говорилось больше всего, архитекторы предложили не застраивать вообще, а превратить в археологический парк. Дорожки на месте улиц, вероятные фрагменты ландшафтных реконструкций из стриженых кустов, и яркий цветочный газон вокруг собора. 
Остров Кнайпхоф. Конкурсный проект концепции развития территорий исторического центра города Калининграда. 1-е место
Остров Кнайпхоф. Конкурсный проект концепции развития территорий исторического центра города Калининграда. 1-е место
© Студия 44 и Институт территориального развития Санкт-Петербурга
Схема осмысления парка на острове Кнайпхоф. Конкурсный проект концепции развития территорий исторического центра города Калининграда. 1-е место
Схема осмысления парка на острове Кнайпхоф. Конкурсный проект концепции развития территорий исторического центра города Калининграда. 1-е место
© Студия 44 и Институт территориального развития Санкт-Петербурга

Кёнигсберг, в числе прочего, был славен загадкой про семь мостов: как пройти по ним всем, не пройдя по одному дважды (ответ – никак, это доказал в 1736 году Леонард Эйлер, попутно основав теорию графов   и науку топологию). Один из семи мостов был далеко от центра, а еще несколько было разрушено, из старых мостов осталось два. Архитекторы воссоздают в центре семь мостов, вместо седьмого строят новый, в подчеркнуто современных формах и называют его именем Эйлера. Два моста заменяют разбираемую эстакаду. 

Тему восстановления без копирования развивает набережная Восточного Форштадта, берег реки к югу от острова: здесь по регламенту выстраивается длинный ряд домов с острыми крышами; в нижних этажах домов образуется крытая галерея вдоль реки. Ставшие ландмарком «большие краны» речного порта, расположенного к западу от набережной авторы сохраняют, а застройку бывшей портовой территории ограничивают пятнами исторических складов (шпайхеров). Впрочем, регламент все еще остается очень жестким: предписан наклон кровель, в Форштадте 45°, в Ластадиях (западнее острова) 55°, высота домов до кровли от 15 до 18 метров, в первых этажах – общественные функции. 
Регламент для Форштадта и Ластадий. Конкурсный проект концепции развития территорий исторического центра города Калининграда. 1-е место
Регламент для Форштадта и Ластадий. Конкурсный проект концепции развития территорий исторического центра города Калининграда. 1-е место
© Студия 44 и Институт территориального развития Санкт-Петербурга
Конкурсный проект концепции развития территорий исторического центра города Калининграда. 1-е место
Конкурсный проект концепции развития территорий исторического центра города Калининграда. 1-е место
© Студия 44 и Институт территориального развития Санкт-Петербурга
Конкурсный проект концепции развития территорий исторического центра города Калининграда. 1-е место
Конкурсный проект концепции развития территорий исторического центра города Калининграда. 1-е место
© Студия 44 и Институт территориального развития Санкт-Петербурга
Территория бывшего порта. Конкурсный проект концепции развития территорий исторического центра города Калининграда. 1-е место
Территория бывшего порта. Конкурсный проект концепции развития территорий исторического центра города Калининграда. 1-е место
© Студия 44 и Институт территориального развития Санкт-Петербурга
Набережная. Конкурсный проект концепции развития территорий исторического центра города Калининграда. 1-е место
Набережная. Конкурсный проект концепции развития территорий исторического центра города Калининграда. 1-е место
© Студия 44 и Институт территориального развития Санкт-Петербурга

Дальше привязка к местности постепенно становится все более символической. Район Ломзе к востоку от острова использует принципы застройки, позаимствованные у старых кварталов периферии Кёнигсберга. Состоящая из жилых комплексов с просторными внутренними дворами и местами прерываемая ландшафтом, эта застройка крупнее и менее плотная, чем в «ювелирном» Альтштадте, но все же она не слишком выходит на рамки исторического масштаба. 
Район Ломзе.  Конкурсный проект концепции развития территорий исторического центра города Калининграда. 1-е место
Район Ломзе. Конкурсный проект концепции развития территорий исторического центра города Калининграда. 1-е место
© Студия 44 и Институт территориального развития Санкт-Петербурга
Район Ломзе. Конкурсный проект концепции развития территорий исторического центра города Калининграда. 1-е место
Район Ломзе. Конкурсный проект концепции развития территорий исторического центра города Калининграда. 1-е место
© Студия 44 и Институт территориального развития Санкт-Петербурга

К востоку и западу от Альтштадта, Королевской горы и Дома Советов здания становятся уже ощутимо крупнее, хотя проектируются все равно в границах исторических кварталов по принципу «нового урбанизма»: один бывший квартал – один дом. Это уже совершенно современная застройка стеклянная, высотная, она будет соседствовать с советскими панельными домами, окружающими центр, ни один из которых не сносится. Современность и исторические силуэты контрастно соседствуют на западном берегу: здесь за рядом островерхих крыш набережной поместили парк аттракционов, длинную «американскую горку» и колесо обозрения. 
Районы «нового урбанизма». Конкурсный проект концепции развития территорий исторического центра города Калининграда. 1-е место
Районы «нового урбанизма». Конкурсный проект концепции развития территорий исторического центра города Калининграда. 1-е место
© Студия 44 и Институт территориального развития Санкт-Петербурга
Районы «нового урбанизма». Конкурсный проект концепции развития территорий исторического центра города Калининграда. 1-е место
Районы «нового урбанизма». Конкурсный проект концепции развития территорий исторического центра города Калининграда. 1-е место
© Студия 44 и Институт территориального развития Санкт-Петербурга

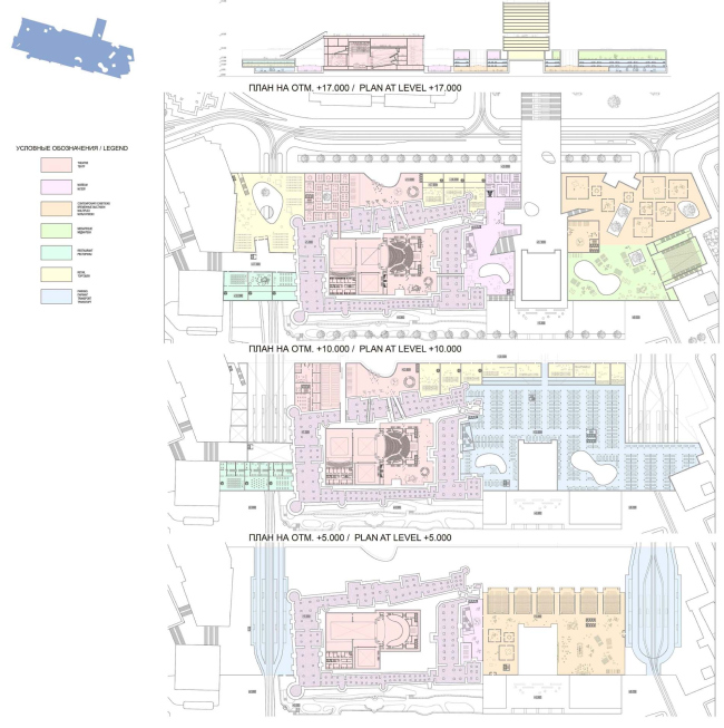
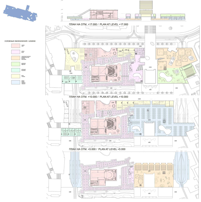
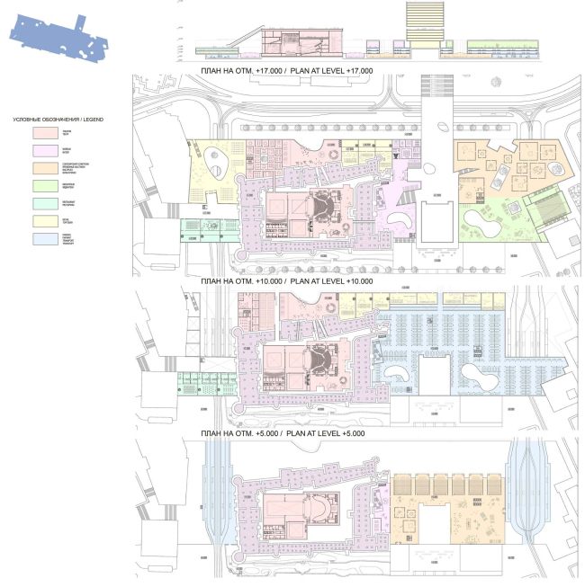
Кульминация сюжета старого-нового – Королевская гора (к слову, это перевод слова Кёнигс-берг с немецкого). Цокольный этаж замка предложено раскопать, примерно как Альтштадт, исследовать, но создать в нем не город, а музей, накрыв остатки стен стеклянной кровлей. Это – главная археологическая достопримечательность, поддержанная фундаментами еще восьми зданий, которые авторы предложили раскрыть и музеефицировать на всей территории центра: два фундамента в Альтшадте, три на острове, ближе к границам рассматриваемой территории раскапываются еще две разрушенные церкви и синагога в Ломзе. 

Во дворе же бывшего замка помещается новое здание театра, теоретически мотивированное тем, что в замке, хотя и не во дворе, когда-то был свой театр. Фасады из полупрозрачных трубок тонированного стекла должны будут выглядеть по-разному при подсветке изнутри, снаружи и в разное время суток. 

Театр, музей замка и Дом Советов утоплены в похожем на сыр, прорезанном двориками, атриумами и лоджиями разной формы массиве общественно-делового и торгово-развлекательного комплекса, который призван, в числе прочего, вновь сделать «гору горой». 
План комплекса музея, театра, Дома Советов и общественно-торгового центра. Конкурсный проект концепции развития территорий исторического центра города Калининграда. 1-е место
План комплекса музея, театра, Дома Советов и общественно-торгового центра. Конкурсный проект концепции развития территорий исторического центра города Калининграда. 1-е место
© Студия 44 и Институт территориального развития Санкт-Петербурга

Как уже было сказано, проект сохраняет все существующие, в том числе все советские, постройки (впрочем так же поступили и все другие финалисты), и, как мы видим, создает множество разных вариантов городской среды, переходя от консервации и регенерации к современному строительству, формируя новые связи и смыслы, прежде всего – логичные переходы от возрождаемых частей исторического города к окружающим современным, что хорошо укладывается в авторское название проекта «Топология непрерывности». Все разворачивается поступательно и последовательно: из раскопанных фундаментов вырастает ретрогород, рядом археологический парк и музей, затем – кварталы со строгим, основанным на исторических прототипах регламентом, и практически здесь же – стеклянные башни, вся связь которых с историей состоит в их опоре на контуры старой парцелляции, и пористый общественный центр, куда, как цветы в губку, воткнуты театр и башня Дома Советов. Можно подумать, что после бомбежек и после того, как центр зарос советским пустырем, в нем откопали зерно, и оно, прорастая в послевоенном городе, дало разные отростки: от почти венецианских обаятельных кварталов до современного стекла-металла. 
***

Мы поговорили о проекте с Никитой Явейном. |вернуться вверх|
 
Архи.ру:
– Хочу задать Вам несколько вопросов о концепции развития Кёнигсберга…
 
Никита Явейн:
– Калининграда, Калининграда.
 
– Калининграда. Что для вас главное в этом проекте?
 
– Задача была достаточно сложной и неопределенной, требовалось вернуть некий дух, жизнь в центр города, который сейчас представляет собой странное, трудноопределимое место: я бы даже советским его не назвал.
 
Мы отталкивались от той идеи, что города способны «прорастать» сквозь новые наслоения. Вот к примеру город Дессау, полностью уничтоженный во время войны и затем застроенный пятиэтажками, – удивительно, но все зоны города: артистический квартал, даже квартал красных фонарей, возродились там на прежних местах при стопроцентной смене населения.

Так вот, здесь мы попытались воссоздать историческую структуру центра города безо всякой стилизации. Предложили некую основу для возрождения его жизни, – разумеется, не точно той, которая там была, это невозможно, да и не нужно. Главный принцип – «проращивание» многовековой истории города и через него воссоздание некоего, прежде всего романтического, образа города, может быть даже более романтического, чем он был на самом деле раньше.
 
– А каким он был?
 
– Вы почитайте Гофмана, он считал Кёнигсберг страшным городом. Прусская военщина, чиновники… Такой затянутый в мундир город, половина населения в нем были военные; на старых фотографиях это хорошо чувствуется.
 
Город на наших картинках оказался «более средневековым», чем многие средневековые европейские города. Важно, что этот образ – другой, не старый и не новый, без попытки буквального воссоздания, – скорее это мостик от старого Кёнигсберга к новому Калининграду. Я бы сказал, что мы попытались через сухую регламентацию выйти на очень романтический образ.
 
Некоторым предложенным организаторами принципам мы не стали следовать – в частности, отказались от застройки острова Кнайпхоф. Район Альтштадт, не уничтоженный, а засыпанный, где под землей сохранились остатки домов, мы предложили раскопать, причем дворы – до отметки самого глубокого подвала, там получатся такие особенные, углубленные пространства, – и выстроить на остатках фундаментов новые дома по очень жесткому регламенту. Здесь мы оговорили все, не только высоту и габариты, но и наклон скатных крыш, процент остекления и, что очень важно, натуральные материалы включая деревянные переплеты окон, чтобы не было современного пластика совсем. Это небольшой район, собственно здесь и возник такой средневековый дух. Предполагается, что строить будут разные люди, поэтому сейчас сложно предсказать, как точно все будет выглядеть в итоге. Скорее всего, в натуре будет разнообразнее, чем сейчас на картинках, – картинки это объемы, «поднятые» визуализатором из фундаментов в рамках наших регламентов. Строить же будет каждый по-своему. 
 
– Застройщикам будут отдавать прямо вот эти миниатюрные участки, составляющие кварталы отдельные дома?
 
– Вероятно да, так можно достичь большего разнообразия, чем отдавая целый квартал, там сразу начинаются превышения, но вообще-то я не вижу проблемы в том, что кто-то будет застраивать несколько участков сразу.
 
– Регламентировали ли Вы отсутствие псевдоисторического декора?
 
– В основном, мы регламентировали только отделочные материалы. Стилевые рекомендации были написаны только для Альтштадта: не прибегать в архитектуре новых зданий к имитации исторических стилей; в колористике новых стен использовать цвета и тона, отличные от исторических. 
 
– Можете ли Вы назвать какие-то аналогии предложенного Вами воссоздания фрагмента города на старых фундаментах?
 
– Как города – не знаю таких аналогий, а отдельных домов множество, это распространенная практика, я на лекциях об этом рассказываю…
 
– Не пугает ли аналогия с прозвучавшим несколько лет назад проектом воссоздания на старых фундаментах церквей Довмонтова города в Пскове?
 
– С Довмонтовым городом, я думаю, здесь ничего общего нет. Там – миниатюрная территория, остатки ценнейших храмов, которые мы утратили бы при реконструкции, и потом, как воссоздавать дома вокруг, они были деревянными, их что, деревянными строить? У нас совершенно другая ситуация, здесь целый город с жилой фунцией, рядовая гражданская застройка. К тому же, повторюсь, мы ничего не воссоздаем, мы откапываем археологию, изучаем, и потом возводим на старых основаниях новые дома по строгому регламенту.
 
В других районах, на территории средневековых городов, окружавших королевский замок, мы предлагаем другие регламенты. В Ломзе сохраняется планировка, а высотность повышается, рядом с Королевским замком появляется новый «сити», высотный и с большим процентом остекления, но основе старой планировки. Замок остается археологической зоной, воссоздавать его бессмысленно, мы накрываем остатки стен стеклянной кровлей, сохраняем и музеефицируем археологическую зону по периметру, а во дворе строим театр. Здесь есть преемственность функции: в замке был концертный зал, но есть и антитеза, двор был пустым пространством, а мы его застраиваем, создаем посреди замка новую «гору», объем которой станет частью «кулис», формирующих вид на реку Преголю. Делаем Королевскую гору горой, словом.