Размещено на портале Архи.ру (www.archi.ru)

13.10.2014

Золотая медаль МАРХИ

Алла Павликова

Публикуем проект обладателя Золотой медали МАРХИ за 2014 год Николая Зайцева и проекты четырех номинантов.

Первое место. Золотая медаль МАРХИ 2014. Николай Зайцев. Дипломный проект «Многофункциональный комплекс в порту Диксон». Вид с птичьего полета
Первое место. Золотая медаль МАРХИ 2014. Николай Зайцев. Дипломный проект «Многофункциональный комплекс в порту Диксон». Вид с птичьего полета

Мы уже рассказывали о десятке лучших проектов МАРХИ, претендующих на Золотую медаль. Десятерых финалистов выбрали по итогам двухэтапного конкурса, в котором участвовали студенты с лучшей успеваемостью. На первом этапе конкурса студенты работали над концепциями стенда-павильона МАРХИ, эти работы можно посмотреть ниже. В рамках второго тура жюри рассматривало дипломные проекты конкурсантов, и выбрало одного победителя – обладателя Золотой медали 2014 года, и четырех финалистов.

Публикуем проекты победителя и финалистов конкурса.

Золотая медаль МАРХИ 2014
Николай Зайцев. Кафедра «Архитектура жилых зданий»
Дипломный проект «Многофункциональный комплекс в порту Диксон»
Руководители: И.М. Ястребова, Ю.П. Сафронов, В.А. Воробьев, О.Ю. Суслова


Первое место. Золотая медаль МАРХИ 2014. Николай Зайцев. Дипломный проект «Многофункциональный комплекс в порту Диксон». Планшет
Первое место. Золотая медаль МАРХИ 2014. Николай Зайцев. Дипломный проект «Многофункциональный комплекс в порту Диксон». Планшет

Николай Зайцев в своем проекте попытался ответить на актуальную задачу восстановления и реорганизации портов акватории Северного морского пути, таких как Нарьян-Мар, Тикси, Певек. В качестве площадки для проектирования была выбрана территория порта Диксон.
Первое место. Золотая медаль МАРХИ 2014. Николай Зайцев. Дипломный проект «Многофункциональный комплекс в порту Диксон». Общий вид
Первое место. Золотая медаль МАРХИ 2014. Николай Зайцев. Дипломный проект «Многофункциональный комплекс в порту Диксон». Общий вид

Первое место. Золотая медаль МАРХИ 2014. Николай Зайцев. Дипломный проект «Многофункциональный комплекс в порту Диксон». Общий вид
Первое место. Золотая медаль МАРХИ 2014. Николай Зайцев. Дипломный проект «Многофункциональный комплекс в порту Диксон». Общий вид

Автор предложил создать современный транспортный узел, а также восстановить некогда существовавшие в этом месте порт и аэропорт. Среди построек арктического порта в проекте вырос величественный архитектурный объем, способный вобрать в себя все функции крупного портового города. За основу взят образ города-моста: гигантский мост связывает остров Диксон с континентом, объединив западную и восточную части России.

Первое место. Золотая медаль МАРХИ 2014. Николай Зайцев. Дипломный проект «Многофункциональный комплекс в порту Диксон».Основные судоходные маршруты
Первое место. Золотая медаль МАРХИ 2014. Николай Зайцев. Дипломный проект «Многофункциональный комплекс в порту Диксон».Основные судоходные маршруты

Первое место. Золотая медаль МАРХИ 2014. Николай Зайцев. Дипломный проект «Многофункциональный комплекс в порту Диксон». Закольцовывание транспортной структуры России
Первое место. Золотая медаль МАРХИ 2014. Николай Зайцев. Дипломный проект «Многофункциональный комплекс в порту Диксон». Закольцовывание транспортной структуры России

Первое место. Золотая медаль МАРХИ 2014. Николай Зайцев. Дипломный проект «Многофункциональный комплекс в порту Диксон». Генеральный план ПГТ Диксон
Первое место. Золотая медаль МАРХИ 2014. Николай Зайцев. Дипломный проект «Многофункциональный комплекс в порту Диксон». Генеральный план ПГТ Диксон

Первое место. Золотая медаль МАРХИ 2014. Николай Зайцев. Дипломный проект «Многофункциональный комплекс в порту Диксон». Идейное обоснование проекта
Первое место. Золотая медаль МАРХИ 2014. Николай Зайцев. Дипломный проект «Многофункциональный комплекс в порту Диксон». Идейное обоснование проекта

Первое место. Золотая медаль МАРХИ 2014. Николай Зайцев. Дипломный проект «Многофункциональный комплекс в порту Диксон». Функциональное зонирование
Первое место. Золотая медаль МАРХИ 2014. Николай Зайцев. Дипломный проект «Многофункциональный комплекс в порту Диксон». Функциональное зонирование

Большое внимание в проекте уделено вопросу энергообеспечения города и даже региона: альтернативные источники энергии, повторное использование воды. Резервными источниками водоснабжения должны служить два малых водохранилища.

Первое место. Золотая медаль МАРХИ 2014. Николай Зайцев. Дипломный проект «Многофункциональный комплекс в порту Диксон». Схема энерго- и водообеспечения
Первое место. Золотая медаль МАРХИ 2014. Николай Зайцев. Дипломный проект «Многофункциональный комплекс в порту Диксон». Схема энерго- и водообеспечения

Первое место. Золотая медаль МАРХИ 2014. Николай Зайцев. Дипломный проект «Многофункциональный комплекс в порту Диксон». Приливные электростанции
Первое место. Золотая медаль МАРХИ 2014. Николай Зайцев. Дипломный проект «Многофункциональный комплекс в порту Диксон». Приливные электростанции

Первое место. Золотая медаль МАРХИ 2014. Николай Зайцев. Дипломный проект «Многофункциональный комплекс в порту Диксон». Прибрежные ветровые электростанции
Первое место. Золотая медаль МАРХИ 2014. Николай Зайцев. Дипломный проект «Многофункциональный комплекс в порту Диксон». Прибрежные ветровые электростанции

Первое место. Золотая медаль МАРХИ 2014. Николай Зайцев. Дипломный проект «Многофункциональный комплекс в порту Диксон». Система водоочистки
Первое место. Золотая медаль МАРХИ 2014. Николай Зайцев. Дипломный проект «Многофункциональный комплекс в порту Диксон». Система водоочистки

Первое место. Золотая медаль МАРХИ 2014. Николай Зайцев. Дипломный проект «Многофункциональный комплекс в порту Диксон». Интерьер
Первое место. Золотая медаль МАРХИ 2014. Николай Зайцев. Дипломный проект «Многофункциональный комплекс в порту Диксон». Интерьер

Первое место. Золотая медаль МАРХИ 2014. Николай Зайцев. Дипломный проект «Многофункциональный комплекс в порту Диксон». Интерьер
Первое место. Золотая медаль МАРХИ 2014. Николай Зайцев. Дипломный проект «Многофункциональный комплекс в порту Диксон». Интерьер

Первое место. Золотая медаль МАРХИ 2014. Николай Зайцев. Дипломный проект «Многофункциональный комплекс в порту Диксон». Схемы планов и поперечного разреза
Первое место. Золотая медаль МАРХИ 2014. Николай Зайцев. Дипломный проект «Многофункциональный комплекс в порту Диксон». Схемы планов и поперечного разреза

Первое место. Золотая медаль МАРХИ 2014. Николай Зайцев. Дипломный проект «Многофункциональный комплекс в порту Диксон». Схема фасада
Первое место. Золотая медаль МАРХИ 2014. Николай Зайцев. Дипломный проект «Многофункциональный комплекс в порту Диксон». Схема фасада

Второе место. Диплом 1 степени
Ольга Дзудцева. Кафедра «Архитектура жилых зданий»
Дипломный проект «Молодежный центр «Артфабрика». Москва»
Руководители: А.Р. Воронцов, Т.Б. Набокова, М.Е. Троян, О.Ю. Суслова

Второе место. Диплом 1 степени. Ольга Дзудцева. Дипломный проект «Молодежный центр «Артфабрика». Москва»
Второе место. Диплом 1 степени. Ольга Дзудцева. Дипломный проект «Молодежный центр «Артфабрика». Москва»
Участок проектирования расположен в Басманном районе Москвы, на территории Арт-квартала, и согласно проекту его развития, здесь должен появиться новый культурный центр.
Второе место. Диплом 1 степени. Ольга Дзудцева. Дипломный проект «Молодежный центр «Артфабрика». Москва». Существующее положение и градостроительное предложение
Второе место. Диплом 1 степени. Ольга Дзудцева. Дипломный проект «Молодежный центр «Артфабрика». Москва». Существующее положение и градостроительное предложение
Второе место. Диплом 1 степени. Ольга Дзудцева. Дипломный проект «Молодежный центр «Артфабрика». Москва»
Второе место. Диплом 1 степени. Ольга Дзудцева. Дипломный проект «Молодежный центр «Артфабрика». Москва»

Проект предлагает открыть данную площадку для свободного доступа горожан, пронизав ее многочисленными пешеходными маршрутами, которые в настоящее время вынужденно выстраиваются по неудобным обходным путям. 
Второе место. Диплом 1 степени. Ольга Дзудцева. Дипломный проект «Молодежный центр «Артфабрика». Москва». Формообразование
Второе место. Диплом 1 степени. Ольга Дзудцева. Дипломный проект «Молодежный центр «Артфабрика». Москва». Формообразование
Второе место. Диплом 1 степени. Ольга Дзудцева. Дипломный проект «Молодежный центр «Артфабрика». Москва»
Второе место. Диплом 1 степени. Ольга Дзудцева. Дипломный проект «Молодежный центр «Артфабрика». Москва»

Откликаясь на свое окружение, комплекс перенимает не только масштаб исторической застройки, планировочное решение с периметральным построением корпусов, следующих четко вдоль ограничивающих участок улиц и переулков – это тоже дань контексту. При этом архитектура здания исключительно современная – с крупными проемами остекления, консольными выступами, сбитым ритмом фасадов и минималистичной отделкой.
Второе место. Диплом 1 степени. Ольга Дзудцева. Дипломный проект «Молодежный центр «Артфабрика». Москва». Программа комплекса
Второе место. Диплом 1 степени. Ольга Дзудцева. Дипломный проект «Молодежный центр «Артфабрика». Москва». Программа комплекса
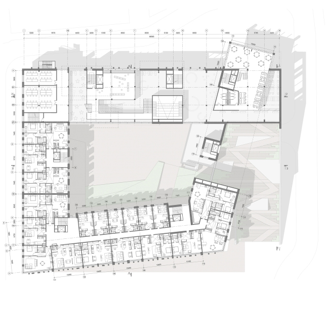
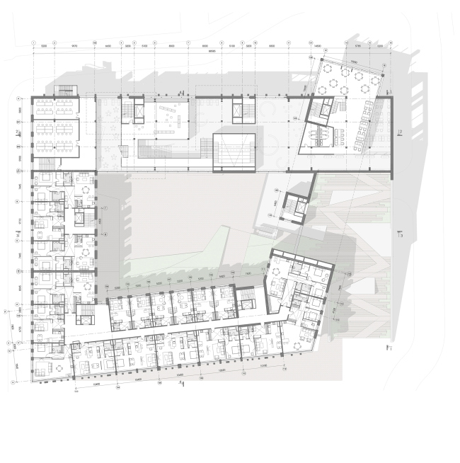
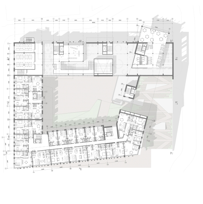
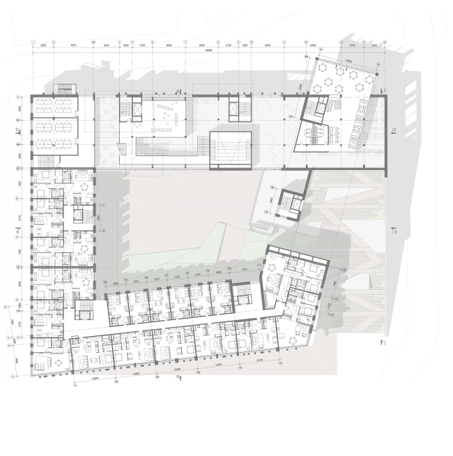
Второе место. Диплом 1 степени. Ольга Дзудцева. Дипломный проект «Молодежный центр «Артфабрика». Москва». Планы
Второе место. Диплом 1 степени. Ольга Дзудцева. Дипломный проект «Молодежный центр «Артфабрика». Москва». Планы
Второе место. Диплом 1 степени. Ольга Дзудцева. Дипломный проект «Молодежный центр «Артфабрика». Москва». Разрез 1-1.
Второе место. Диплом 1 степени. Ольга Дзудцева. Дипломный проект «Молодежный центр «Артфабрика». Москва». Разрез 1-1.

Сформированный корпусами большой внутренний двор служит общественным городским пространством с площадками для занятий танцами и катания на скейтах, бассейнами и зонами отдыха у воды. К внутренней площади обращены красочные витрины магазинов и творческих мастерских Fab Lab. 
Второе место. Диплом 1 степени. Ольга Дзудцева. Дипломный проект «Молодежный центр «Артфабрика». Москва». Разрез 2-2
Второе место. Диплом 1 степени. Ольга Дзудцева. Дипломный проект «Молодежный центр «Артфабрика». Москва». Разрез 2-2
Второе место. Диплом 1 степени. Ольга Дзудцева. Дипломный проект «Молодежный центр «Артфабрика». Москва»
Второе место. Диплом 1 степени. Ольга Дзудцева. Дипломный проект «Молодежный центр «Артфабрика». Москва»
Второе место. Диплом 1 степени. Ольга Дзудцева. Дипломный проект «Молодежный центр «Артфабрика». Москва»
Второе место. Диплом 1 степени. Ольга Дзудцева. Дипломный проект «Молодежный центр «Артфабрика». Москва»
Второе место. Диплом 1 степени. Ольга Дзудцева. Дипломный проект «Молодежный центр «Артфабрика». Москва». Восточный фасад
Второе место. Диплом 1 степени. Ольга Дзудцева. Дипломный проект «Молодежный центр «Артфабрика». Москва». Восточный фасад
Второе место. Диплом 1 степени. Ольга Дзудцева. Дипломный проект «Молодежный центр «Артфабрика». Москва»
Второе место. Диплом 1 степени. Ольга Дзудцева. Дипломный проект «Молодежный центр «Артфабрика». Москва»
Второе место. Диплом 1 степени. Ольга Дзудцева. Дипломный проект «Молодежный центр «Артфабрика». Москва»
Второе место. Диплом 1 степени. Ольга Дзудцева. Дипломный проект «Молодежный центр «Артфабрика». Москва»
Второе место. Диплом 1 степени. Ольга Дзудцева. Дипломный проект «Молодежный центр «Артфабрика». Москва»
Второе место. Диплом 1 степени. Ольга Дзудцева. Дипломный проект «Молодежный центр «Артфабрика». Москва»

Третье место, Диплом 2 степени
Даниил Кипикян. Кафедра «Архитектура жилых зданий»
Дипломный проект «Жилой квартал на Серебрянической набережной. Москва»
Руководители: А.Р. Воронцов, Т.Б. Набокова, М.Е. Троян, О.Ю. Суслова

Третье место, Диплом 2 степени. Даниил Кипикян. 
Дипломный проект «Жилой квартал на Серебрянической набережной. Москва»
Третье место, Диплом 2 степени. Даниил Кипикян. Дипломный проект «Жилой квартал на Серебрянической набережной. Москва»
Проект также, как и предыдущий, выполнен в рамках концепции Арт-квартала, предполагающей преобразование обширной территории вдоль Яузы в городское пространство нового качества с оживленной уличной жизнью и комфортной средой.
Третье место, Диплом 2 степени. Даниил Кипикян. 
Дипломный проект «Жилой квартал на Серебрянической набережной. Москва». Расположение участка в городе и генплан
Третье место, Диплом 2 степени. Даниил Кипикян. Дипломный проект «Жилой квартал на Серебрянической набережной. Москва». Расположение участка в городе и генплан

Участок окружает довольно противоречивая застройка: с одной стороны – дореволюционные здания старой Москвы, с другой – крупномасштабные дома вдоль набережной. Объемное решение проектируемого здания призвано сформировать мягкий переход от одного масштаба к другому.
Третье место, Диплом 2 степени. Даниил Кипикян.
Дипломный проект «Жилой квартал на Серебрянической набережной. Москва». Развертка по набережной
Третье место, Диплом 2 степени. Даниил Кипикян. Дипломный проект «Жилой квартал на Серебрянической набережной. Москва». Развертка по набережной
Третье место, Диплом 2 степени. Даниил Кипикян. 
Дипломный проект «Жилой квартал на Серебрянической набережной. Москва». Формообразование. Видовые точки на набережной.
Третье место, Диплом 2 степени. Даниил Кипикян. Дипломный проект «Жилой квартал на Серебрянической набережной. Москва». Формообразование. Видовые точки на набережной.

В результате вдоль реки появляется квартал, объемно-пространственное решение и сложный силуэт которого обоснован, в первую очередь, необходимостью сохранить виды на расположенные рядом колокольню и церковь. Сдержанные фасады, отделанные клинкерным кирпичом в сочетании с шпонированными композитными панелями, подчеркнуты вертикальными «висячими садами», устроенными на выразительных уступах стен.
Третье место, Диплом 2 степени. Даниил Кипикян. 
Дипломный проект «Жилой квартал на Серебрянической набережной. Москва». Вид с набережной с раскрытием на колокольню
Третье место, Диплом 2 степени. Даниил Кипикян. Дипломный проект «Жилой квартал на Серебрянической набережной. Москва». Вид с набережной с раскрытием на колокольню
Третье место, Диплом 2 степени. Даниил Кипикян. 
Дипломный проект «Жилой квартал на Серебрянической набережной. Москва». Городское пространтсво внутри квартала
Третье место, Диплом 2 степени. Даниил Кипикян. Дипломный проект «Жилой квартал на Серебрянической набережной. Москва». Городское пространтсво внутри квартала
Третье место, Диплом 2 степени. Даниил Кипикян. 
Дипломный проект «Жилой квартал на Серебрянической набережной. Москва». Уличный фасад
Третье место, Диплом 2 степени. Даниил Кипикян. Дипломный проект «Жилой квартал на Серебрянической набережной. Москва». Уличный фасад
Третье место, Диплом 2 степени. Даниил Кипикян. 
Дипломный проект «Жилой квартал на Серебрянической набережной. Москва». Фасад, обращенный к реке
Третье место, Диплом 2 степени. Даниил Кипикян. Дипломный проект «Жилой квартал на Серебрянической набережной. Москва». Фасад, обращенный к реке
Третье место, Диплом 2 степени. Даниил Кипикян. 
Дипломный проект «Жилой квартал на Серебрянической набережной. Москва». Функциональная программа комплекса.
Третье место, Диплом 2 степени. Даниил Кипикян. Дипломный проект «Жилой квартал на Серебрянической набережной. Москва». Функциональная программа комплекса.

Планировка комплекса предлагает три различные жилые типологии: традиционные квартиры, квартиры со встроенными садами и кохаузинг. Последней типологии отданы четыре этажа, выходящие в общие галереи. Вдоль них расположены игровая комната, гостиная, библиотека-кабинет, а также терраса и сад на уровне третьего этажа. Под квартиры с садами отданы два корпуса, обращенные к реке.
Третье место, Диплом 2 степени. Даниил Кипикян. 
Дипломный проект «Жилой квартал на Серебрянической набережной. Москва». Квартиры с садами
Третье место, Диплом 2 степени. Даниил Кипикян. Дипломный проект «Жилой квартал на Серебрянической набережной. Москва». Квартиры с садами
Третье место, Диплом 2 степени. Даниил Кипикян. 
Дипломный проект «Жилой квартал на Серебрянической набережной. Москва». Структура квартир с садами
Третье место, Диплом 2 степени. Даниил Кипикян. Дипломный проект «Жилой квартал на Серебрянической набережной. Москва». Структура квартир с садами
Третье место, Диплом 2 степени. Даниил Кипикян. 
Дипломный проект «Жилой квартал на Серебрянической набережной. Москва». Галерея в гостинице
Третье место, Диплом 2 степени. Даниил Кипикян. Дипломный проект «Жилой квартал на Серебрянической набережной. Москва». Галерея в гостинице

Здание вдоль Яузской улицы предлагается реконструировать под размещение в нем трехзвездочной гостиницы.
Третье место, Диплом 2 степени. Даниил Кипикян. 
Дипломный проект «Жилой квартал на Серебрянической набережной. Москва»
Третье место, Диплом 2 степени. Даниил Кипикян. Дипломный проект «Жилой квартал на Серебрянической набережной. Москва»
Третье место, Диплом 2 степени. Даниил Кипикян. 
Дипломный проект «Жилой квартал на Серебрянической набережной. Москва»
Третье место, Диплом 2 степени. Даниил Кипикян. Дипломный проект «Жилой квартал на Серебрянической набережной. Москва»
Третье место, Диплом 2 степени. Даниил Кипикян. 
Дипломный проект «Жилой квартал на Серебрянической набережной. Москва»
Третье место, Диплом 2 степени. Даниил Кипикян. Дипломный проект «Жилой квартал на Серебрянической набережной. Москва»
Третье место, Диплом 2 степени. Даниил Кипикян.
Дипломный проект «Жилой квартал на Серебрянической набережной. Москва»
Третье место, Диплом 2 степени. Даниил Кипикян. Дипломный проект «Жилой квартал на Серебрянической набережной. Москва»
Третье место, Диплом 2 степени. Даниил Кипикян. 
Дипломный проект «Жилой квартал на Серебрянической набережной. Москва»
Третье место, Диплом 2 степени. Даниил Кипикян. Дипломный проект «Жилой квартал на Серебрянической набережной. Москва»

Четвертое место, Диплом 2 степени
Елизавета Лопатина. Кафедра «Архитектура жилых зданий»
Дипломный проект «Технологический институт. Москва»
Руководители: Б.А. Шабунин , Г.В. Лебедева, Д.А. Карелин, Ю.А. Лобастова, Л.А. Мунчак

Четвертое место, Диплом 2 степени. Елизавета Лопатина. Дипломный проект «Технологический институт. Москва»
Четвертое место, Диплом 2 степени. Елизавета Лопатина. Дипломный проект «Технологический институт. Москва»
Участок расположен на территории  проектируемого микрорайона в районе Отрадное, между главным пешеходным бульваром и парком «Отрада».
Четвертое место, Диплом 2 степени. Елизавета Лопатина.  Дипломный проект «Технологический институт. Москва». Положение участка проектируемого микрорайона в Москве
Четвертое место, Диплом 2 степени. Елизавета Лопатина. Дипломный проект «Технологический институт. Москва». Положение участка проектируемого микрорайона в Москве
Четвертое место, Диплом 2 степени. Елизавета Лопатина. Дипломный проект «Технологический институт. Москва». Проектируемый микрорайон
Четвертое место, Диплом 2 степени. Елизавета Лопатина. Дипломный проект «Технологический институт. Москва». Проектируемый микрорайон

В таком окружении предлагается возвести белоснежное здание, в плане напоминающее гребень с крупными зубцами. Отдельные корпуса переменной этажности связывает общая стилобатная часть с наклонной пешеходной и озелененной кровлей. Из нее вырастают красивые, чуть криволинейные в плане, протяженные «зубцы», торцы которых полностью остеклены.
Четвертое место, Диплом 2 степени. Елизавета Лопатина. Дипломный проект «Технологический институт. Москва». Расположение объема института на участке
Четвертое место, Диплом 2 степени. Елизавета Лопатина. Дипломный проект «Технологический институт. Москва». Расположение объема института на участке

Белый фасад комплекса, обращенный лицом к городу, прорезан узкими высокими окнами, смещенными друг относительно друга в духе матрицы.
Четвертое место, Диплом 2 степени. Елизавета Лопатина. Дипломный проект «Технологический институт. Москва». Общий вид
Четвертое место, Диплом 2 степени. Елизавета Лопатина. Дипломный проект «Технологический институт. Москва». Общий вид
Четвертое место, Диплом 2 степени. Елизавета Лопатина. Дипломный проект «Технологический институт. Москва». Вид со стороны парка
Четвертое место, Диплом 2 степени. Елизавета Лопатина. Дипломный проект «Технологический институт. Москва». Вид со стороны парка

Большинство общественных и административных функций института сосредоточено на двух первых этажах, большая же часть площадей отдана непосредственно под учебные аудитории.
Четвертое место, Диплом 2 степени. Елизавета Лопатина. Дипломный проект «Технологический институт. Москва». Фасад со стороны пешеходной улицы
Четвертое место, Диплом 2 степени. Елизавета Лопатина. Дипломный проект «Технологический институт. Москва». Фасад со стороны пешеходной улицы
Четвертое место, Диплом 2 степени. Елизавета Лопатина. Дипломный проект «Технологический институт. Москва». Развертка
Четвертое место, Диплом 2 степени. Елизавета Лопатина. Дипломный проект «Технологический институт. Москва». Развертка
Четвертое место, Диплом 2 степени. Елизавета Лопатина. Дипломный проект «Технологический институт. Москва». План на уровне платформы 2-го этажа, совмещенный с генпланом
Четвертое место, Диплом 2 степени. Елизавета Лопатина. Дипломный проект «Технологический институт. Москва». План на уровне платформы 2-го этажа, совмещенный с генпланом
Четвертое место, Диплом 2 степени. Елизавета Лопатина. Дипломный проект «Технологический институт. Москва». План первого этажа
Четвертое место, Диплом 2 степени. Елизавета Лопатина. Дипломный проект «Технологический институт. Москва». План первого этажа
Четвертое место, Диплом 2 степени. Елизавета Лопатина. Дипломный проект «Технологический институт. Москва». Продольный разрез
Четвертое место, Диплом 2 степени. Елизавета Лопатина. Дипломный проект «Технологический институт. Москва». Продольный разрез
Четвертое место, Диплом 2 степени. Елизавета Лопатина. Дипломный проект «Технологический институт. Москва». Поперечный разрез
Четвертое место, Диплом 2 степени. Елизавета Лопатина. Дипломный проект «Технологический институт. Москва». Поперечный разрез

Пятое место, Диплом 3 степени
Евгения Мирошкина. Кафедра «Архитектура жилых зданий»
Дипломный проект «Многофункциональный комплекс на Серебрянической набережной. Москва»
Руководители: А.Р. Воронцов, Т.Б. Набокова, М.Е. Троян, О.Ю. Суслова

Пятое место, Диплом 3 степени. Евгения Мирошкина.
Дипломный проект «Многофункциональный комплекс на Серебрянической набережной. Москва»
Пятое место, Диплом 3 степени. Евгения Мирошкина. Дипломный проект «Многофункциональный комплекс на Серебрянической набережной. Москва»
Участок площадью 0,8 га расположен на Серебрянической набережной реки Яуза.
Пятое место, Диплом 3 степени. Евгения Мирошкина.
Дипломный проект «Многофункциональный комплекс на Серебрянической набережной. Москва»
Пятое место, Диплом 3 степени. Евгения Мирошкина. Дипломный проект «Многофункциональный комплекс на Серебрянической набережной. Москва»
Пятое место, Диплом 3 степени. Евгения Мирошкина. 
Дипломный проект «Многофункциональный комплекс на Серебрянической набережной. Москва»
Пятое место, Диплом 3 степени. Евгения Мирошкина. Дипломный проект «Многофункциональный комплекс на Серебрянической набережной. Москва»

Здание имеет сложный силуэт, его этажность варьируется от 1 до 9 этажей. Помимо жилья, комплекс включает крупный культурный центр с  ресторанами, галереями и шоу-румами. На его озелененной эксплуатируемой кровле разместился пляж для жителей комплекса. При этом жилая часть максимально изолирована от общественной. «Стыковка» происходит лишь с восточной стороны, где жилье нависает крупной консолью над амфитеатром.
Пятое место, Диплом 3 степени. Евгения Мирошкина. 
Дипломный проект «Многофункциональный комплекс на Серебрянической набережной. Москва»
Пятое место, Диплом 3 степени. Евгения Мирошкина. Дипломный проект «Многофункциональный комплекс на Серебрянической набережной. Москва»
Пятое место, Диплом 3 степени. Евгения Мирошкина. 
Дипломный проект «Многофункциональный комплекс на Серебрянической набережной. Москва»
Пятое место, Диплом 3 степени. Евгения Мирошкина. Дипломный проект «Многофункциональный комплекс на Серебрянической набережной. Москва»
Пятое место, Диплом 3 степени.Евгения Мирошкина. 
Дипломный проект «Многофункциональный комплекс на Серебрянической набережной. Москва»
Пятое место, Диплом 3 степени.Евгения Мирошкина. Дипломный проект «Многофункциональный комплекс на Серебрянической набережной. Москва»
Пятое место, Диплом 3 степени. Евгения Мирошкина. 
Дипломный проект «Многофункциональный комплекс на Серебрянической набережной. Москва». Генплан
Пятое место, Диплом 3 степени. Евгения Мирошкина. Дипломный проект «Многофункциональный комплекс на Серебрянической набережной. Москва». Генплан

Предложенное объемно-пространственное решение позволило сформировать центральную общественную площадь, связанную с городским сквером, расположенным на набережной. «Зеленый пояс» от сквера ведет к залам временных экспозиций и летнему кинотеатру. Весь маршрут насыщен разнообразными открытыми площадками для выступлений, выставок и организации досуга.
Пятое место, Диплом 3 степени. Евгения Мирошкина.
Дипломный проект «Многофункциональный комплекс на Серебрянической набережной. Москва». Главный фасад
Пятое место, Диплом 3 степени. Евгения Мирошкина. Дипломный проект «Многофункциональный комплекс на Серебрянической набережной. Москва». Главный фасад
Пятое место, Диплом 3 степени. Евгения Мирошкина.
Дипломный проект «Многофункциональный комплекс на Серебрянической набережной. Москва». Функциональная программа
Пятое место, Диплом 3 степени. Евгения Мирошкина. Дипломный проект «Многофункциональный комплекс на Серебрянической набережной. Москва». Функциональная программа
Пятое место, Диплом 3 степени. Евгения Мирошкина. 
Дипломный проект «Многофункциональный комплекс на Серебрянической набережной. Москва»
Пятое место, Диплом 3 степени. Евгения Мирошкина. Дипломный проект «Многофункциональный комплекс на Серебрянической набережной. Москва»
Пятое место, Диплом 3 степени. Евгения Мирошкина.  
Дипломный проект «Многофункциональный комплекс на Серебрянической набережной. Москва»
Пятое место, Диплом 3 степени. Евгения Мирошкина. Дипломный проект «Многофункциональный комплекс на Серебрянической набережной. Москва»
Пятое место, Диплом 3 степени. Евгения Мирошкина. 
Дипломный проект «Многофункциональный комплекс на Серебрянической набережной. Москва»
Пятое место, Диплом 3 степени. Евгения Мирошкина. Дипломный проект «Многофункциональный комплекс на Серебрянической набережной. Москва»
Пятое место, Диплом 3 степени. Евгения Мирошкина. 
Дипломный проект «Многофункциональный комплекс на Серебрянической набережной. Москва»
Пятое место, Диплом 3 степени. Евгения Мирошкина. Дипломный проект «Многофункциональный комплекс на Серебрянической набережной. Москва»
Пятое место, Диплом 3 степени. Евгения Мирошкина.
Дипломный проект «Многофункциональный комплекс на Серебрянической набережной. Москва»
Пятое место, Диплом 3 степени. Евгения Мирошкина. Дипломный проект «Многофункциональный комплекс на Серебрянической набережной. Москва»
Пятое место, Диплом 3 степени. Евгения Мирошкина.
Дипломный проект «Многофункциональный комплекс на Серебрянической набережной. Москва»
Пятое место, Диплом 3 степени. Евгения Мирошкина. Дипломный проект «Многофункциональный комплекс на Серебрянической набережной. Москва»
Пятое место, Диплом 3 степени. Евгения Мирошкина.
Дипломный проект «Многофункциональный комплекс на Серебрянической набережной. Москва»
Пятое место, Диплом 3 степени. Евгения Мирошкина. Дипломный проект «Многофункциональный комплекс на Серебрянической набережной. Москва»
***
Проекты первого тура конкурса
На первом этапе конкурса номинанты работали над концепциями стенда-павильона МАРХИ, – такой стенд институт мог бы использовать в будущем для участия в выставках и фестивалях. Участники конкурса в течение четырех дней работали в аудитории над макетом и эскизом в ручной графической технике; работа в графическом редакторе на компьютере стала домашним заданием участников.
Пятое место, Диплом 3 степени. Евгения Мирошкина.
Дипломный проект «Многофункциональный комплекс на Серебрянической набережной. Москва»
Пятое место, Диплом 3 степени. Евгения Мирошкина. Дипломный проект «Многофункциональный комплекс на Серебрянической набережной. Москва»
Концепция Стенда-павильона МАРХИ. Ольга Дзудцева
Концепция Стенда-павильона МАРХИ. Ольга Дзудцева
Концепция Стенда-павильона МАРХИ. Николай Зайцев
Концепция Стенда-павильона МАРХИ. Николай Зайцев
Концепция Стенда-павильона МАРХИ. Даниил Кипикян
Концепция Стенда-павильона МАРХИ. Даниил Кипикян
Концепция Стенда-павильона МАРХИ. Елизавета Лопатина
Концепция Стенда-павильона МАРХИ. Елизавета Лопатина

Победителей выбирал художественный совет по присуждению Золотой медали МАРХИ  под председательством ректора института Дмитрия Швидковского, также в состав жюри и экспертов вошли преподаватели и руководители кафедр института. Куратором конкурса выступила ученый секретарь худсовета Ксения Сулим.
 
Концепция Стенда-павильона МАРХИ. Евгения Мирошкина
Концепция Стенда-павильона МАРХИ. Евгения Мирошкина