Размещено на портале Архи.ру (www.archi.ru)

09.09.2014

Герои премии Holcim / 2014

Алла Павликова
Мастерская:
Holcim

Золото досталось испанцам, но среди награжденных есть и россияне. Премию Holcim европейского региона впервые вручали в Москве.

Пятого сентября на пресс-конференции в здании сталинской высотки гостиницы «Украина» были объявлены имена победителей регионального этапа международного конкурса Holcim Awards 2014. В Колонном зале гостиницы ранним солнечным утром собрались все авторы проектов победителей в регионе Европа.

Пресс-конференция в колонном зале гостиницы «Украина». Фотография Аллы Павликовой
Пресс-конференция в колонном зале гостиницы «Украина». Фотография Аллы Павликовой
Экспозиция проектов-победителей. Фотография Аллы Павликовой
Экспозиция проектов-победителей. Фотография Аллы Павликовой

Конкурс, нацеленный на выявление и продвижение последних тенденций в области устойчивого строительства, проводится в пяти регионах мира один раз в три года по инициативе фонда Holcim Foundation for Sustainable Construction, основанном в 2003 г. в Цюрихе. В этом году на европейский этап конкурса поступило свыше четырех тысяч заявок, две с половиной из них, выполненных в полном соответствии с заданием конкурса, были рассмотрены и оценены независимым жюри во главе с французом Жаном-Филиппом Вассалем. Авторы двенадцати лучших работ разделили между собой общий призовой фонд в 300 тысяч долларов, и приехали в Москву на церемонию награждения, которая прошла днем раньше в здании театра «Школа драматического искусства».
Награждение победителей конкурса Holcim Awards 2014 в театре «Школа драматического искусства». ©www.holcimfoundation.org
Награждение победителей конкурса Holcim Awards 2014 в театре «Школа драматического искусства». ©www.holcimfoundation.org

Главным критерием оценки проектов стало их соответствие принципам устойчивого строительства: экологичность, социальная и экономическая эффективность, а также высокие архитектурные качества и возможность повторного применения идей. Бернард Фонтана, один из членов жюри, отметил важность инновационных находок в проектах при внимательном отношении к наследию, а также их диалог с окружающей средой. По его словам, на сегодняшний день пока не создано таких работ, которые соответствовали бы всем указанным критериям на 100%. Однако жюри всегда отдает предпочтение тем из них, которые максимально приблизились к идеалу – хотя бы по некоторым, основным параметрам. В результате такого подхода сформировалась весьма оптимистичная статистика: более половины проектов, представленных за все годы в рамках премии уже реализованы или находятся в стадии строительства.
Бернард Фонтана, член жюри конкурса. Фотография Аллы Павликовой
Бернард Фонтана, член жюри конкурса. Фотография Аллы Павликовой

Проекты-победители прессе представили их авторы. 
 
Золото
Проект Anthropic Park в Салине-Ионике, Италия
Grupo aranea и AutonomeForme
Франсиско Лейва (Francisco Leiva) из Grupo aranea. Фотография Аллы Павликовой
Франсиско Лейва (Francisco Leiva) из Grupo aranea. Фотография Аллы Павликовой
Лусия Пьерро (Lucia Pierro) из AutonomeForme. Фотография Аллы Павликовой
Лусия Пьерро (Lucia Pierro) из AutonomeForme. Фотография Аллы Павликовой

Проект направлен на восстановление окружающей среды в одном из районов на побережье южной Италии, который пришел в упадок в связи с деятельностью многочисленных промышленных объектов. Авторы предложили создать на этом месте новый экологический заповедник, причем минимально вмешиваясь в природу. С этой целью была разработана серьезная программа по восстановлению естественного баланса среды, формированию подвижной экосистемы с бережным отношением к флоре и фауне. Особое внимание уделялось вопросу миграции птиц.

Жюри очень высоко оценило роль архитектурных решений и находки в области ландшафтного дизайна, а также отметило важность проекта для экологии всего района.

Золотая награда. Проект Anthropic Park в Салине-Ионике, Италия. Авторы Grupo aranea и AutonomeForme. Материалы предоставлены организаторами конкурса
Золотая награда. Проект Anthropic Park в Салине-Ионике, Италия. Авторы Grupo aranea и AutonomeForme. Материалы предоставлены организаторами конкурса

Золотая награда. Проект Anthropic Park в Салине-Ионике, Италия. Авторы Grupo aranea и AutonomeForme. Материалы предоставлены организаторами конкурса
Золотая награда. Проект Anthropic Park в Салине-Ионике, Италия. Авторы Grupo aranea и AutonomeForme. Материалы предоставлены организаторами конкурса

Золотая награда. Проект Anthropic Park в Салине-Ионике, Италия. Авторы Grupo aranea и AutonomeForme. Материалы предоставлены организаторами конкурса
Золотая награда. Проект Anthropic Park в Салине-Ионике, Италия. Авторы Grupo aranea и AutonomeForme. Материалы предоставлены организаторами конкурса

Золотая награда. Проект Anthropic Park в Салине-Ионике, Италия. Авторы Grupo aranea и AutonomeForme. Материалы предоставлены организаторами конкурса
Золотая награда. Проект Anthropic Park в Салине-Ионике, Италия. Авторы Grupo aranea и AutonomeForme. Материалы предоставлены организаторами конкурса

Золотая награда. Проект Anthropic Park в Салине-Ионике, Италия. Авторы Grupo aranea и AutonomeForme. Материалы предоставлены организаторами конкурса
Золотая награда. Проект Anthropic Park в Салине-Ионике, Италия. Авторы Grupo aranea и AutonomeForme. Материалы предоставлены организаторами конкурса

Золотая награда. Проект Anthropic Park в Салине-Ионике, Италия. Авторы Grupo aranea и AutonomeForme. Материалы предоставлены организаторами конкурса
Золотая награда. Проект Anthropic Park в Салине-Ионике, Италия. Авторы Grupo aranea и AutonomeForme. Материалы предоставлены организаторами конкурса

Золотая награда. Проект Anthropic Park в Салине-Ионике, Италия. Авторы Grupo aranea и AutonomeForme. Материалы предоставлены организаторами конкурса
Золотая награда. Проект Anthropic Park в Салине-Ионике, Италия. Авторы Grupo aranea и AutonomeForme. Материалы предоставлены организаторами конкурса
***

Серебро

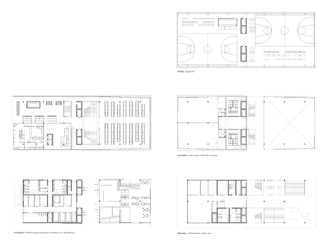
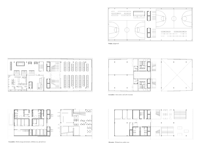
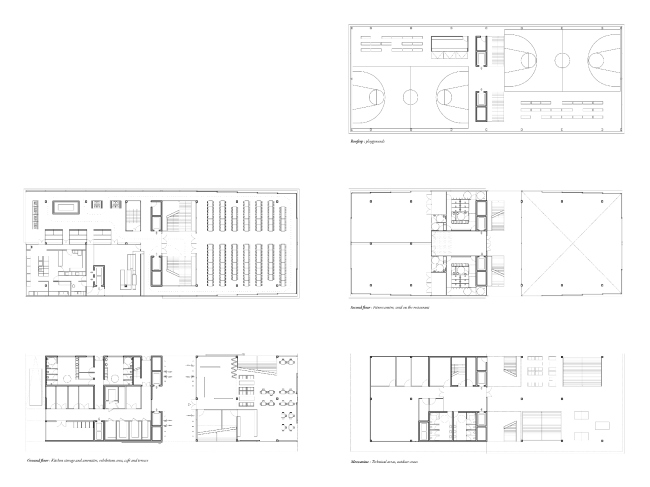
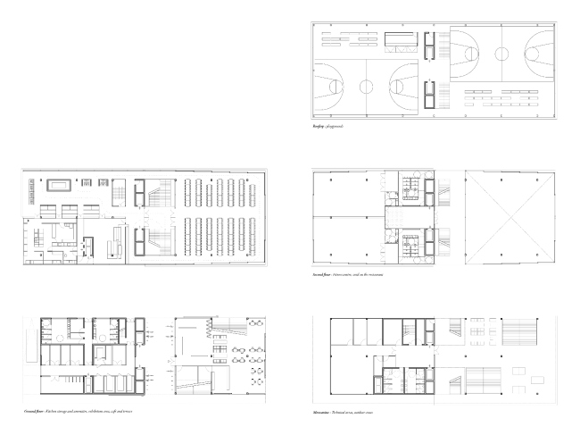
Проект многоцелевого здания университета в Париже, Франция
Бюро Muoto architects
Gilles Delalex из компании Muoto architects. Фотография Аллы Павликовой
Gilles Delalex из компании Muoto architects. Фотография Аллы Павликовой

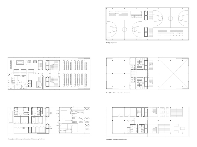
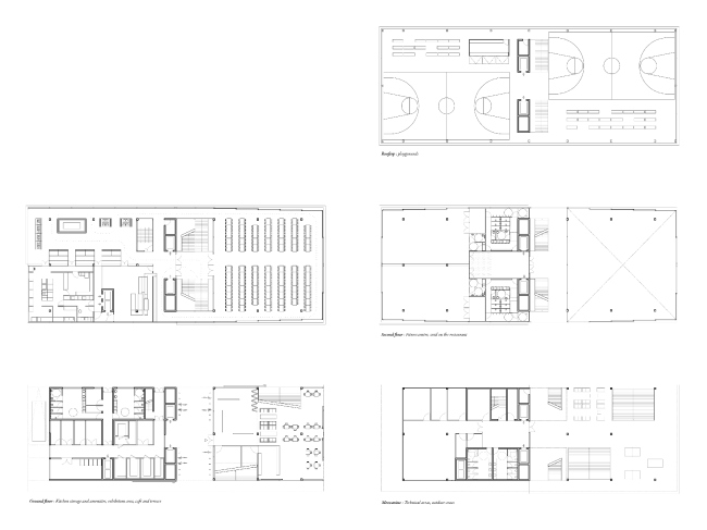
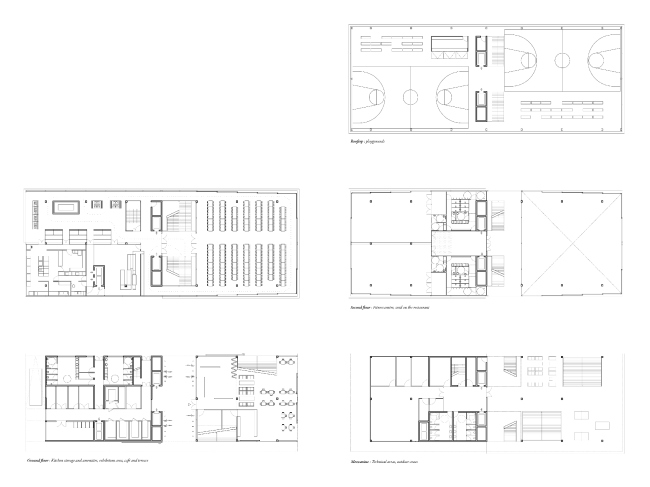
Общественное здание спроектировано на территории небольшого университетского городка Париж-Сакле, который претендует стать новым международным хабом. Архитекторы предлагают использовать самые простые, необработанные материалы, при этом обеспечив долговечность здания с помощью современных методов и технологий строительства. Находкой стали открытые пространства и принцип вертикального размещения различных функций друг над другом. Здесь есть возможность для занятий спортом, крытые и открытые спортивные площадки, террасы с расположенными на них уличными кафе, общественная площадь и парковки автомобилей. На крыше здания даже можно поиграть в футбол или баскетбол.

Жюри понравился минимализм архитектурных, технических и экономических решений. Баланс экономики и эстетики они назвали феноменальным.
Серебряная награда. Проект многоцелевого здания университета в Париже, Франция. Бюро Muoto architects. Материалы предоставлены организаторами конкурса
Серебряная награда. Проект многоцелевого здания университета в Париже, Франция. Бюро Muoto architects. Материалы предоставлены организаторами конкурса
Серебряная награда. Проект многоцелевого здания университета в Париже, Франция. Бюро Muoto architects. Материалы предоставлены организаторами конкурса
Серебряная награда. Проект многоцелевого здания университета в Париже, Франция. Бюро Muoto architects. Материалы предоставлены организаторами конкурса
Серебряная награда. Проект многоцелевого здания университета в Париже, Франция. Бюро Muoto architects. Материалы предоставлены организаторами конкурса
Серебряная награда. Проект многоцелевого здания университета в Париже, Франция. Бюро Muoto architects. Материалы предоставлены организаторами конкурса
Серебряная награда. Проект многоцелевого здания университета в Париже, Франция. Бюро Muoto architects. Материалы предоставлены организаторами конкурса
Серебряная награда. Проект многоцелевого здания университета в Париже, Франция. Бюро Muoto architects. Материалы предоставлены организаторами конкурса
Серебряная награда. Проект многоцелевого здания университета в Париже, Франция. Бюро Muoto architects. Материалы предоставлены организаторами конкурса
Серебряная награда. Проект многоцелевого здания университета в Париже, Франция. Бюро Muoto architects. Материалы предоставлены организаторами конкурса
Серебряная награда. Проект многоцелевого здания университета в Париже, Франция. Бюро Muoto architects. Материалы предоставлены организаторами конкурса
Серебряная награда. Проект многоцелевого здания университета в Париже, Франция. Бюро Muoto architects. Материалы предоставлены организаторами конкурса
Серебряная награда. Проект многоцелевого здания университета в Париже, Франция. Бюро Muoto architects. Материалы предоставлены организаторами конкурса
Серебряная награда. Проект многоцелевого здания университета в Париже, Франция. Бюро Muoto architects. Материалы предоставлены организаторами конкурса
Серебряная награда. Проект многоцелевого здания университета в Париже, Франция. Бюро Muoto architects. Материалы предоставлены организаторами конкурса
Серебряная награда. Проект многоцелевого здания университета в Париже, Франция. Бюро Muoto architects. Материалы предоставлены организаторами конкурса

***

Бронза
Проект района городской застройки в Вене, Австрия
Бюро Arenas Basabe Palacios arquitectos

Луис Паласиос, Arenas Basabe Palacios arquitectos. Фотография Аллы Павликовой
Луис Паласиос, Arenas Basabe Palacios arquitectos. Фотография Аллы Павликовой

Команда из Испании во главе с Энрике Аренасом, Луисом Басабе и Луисом Паласиосом спроектировала городской район в Вене, ориентируясь на демократические принципы управления и активное участие самих жителей в создании проекта. Архитекторы предложили создать плотную сеть зеленых садов, внутри которых вырастают компактные жилые дома. Таким образом, это одновременно и застройка, и большой городской парк, созданный путем минимального вмешательства строителей и развивающийся постепенно, следуя ритму живущих здесь людей.

Разработанная система управления, коллективное планирование застройки и сама идея урбанистического сада вывела проект на третье место конкурса.
Бронзовая награда. Проект района городской застройки в Вене, Австрия. Бюро Arenas Basabe Palacios arquitectos. Материалы предоставлены организаторами конкурса
Бронзовая награда. Проект района городской застройки в Вене, Австрия. Бюро Arenas Basabe Palacios arquitectos. Материалы предоставлены организаторами конкурса
Бронзовая награда. Проект района городской застройки в Вене, Австрия. Бюро Arenas Basabe Palacios arquitectos. Материалы предоставлены организаторами конкурса
Бронзовая награда. Проект района городской застройки в Вене, Австрия. Бюро Arenas Basabe Palacios arquitectos. Материалы предоставлены организаторами конкурса
Бронзовая награда. Проект района городской застройки в Вене, Австрия. Бюро Arenas Basabe Palacios arquitectos. Материалы предоставлены организаторами конкурса
Бронзовая награда. Проект района городской застройки в Вене, Австрия. Бюро Arenas Basabe Palacios arquitectos. Материалы предоставлены организаторами конкурса
Бронзовая награда. Проект района городской застройки в Вене, Австрия. Бюро Arenas Basabe Palacios arquitectos. Материалы предоставлены организаторами конкурса
Бронзовая награда. Проект района городской застройки в Вене, Австрия. Бюро Arenas Basabe Palacios arquitectos. Материалы предоставлены организаторами конкурса
Бронзовая награда. Проект района городской застройки в Вене, Австрия. Бюро Arenas Basabe Palacios arquitectos. Материалы предоставлены организаторами конкурса
Бронзовая награда. Проект района городской застройки в Вене, Австрия. Бюро Arenas Basabe Palacios arquitectos. Материалы предоставлены организаторами конкурса
Бронзовая награда. Проект района городской застройки в Вене, Австрия. Бюро Arenas Basabe Palacios arquitectos. Материалы предоставлены организаторами конкурса
Бронзовая награда. Проект района городской застройки в Вене, Австрия. Бюро Arenas Basabe Palacios arquitectos. Материалы предоставлены организаторами конкурса
***
 
Next Generation
Призы в номинации Next Generation были вручены шести командам молодых специалистов за инновационные концепции в сфере устойчивого строительства, но журналистам показали только два проекта.

Next Generation / первый приз
DAT Pangea

Hector Munoz из бюро DAT Pangea. Фотография Аллы Павликовой
Hector Munoz из бюро DAT Pangea. Фотография Аллы Павликовой

Победителем в номинации стало бюро DAT Pangea из Испании за серию из трех социально ориентированных архитектурных концепций, которые, по сути, предлагают программу использования архитектурных приемов в качестве действенного инструмента решения социальных проблем. Жюри оценило территориальный план и сельскохозяйственную реструктуризацию, плодовый городской сад, а также пространство для проведения временных массовых мероприятий.
Next Generation. Первый приз. DAT Pangea. Материалы предоставлены организаторами конкурса
Next Generation. Первый приз. DAT Pangea. Материалы предоставлены организаторами конкурса
Next Generation. Первый приз. DAT Pangea. Материалы предоставлены организаторами конкурса
Next Generation. Первый приз. DAT Pangea. Материалы предоставлены организаторами конкурса
Next Generation. Первый приз. DAT Pangea. Материалы предоставлены организаторами конкурса
Next Generation. Первый приз. DAT Pangea. Материалы предоставлены организаторами конкурса
***
 
Next Generation / второй приз
Александр Вешняков, Дмитрий Иванов, Наталья Михайлова, Александра Тырон и Надежда Павлова

Александра Тырон представляет свой проект. Фотография Аллы Павликовой
Александра Тырон представляет свой проект. Фотография Аллы Павликовой

Как сообщают организаторы, российские архитекторы в этом году проявили к конкурсу большой интерес. Россия не только вошла в первую десятку стран по количеству участников, один из российских проектов занял почетное второе место в номинации Next Generation.

Архитекторы представили интересный проект, который рассматривает не столичные, а малые российские города. Для них предлагается идея создания целого ряда общественных и досуговых центров, которые, сообщаясь между собой с помощью интернета, сформируют некую виртуальную сеть. Связь между городами обеспечит возврат от виртуального к реальному общению. «Реальная виртуальность» – так обозначают авторы свой проект, который, по их замыслу, поможет понять суть малых городов. Как пояснила Александра Тырон, цель проекта – улучшить качество жизни в городках, создать внутри них новые центры общественной жизни, тем самым объединив «пользователей виртуальной сети».
Next Generation. Второй приз. Александр Вешняков, Дмитрий Иванов, Наталья Михайлова, Александра Тырон и Надежда Павлова. Материалы предоставлены организаторами конкурса
Next Generation. Второй приз. Александр Вешняков, Дмитрий Иванов, Наталья Михайлова, Александра Тырон и Надежда Павлова. Материалы предоставлены организаторами конкурса
Next Generation. Второй приз. Александр Вешняков, Дмитрий Иванов, Наталья Михайлова, Александра Тырон и Надежда Павлова. Материалы предоставлены организаторами конкурса
Next Generation. Второй приз. Александр Вешняков, Дмитрий Иванов, Наталья Михайлова, Александра Тырон и Надежда Павлова. Материалы предоставлены организаторами конкурса

Для примера взят город Сортавала, расположенный на северо-западе России. Общественный центр, архитектурное решение которого, по словам Александры, базируется на принципах русских конструктивистов, в техническом смысле использует все инновации энергоэффективного и устойчивого строительства. Его пространство может меняться за счет медиа-эффектов – например, само здание используется для трансляции концертов и других мероприятий.
Next Generation. Второй приз. Александр Вешняков, Дмитрий Иванов, Наталья Михайлова, Александра Тырон и Надежда Павлова. Материалы предоставлены организаторами конкурса
Next Generation. Второй приз. Александр Вешняков, Дмитрий Иванов, Наталья Михайлова, Александра Тырон и Надежда Павлова. Материалы предоставлены организаторами конкурса

Жюри заинтересовала идея создания нового «архитектурного инструмента», способствующего оживлению малых городов России.
Next Generation. Второй приз. Александр Вешняков, Дмитрий Иванов, Наталья Михайлова, Александра Тырон и Надежда Павлова. Материалы предоставлены организаторами конкурса
Next Generation. Второй приз. Александр Вешняков, Дмитрий Иванов, Наталья Михайлова, Александра Тырон и Надежда Павлова. Материалы предоставлены организаторами конкурса
Next Generation. Второй приз. Александр Вешняков, Дмитрий Иванов, Наталья Михайлова, Александра Тырон и Надежда Павлова. Материалы предоставлены организаторами конкурса
Next Generation. Второй приз. Александр Вешняков, Дмитрий Иванов, Наталья Михайлова, Александра Тырон и Надежда Павлова. Материалы предоставлены организаторами конкурса
***
Специальные премии

Honorable Mention
за энергосберегающее офисное здание в Хольдербанке, Швейцария. Автор Кристиан Керез

Помимо основных наград были вручены поощрительные премии. Впервые в этом году была введена награда Honorable Mention, которую получил центр передовых технологий компании Holcim, объединяющий научно-исследовательские лаборатории, офисные и учебные помещения. Центр представляет собой здание, прорезанное идеально круглым атриумом, что внутри дает ощущение объема. Особо была отмечена современные энергетические решения.

Специальные призы за проекты по строительным материалам из Бельгии и Германии
Команда бельгийского бюро «TETRA architecten» получила приз за проект логистического и перерабатывающего центра в порту Брюсселя, а Карола Дирихс и Ахим Менгес из Института компьютерного дизайна при университете Штуттгарта получили поощрительный приз за междисциплинарный исследовательский проект в области материаловедения.