Размещено на портале Архи.ру (www.archi.ru)

26.08.2014

Дом-перевертыш

Юлия Тарабарина, Влада Нистратова
Объект:
Жилой комплекс в Дзержинском
Адрес:
Россия, Дзержинский.
Архитектор:
Андрей Асадов
Александр Асадов
Мастерская:
АБ ASADOV
Авторский коллектив:
А.Асадов, М.Асадова, А.А.Асадов, Е.Синкевич, Е.Колобаева, М.Павлова

Бюро Асадова построило в городе Дзержинский один из последних, по нашим временам, домов в духе неоконструктивизма.

Жилой комплекс в г.Дзержинском © Архитектурное бюро Асадова
Жилой комплекс в г.Дзержинском © Архитектурное бюро Асадова

Пластина жилого дома вытянута между улицей Ленина и железной дорогой, среди зелени, гаражей и многоэтажек в северной части подмосковного города Дзержинского. Отсюда до МКАДа – полтора километра к северу, а до Николо-Угрешского монастыря, древнего, хотя и заново отстроенного центра всей местности – два километра к югу, пешком полчаса. Новый жилой комплекс получил название «Угрешский». 
Жилой комплекс в г.Дзержинском © Архитектурное бюро Асадова
Жилой комплекс в г.Дзержинском © Архитектурное бюро Асадова

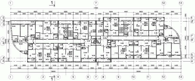
Комплекс, собственно, состоит из одного дома: два этажа подземной парковки на 190 машин, отделение банка, кафе и магазины в цоколе, семнадцать жилых этажей сверху, квартиры бизнес-класса от одной до трех комнат. Он построен в 2012 году, и «…стал акцентом в городской среде уже благодаря своему размеру, – рассказывает архитектор Андрей Асадов. – Поэтому хотелось сделать его максимально четким и структурным. В результате композиционно получился  дом-перевертыш, состоящий из двух секций с полукруглыми эркерами на торцах. Силуэт дома маркирует перелом главной улицы города. А детали разрабатывались в продолжении главной идеи, выявляя двухсекционную  структуру и полукруглые акценты по углам».  

Перевертыш – это потому, что объем дома построен согласно любимому архитекторами авангарда 1920-х, а потом неоконструктивизма 2000-х, принципу симметрии вращения: одна его часть (она же секция) отражает другую, но не зеркально, а так, как будто ее повернули на шарнире. Представим себе макетный ножик со скругленным лезвием, острый нос которого смотрит точно на юг, другой на север, как стрелка компаса, которая недавно крутилась, покачивалась и вот – замерла. 

От воображаемого движения остался след: параболические контуры острых «носов», похожие на лопасти вентиляторов, указывают направление остановленного вращения (как в солярном знаке), которое подхватывают, в свою очередь, пластины фасадных выступов. Выступов два: со стороны улицы Ленина подлиннее и со стороны двора покороче, они тоже подчиняются симметрии вращения, их поддерживают уступы лоджий в самом конце пластины, соответствующие «носам» и также симметричные. Ступенька соответствует стыковке секций, в остальном малозаметной, в числе прочего потому, что пластины на западном и восточном фасадах наложены слегка внахлест, как бы желая избежать жесткого разделения дома на северную и южную части. 

Чередование пластин выступов и уступов подчеркнуто цветом: выступающие части фасадов – белые с красным торцом, что графически усиливает их «шаг вперед». Соседние плоскости, отступившие на шаг назад, – наоборот, прошиты энергичными красными горизонталями на фоне серых вертикальных простенков. Как будто с части дома аккуратно сняли белую «кожу», обнажив полосатую структуру «внутренностей», почти экорше. Можно было бы даже (предварительно оговорившись, разумеется), прочесть форму так: с аккуратного белого, алюминиевого современного дома сняли стружку, и под верхним слоем обнаружилась авангардная основа всей современной архитектуры. Или так: город – порождение коммуны беспризорников «имени Дзержинского», город-коммуна, но его центр застроен после войны уже более респектабельными и уютными сталинскими домами – они стоят ближе к центру города по улице Ленина. Фасады «Угрешского» дома почти буквально демонстрируют на себе этот процесс «зарастания» авангардно-коммунального домашним. Все это, конечно, не более чем предположения, но раз они возникают, значит, дом к ним провоцирует, значит, он не пуст и не лишен идей.
Жилой комплекс в г.Дзержинском © Архитектурное бюро Асадова
Жилой комплекс в г.Дзержинском © Архитектурное бюро Асадова
Жилой комплекс в г.Дзержинском © Архитектурное бюро Асадова
Жилой комплекс в г.Дзержинском © Архитектурное бюро Асадова
Жилой комплекс в г.Дзержинском © Архитектурное бюро Асадова
Жилой комплекс в г.Дзержинском © Архитектурное бюро Асадова

Между тем геометрия здания остается простой и чистой, хотя ее и поддерживает, как выше признался архитектор, множество деталей. Главенство горизонталей подчеркнуто серыми штрихами на торцевых «лопастях», чей ряд впрочем прерывается неожиданной вставкой – точнее, выемкой: в пазуху врезана ярко-красная ниша с шестью белыми балконами, она властно сдвигает ряд окон, сбивает ритм. Это – акцент, предназначенный для главной видовой точки, угол, открывающийся со стороны поворота улицы Ленина и смотрящий в направлении монастыря (может быть, это зашифрованный «красный угол»? смысловая игра красного-белого, традиционного-авангардного здесь определенно присутствует, хотя и не навязывает себя). Другие тонкости: красные рамки окон в белой плоскости, серые прямоугольники между окнами, опять же поддерживающие горизонталь, чередование окон и лоджий, и наконец, кружево небольших решетчатых балконов, разбросанных по фасаду с достаточной нерегулярностью, – необходимая отделка. 

Дом достаточно уверенно можно отнести к популярному в 2000-е и даже в конце 1990-х, направлению неоконструктивизма. Отталкиваясь от справедливого, хотя и несколько ностальгического убеждения в том, что авангард – наше все, архитекторы стремились возродить его принципы и приемы, взглянуть на мир его глазами, временами страдая от противоречия, заключенного в реплицировании мотивов того движения, которое само принципиально отрицало всякий повтор. Впрочем, неоконструктивизм остался одной из приятных, честных и искренних попыток обращения к корням, дало свои, как правило отмеченные ноткой идеализма плоды и в малом, и в крупном масштабе. Надо думать, что будет справедливым признать рассматриваемый дом несколько запоздавшим, но зрелым образцом неоконструктивизма: симметрия вращения, острые носы, примат горизонтали, тонкая стереометрическая игра, аккуратно уложенная с рамки простой геометрии, и, особенно, – плакатная красно-белая раскраска, – все это хорошо известные приема архитектуры двадцатых. Намеренные сбивки ритма для оживления формы, тонкая отделка, чуждые коллективизму балкончики (а также 17-этажный масштаб и материал строительства и отделки: монолитный каркас, алюминиевые панели) – принадлежат нашему времени и приставке «нео».

Есть у дома и еще одно приятное качество, выделяющее его уже в рамках современности, 2010-х, очень простое качество – это просто дом. После 2010 архитектура как-то совсем отвлеклась от собственно домов, перейдя к масштабу макро: генпланам, поселкам и районам; и микро: благоустройству, паркам и скверам. Всё это очень важные области, но несложно заметить, что разнообразие городской среды помимо рисунка тротуарной вымостки создают еще и здания, продуманность их объемов, деталей, фактуры и цвета. Как только архитекторы от них отвлекаются, дома вновь переходят в ведение типового строительства, и без того более дешевого и вездесущего. А так приятно  иногда увидеть тщательно придуманный архитектором дом. Просто дом. 
Жилой комплекс в г.Дзержинском © Архитектурное бюро Асадова
Жилой комплекс в г.Дзержинском © Архитектурное бюро Асадова
Жилой комплекс в г.Дзержинском © Архитектурное бюро Асадова
Жилой комплекс в г.Дзержинском © Архитектурное бюро Асадова