Размещено на портале Архи.ру (www.archi.ru)

11.08.2014

Смирение современного

Юлия Тарабарина
Объект:
Колледж Университета имени Эразма
Адрес:
Нидерланды, Роттердам.
Архитектор:
Эрик ван Эгераат
Мастерская:
Designed by Erick van Egeraat

В Роттердаме завершена реконструкция здания колледжа Университета Эрасмус.

Erasmus University College в Роттердаме © (designed by) Erick van Egeraat / Ossip van Duivenbode
Erasmus University College в Роттердаме © (designed by) Erick van Egeraat / Ossip van Duivenbode

Реконструкцией и реставрацией занималось архитектурное бюро (designed by) Erick van Egeraat. Колледж будет давать трехлетнее образование по программе бакалавриата, отбирая лучших из лучших, причем половина студентов будет иностранцами и обучение будет проходить на английском языке. В сентябре 2013 г. колледж начал свою работу, а летом 2014 г. переехал в новое здание. Планируется, что к 2017 году число его студентов достигнет шестисот, жить они будут рядом с колледжем, и новый образовательный центр оживит центр города, принеся двойную пользу: город получит анклав умной молодежи, университет – возможных учеников и базу в центре Роттердама (университетский кампус расположен несколько дальше, в трех километрах к востоку).

Здание, в котором расположился университетский колледж, – одна из первых в Роттердаме построек с железобетонными конструкциями, сооруженная в 1923 году по проекту архитектора Дирка Логеманна. Четыре этажа скрываются за двухярусным кирпичным фасадом с гигантскими североевропейскими окнами и небольшой башенкой на высокой скатной кровле – все вместе узнаваемо голландское и считается «вольной трактовкой амстердамской школы». Строгую, несколько консервативную декоративность фасадов раннего ар-деко (местами напоминающего о сецессионе) составляют утопленные в широкой рамке трехгранные эркеры, пилястры треугольного сечения с терракотовыми капителями, вертикали крупных «сухариков» и каменный портал, вырастающий из серого полуподвального цоколя (автор скульптур и рельефов Ян ван Люнтерен). В окнах сохранились (чудом при бомбежке 1940 года) витражи компании «Гиддинг», в интерьерах здания – кессонированные потолки, отделка натуральным камнем и деревянные панели. Все это было скрыто за гипсокартонными перегородками и подвесными потолками: в здании, которое было построено для муниципальной библиотеки, затем, до недавнего времени, располагался Музей образования.
Erasmus University College в Роттердаме © (designed by) Erick van Egeraat / Ossip van Duivenbode
Erasmus University College в Роттердаме © (designed by) Erick van Egeraat / Ossip van Duivenbode
Erasmus University College в Роттердаме © (designed by) Erick van Egeraat / Ossip van Duivenbode
Erasmus University College в Роттердаме © (designed by) Erick van Egeraat / Ossip van Duivenbode
Erasmus University College в Роттердаме © (designed by) Erick van Egeraat / Ossip van Duivenbode
Erasmus University College в Роттердаме © (designed by) Erick van Egeraat / Ossip van Duivenbode
Erasmus University College в Роттердаме © (designed by) Erick van Egeraat / Ossip van Duivenbode
Erasmus University College в Роттердаме © (designed by) Erick van Egeraat / Ossip van Duivenbode
Erasmus University College в Роттердаме © (designed by) Erick van Egeraat / Ossip van Duivenbode
Erasmus University College в Роттердаме © (designed by) Erick van Egeraat / Ossip van Duivenbode
Erasmus University College в Роттердаме © (designed by) Erick van Egeraat / Ossip van Duivenbode
Erasmus University College в Роттердаме © (designed by) Erick van Egeraat / Ossip van Duivenbode

Реставрация сохранившихся частей здания была проведена согласно принципам Венской хартии: черты нового и старого стиля были сбалансированы, находящиеся под защитой элементы здания – сохранены, а современные включения намеренно выбраны таким образом, чтобы отличаться от аутентичных, первоначальных компонентов памятника. Убраны все наслоения, открыто подлинное убранство интерьеров; сохранены исторические железобетонные конструкции. «К сожалению, историческую функцию здания библиотеки сохранить было невозможно, так как согласно заданию оно должно было стать колледжем, – говорит Эрик ван Эгераат, – мы сделали все возможное для того, чтобы проявить красоту памятника. Отзвуком прежней библиотечной функции в некоторой степени служит предложенная нами система освещения». Речь об интерьере бывшего библиотечного книгохранилища с невысокими (2,5 метра) потолками. Его превратили в двусветное пространство для отдыха и учебы, удалив все антресоли, но ненавязчиво подчеркнув прежнюю функцию: тонкие лампы пронизывают пространство линиями света, обозначая места исторических границ и перекликаясь с сохраненными элементами здания.
Erasmus University College в Роттердаме © (designed by) Erick van Egeraat / Ossip van Duivenbode
Erasmus University College в Роттердаме © (designed by) Erick van Egeraat / Ossip van Duivenbode
Erasmus University College в Роттердаме © (designed by) Erick van Egeraat / Ossip van Duivenbode
Erasmus University College в Роттердаме © (designed by) Erick van Egeraat / Ossip van Duivenbode

Существенных дополнений сделано два. Небольшой атриум здания Логеманна превращен в современный: со стеклянным потолком, стенами и лифтами – прозрачная хай-тек-вставка в историческое здание. Атриум отгорожен от этажей стеклянными перегородками, таким образом он становится безопасным для учеников источником света. Второе дополнение – офисы в верхнем этаже, спрятанные за скатной кровлей и освещенные благодаря стене сплошного остекления, выходящей в сторону улицы Паннекукстраат. Таким образом современное дополнение тыльного фасада здания оказывается не слишком заметным, кроме того, оно оказывается рядом с родственной материей: стекло к стеклу. 
Вставка панорамного остекления над лоджиями со стороны улицы  Pannekoekstraat. Erasmus University College © (designed by) Erick van Egeraat
Вставка панорамного остекления над лоджиями со стороны улицы Pannekoekstraat. Erasmus University College © (designed by) Erick van Egeraat
Разрез по линии B, хорошо виден встроенный атриум. Erasmus University College. Section B © (designed by) Erick van Egeraat
Разрез по линии B, хорошо виден встроенный атриум. Erasmus University College. Section B © (designed by) Erick van Egeraat
Erasmus University College в Роттердаме © (designed by) Erick van Egeraat / Ossip van Duivenbode
Erasmus University College в Роттердаме © (designed by) Erick van Egeraat / Ossip van Duivenbode

На других, более заметных фасадах здания современных дополнений нет, так что реконструкцию надо признать достаточно деликатной и уж во всяком случае – почти не повлиявшей на облик исторического здания. Внутри современные и исторические элементы распределились примерно поровну. Респектабельные интерьеры, немного напоминающие московское метро сочетанием кессонированных сводов с цветным камнем (что неудивительно, так как стиль один – ар-деко), наполнены светом благодаря большим окнам и белому цвету стен и опор там, где нет камня. К потолку подвешены простые тонкие нити ламп дневного света; такие же световые горизонтали пересекают белые столбы. Металлические конструкции – контрастно темно-серые. Легкий лаконизм современных дополнений делает их нейтельно-спокойными, почти незаметными, отстраненными от фрагментов исторического декора. Никакого узнаваемо «звездного» почерка, все спокойно до анонимности, по-голландски аскетично и скромно; нет даже попыток усилить нотки хай-тека – преобладает прозрачно-нейтральное. В этой нейтральности и «пластической тишине» (впрочем, ждущей того, чтобы наполниться шумом школьной жизни) – лучшее качество реконструкции. И еще: в этом году на венецианской биеннале Рем Колхас призвал архитекторов к смирению. Вот оно, надо думать, архитектурная скромность, вполне достойный пример.
Erasmus University College в Роттердаме © (designed by) Erick van Egeraat / Ossip van Duivenbode
Erasmus University College в Роттердаме © (designed by) Erick van Egeraat / Ossip van Duivenbode
Erasmus University College в Роттердаме © (designed by) Erick van Egeraat / Ossip van Duivenbode
Erasmus University College в Роттердаме © (designed by) Erick van Egeraat / Ossip van Duivenbode
Erasmus University College в Роттердаме © (designed by) Erick van Egeraat / Ossip van Duivenbode
Erasmus University College в Роттердаме © (designed by) Erick van Egeraat / Ossip van Duivenbode
Erasmus University College в Роттердаме © (designed by) Erick van Egeraat / Ossip van Duivenbode
Erasmus University College в Роттердаме © (designed by) Erick van Egeraat / Ossip van Duivenbode
Erasmus University College в Роттердаме © (designed by) Erick van Egeraat / Ossip van Duivenbode
Erasmus University College в Роттердаме © (designed by) Erick van Egeraat / Ossip van Duivenbode
Генеральный план. Erasmus University College. © (designed by) Erick van Egeraat
Генеральный план. Erasmus University College. © (designed by) Erick van Egeraat
Генеральный план. Erasmus University College. © (designed by) Erick van Egeraat
Генеральный план. Erasmus University College. © (designed by) Erick van Egeraat
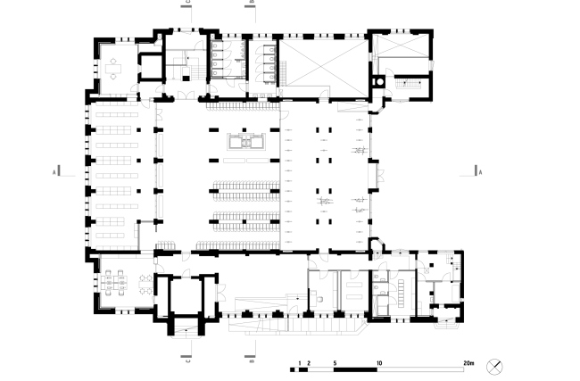
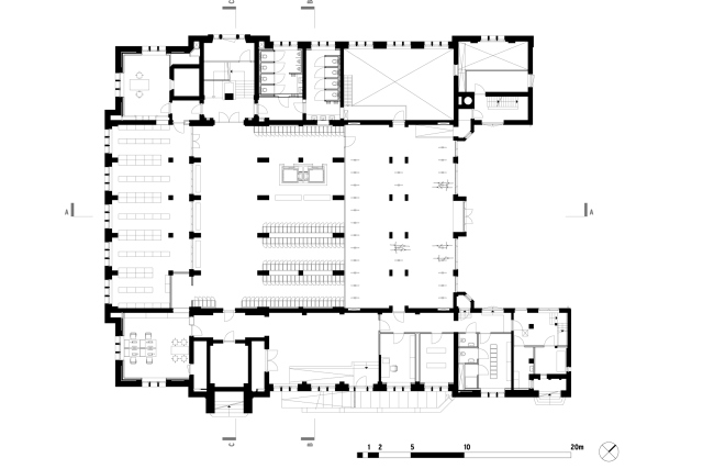
План этажа B1. Erasmus University College. © (designed by) Erick van Egeraat
План этажа B1. Erasmus University College. © (designed by) Erick van Egeraat
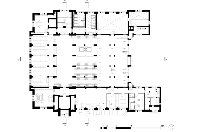
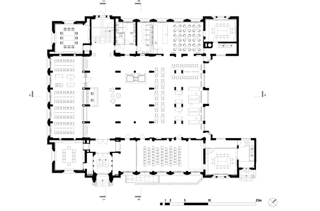
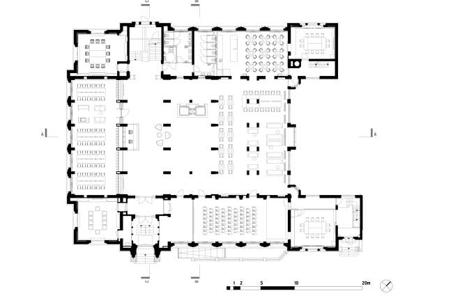
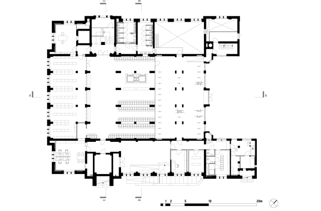
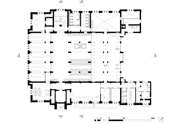
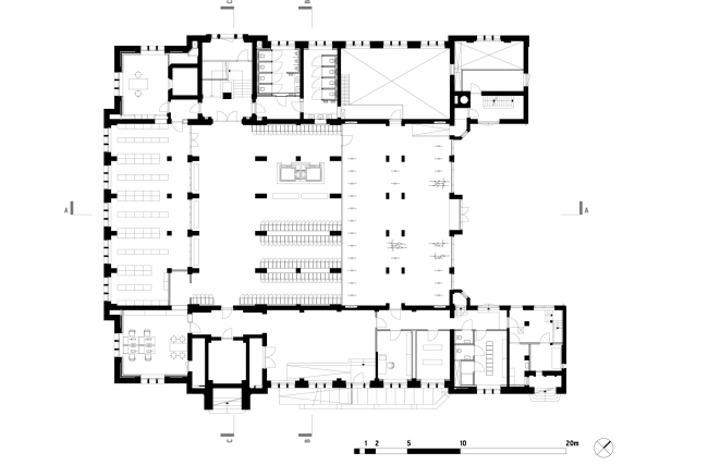
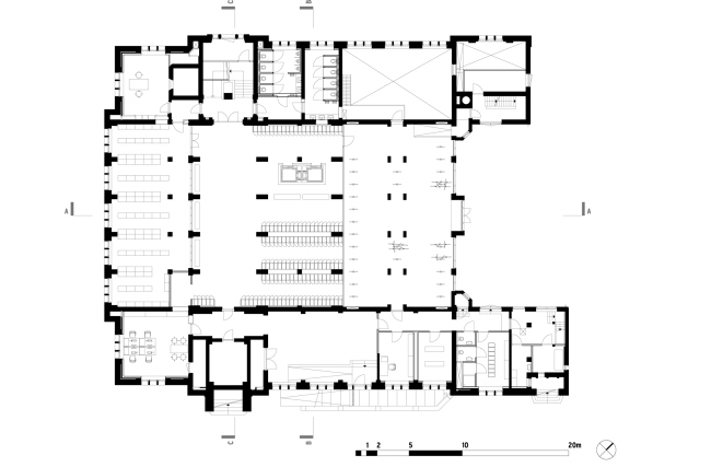
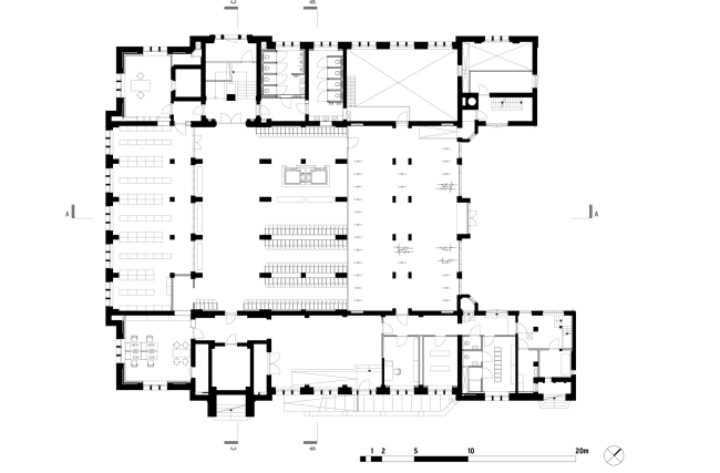
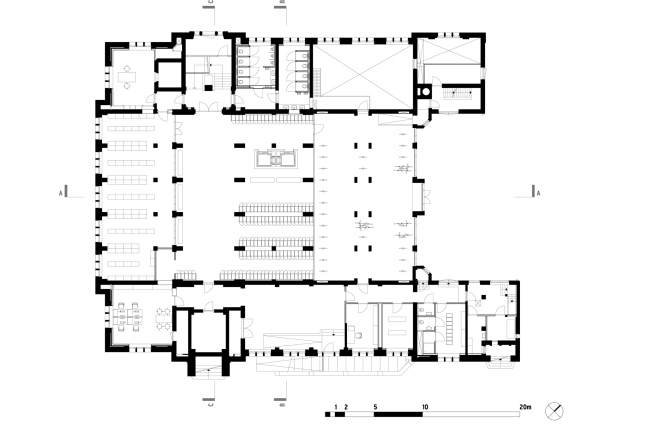
План цокольного этажа. Erasmus University College. © (designed by) Erick van Egeraat
План цокольного этажа. Erasmus University College. © (designed by) Erick van Egeraat
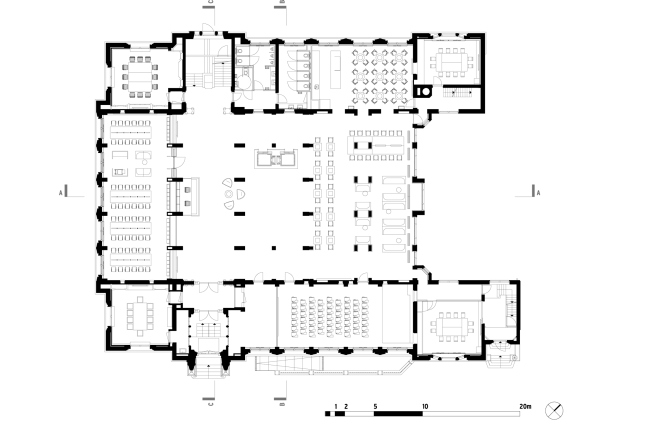
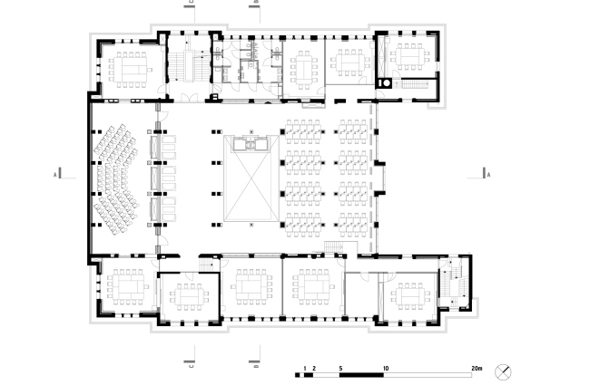
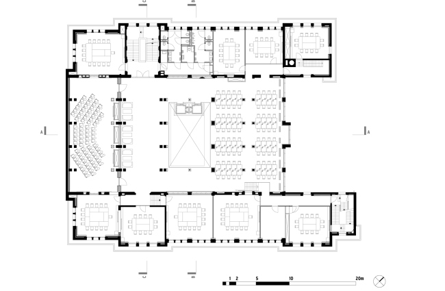
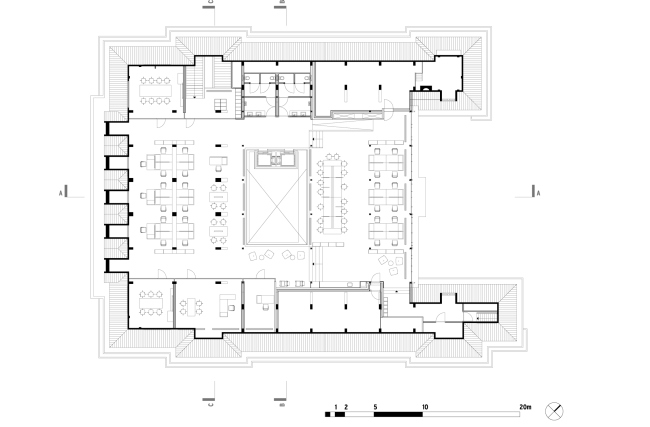
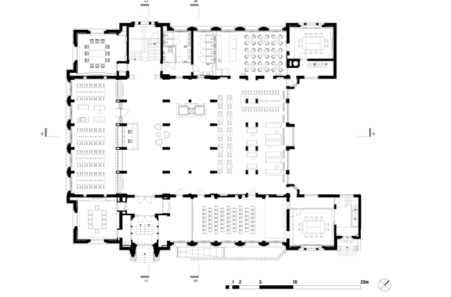
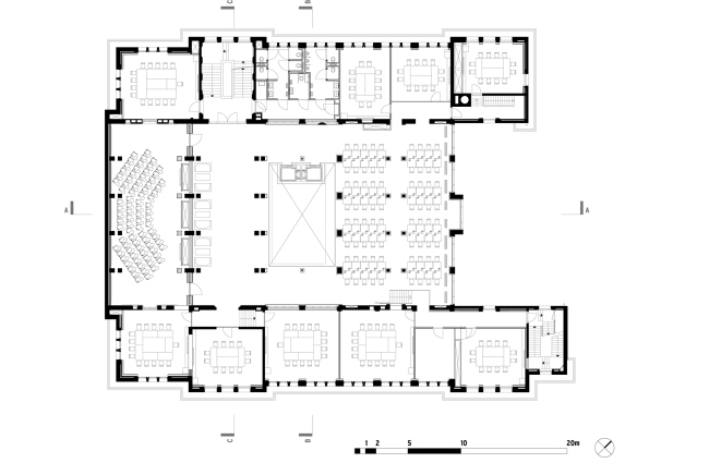
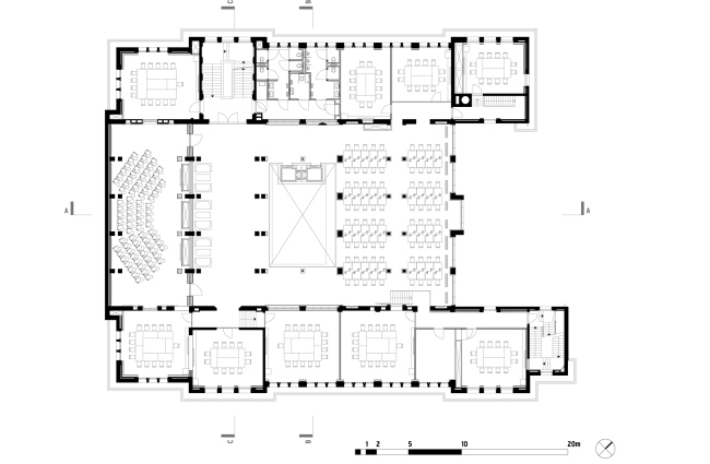
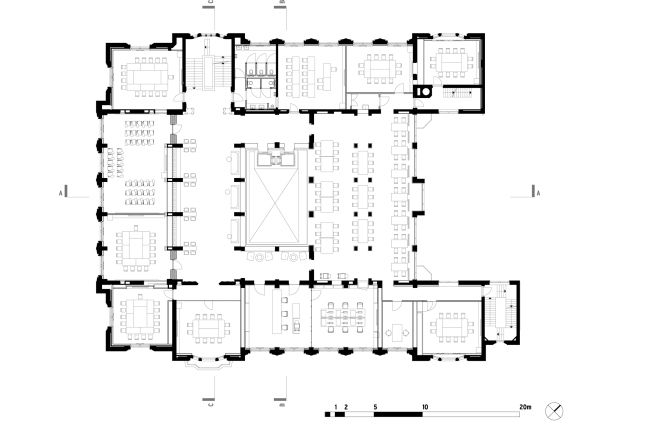
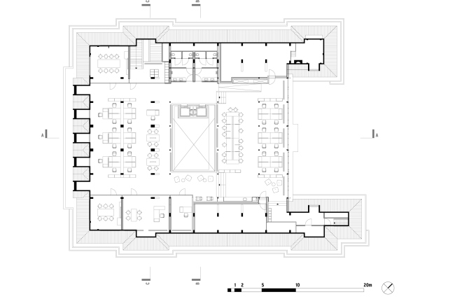
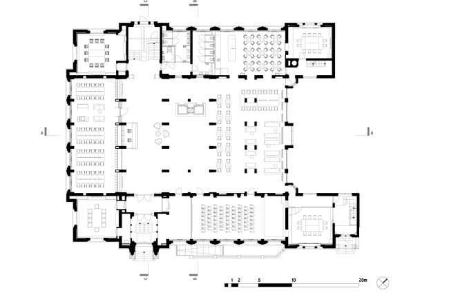
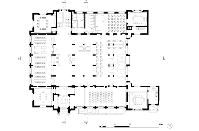
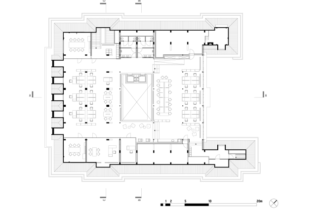
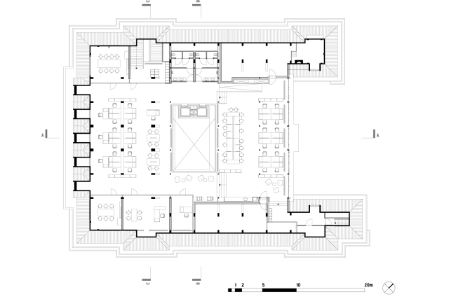
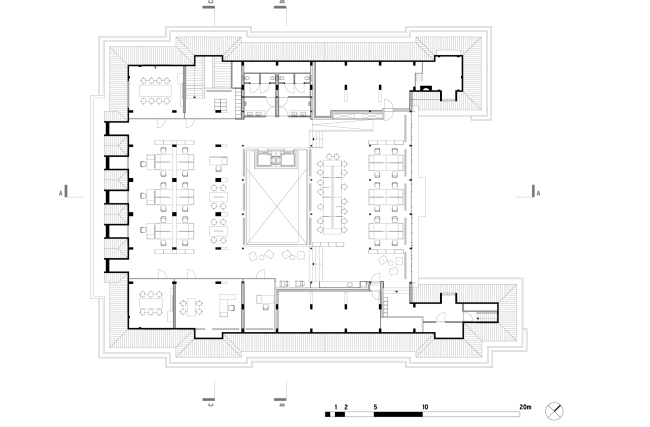
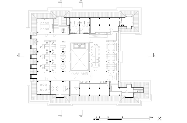
План 1 этажа. Erasmus University College. © (designed by) Erick van Egeraat
План 1 этажа. Erasmus University College. © (designed by) Erick van Egeraat
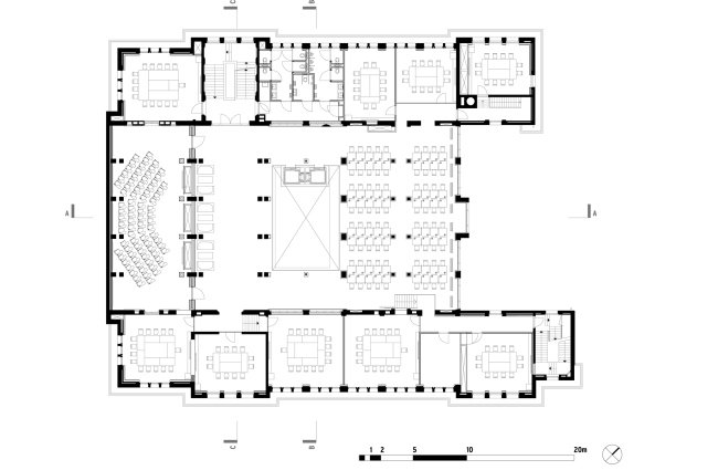
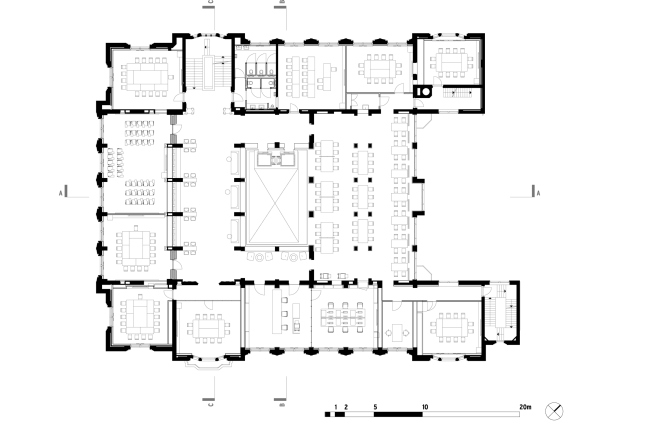
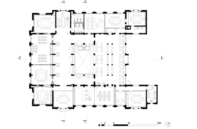
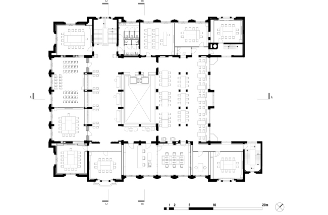
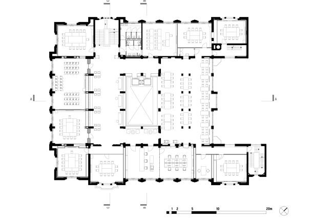
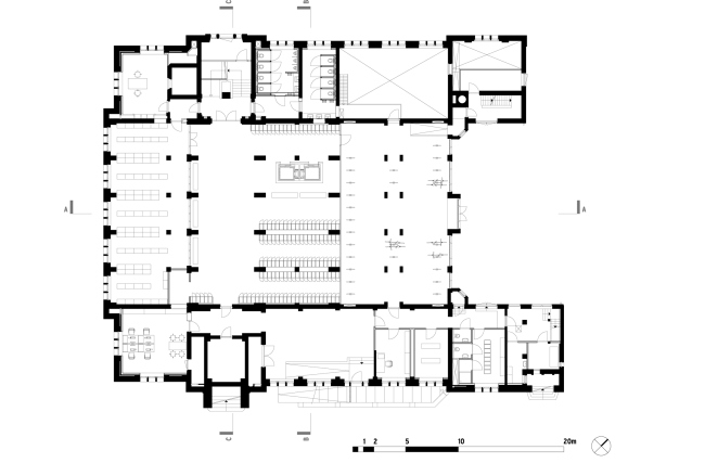
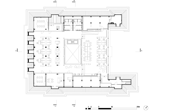
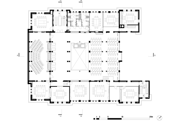
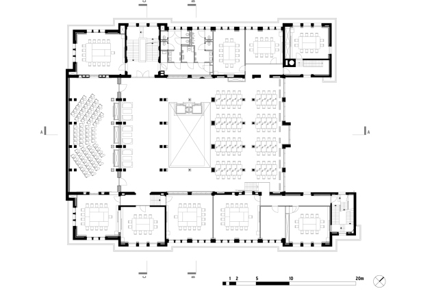
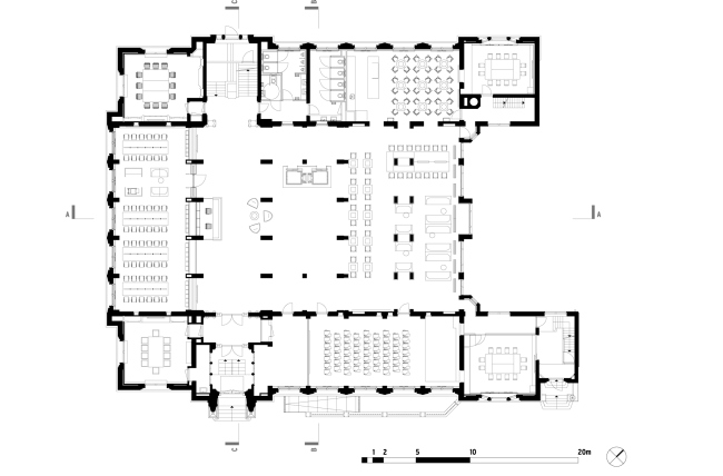
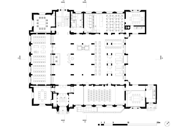
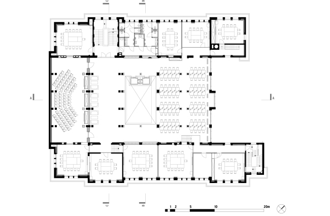
План 2 этажа. Erasmus University College. © (designed by) Erick van Egeraat
План 2 этажа. Erasmus University College. © (designed by) Erick van Egeraat
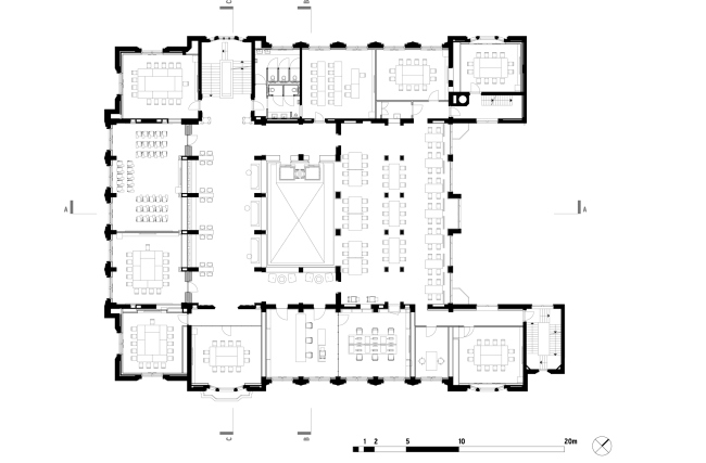
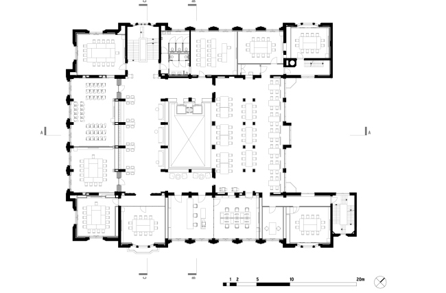
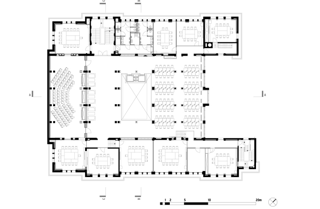
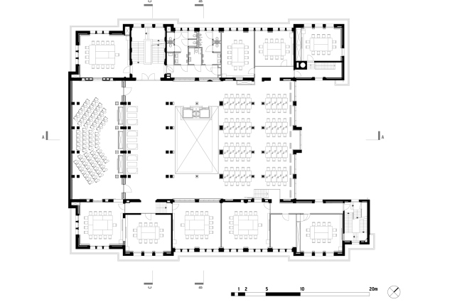
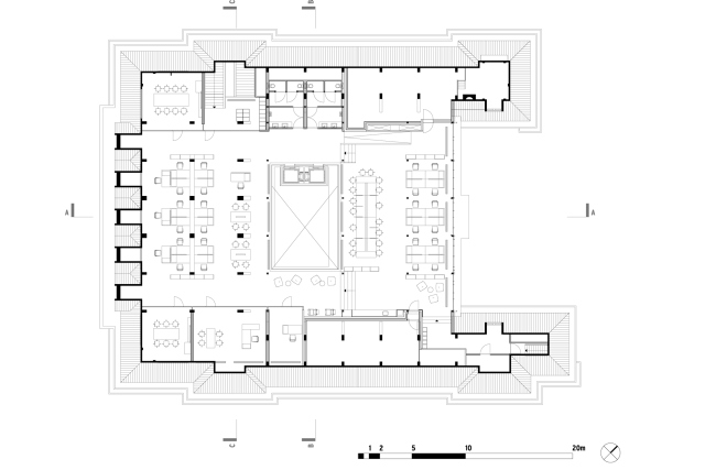
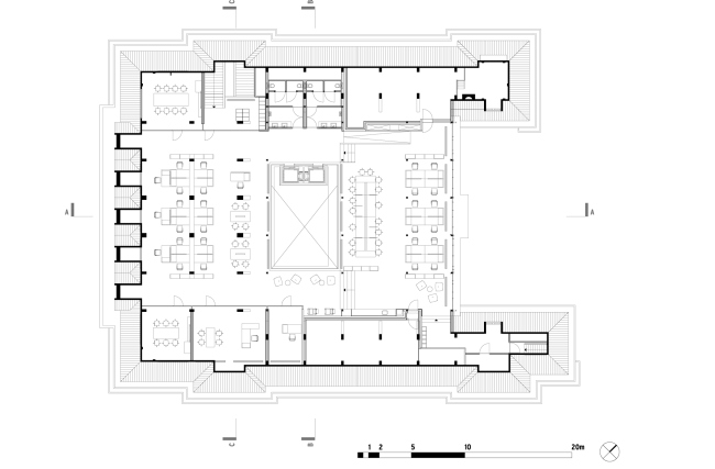
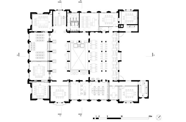
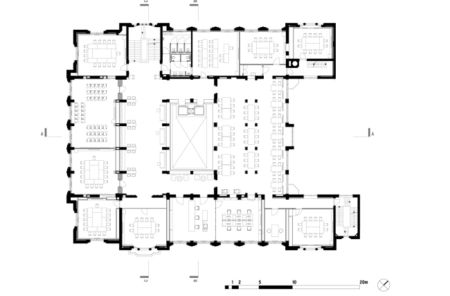
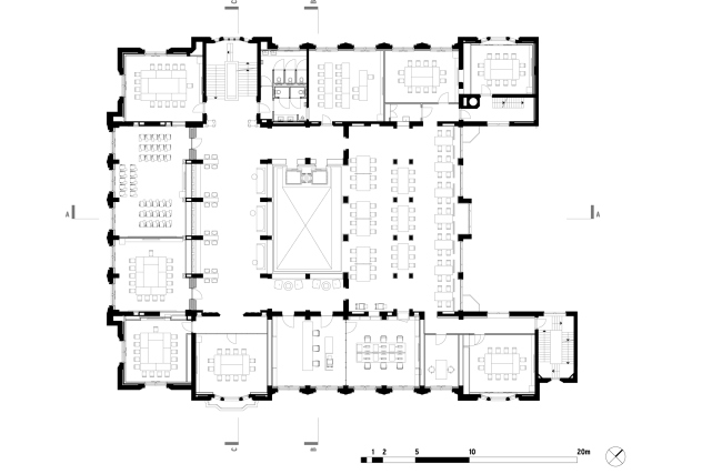
План 3 этажа. Erasmus University College. © (designed by) Erick van Egeraat
План 3 этажа. Erasmus University College. © (designed by) Erick van Egeraat
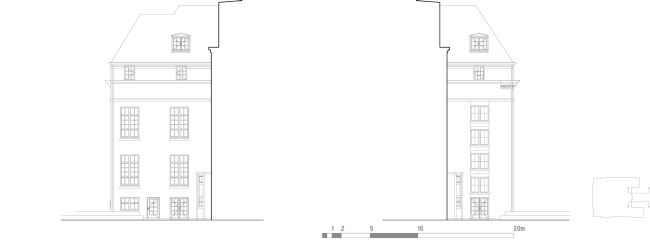
Фасады. Erasmus University College. © (designed by) Erick van Egeraat
Фасады. Erasmus University College. © (designed by) Erick van Egeraat
Фасады. Erasmus University College. © (designed by) Erick van Egeraat
Фасады. Erasmus University College. © (designed by) Erick van Egeraat
Фасады. Erasmus University College. © (designed by) Erick van Egeraat
Фасады. Erasmus University College. © (designed by) Erick van Egeraat
Фасады. Erasmus University College. © (designed by) Erick van Egeraat
Фасады. Erasmus University College. © (designed by) Erick van Egeraat
Разрез по линии A. Erasmus University College. © (designed by) Erick van Egeraat
Разрез по линии A. Erasmus University College. © (designed by) Erick van Egeraat
Разрез по линии C. Erasmus University College. © (designed by) Erick van Egeraat
Разрез по линии C. Erasmus University College. © (designed by) Erick van Egeraat