Размещено на портале Архи.ру (www.archi.ru)

25.07.2014

Из Новгорода в Кронштадт

Юлия Тарабарина
Объект:
Комплекс храма Иоанна Кронштадтского на Кронштадтской площади
Адрес:
Россия, Санкт-Петербург. Кронштадтская площадь, дом 2, литера А
Мастерская:
Евгений Герасимов и партнеры
Авторский коллектив:
Руководитель авторского коллектива Е.Л. Герасимов, ГАП С.Д. Меркушева, главный конструктор М.Я. Резниченко, руководитель архитектурной группы К.В. Смирнов, архитекторы: С.И. Бурдонская, О.А. Старосельцева, А.В. Сморыгин, конструкторы: С.В. Рыжова, В.Ю. Антонов

Евгений Герасимов строит в Петербурге церковный комплекс.

Перспективный вид на комплекс © Евгений Герасимов и Партнеры
Перспективный вид на комплекс © Евгений Герасимов и Партнеры

1 июля был торжественно заложен первый камень в основание храмового комплекса на Кронштадтской площади в Петербурге. Митрополит Санкт-Петербугский и Ладожский Варсонофий сказал на церемонии закладки, что спальным районам не хватает церквей, так как в советское время их там не строили и выразил надежду, что теперь, когда в округе появится новый храм, все с божьей помощью станет там лучше. Комплекс с 2006 года проектирует архитектурное бюро Евгения Герасимова (причем на благотворительных началах – без гонорара), которое вовсе не специализируется на храмовой архитектуре, хотя известно своими работами как в современной, так и в исторической стилистике. Архитекторы относятся к проекту храмового комплекса с любовью: для них он прежде всего – общественное здание на фоне многих успешных коммерческих заказов, авторы рады что-то сделать для города, они не только внимательно подошли к специфике культового здания, но и, в числе прочего, аккуратно продумали благоустройство площади для прихожан. В архитектуре же архитекторы совместили несколько исторических аллюзий, поставив их в лаконичные рамки современной стилистики в той мере, в какой это доступно современным храмам в России.
***

Кронштадтская площадь это, на самом деле, не вполне площадь, а скорее по-питерски изящная – не круглая, а овальная автомобильная развязка на пересечении Ленинского проспекта с проспектом Стачек на пути в Петергоф, за Кировским районом. Внутри овала большой плоский газон, вокруг – модернизм семидесятых вперемежку с уплотнительной застройкой двухтысячных, словом, ничего изящного, кроме рокайльной формы газона и заманчивого «дорога в Петергоф» (ну или в Стрельну) здесь нету – страшно привычная застройка постсоветской окраины, впрочем, сравнительно чистая, зеленая и просторная, не слишком застроенная. Здесь еще ходит трамвай. 

Перед тем, как встретиться с развязкой, проспекты образуют острую стрелку – где-нибудь в центре Петербурга на такой были бы «пять углов», а тут был сквер, на западном «носу» которого архитектор Иван Князев в 2003 году построил часовню Иоанна Кронштадтского, позднее в часовне освятили алтарь, сделав ее церковью, так как строительство задуманного храмового комплекса затянулось. Зато восточнее к 2009 году появился большой жилой комплекс с обязывающим названием «Монплезир», ставший довольно-таки обыкновенным фоном для будущего храмового комплекса, строительство которого затянулось после возведения часовни на десять лет. 

Мастерская Евгения Герасимова работает над проектом с 2006 года, и, как говорится в его авторском описании, архитекторы сделали здесь попытку «гармонично связать новые архитектурные формы с чертами национальной духовной традиции». 

Здание существующей часовни вытянуто вдоль Ленинского проспекта; новые же здания комплекса – собор Всемилостивого Спаса и церковно-причтовый дом за ним, – симметричны, нанизаны на ось биссектрисы треугольного участка. В нижнем ярусе собора запланирована крещальная церковь, еще одна маленькая часовня встроена в здание причта, над кровлями которого видна только ее глава. 
Вид на комплекс с высоты птичьего полета
Вид на комплекс с высоты птичьего полета
© Евгений Герасимов и Партнеры

Черты нового, как и консервативные аллюзии, в проекте считываются достаточно хорошо. 
Помимо общецерковных требований проект Евгения Герасимова ориентируется на различные слои контекста как в широком смысле северо-западной Руси, так и в узком, начиная с ближайшей церкви Ивана Князева. Впрочем, этому сугубо романтическому храму в духе неорусской ветви модерна (см. здесь и здесь) новые здания скорее противоположны, они строже и серьезнее: прямые линии, простая стереометрия, гранитный цоколь и даже шлемовидная глава – все вместе складывается в иной месседж, характерный для нового времени (скажем так, более серьезный; этот храм – не сказка и не декорация).
Схема планировочной организации земельного участка © Евгений Герасимов и Партнеры
Схема планировочной организации земельного участка © Евгений Герасимов и Партнеры

Восьмискатная кровля с тремя окнами, выстроенными «горкой» под щипцом и рядом декоративных вставок безусловно принадлежит новгородской и псковской традиции, напоминая о том, что Петербург примыкает к землям русского северо-запада, хотя во времена строительства церкви Спаса на Ильине его и не было. Не было его и во времена Новгородской Софии, контуры центральной главы которой и частота окон, вероятно, повлияли на рисунок главы в проекте Евгения Герасимова. Три высоких притвора происходят из церкви Параскевы Пятницы на Торгу – в архитектуре храма на Кронштадтской площади, как видим, обнаруживается минимум два-три новгородских источника: своего рода поклон бывшей рабочей окраины светского Питера старой епископии этих земель, Великому Новгороду. Звонница из двух столбов с крупными балками тоже может быть понята как «новгородская». 

Хотя надо отдать должное и другой части, менее ощутимой, но все же присутствующей в проекте контекста: частые окна барабана, скаты кровель, шлемовидная глава, две башни при входе, – внимательному наблюдателю могут напомнить Морской собор в Кронштадте (здесь вспоминаем, что площадь-то Кронштадская). В остальном собор 1913 года непохож – слишком пышен. Кроме того, контуры плана строящегося собора: тонкие стены, квадрат наоса, крещатые столбы – петербуржские, почти ампирные, – также как и гранитный цоколь, и плоские стены, – хотя задуманные на стенах (под карнизами, точнее, под выносами скатной кровли) рельефы отсылают нас обратно, к Новгороду, а также псевдо- и неорусской архитектуре Петербурга. 

Между тем в архитектурном смысле проекта главное, вероятно – не набор достаточно ясных аллюзий, а то, удалось ли их связать в один узел, обобщить, взять (скажем так) дифференциал от консервативной традиции, приведя ее (до некоторой степени) к современности. В данном случае базой для обобщения стала геометрия, что заметно даже в авторском описании, где экседру апсиды называют «четвертью сферы». Степень геометризованного обобщения здесь достаточно высока, именно она не дает архитекторам утонуть в контексте и стилизации, и она же позволяет упоминать одновременно Спас на Ильине и Кронштадский Никольский собор. 

Причем обобщение растет, а степень узнаваемости прототипов падает от центрального ядра, четверика храма, к периферии. Буквально: глава с рядом высоких окон, выведенных непосредственно под карниз, чего никогда не делала традиционная церковная архитектура – выглядит свежо, а прорезанный вертикальным витражом западный притвор, по меркам современной российской церковной архитектуры – так и вообще почти что вызов устоям. Колокольня же родственна не только новгородским звонницам, но и мемориальным стелам модернизма, настолько просты ее опоры под тяжелым щипцом на брутальных консолях. Словом, архитекторам, похоже, действительно удалось выполнить поставленную перед собой задачу – найти баланс между строго трактованной традицией, контекстом и современной трактовкой формы, что позволяет, с одной стороны, вписать храм в окружающий модернисткий город, и, с другой – адаптировать неизбежную для церковного здания «литературу».
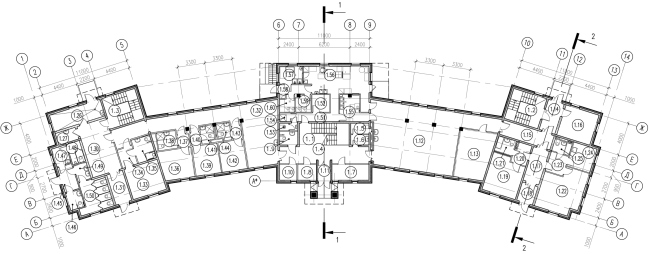
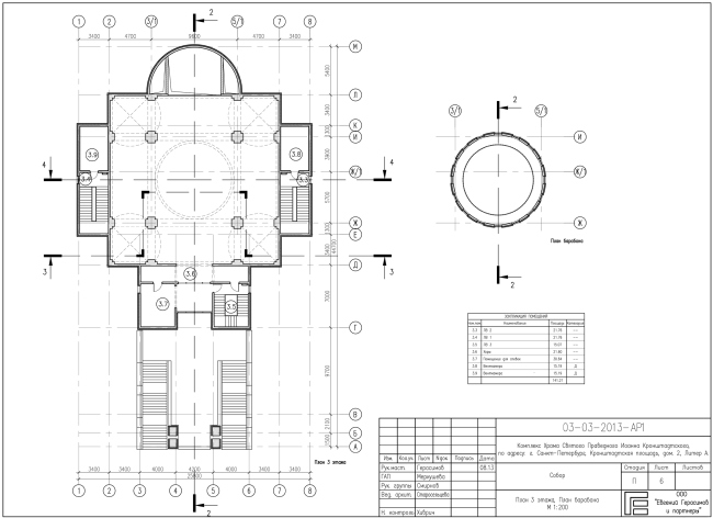
План 1 этажа © Евгений Герасимов и Партнеры
План 1 этажа © Евгений Герасимов и Партнеры
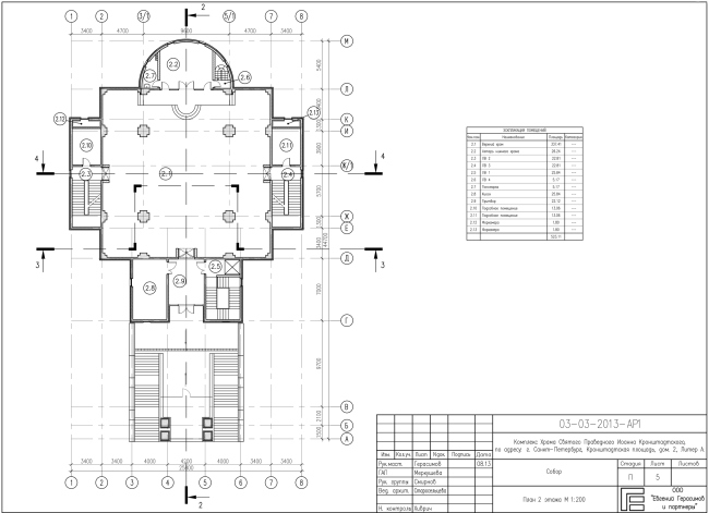
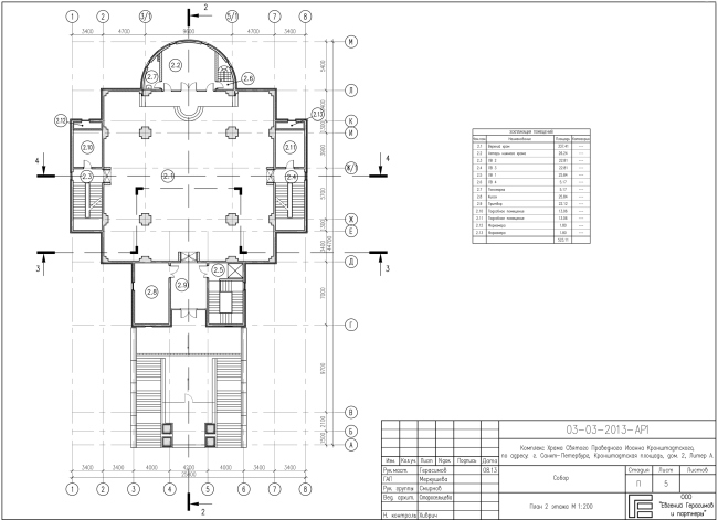
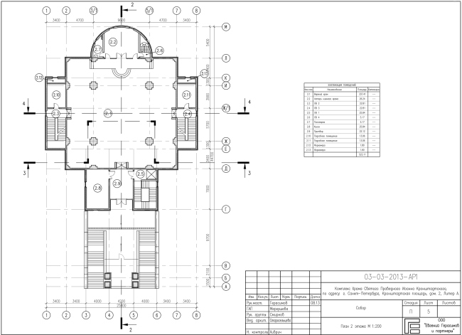
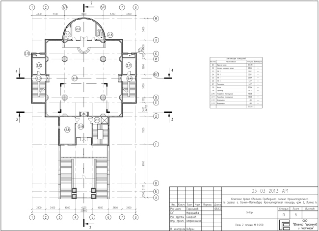
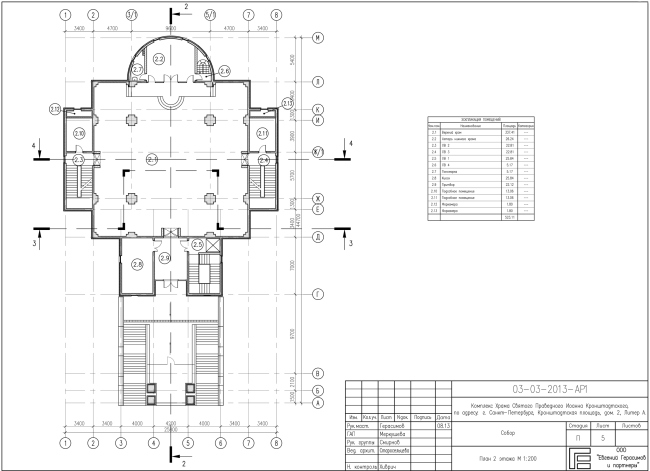
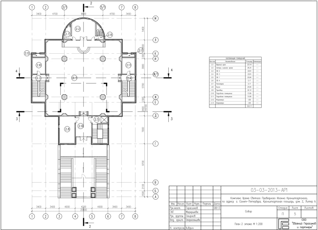
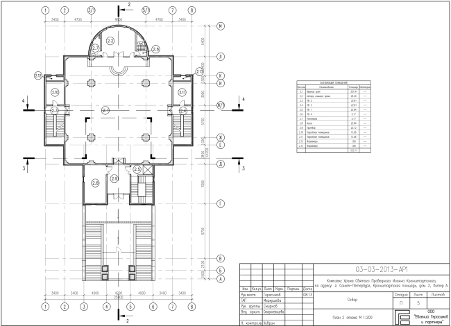
План 2 этажа © Евгений Герасимов и Партнеры
План 2 этажа © Евгений Герасимов и Партнеры
Планы на уровне 3 этажа и барабана © Евгений Герасимов и Партнеры
Планы на уровне 3 этажа и барабана © Евгений Герасимов и Партнеры
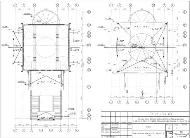
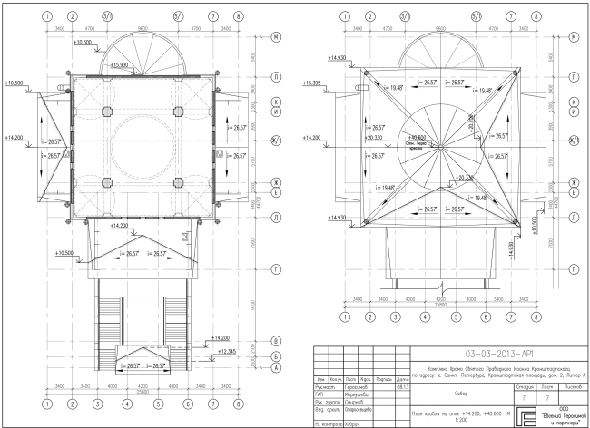
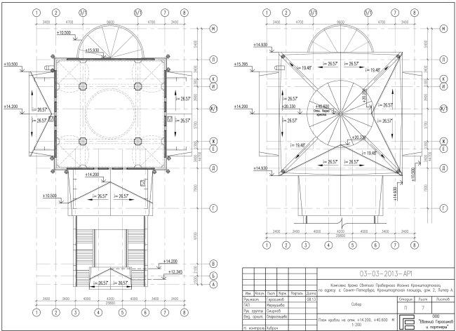
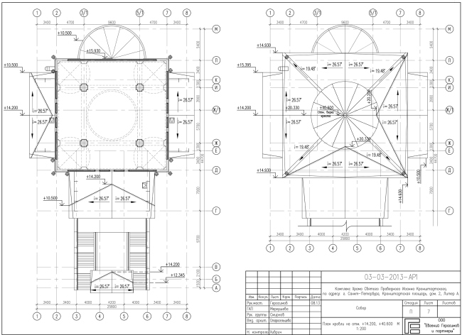
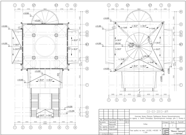
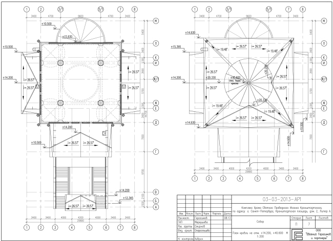
План кровли © Евгений Герасимов и Партнеры
План кровли © Евгений Герасимов и Партнеры
Разрез 2-2 © Евгений Герасимов и Партнеры
Разрез 2-2 © Евгений Герасимов и Партнеры
Разрез 3-3, 4-4 © Евгений Герасимов и Партнеры
Разрез 3-3, 4-4 © Евгений Герасимов и Партнеры
Фасад в осях 1-8, А-М © Евгений Герасимов и Партнеры
Фасад в осях 1-8, А-М © Евгений Герасимов и Партнеры
Фасад в осях 9-1, М-А © Евгений Герасимов и Партнеры
Фасад в осях 9-1, М-А © Евгений Герасимов и Партнеры
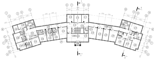
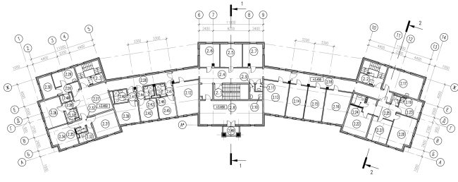
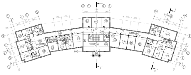
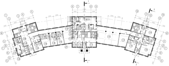
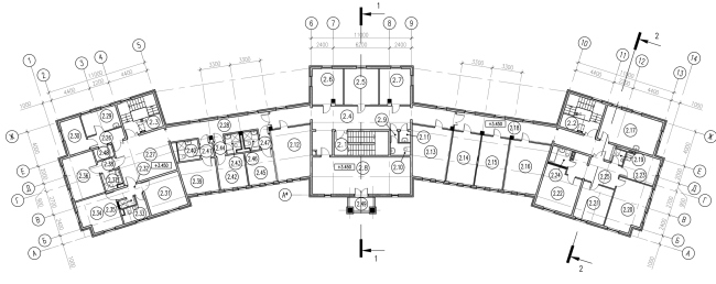
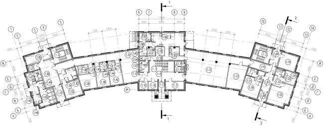
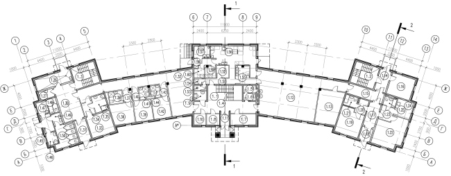
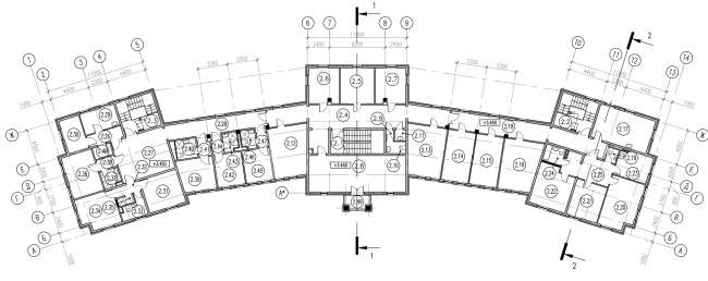
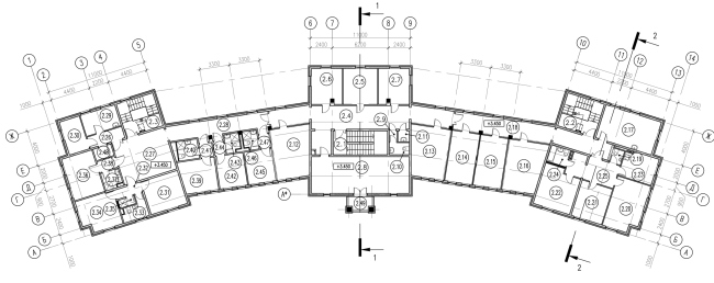
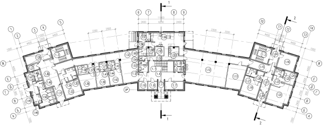
План 1 этажа причтового дома © Евгений Герасимов и Партнеры
План 1 этажа причтового дома © Евгений Герасимов и Партнеры
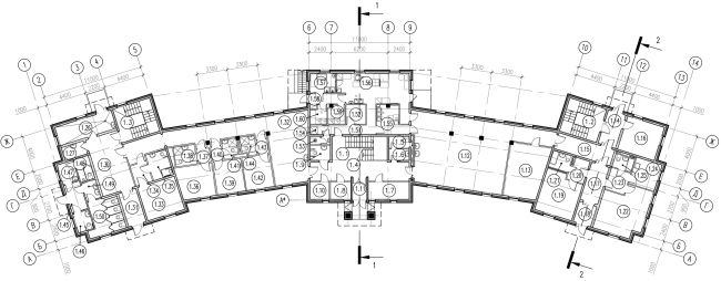
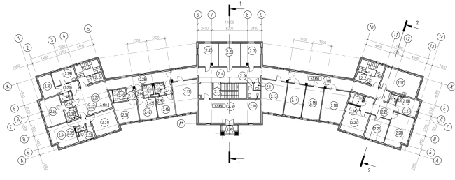
План 2 этажа причтового дома © Евгений Герасимов и Партнеры
План 2 этажа причтового дома © Евгений Герасимов и Партнеры
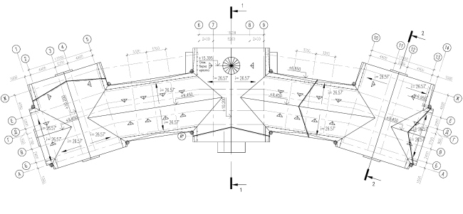
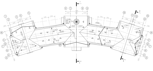
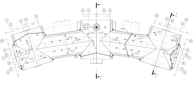
План кровли причтового дома © Евгений Герасимов и Партнеры
План кровли причтового дома © Евгений Герасимов и Партнеры
Причтовый дом. Разрез 1-1, 2-2 © Евгений Герасимов и Партнеры
Причтовый дом. Разрез 1-1, 2-2 © Евгений Герасимов и Партнеры
Причтовый дом. Фасад в осях 1-14, Б-Ж © Евгений Герасимов и Партнеры
Причтовый дом. Фасад в осях 1-14, Б-Ж © Евгений Герасимов и Партнеры
Причтовый дом. Фасад в осях 14-1, Ж-Б © Евгений Герасимов и Партнеры
Причтовый дом. Фасад в осях 14-1, Ж-Б © Евгений Герасимов и Партнеры