|
Продолжаем публикацию дипломных проектов студентов архитектурной школы МАРШ. Студия Рубенса Кортеса и Антона Егерева Силва.
Современная Москва стремительно стареет. Огромный процент зданий сегодня требует серьезного ремонта, другие же и вовсе предполагается сносить ввиду их катастрофической изношенности. Преподаватели и студенты школы МАРШ задумались над проблемой ветхого фонда московской застройки. По мнению Рубенса Кортеса и Антона Егерева Силва, формула «снос-реконструкция», которая на протяжении многих лет являлась единственным серьезным урбанистическим инструментом, сегодня перестала работать. Становится очевидным, что городу необходима серьезная регенерация пространства, предполагающая поиск новых архитектурных типологий и внедрение современных градостроительных приемов.
Антон Егерев Силва, руководитель студии школы МАРШ:
«Для исследования студентам была предложена сложная и глубокая тема – «Незавершенная Москва». Мы попробовали еще раз взглянуть на город, в котором мы все живем, заглянуть в его микрорайоны, построенные по модели, созданной в советские времена, но актуальной до сих пор. Микрорайонная застройка и сегодня остается самой распространенной не только в Москве, но и по всей территории России, где, несмотря на произошедшие за последние 20 лет существенные изменения, ничего не поменялось с точки зрения городского пространства.
Незавершенный город – это город, в котором большинство реализованных урбанистических идей, казавшихся правильными в 1970-е и 1980-е гг., в современном мире становятся препятствием для достижения лучшего уровня жизни, а потому требуют пересмотра и корректировки. Вместе с ними необходимо по-новому взглянуть на такое советское наследие, как панельная застройка Москвы или типовые проекты. Кроме того, к современной ситуации следует адаптировать созданные в СССР общественные пространства – так называемые зоны отдыха жителей. Сегодня все экспертное и профессиональное сообщество, а вместе с ними и жители города приходят к пониманию несостоятельности микрорайонной застройки, которая не позволяет создавать комфортную и безопасную среду. Поэтому люди с надеждой смотрят в будущее, где город, наконец, обретет завершенный вид.
Вместе со студентами школы МАРШ мы попытались понять, почувствовать город и предложить конкретные шаги по его преобразованию. В качестве площадки для исследования был выбран один из московских районов – Новокосино. Работа над дипломным проектом была разделена на две части: подробное исследование и собственное проектное предложение. На этапе исследования и анализа студенты должны были детально ознакомиться с рассматриваемой территорией, изучить статистику, существующую застройку, транспортную ситуацию, социальную и бытовую инфраструктуру. Также студенты общались с местными жителями, пытаясь понять их отношение к месту своего жительства.
Каждый студент был ответственен за отдельную часть микрорайона, что позволило нам наиболее полно изучить и понять существующие проблемы. Результаты исследования во многом подтвердили наши ожидания, но в то же время показали, что все не так плохо, как мы думали, приступая к работе: многие жители оказались вполне довольны своим районом, его инфраструктурой и благоустройством. Помимо изучения существующей ситуации, исследовательская часть включала исторический обзор и анализ генерального плана.
Тему для проекта студенты выбирали самостоятельно, предлагая собственный подход и конструктивные решения имеющихся проблем. В результате был создан целый ряд самых разных проектов, позволивших нам получить очень хорошую базу предложений по улучшению места. Темы варьировались от предложений по преобразованию общественных пространств и городских парковок до проектов повторного использования зданий.
Важно, что мы предложили студентам поработать в условиях реального города, который их окружает. Таким образом, мы рассматривали не только архитектуру и урбанизм, но и историю, социологию, политические изменения. Результаты нашего исследования, проекты, предложенные студентами, очень сильно разнятся между собой, что, с одной стороны, затрудняет общую оценку проделанной работы, а с другой – дает почву для дальнейшей дискуссии о нашем городе».
Проекты, отмеченные руководителями студии:
Мария Тюльканова
 Проект Марии Тюлькановой
На окраине района Новокосино располагается крупный лесопарк, который практически не используется жителями района ввиду отсутствия связи между жилой застройкой и лесным массивом, а также находящейся там изолированной промышленной территории и комплекса заброшенных теплиц. Автор проекта предлагает преобразовать эту зеленую пограничную зону вместе с заброшенными зданиями в новую точку социальной активности, причем без привлечения очень крупных инвестиций.
Дипломный проект Марии Тюлькановой. Премия школы Cass-2014. Предоставлено МАРШ
Дипломный проект Марии Тюлькановой. Премия школы Cass-2014. Предоставлено МАРШ
Проект Марии Тюлькановой
Дипломный проект Марии Тюлькановой. Премия школы Cass-2014. Предоставлено МАРШ
Проект Марии Тюлькановой
*** Александра Эминова
Проект Александры Эминовой
Данный проект кажется более утопичным, чем все прочие. Однако он может быть рассмотрен как вызов для дальнейших размышлений на заданную тему. Проект рассматривает один из районных блоков, как изолированный от города «остров», замыкая периметр. Вместо отдельно стоящих зданий получается квартал. Новые здания с новыми социальными программами, такими как коворкинг и студенческое общежитие, встраиваются между торцами панельных домов.
Проект Александры Эминовой
Проект Александры Эминовой
Проект Александры Эминовой
Проект Александры Эминовой
Проект Александры Эминовой
Проект Александры Эминовой
Проект Александры Эминовой
*** Михаил Сергеев. Александра Ковалева
Проект Михаила Сергеева
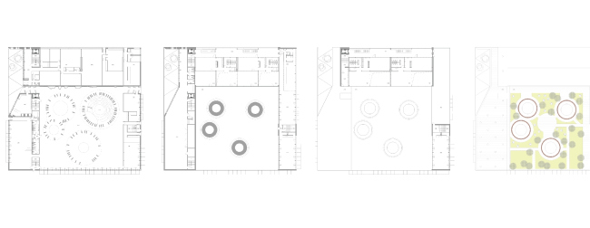
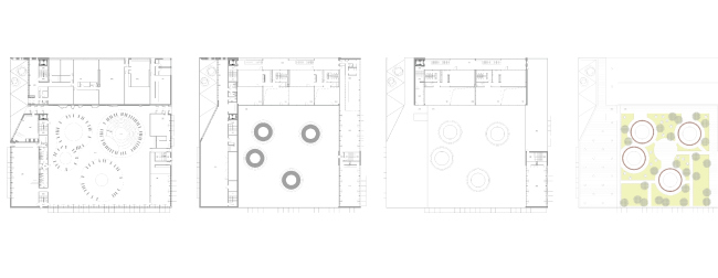
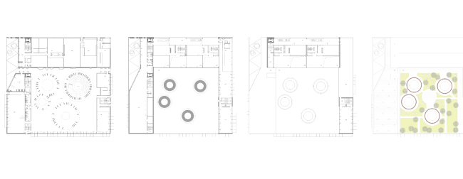
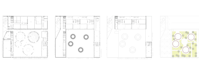
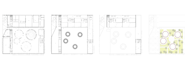
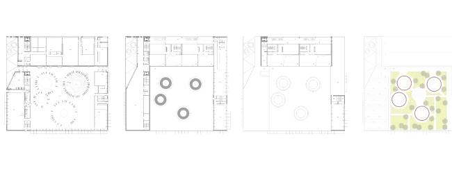
Микрорайон, помимо жилой застройки, всегда включал детские сады и школы. Однако здания образовательных учреждений, которые и сегодня используются по своему прямому назначению, в большинстве своем находятся в весьма плачевном состоянии и требуют капитального ремонта. Студенты предложили различные взгляды на решение данной проблемы. Одни посчитали, что правильнее снести существующие здания и заменить их новыми, другие, напротив, предложили их сохранять и трансформировать. Так, Михаил Сергеев предложил построить новый детский сад на месте старого, значительно увеличив его социальную значимость и расширив внутреннюю программу за счет добавления, в том числе, коммерческих функций.
Проект Михаила Сергеева
Проект Михаила Сергеева
Проект Михаила Сергеева
Проект Михаила Сергеева
Проект Михаила Сергеева
Проект Михаила Сергеева
*** Александра Ковалева решила преобразовать существующее здание школы, которая с появлением современной медиатеки и нового общественного пространства сможет расширить свое образовательное влияние в районе.
Проект Александры Ковалевой
Проект Александры Ковалевой
Проект Александры Ковалевой
Проект Александры Ковалевой
Проект Александры Ковалевой
Проект Александры Ковалевой
|