|
Продолжаем публикацию дипломных проектов студентов архитектурной школы МАРШ. Студия Евгения Асса и Кирилла Асса.
Евгений Асс в качестве темы для исследования предложил своим студентам еще раз обратиться к самой дорогой, самой проблемной и политизированной площадке в историческом центре Москвы – к Зарядью. Несмотря на решение властей города о создании на этом месте большого городского парка и несмотря на успешно проведенный конкурс, тема Зарядья, по мнению дипломных руководителей студии, еще не закрыта. В связи с этим учащимся был задан вопрос, действительно ли парк является лучшим и единственным решением для данной территории и для Москвы в целом? В течение всего образовательного курса этого года они пытались ответить на поставленный вопрос, по-новому осмыслить место, рассматривая его как неотъемлемую часть города.
Учебный процесс начался с глубокого исследования пространственной и функциональной организации исторических центров крупнейших городов мира. Подробный исторический анализ территории и в разное время разработанных для нее проектных предложений позволил детально познакомиться с участком, понять его основные особенности, проследить этапы эволюции. Следующим шагом стала совместная разработка концепции развития и генерального плана Зарядья. Сложная и многосторонняя работа над генпланом, в которой были задействованы не только сами студенты и их педагоги, но и приглашенные эксперты и консультанты, была завершена только в феврале. Последней стадией стали индивидуальные проекты отдельных зданий, встроенных в общий генплан, самостоятельно спроектированные каждым студентом.
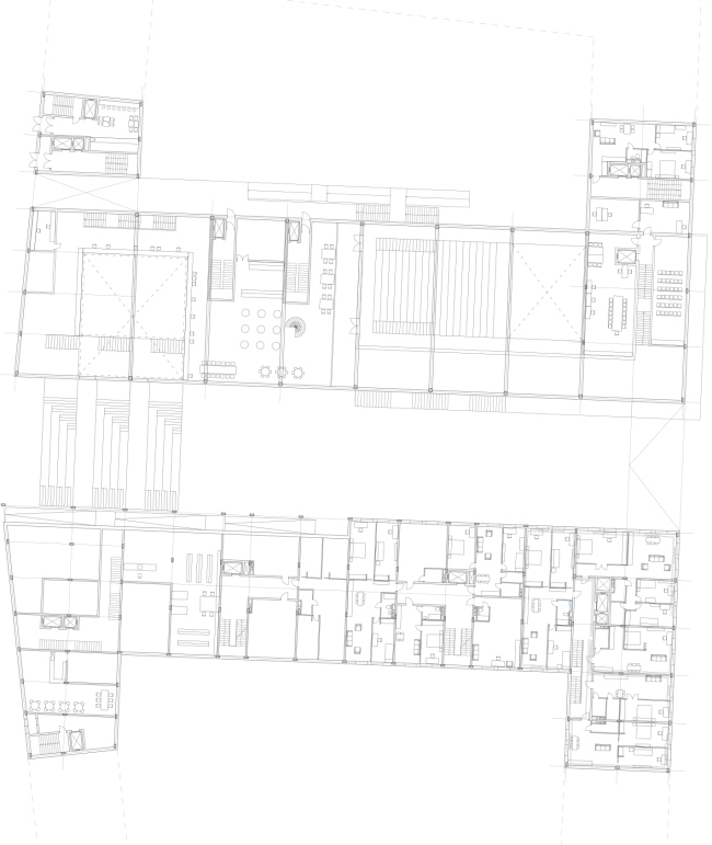
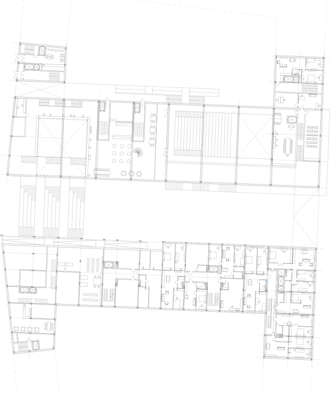
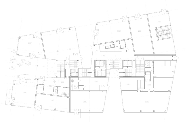
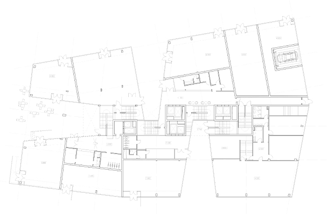
 Генеральный план Зарядья
Евгений Асс, руководитель студии :
«Тема «Пере-Зарядье» возникла как попытка переосмысления того подхода к данной территории, который был выработан в результате проведенного международного конкурса на концепцию парка «Зарядье». Решение о создании на этом месте парка я, как и многие мои коллеги, не считаю однозначно самым удачным и единственным возможным. Поэтому было интересно подумать, как выглядело бы это место, если, не принимая во внимание его почти сакральное значение, там было бы принято решение о появлении обычной городской застройки. И уже первые наши исследования, консультации с экспертами, представителями бизнеса, культурологами и специалистами по транспорту показали, что такая перспектива возможна и не лишена смысла.
Была проведена огромная исследовательская работа, которая с новой и довольно необычной точки зрения рассматривает площадку в общем контексте московского центра. Проектные решения охватывают не только Зарядье, но и прилегающие территории – Красную площадь, Кремль, улицу Варварка, Москворецкий мост и т.д. Анализ участка вскрыл много неожиданных подробностей относительно жизни этого района, в котором на сегодняшний день располагаются в основном административные здания, закрытые для публики, а большая часть территории не имеет проницаемости, из-за чего посетителей там совсем немного. В своем генплане мы как раз и попытались эти проблемы решить.
Совместная работа нашей студии над генеральным планом участка шла полгода. Мы не ставили задачу воспроизведения старой застройки, даже сетка улиц рассматривалась в перспективе всех временных изменений, а не буквального следования оригинальной планировке. Хотя, разумеется, главные исторические трассы, сохраняющие структуру места, учитывались. Студенты работали над созданием застройки, характерной для городского центра, где большая часть зданий отдана под жилье, а их первые этажи отведены под общественные функции – от магазинов и кафе до книжных центров и художественных галерей. В феврале была утверждена основная структура мастер-плана, определен функциональный состав зданий, из числа которых каждый студент выбрал себе одно для создания индивидуального проекта.
Была сформирована довольно разнообразная и функционально насыщенная застройка. Подавляющее большинство жилых зданий включают в свой состав дополнительные функции – киноцентры, библиотеки, галереи. Также были предусмотрены две гостиницы и необходимая для жилого района, в котором по нашим подсчетам должно проживать порядка 4,5 тысяч человек, школа. Как дополнительный центр культуры общегородского значения на территории района появился музыкальный вуз. Нам хотелось, чтобы в этом районе присутствовали такие культурные очаги, при этом мы намеренно избегали появления крупномасштабных объектов, способных привлечь большое количество публики, чтобы избежать транспортных осложнений.
В результате получилось пространство с большим количеством зелени, пешеходных дорог и бульваров. Необычно обыграна набережная, вдоль которой проходит линия трамвая, пересекающая и всю Красную площадь. В проекте много радикальных предложений, которые стали поводом для продолжения дискуссии вокруг Зарядья. Этот проект неизбежно вызвал большой интерес и волну социально-политических обсуждений, затронувших весь исторический центр Москвы. Это вовсе не означает, что мы пытаемся отменить распоряжение правительства и результаты конкурса. Но поставить такую проблему перед городом, нам казалось важным. На мой взгляд, для школы МАРШ и для московского градостроительства в целом этот опыт был полезным и поучительным.
Что касается индивидуальных проектов, то студенты предложили массу своеобразных и талантливых решений. Перед ними была поставлена конкретная задача создать нормальный город, поэтому никаких иконических сооружений заведомо не предполагалось, напротив – требовалось спроектировать серьезные и качественные сооружения. И они с этим отлично справились. Проекты получились достаточно разнообразными. Мне кажется, что ребята получили удовольствие от этой работы и успели глубоко проникнуть в проблемы Москвы и ее исторического центра».
Публикуем дипломные проекты, отмеченные руководителем студии:
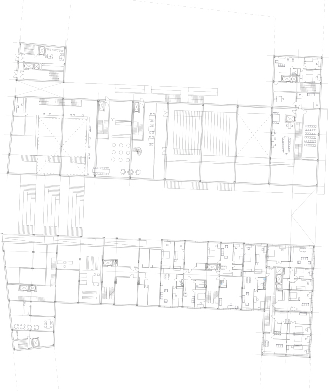
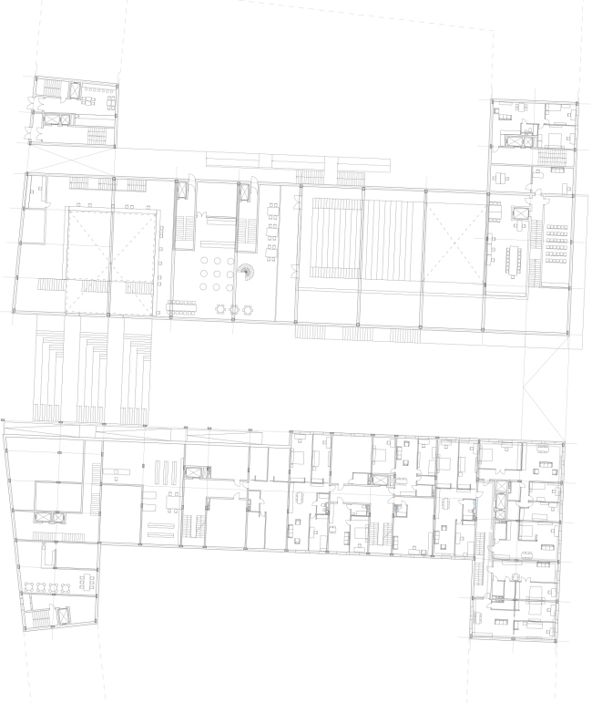
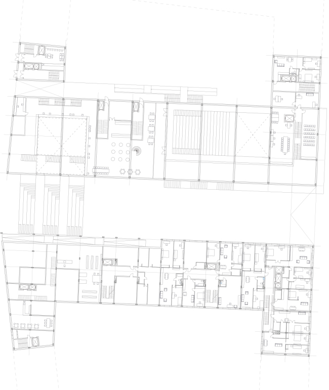
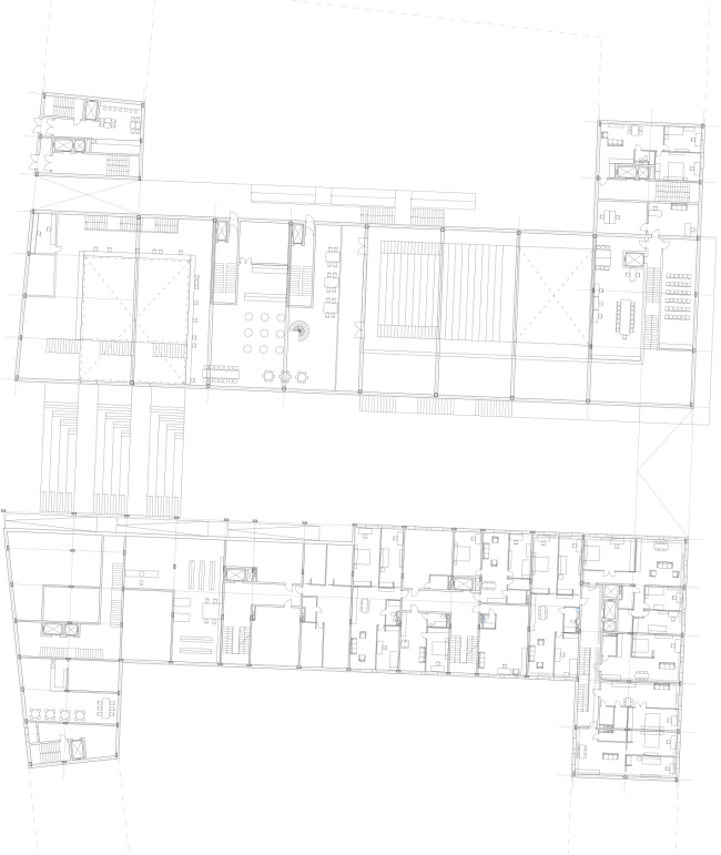
Валерия Самович. Жилой комплекс с театром
Лера Самович. Жилой комплекс с театром
Сложный и необычный проект включает группу жилых домов, которые помимо собственно жилой функции вмещают театр и другие учреждения культуры. Комплекс частично выходит на набережную, открывая красивый вид из окон жилых квартир, а частично формирует пешеходную театральную улицу.
Лера Самович. Жилой комплекс с театром
Лера Самович. Жилой комплекс с театром
Лера Самович. Жилой комплекс с театром
Лера Самович. Жилой комплекс с театром
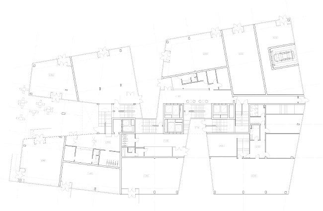
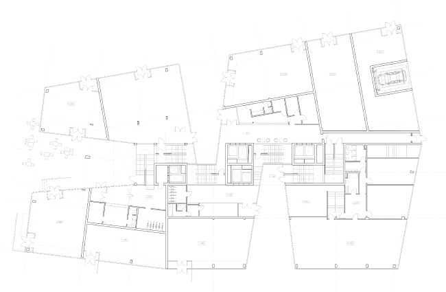
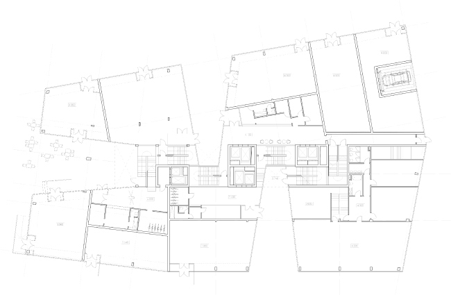
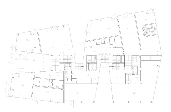
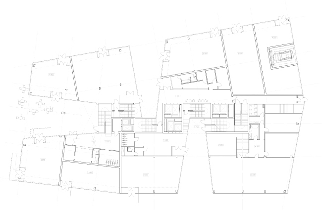
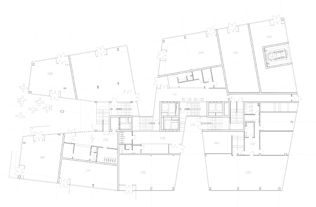
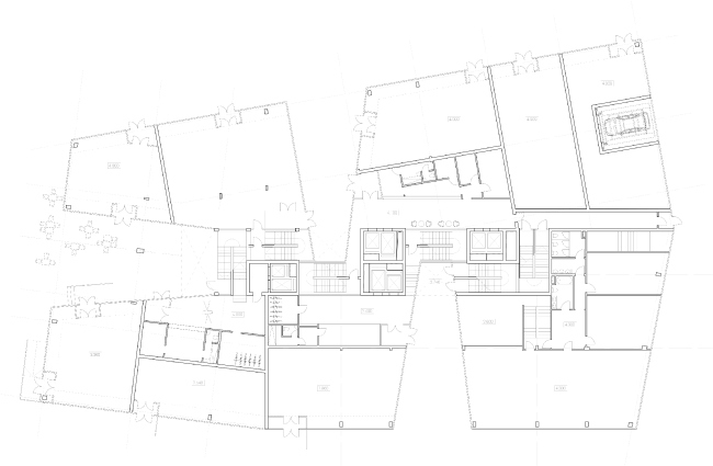
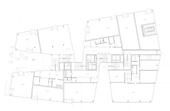
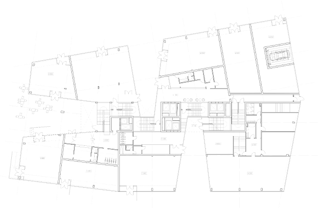
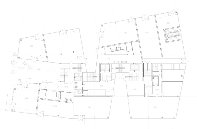
Мария Карцева. Многофункциональный комплекс
Мария Карцева. Многофункциональный комплекс
Мария Карцева разработала интересную типологию необычно широкого корпуса размером почти в квартал. Уникальное сооружение с довольно сложной центральной системой коммуникаций объединяет жилой дом, общежитие и офисы.
Мария Карцева. Многофункциональный комплекс
Мария Карцева. Многофункциональный комплекс
Мария Карцева. Многофункциональный комплекс
Анастасия Вайнберг. Высшая музыкальная школа
Ася Вайнберг. Высшая музыкальная школа
Проект интересен в первую очередь с точки зрения градостроительного решения. Автор решительно встраивает здание внутрь квартала, обращая его фасады сразу к двум разным улицам.
Ася Вайнберг. Высшая музыкальная школа
Ася Вайнберг. Высшая музыкальная школа
Ася Вайнберг. Высшая музыкальная школа
Ася Вайнберг. Высшая музыкальная школа
Андрей Свиридов. Гостиница
Андрей Свиридов. Гостиница
Андрей Свиридов предложил рискованный проект здания гостиницы, фасад которой выходит практически на Красную площадь.
Андрей Свиридов. Гостиница
Андрей Свиридов. Гостиница
Андрей Свиридов. Гостиница
Андрей Свиридов. Гостиница
Даниил Макаров. Музей исчезнувших домов
Даниил Макаров. Музей исчезнувших домов
Проект решает задачу взаимосвязанности улицы Варварка, вдоль которой почти непрерывной цепочкой тянуться памятники архитектуры, с проектируемыми кварталами Зарядья.
Даниил Макаров. Музей исчезнувших домов
Даниил Макаров. Музей исчезнувших домов
Даниил Макаров. Музей исчезнувших домов
Даниил Макаров. Музей исчезнувших домов
|