Размещено на портале Архи.ру (www.archi.ru)

24.04.2014

Джентльмен и хайтек

Юлия Тарабарина
Объект:
Жилой дом в Ковенском переулке
Адрес:
Россия, Санкт-Петербург.
Мастерская:
Евгений Герасимов и партнеры
Авторский коллектив:
Руководитель авторского коллектива: Евгений Львович Герасимов. Главный архитектор проекта: Петрова З.В. Руководитель группы архитекторов: Резникова Е.А. Архитекторы: Орлова-Шейнер М.Е., Манов О.В., Гвоздик А.Г. Главный конструктор: Резниченко М.Я. Руководитель группы конструкторов: Алексеева Н.В. Конструкторы: Белова Т.В., Ингер М.Л., Астапчик Д.А., Коблов А.А., Лебедева Т.Л. Инженерные разделы: ООО «Эдванс-И» Главный инженер проекта: Гражданова Н.В.

Камень и стекло, стилизация и современность, католическая романика и стекло с металлом – Евгению Герасимову удалось связать все эти темы в один непротиворечивый образ.

Жилой дом в Ковенском переулке © «Евгений Герасимов и партнеры»
Жилой дом в Ковенском переулке © «Евгений Герасимов и партнеры»

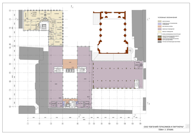
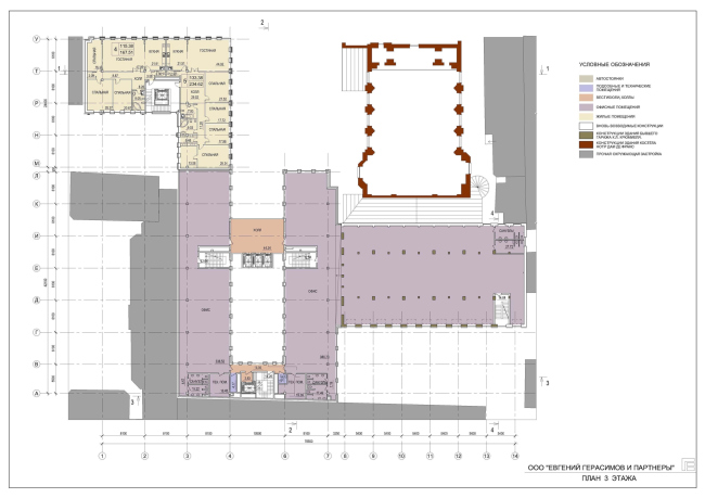
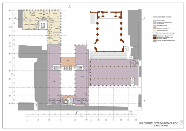
Ковенский переулок находится в не вполне туристической, хотя исторической и приятной для прогулок части Петербурга, между Литейным и Лиговским проспектом, в районе, застроенном доходными домами XIX – начала XX века с редкими сталинскими вкраплениями. Безусловная жемчужина переулка – костел Лурдской Богоматери, здание начала XX века с бетонным сводом и брутально-романтическим гранитным фасадом.
Костел построен в 1903–1909 по проекту Леонтия Бенуа и Мариана Перетятковича для католической общины при французском посольстве. Известен в числе прочего тем, что в советское время он был единственным действующим католическим храмом в городе.

Здесь-то, в «объединенной охранной зоне», в 2004 году было разрешено, а в 2008 году началось строительство. Шесть лет назад проект был совершенно другим: 9-этажный дом с подземной стоянкой, спроектированный ООО «Пирамида», вызвал возмущение градозащитников и письма в адрес городских властей (см. «Живой город»). Затем проект радикально переработали (точнее будет сказать сделали заново) в мастерской Евгения Герасимова. Недавно строительство завершилось и даже у строгих к новшествам перебуржцев получившийся дом вызвал сдержанное приятие: «новый дом… тактично отнесся к окружающей среде и отчасти даже дополнил ее» – пишет Константин Бударин в Art1, одобрительно замечая, что …архитектор отказался от «неоклассических экзерсисов».
Если говорить о примере современной постройки, встроенной в ткань исторического города, этот дом – несомненная удача. Евгению Герасимову удалось не только снизить этажность и перенести подземную парковку на уровень первого этажа, избежав выкапывания котлована среди исторической застройки, но и тонко сыграть на антитезе  современного – исторического, построив архитектуру своего дома на почти классическом для XX века сопоставлении современности и историзма – теме, актуальнее которой для нового здания, построенного в историческом центре, в принципе придумать нельзя.

На красную линию переулка выходит жилой корпус, на первый взгляд – совершенно каменный. Легкая шершавость юрского камня сдержанно реагирует на грубоватый колотый руст гранита костела Бенуа-Перетятковича; французскую тему подхватывают рельефные вставки, ритмично разбросанные по фасаду нового дома – королевские лилии и узорчатые кресты. Они отвечают за «литературную» составляющую взаимодействия с контекстом, то есть почти буквально указывают на соседство с французской церковью и образ средневековой романики, присвоенный этому месту архитекторами-романтиками начала XX века.
Жилой дом в Ковенском переулке
Жилой дом в Ковенском переулке
© «Евгений Герасимов и партнеры»
Жилой дом в Ковенском переулке © «Евгений Герасимов и партнеры»
Жилой дом в Ковенском переулке © «Евгений Герасимов и партнеры»
Жилой дом в Ковенском переулке © «Евгений Герасимов и партнеры»
Жилой дом в Ковенском переулке © «Евгений Герасимов и партнеры»

Впрочем, на южнофранцузскую тему авторы смотрят через призму XX века, что особенно ощущается при взгляде на каменный объем жилого дома с самой выигрышной северо-восточной точки, со стороны костела и школьного здания 1930-х годов (архитектора Давида Бурышкина). Благодаря тому, что, отступив от стен костела, архитекторы устроили перед домом миниатюрную городскую площадь, – не сквер, а именно вымощенную каменную площадь, как в Венеции или в той же южной Франции, – так вот, благодаря отступу площади мы видим сразу два фасада каменного объема. Фасады совершенно одинаковы, покрыты регулярной сеткой окон с равными простенками, – отчего объем приобретает какие-то совершено кристаллические, метафизические качества. Здесь нет брандмауэра, фасадов главного и второстепенного, а есть строго организованная материя, воплощенное геометрическое правило. Тема, надо сказать, не новая, а напротив, очень популярная в сдержанно-классицизирующем направлении архитектуры XX века от кубического EUR-а Муссолини до тонких сеток Дэвида Чипперфильда (и, в частности Сергея Чобана, в партнерстве с которым Евгений Герасимов не так давно построил несколько зданий).

Словом, жилая часть комплекса с выигрышной северо-восточной точки кажется совершенным каменным кубом, прорезанным равными рядами окон, идеальной формой, пребывающей в пространстве, которое от этого становится как будто чуточку идеальнее. Несмотря на обилие стен и «каменность», с точки зрения классической архитектуры здание все же выглядит слишком прорезано, больше похоже на плотную каменную решетку, чем на традиционный массив с окнами. Если бы метафизическое ар-деко 1930-х надумало построить что-то романское, получился бы похожий дом; стилистически это отчасти связывает его с уже упомянутым школьным зданием. Казалось бы, костел Бенуа и школа Бурышкина – страшно далеки, прежде всего идеологически, и однако же стилизация, приправленная приемами ар-деко, позволила новому зданию найти общий язык с двумя, такими разными, соседями. Если же мы взглянем на новый дом с противоположной, западной стороны улицы, то здесь он встроен в линию доходных домов Петербурга – это третья тема архитектурного рассуждения, еще один оммаж контексту.
Жилой дом в Ковенском переулке
Жилой дом в Ковенском переулке
© «Евгений Герасимов и партнеры»
Жилой дом в Ковенском переулке © «Евгений Герасимов и партнеры»
Жилой дом в Ковенском переулке © «Евгений Герасимов и партнеры»

Можно сказать, что выходящий на красную линию переулка жилой объем впитал в себя всю консервативную часть партитуры: фактурный камень, многозначительные кресты и лилии, геометрическая строгость – все служит контексту, строю улицы, откликается на соседние здания, аккуратно привнося свое. Дом-дипломат говорит не меньше, чем на трех языках, в меру консервативен, в меру подтянут, не чужд размышлений о перипетиях истории… Неудивительно, что столь респектабельный джентльмен вышел вперед.
Жилой дом в Ковенском переулке
Жилой дом в Ковенском переулке
© «Евгений Герасимов и партнеры»

Второй объем, входящий в состав комплекса – совершенно противоположен первому, строго воспитанному консерватору. Об архитектуре, спрятанной в глубине двора офисной части хочется сказать, что этот второй дом – затаившийся оппозиционер, стеклянное современное тело внутри исторического квартала. Офисная часть, конечно же, не совсем стеклянная, это было бы слишком просто и прямолинейно. Но вот ее двор-атриум – стеклянный совершенно, и переход в него тоже состоит целиком из стекла. Он расположен за миниатюрной площадью между костелом и жилым домом (о которой мы уже упоминали) и нанизан с этой мини-площадью на одну общую ось, перпендикулярную линии улицы. Перпендикуляр – символ противоположности, – более чем уместен. Двор противопоставлен улице, стекло – камню городского фасада.
Жилой дом в Ковенском переулке © «Евгений Герасимов и партнеры»
Жилой дом в Ковенском переулке © «Евгений Герасимов и партнеры»
Жилой дом в Ковенском переулке © «Евгений Герасимов и партнеры»
Жилой дом в Ковенском переулке © «Евгений Герасимов и партнеры»
Жилой дом в Ковенском переулке © «Евгений Герасимов и партнеры»
Жилой дом в Ковенском переулке © «Евгений Герасимов и партнеры»
Жилой дом в Ковенском переулке © «Евгений Герасимов и партнеры»
Жилой дом в Ковенском переулке © «Евгений Герасимов и партнеры»

Но хайтектовская материя будущего не только противопоставляет себя традиционному камню и прячется, вынашивая свои футуристические блики в спокойной тишине делового двора. Она еще и наблюдает, обрамляет и демонстрирует город, любуется им. Стеклянный коридор выстраивает перспективное взаимодействие между двумя дворами и городом – выходя из стерильного офисного блеска мы погружаемся в город послойно-постепенно, переходим к нему через посредство театрально-архитектурной постановки. Разыгранная здесь тема – совершенно классическая и, если вдуматься, она продиктована обстоятельствами. Иначе и быть не могло: офисы вещь современная, их полагается строить из стекла (хотя бы ради освещения рабочих мест), но в центре города стекло не приветствуется. Каменный жилой дом представительствует и ведет диалог, офис же прячется внутри, отчего энергетика его стеклянного образа только усиливается, приобретает вместо рутинной офисной скуки неожиданную спектакулярность и напряжение.
Жилой дом в Ковенском переулке © «Евгений Герасимов и партнеры»
Жилой дом в Ковенском переулке © «Евгений Герасимов и партнеры»
Жилой дом в Ковенском переулке © «Евгений Герасимов и партнеры»
Жилой дом в Ковенском переулке © «Евгений Герасимов и партнеры»
Жилой дом в Ковенском переулке © «Евгений Герасимов и партнеры»
Жилой дом в Ковенском переулке © «Евгений Герасимов и партнеры»
Жилой дом в Ковенском переулке © «Евгений Герасимов и партнеры»
Жилой дом в Ковенском переулке © «Евгений Герасимов и партнеры»
Жилой дом в Ковенском переулке © «Евгений Герасимов и партнеры»
Жилой дом в Ковенском переулке © «Евгений Герасимов и партнеры»

Впрочем, между классикой и современностью имеется переход: в отличие от стеклянного атриума внешняя стена офисной части решена в духе holland wall – стены гладкого юрского камня со свободным ритмом окон. Прием, крайне популярный в 2000-х и теперь уже порядком надоевший здесь вполне уместен, так как образует промежуточную ступеньку между жесткой классицизированной сеткой кубического объема и совершенно прозрачным стеклом атриума. Переходный мотив «сращивает» половинки комплекса, – сложно сказать, возможно, без этого примиряющего слоя архитектурное высказывание прозвучало бы острее; но, с другой стороны, переходный фасад добавляет решению не только сложности, но и эмоциональной гармонии.
Жилой дом в Ковенском переулке © «Евгений Герасимов и партнеры»
Жилой дом в Ковенском переулке © «Евгений Герасимов и партнеры»
Жилой дом в Ковенском переулке © «Евгений Герасимов и партнеры»
Жилой дом в Ковенском переулке © «Евгений Герасимов и партнеры»
Жилой дом в Ковенском переулке
Жилой дом в Ковенском переулке
© «Евгений Герасимов и партнеры»
Жилой дом в Ковенском переулке © «Евгений Герасимов и партнеры»
Жилой дом в Ковенском переулке © «Евгений Герасимов и партнеры»
Жилой дом в Ковенском переулке © «Евгений Герасимов и партнеры»
Жилой дом в Ковенском переулке © «Евгений Герасимов и партнеры»
Жилой дом в Ковенском переулке © «Евгений Герасимов и партнеры»
Жилой дом в Ковенском переулке © «Евгений Герасимов и партнеры»
Жилой дом в Ковенском переулке © «Евгений Герасимов и партнеры»
Жилой дом в Ковенском переулке © «Евгений Герасимов и партнеры»

Помимо театрально разыгранной темы «классика–современность» комплекс обладает своим секретом. Левее новой офисной части, то есть прямо за костелом, расположено здание бывшего гаража фирмы Крюммеля, который был отремонтирован и включен в состав офисного корпуса. 
Вокруг здания гаража, построенного в 1909–1910 годах, известного как первая в Петербурге постройка с железобетонными перекрытиями и плоской кровлей и наделенного статусом выявленного памятника наследия, во время строительства комплекса «Ковенский, 5» также развернулись споры. Строители снесли расположенное рядом четырехэтажное здание мастерских, которое не имело охранного статуса, хотя и составляло, по словам историка Бориса Кирикова, с гаражом единый комплекс. Снос мастерских вызвал возмущение среди петербургских градозащитников: многие решили, что снесли сам гараж, и хотя девелоперы проекта опровергли эту информацию, им поверили не все. Между тем следует признать, что гараж цел, снесены мастерские.
Жилой дом в Ковенском переулке © «Евгений Герасимов и партнеры»
Жилой дом в Ковенском переулке © «Евгений Герасимов и партнеры»

Вобрав в себя здание гаража, новый комплекс таким образом буквально «врос» в исторический город, стал его частью, как становились и постройки начала XX века, когда различие между современностью и историей уже было осознано, но не так остро, как сейчас, когда любое вторжение в контекст старой застройки воспринимается как враждебное. Между тем взаимодействие между старым, новым и стилизованным началось в Ковенском переулке не десять, а сто лет назад. Костел с его технологически продвинутыми бетонными сводами и романским фасадом; гараж с первым в городе плоским перекрытием и тонкими опорами – в свое время они были на волне прогресса (интересно, что мы сказали бы сейчас, если бы за алтарями церкви начали бы строить парковку?). Здание Евгения Герасимова подхватывает и развивает тему, заостряет противоречие, продолжает диалог, – что позволяет ему при всей деликатности остаться заметным, не подавленным контекстом, а быть полноправной, – и значит, живой, – частью города.