Размещено на портале Архи.ру (www.archi.ru)

21.03.2014

Екатерина Ножова: «Шуховская башня может быть отреставрирована на месте»

Алла Павликова

Историк Шуховской башни – об особенностях ее конструкции, специфике строительной документации (которой фактически нет) и необходимости тщательной экспертизы памятника.

Шаболовская телебашня. Фотография сделана посредством октокоптера. Материалы предоставлены Е. Ножовой
Шаболовская телебашня. Фотография сделана посредством октокоптера. Материалы предоставлены Е. Ножовой

Екатерина Ножова – соавтор нового международного исследования, посвященного творчеству Шухова, и автор диссертации, посвященной, в значительной степени, истории строительства башни на Шаболовке (диссертация написана в Федеральным институте технологий Цюриха). Екатерина входит в несколько европейских обществ историков строительства, главы которых недавно подписали открытое письмо президенту РФ с просьбой предотвратить утрату Шаболовской башни и предложением «профессиональной поддержки научного и инженерного сообществ».

Екатерина рассказала нам об особенностях конструкции башни, попытках ее обследования, а также поделилась своим мнением о возможности реконструкции памятника без строительства дорогостоящих лесов (заявленная стоимость которых, как следует из пояснительной записки к проекту постановления правительства о демонтаже башни, собственно, и сделала приоритетной идею разборки памятника мирового значения).
Екатерина Ножова. Фотография предоставлена Е.Ножовой
Екатерина Ножова. Фотография предоставлена Е.Ножовой

Архи.ру:
– Как возник международный проект, посвященный исследованию творчества Владимира Шухова?

Екатерина Ножова:
– Совместный исследовательский проект Германии, Швейцарии и Австрии был инициирован тремя крупнейшими институтами – Техническим университетом Мюнхена, Университетом Иннсбрука, Федеральным институтом технологий Цюриха (ЕТН), представителем которого я являюсь, и лично Райнером Грефе – автором первой подробной книги, посвященной деятельности Шухова, которая вышла в 1990 году. Райнер Грефе обратился к своим коллегам с просьбой помочь ему в выпуске следующего издания о Шухове, дополненного самыми последними материалами и проектами. В общей сложности мы посвятили данной работе более трех лет, начав исследование в 2010 году. В настоящее время готовится финальный отчет по итогам проделанной работы. Я убеждена, что сведения, полученные в рамках данного проекта, могут быть полезны при проведении реставрационных работ.

– Кто инициировал открытое обращение к президенту РФ?

– На протяжении долгого времени мы следили за судьбой Шуховской башни. В связи с возникшей информацией о ее демонтаже, было принято решение направить открытое письмо Владимиру Путину, подписанное представителями национальных обществ Америки, Германии, Франции, Испании, Италии, Швейцарии, Великобритании и Бельгии. В своем обращении мы предлагаем помощь не только в вопросах консультации, мы готовы активно участвовать в реставрации, предоставить собственных специалистов. В первой версии письма были обозначены даже более конкретные шаги: проведение съезда, обсуждение всех материалов и образцов, которые нам могут быть предоставлены, анализ, экспертиза, и первые меры по консервации башни.

По вашей оценке, что сегодня препятствует консервации башни? Почему принято решение о ее демонтаже?

Проблема в том, что у башни есть собственник, который просто не знает, что делать с такой сложной 150-метровой конструкцией. И, действительно, данный проект требует деликатного и комплексного подхода. Работу над ним нельзя доверить одному отдельному бюро. Здесь понадобятся очень разнопрофильные специалисты: инженеры-обмерщики, специалисты по расчету конструкций, специалисты по металлам и их коррозии. Возможно, что и в России можно собрать такую команду. Мы же готовы прямо сейчас предоставить своих специалистов.

Еще одна серьезная проблема – отсутствие подробной документации. Сохранилось всего несколько чертежей, причем довольно схематичных. На одном из чертежей узлы стыков секций не совпадают с теми, которые можно видеть на построенной башне. Есть основания думать, что этот чертеж был сделан как часть описательной документации и датируется не 1919-м годом, а началом 1940-х. В пользу этой версии говорит и тот факт, что в шапке подписи чертежа указана организация, появившаяся только в 1932 году. Другой имеющийся документ дает представление лишь о пропорциях сооружения. Сохранившийся эскиз фундамента сильно отличается от фундамента построенной башни, а чертеж стыка между двух секций дошел до нас в очень плохом состоянии, что не позволяет составить полное представление о деталях конструкции.

При сборе всех исходных материалов мы также обратились в ЦНИИПСК им. Мельникова, созданный на базе фирмы Александра Бари, в которой работал Шухов. В институте сохранились несколько обследований 1947 и 1971 годов. Галина Шеляпина, ведущий инженер института, показала мне эти чертежи. Но когда я лично поднялась на башню, стало очевидно, что и в них есть существенное несоответствие действительности. Недостаточно знать просто пропорции, необходима полная информация о стыках, наклонных стойках, которые собирались из нескольких профилей, что напрямую было связано с методом монтажа без строительных лесов. Этой информации, к сожалению, у нас нет.

Поэтому прежде чем говорить о консервации и реставрации, необходимо провести тщательные обмеры, обследования и составить карту объекта со всеми его повреждениями. Следующим шагом должно стать создание документации башни с точными размерами всех профилей и оценкой их состояния.
Шаболовская телебашня. Степень коррозии. Фотография предоставлена Е.Ножовой
Шаболовская телебашня. Степень коррозии. Фотография предоставлена Е.Ножовой

Тот факт, что башня остро нуждается в ремонте, обсуждается уже очень давно. Что до сих пор мешало провести то обследование, о котором Вы говорите?

Объект очень большой и сложный. Надо понимать, что даже большая команда верхолазов не способна обмерить башню за короткие сроки вручную.

Полтора года назад совместно с российской Академией наук и Государственным институтом авиационных систем мы пытались провести обследование с помощью небольшого летательного аппарата – октокоптера. Полтора года потребовалось нам и директору института Сергею Желтову только на то, чтобы получить разрешение на полет вокруг башни. Когда же это разрешение было получено, выяснилось, что на башне установлено огромное количество датчиков сотовой связи, которые создают мощное магнитное поле. Это поле не позволило полноценно управлять октокоптером, а следовательно – выполнить задуманное. Однако помимо нас подобные проекты пытались осуществить и другие компании. Сергей Желтов продолжил проект обмеров с компанией ZALA AERO. Им удалось получить снимки, сделанные с помощью фотограмметрического обследования. Эти фотографии воссоздают довольно точную модель, однако воспроизвести по ним детали не удается. С той же проблемой мы столкнулись при изучении материалов, подготовленных Академией наук два года назад в ходе лазерного сканирования башни. Данная работа проводилась под руководством Андрея Леонова из Института истории, естествознания и техники. Им удалось сделать самую точную модель из всех ныне существующих. Но и она дает только геометрию сооружения, не воссоздавая узлы и стыки.
Шаболовская телебашня. Фотография сделана посредством октокоптера. Материалы предоставлены Е. Ножовой
Шаболовская телебашня. Фотография сделана посредством октокоптера. Материалы предоставлены Е. Ножовой

Из Вашего рассказа понятно, что анализ такого крупного и сложного объекта как Шуховская башня с технической точки зрения осуществить довольно сложно. Однако в своем обращении к президенту РФ вы настаиваете на проведении экспертизы. У вас имеется какой-либо алгоритм действий?

Если объединить все описанные мной выше методы, попытаться в очередной раз поработать с октокоптером или камерой на подвижной платформе, применить фотограмметрический анализ, лазерное сканирование, фотографии и ручное обследование в самых труднодоступных местах, то вполне можно получить достаточно точное представление о сегодняшнем состоянии башни. При этом не потребуется возведение дорогостоящих строительных лесов.

Вы против возведения лесов?

Дело в том, что существует проект, разработанный компанией «Качество и надежность», получившей право на проектирование по результатам тендера РТРС. Однако этот проект нигде не был опубликован. Лишь в ноябре 2012 года его представили в рамках пресс-конференции в МГСУ-МИСИ, которая была открытой, но не собрала много публики, из-за чего широкой огласки это событие не получило. Я лично там присутствовала и уже тогда у меня возникла масса вопросов. В частности – стоимость строительных лесов, по расчетам компании, в три раза превышала весь бюджет, выделенный государством на реконструкцию памятника. На основании этих расчетов был сделан вывод, что реставрация башни на месте – это слишком дорогостоящее мероприятие, куда проще ее снести. В связи с этим возникает вопрос: так ли необходимы строительные леса? Свойства шуховских конструкций таковы, что даже при повреждении нескольких элементов сооружение остается очень устойчивым, поскольку нагрузки равномерно распределяются по всей конструктивной сетке. Например, когда мы начинали реконструкцию 128-метровой Шуховской башни на Оке НиГРЭС, вандалами у нее было подпилено 16 из 40 опорных ног, но она устояла, выдержала колоссальную нагрузку и сейчас отреставрирована.
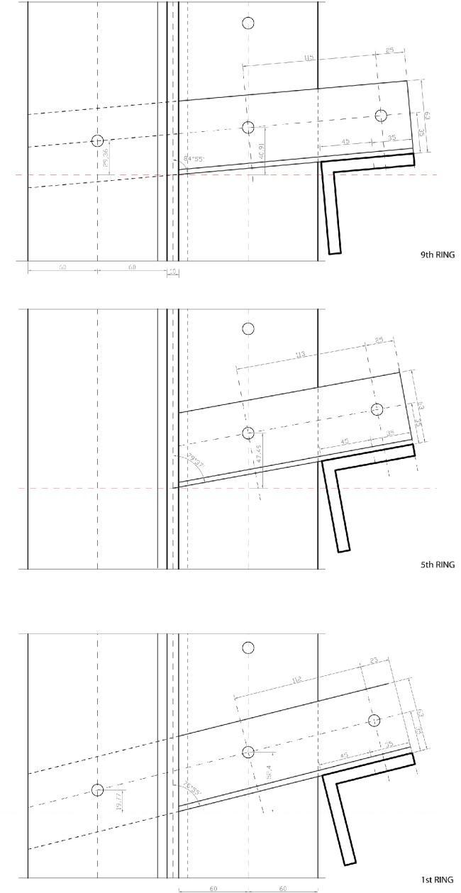
Фрагменты анализа документации по Шуховской башне НиГРЭС в Дзержинске, из которых хорошо видно, что в шуховской конструкции важен каждый миллиметр. Материалы предоставлены Е. Ножовой
Фрагменты анализа документации по Шуховской башне НиГРЭС в Дзержинске, из которых хорошо видно, что в шуховской конструкции важен каждый миллиметр. Материалы предоставлены Е. Ножовой
Фрагменты документации по Шуховской башне НиГРЭС в Дзержинске, из которых хорошо видно, что в шуховской конструкции важен каждый миллиметр. Материалы предоставлены Е. Ножовой
Фрагменты документации по Шуховской башне НиГРЭС в Дзержинске, из которых хорошо видно, что в шуховской конструкции важен каждый миллиметр. Материалы предоставлены Е. Ножовой
Фрагменты документации по Шуховской башне НиГРЭС в Дзержинске. Материалы предоставлены Е. Ножовой
Фрагменты документации по Шуховской башне НиГРЭС в Дзержинске. Материалы предоставлены Е. Ножовой

Удивительно еще и то, что сегодня вся информация о той ноябрьской конференции исчезла из общего доступа, включая ролики, выложенные на YouTube. Никто сегодня не знает, насколько подробно был проработан этот проект. Были ли сделаны обмеры, насколько качественно это было сделано и т.д.
Фотография Шуховской башни, сделанная весной 1921 года, до аварии при монтаже. Здесь видно, что по первому проекту конструкция была гораздо легче –  вдвое меньше опорных стоек в 3 секции.
Фотография Шуховской башни, сделанная весной 1921 года, до аварии при монтаже. Здесь видно, что по первому проекту конструкция была гораздо легче – вдвое меньше опорных стоек в 3 секции.

Если будет получено одобрение предложения о консервации башни, то с какими еще проблемами придется столкнуться при последующей реставрации?

Серьезная проблема – это качество металла, использованного при строительстве Шаболовской башни. Она строилась из того, что в то время можно было достать на складах. А это, как правило, был металл низкого качества с большим содержанием фосфора и другими примесями. Надо сказать, что верхние секции проржавели гораздо сильнее, чем основание, сделанное, по всей видимости, из другого сплава, оказавшегося менее уязвимым. В момент строительства башни в России в ходу было как минимум пять видов производства стали. По статистике, только 12% металла соответствовало принятым тогда стандартам, все остальное не имело гарантий качества. Разумеется, сталь, использованная для возведения Шуховской башни, сильно отличается от современных сплавов. Поэтому здесь необходим самый серьезный анализ, чтобы не допустить конфликта между разными сплавами, который неизбежно приведет к еще большей коррозии. Подобные ошибки уже совершались во время проведения предшествующих ремонтных работ на сооружении.
Конструктивный узел Шуховской башни. Материалы предоставлены Е. Ножовой
Конструктивный узел Шуховской башни. Материалы предоставлены Е. Ножовой

Возможно ли будет собрать башню снова в неизменном виде, если ее демонтируют?

Сделать это будет крайне сложно. А самое главное, что я не вижу причин, по которым ее нужно разбирать. Первые проявления коррозии появились еще в 1991 году. Если бы меры были приняты сразу, то можно было бы обойтись обычной обработкой металла. Теперь все гораздо сложнее. Но говорить об угрозе разрушения, как мне кажется, преждевременно. Если же все-таки будет принято решение о демонтаже, то урон памятнику будет нанесен колоссальный. На профилях сохранились следы от монтажа, на которые при разборке башни, скорее всего, никто не обратит внимания. А это очень важная деталь, которую потом невозможно будет восстановить. При возведении все элементы монтировались на земле и поднимались вверх на специальных деревянных конструкциях при помощи лебедок. В результате на профилях остались отверстия диаметром около 2 см, по которым сегодня можно воссоздать весь процесс монтажа. При разборке башни весь этот пласт информации просто исчезнет.
Письмо от производителя работ по возведению башни с просьбой прислать сумки для верхолазов. Материалы предоставлены Е. Ножовой
Письмо от производителя работ по возведению башни с просьбой прислать сумки для верхолазов. Материалы предоставлены Е. Ножовой
Бланк заказа на металл для башни. Из архива экономики.  Материалы предоставлены Е. Ножовой
Бланк заказа на металл для башни. Из архива экономики. Материалы предоставлены Е. Ножовой

Еще один момент – башня собрана при помощи клепок, которые верхолазы поднимали наверх в специально сшитых для этого кожаных сумках.  В подвешенном состоянии они разогревали и крепили эти клепки. То есть это были совершенно невероятное, рукодельные усилия, которые теперь могут быть полностью утеряны. Ведь при разборке клепки будут просто срезаны, а новые сегодня нигде не производят. Например, в одном из реставрационных проектов в Швейцарии клепки пришлось заказывать кузнецу. И это только малая толика того непоправимого ущерба, который будет нанесен памятнику.

Очень сложна геометрия башни. Воссоздать плоскую конструкцию проще, тогда как гиперболическая имеет скрученные профили, слегка повернутые вокруг своей оси. Здесь мы имеем дело с трехмерными и очень сложными узлами. Каждое пересечение имеет свой угол. Разница величин часто не достигает и 1 мм, но даже такая крохотная разница очень важна для последующего монтажа. Я не знаю других конструкций, раскроенных с обязательной точностью до миллиметра.

Но главный наш посыл – это срочное проведение экспертизы. Пока она не проведена, невозможно оценить состояние конструкций. А вследствие этого нельзя предпринимать вообще никаких шагов, тем более нельзя демонтировать здание. Если разбор будет начат без экспертизы, то инициаторы демонтажа получат возможность вовсе отказаться от ее дальнейшего восстановления, сославшись на ужасное состояние деталей. Я лично убеждена, что Шуховская башня может быть отреставрирована на месте.

беседовала: Алла Павликова