Размещено на портале Архи.ру (www.archi.ru)

25.04.2014

Единство непохожих

Алла Павликова
Объект:
Жилой комплекс Wine House
Адрес:
Россия, Москва. Садовническая улица, вл. 57
Архитектор:
Владимир Плоткин
Сергей Чобан
Мастерская:
СПИЧ
ТПО «Резерв»
Авторский коллектив:
Архитекторы проекта: В. Плоткин, И. Деева, Д. Казаков, И. Анохин, А. Вартапетова, А.Ларионова, А.Романова, Д. Хомякова, М. Шершова, Д. Чернов. Инженеры: С. Щербина, А. Тарнополь, В. Андреев, П. Балашов, А. Бородкин, М. Дачкина, С. Журков, Г. Качанова, П. Колосов, Н. Рудюк, Е. Спиридонова, Н. Черепухина (ТПО «Резерв»).

С. Чобан, И. Членов (авторы проекта), А. Дерябина, М. Дигилева, Д. Голиков, А. Кипарис, В. Красовский, А. Манин, С. Попов, А. Русакова, А. Христов (SPEECH)

Проект реконструкции корпуса Luxury loft: А.Балабин, А.Наземнов, Л.Милюков, Е.Введенская, И.Шахан, Я. Юдин, Л. Сомусева (Северин-Проект); Максименко Н.А., ООО «АРМ «Фаросъ»

Проект жилого комплекса «Wine House» стал результатом совместной работы двух крупнейших московских архитектурных бюро – ТПО «Резерв» и SPEECH.

Жилой комплекс Wine House
Жилой комплекс Wine House
© ТПО «Резерв», SPEECH
Строительство жилого комплекса «Wine House» ведется на участке, расположенном между Садовнической улицей и Космодамианской набережной. Это самый центр столицы: по одну сторону – малоэтажное Замоскворечье, по другую – Москва-река и шпиль сталинской высотки на Котельнической набережной. До революции эту территорию занимал винный завод Петра Арсеньевича Смирнова, а в советское время в его аккуратных корпусах из красного кирпича производились шампанские вина «Корнет». Собственно, это и дало название проекту – одно из сохранившихся зданий бывшего завода включен в состав комплекса «Wine House».
Жилой комплекс Wine House
Жилой комплекс Wine House
© ТПО «Резерв», SPEECH
Жилой комплекс Wine House. Ситуационный план
Жилой комплекс Wine House. Ситуационный план
© ТПО «Резерв», SPEECH

К его проектированию с самого начала были привлечены два крупнейших московских бюро – ТПО «Резерв» и SPEECH. Как объясняют сами архитекторы, это было связано, главным образом, с желанием заказчика создать многоликий квартал, в котором каждое отдельное здание приобрело бы свой масштаб и узнаваемый характер. Тесно соседствующие корпуса не должны были «перекрикивать» друг друга, но создавать интересный архитектурный диалог. Именно поэтому выбор пал на столь разные по своему почерку компании: «Резерв» с его подчеркнуто лаконичной тектоникой зданий и нелюбовью к излишествам, и SPEECH с его приверженностью к детально прорисованным рельефам и натуральным материалам самого высокого качества.

Кроме того, что каждое бюро работало над решениями фасадов (их архитекторы поровну поделили между собой для того, чтобы корпуса, нарисованные разными командами, чередовались друг с другом), полномочия были распределены следующим образом: ТПО «Резерв» выступал генпроектировщиком, отвечая за планировочную структуру, инженерию и благоустройство прилегающей территории, а бюро SPEECH взяло на себя всю техническую часть работы по фасадам, а также делало интерьеры общественных зон. Кроме того, команда Владимира Плоткина подготовила проект реставрации заводского корпуса, включенного в состав комплекса.
Жилой комплекс Wine House
Жилой комплекс Wine House
© ТПО «Резерв», SPEECH

Построенный в 1888–1889 гг. по проекту архитектора Н. Воскресенского, этот корпус из красного кирпича с элементами изящного белого декора сегодня признан объектом культурного наследия. Главным фасадом он обращен к Садовнической улице. В соответствии с проектом реставрации, все его архитектурно-художественные детали: белоснежные рустованные пилястры, оформление окон и ажурный карниз, венчающий здание, в точности восстанавливаются. Внутри же заводской корпус превращается в современный жилой дом с апартаментами в стиле лофт с высокими потолками и просторными комнатами. На первом этаже этого объема планируется открыть ресторан.
Жилой комплекс Wine House
Жилой комплекс Wine House
© ТПО «Резерв», SPEECH

Для застройки остальной территории бывшего винзавода проектировщики выбрали квартальную планировку. Современные, не пытающиеся подражать историческому зданию объемы жилых домов выстраиваются четко по периметру участка, благодаря чему внутри появляется закрытый от посторонних глаз широкий двор. Попасть в него можно как со стороны Садовнической улицы, где вдоль торцов реставрируемого здания оставлены два широких прохода, так и через арки, расположенные в корпусе напротив, со стороны Космодамианской набережной.
Жилой комплекс Wine House
Жилой комплекс Wine House
© ТПО «Резерв», SPEECH

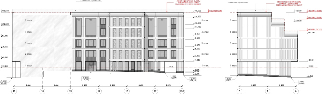
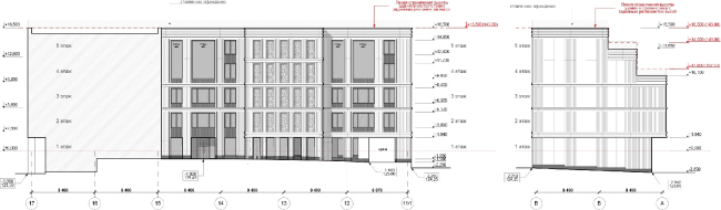
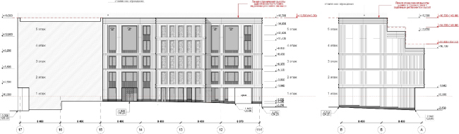
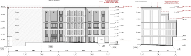
Корпуса имеют переменную этажность, поднимаясь вверх по направлению к Москве-реке тремя крупными ступенями, на которых устроены открытые террасы для жильцов апартаментов. Если взглянуть на комплекс сверху, то можно увидеть, что на кровле, изрезанной уступами различной конфигурации, таких уютных террас с видом на город, похожих на зеленые лужайки, довольно много. Первый, 4-хэтажный фронт поддерживает линию застройки Садовнической улицы с ее старомосковскими камерными домиками. В глубине квартала располагаются секции повыше – до 7-ми этажей, поскольку там они соседствуют с довольно высокими сталинскими зданиями, расположенными вдоль набережной.
Жилой комплекс Wine House
Жилой комплекс Wine House
© ТПО «Резерв», SPEECH
Жилой комплекс Wine House
Жилой комплекс Wine House
© ТПО «Резерв», SPEECH

Опознать авторство того или иного корпуса в составе комплекса довольно просто – стоит только взглянуть на его фасады. Следуя единой концепции, Владимир Плоткин и Сергей Чобан говорят каждый на своем языке. Фасады Плоткина с их крупными пролетами окон из темного стекла, нарисованными на белом полотне стены, максимально графичны: каждая линия, каждый угол вычерчен с геометрической точностью и строгим следованием идеальным пропорциям. Совсем другими получились фасады Чобана – на стенах его домов активно используется резной натуральный камень светлых оттенков. Где-то это простые вертикальные рельефные поверхности, а где-то витиеватые орнаменты. То тут, то там появляются мягкие сглаженные углы, эффектные карнизы, четкая структура поясов и вертикальных пилонов и полуколонн.
Жилой комплекс Wine House
Жилой комплекс Wine House
© ТПО «Резерв», SPEECH
Жилой комплекс Wine House
Жилой комплекс Wine House
© ТПО «Резерв», SPEECH
Жилой комплекс Wine House
Жилой комплекс Wine House
© ТПО «Резерв», SPEECH
Жилой комплекс Wine House
Жилой комплекс Wine House
© ТПО «Резерв», SPEECH

В первых этажах со стороны Садовнической улицы и вдоль боковых проездов предполагается разместить общественные функции – бутики с большими стеклянными витринами, фитнес-клуб, СПА и салон красоты. С противоположной стороны в уровне двора предусмотрены отдельные входы в двухуровневые квартиры. Всего в семи корпусах комплекса расположено 176 квартир площадью от 62 до 227 кв.м. Помимо стандартных апартаментов, здесь предусмотрены пентхаусы, квартиры с выходом на террасы и антресольными этажами.
Жилой комплекс Wine House
Жилой комплекс Wine House
© ТПО «Резерв», SPEECH

Жилой комплекс Wine House. Проект благоустройства территории
Жилой комплекс Wine House. Проект благоустройства территории
© ТПО «Резерв», SPEECH
Жилой комплекс Wine House. Проект благоустройства территории
Жилой комплекс Wine House. Проект благоустройства территории
© ТПО «Резерв», SPEECH

Отдельно стоит сказать о благоустройстве дворовых территорий, проектом которого занималось ТПО «Резерв». Изначально заложенную в проект тему двуликости архитектурных решений бюро в полной мере реализовало и в концепции дворовых пространств. Главный внутренний двор, расположенный на стилобатной части комплекса и полностью закрытый от посторонних, авторы трактовали как парадный регулярный сад, тогда как озелененное пространство за пределами «Wine House» (на прилегающей территории, гарантированно свободной от застройки) превращается в природный, максимально естественный сад. И если во втором преобладают крупномерные деревья, высаженные в свободном порядке, а пешеходные дорожки между ними едва намечены, то торжественный ритм внутреннего двора задается строгой геометрией всех элементов, будь то цветочные клумбы, выделенные зоны отдыха или дорожки. С особым вниманием подобраны материалы: мощение центральных дорожек предполагается выполнить состаренным клинкерным кирпичом, напоминающим о сохраняемом заводском корпусе, тогда как внешние границы двора будут оформлены гранитными плитами, перекликающимися с фасадами из натурального полированного камня. В оформлении газонов, которые несколько приподняты над уровнем двора, также будут использованы юрский камень и кортеновая сталь, вступающие друг с другом в интересный диалог вечного и современного, который вообще проходит красной нитью через данный проект.

Строительство «Wine House» планируется завершить в 2016-м году.
Жилой комплекс Wine House. Проект благоустройства территории
Жилой комплекс Wine House. Проект благоустройства территории
© ТПО «Резерв», SPEECH
Жилой комплекс Wine House
Жилой комплекс Wine House
© ТПО «Резерв», SPEECH
Жилой комплекс Wine House. Проект благоустройства территории
Жилой комплекс Wine House. Проект благоустройства территории
© ТПО «Резерв», SPEECH
Жилой комплекс Wine House
Жилой комплекс Wine House
© ТПО «Резерв», SPEECH
Жилой комплекс Wine House
Жилой комплекс Wine House
© ТПО «Резерв», SPEECH
Жилой комплекс Wine House
Жилой комплекс Wine House
© ТПО «Резерв», SPEECH
Жилой комплекс Wine House
Жилой комплекс Wine House
© ТПО «Резерв», SPEECH
Жилой комплекс Wine House
Жилой комплекс Wine House
© ТПО «Резерв», SPEECH
Жилой комплекс Wine House. План типового этажа
Жилой комплекс Wine House. План типового этажа
© ТПО «Резерв», SPEECH
Жилой комплекс Wine House
Жилой комплекс Wine House
© ТПО «Резерв», SPEECH
Жилой комплекс Wine House. План первого этажа
Жилой комплекс Wine House. План первого этажа
© ТПО «Резерв», SPEECH
Жилой комплекс Wine House. ТПО «Резерв», SPEECH
Жилой комплекс Wine House. ТПО «Резерв», SPEECH
© ТПО «Резерв», SPEECH
Жилой комплекс Wine House. Генплан
Жилой комплекс Wine House. Генплан
© ТПО «Резерв», SPEECH
Жилой комплекс Wine House
Жилой комплекс Wine House
© ТПО «Резерв», SPEECH