Размещено на портале Архи.ру (www.archi.ru)

18.02.2014

Красота сглаженных углов

Алла Павликова
Объект:
Офисный центр на Нахимовском проспекте
Адрес:
Россия, Москва. Нахимовский проспект, 21
Архитектор:
Андрей Романов
Екатерина Кузнецова
Мастерская:
ADM

Архитектурная мастерская ADM разработала проект офисного центра на Нахимовском проспекте.

Офисный центр на Нахимовском проспекте © ADM
Офисный центр на Нахимовском проспекте © ADM
Офисный центр будет построен неподалеку от станции метро «Нахимовский проспект», между Варшавским и Каширском шоссе. Однако при всей развитости транспортной инфраструктуры сам этот район назвать привлекательным очень трудно. Сегодня он представляет собой едва ли не свалку: нагромождение гаражей, разбитый асфальт, редкие неухоженные деревья и мусор – вот что встречает выходящих из метро пассажиров. Из значимых архитектурных сооружений здесь можно, пожалуй, назвать лишь экономико-юридический колледж, расположенный вдоль Нахимовского проспекта. Справа от него по проекту бюро SPEECH ведется строительство крупного бизнес-центра из трех полукруглых стеклянных башен.
Офисный центр на Нахимовском проспекте. Ситуация © ADM
Офисный центр на Нахимовском проспекте. Ситуация © ADM
Офисный центр на Нахимовском проспекте. Схема транспортного и пешеходного движения © ADM
Офисный центр на Нахимовском проспекте. Схема транспортного и пешеходного движения © ADM

Новый комплекс в этом отношении занимает менее выгодное положение: он оттеснен от проспекта в глубь квартала и получит всего один проезд – со стороны Одесской и Сивашской улиц по узкой дорожке между частных гаражей. Авторы проекта повлиять на эту ситуацию никак не могли: гаражная застройка возникла на вполне законных основаниях, и единственное возможное здесь вмешательство – обновление асфальта. Но ADM не были бы собой, если бы не сделали все возможное для того, чтобы участок получил максимально разнообразное и интересное благоустройство. Так что совсем не удивительно, что собственно офисный объем занимает лишь небольшой (и к тому же довольно узкий) фрагмент участка, тогда как на основной территории архитекторы предложили разбить парк.
Офисный центр на Нахимовском проспекте. Вид со стороны Сивашской улицы © ADM
Офисный центр на Нахимовском проспекте. Вид со стороны Сивашской улицы © ADM

Спроектировав стандартное по своей планировке офисное здание (этаж свободной планировки и центральное ядро коммуникаций), архитекторы особое внимание уделили его внешнему виду и пластике фасадов. Условный параллелепипед авторы проекта поделили на две равные части, которые затем сместили друг относительно друга и у каждой сточили прямые углы, после чего объем моментально приобрел совсем иные, мягкие очертания, неуловимо перекликающиеся с дугами корпусов строящегося по соседству бизнес-центра. Для отделки фасадов выбраны стекло и терракотовые панели с объемным волновым рисунком. Последние не только задают четкий ритм, но, выступая за плоскость остекления, добавляют фасадам интересную глубину и многомерность. Этот эффект усиливается благодаря тому, что сами панели различаются по ширине и рисунку рельефа.
Офисный центр на Нахимовском проспекте. План типового этажа © ADM
Офисный центр на Нахимовском проспекте. План типового этажа © ADM
Офисный центр на Нахимовском проспекте © ADM
Офисный центр на Нахимовском проспекте © ADM

За счет сдвижки объемов в уровне первого и второго этажей на обоих торцах комплекса появились консольные выступы, опирающиеся на ряд стройных круглых колонн. Именно здесь организованы входы в здание. Со стороны колледжа и Нахимовского проспекта, откуда будет двигаться наиболее активный поток пешеходов, первый этаж комплекса отведен под ресторан. Перед ним предлагается разбить небольшую общественную площадь, окаймленную пунктиром бетонных кадок с зелеными растениями. В теплое время года здесь можно будет устроить открытое летнее кафе. Центральный же вход расположен в противоположном торце, возвышающемся над естественным холмом высотой около трех метров. Эта часть здания обращена в сторону Сивашской улицы, с которой осуществляется въезд на территорию комплекса.  
Офисный центр на Нахимовском проспекте. Вид со стороны  Нахимовского проспекта © ADM
Офисный центр на Нахимовском проспекте. Вид со стороны Нахимовского проспекта © ADM
Офисный центр на Нахимовском проспекте © ADM
Офисный центр на Нахимовском проспекте © ADM
Офисный центр на Нахимовском проспекте. Центральный вход © ADM
Офисный центр на Нахимовском проспекте. Центральный вход © ADM

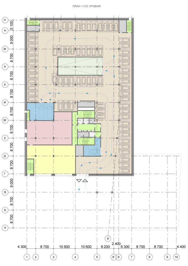
Всего в здании 14 этажей, 15-й – технический – смещен вглубь от линии основного объема. Два подземных уровня заняты паркингом, куда ведет отдельный прямой въезд со стороны холма, а первые этажи отданы под общественные функции – просторный двусветный вестибюль и ресторан. Выше располагаются офисы. Архитектор Андрей Романов подчеркивает, что здание абсолютно выверено по соотношению площади этажа, пропорций ядра и общей высоты комплекса.

Впрочем, даже при всей выверенности наполнения и выразительности внешнего облика, комплекс едва ли можно было бы по достоинству оценить в той городской среде, которая сложилась вокруг участка. Авторы попытались переломить эту ситуацию. Прежде всего, за счет работы с рельефом. Существующий перепад ADM использовали для создания разнообразного и живописного ландшафта: деревья близко подступают к дороге и заполняют пространства между петлями пешеходного серпантина, пробитого коротким прямым маршрутом из крутых лестниц, а высокие травы приближают пейзаж к лесному, полудикому. Минималистичный дизайн уличных фонарей, рассыпанных по склону, делает их присутствие практически эфемерным. Иными словами, вокруг комплекса предполагается создать пусть и небольшую, но совершенно самодостаточную природную среду, комфортную и безопасную, которая, по замыслу архитекторов, заставит посетителей забыть о только что виденной неустроенности города.
Офисный центр на Нахимовском проспекте. Отделка фасадов © ADM
Офисный центр на Нахимовском проспекте. Отделка фасадов © ADM

Интересно, что на верхней площадке вокруг комплекса, зелени ничуть не меньше, чем на склоне. Пушистые шапки деревьев, выстроенных в ряд, следуют вдоль правой границы участка, и далее – между комплексом и колледжем, превращаясь в своего рода зеленое ограждение. Второй линией проведен штрих-код из цветочных клумб, зеленых насаждений и уличной мебели. В левой части предусмотрена наземная парковка, однако даже разметка машиномест прерывается клумбами с цветами, невысокими деревьями и полноценным зеленым газоном.
Офисный центр на Нахимовском проспекте. Генплан © ADM
Офисный центр на Нахимовском проспекте. Генплан © ADM
Офисный центр на Нахимовском проспекте. Разрез © ADM
Офисный центр на Нахимовском проспекте. Разрез © ADM
Офисный центр на Нахимовском проспекте. Разрез © ADM
Офисный центр на Нахимовском проспекте. Разрез © ADM
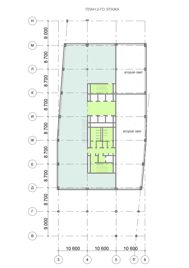
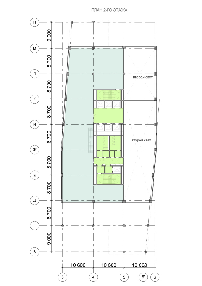
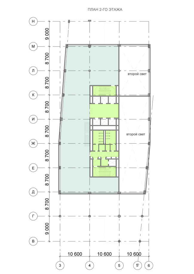
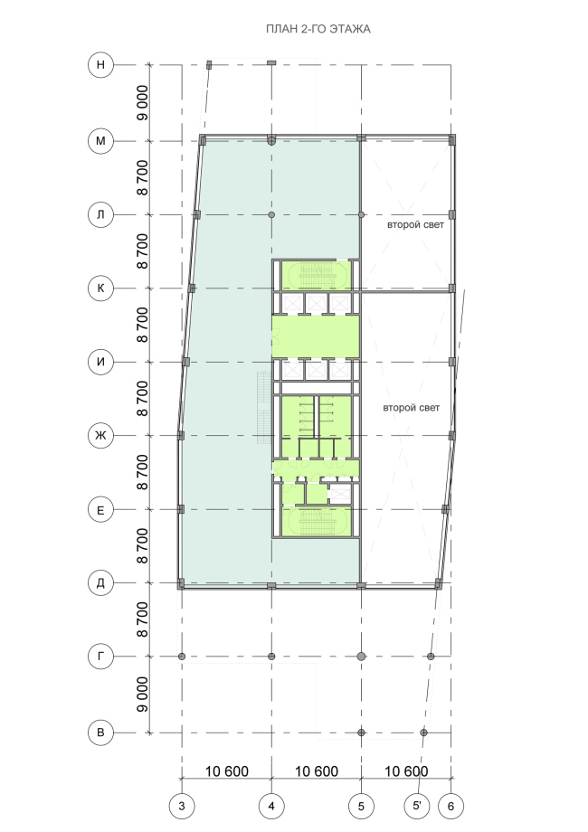
Офисный центр на Нахимовском проспекте. План 2 этажа © ADM
Офисный центр на Нахимовском проспекте. План 2 этажа © ADM
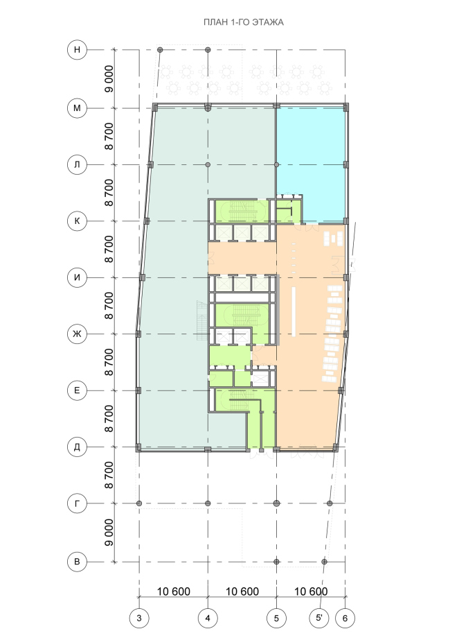
Офисный центр на Нахимовском проспекте. План 1 этажа © ADM
Офисный центр на Нахимовском проспекте. План 1 этажа © ADM
Офисный центр на Нахимовском проспекте. План -1 этажа © ADM
Офисный центр на Нахимовском проспекте. План -1 этажа © ADM
Офисный центр на Нахимовском проспекте. План -2 этажа © ADM
Офисный центр на Нахимовском проспекте. План -2 этажа © ADM