Размещено на портале Архи.ру (www.archi.ru)

28.10.2013

В поисках идентичности: конкурсные проекты ТВЦ в Измайлово

Алла Павликова
Объект:
Международный многофункциональный деловой комплекс ремесел Арт-Палас (Totement/Paper)
Адрес:
Россия, Москва. Измайловское шоссе, 73
Международный многофункциональный деловой комплекс ремесел Арт-Палас в Измайлово (бюро Асадова)
Адрес:
Россия, Москва. Измайловское шоссе, 73 (?)
Мастерская:
TOTEMENT/PAPER
АБ ASADOV
Авторский коллектив:
А.Асадов, Н.Асадов, Т.Лебедева, при участии И.Шевченко, Ю.Шалетри

В конкурсе участвовали два бюро, победителем названо Totement/Paper.

Международный многофункциональный деловой комплекс ремесел Арт-Палас. Проект-победитель. Totement/Paper.
Международный многофункциональный деловой комплекс ремесел Арт-Палас. Проект-победитель. Totement/Paper.

23 октября Москомархитектуры рассмотрел пять концепций «делового комплекса ремесел «Арт Палас». Три из них были разработаны бюро Асадова, две – Totement/Paper в рамках небольшого закрытого конкурса, проведенного заказчиком по инициативе Сергея Кузнецова.

Новый торгово-выставочный центр площадью около 6 000 кв. м планируется построить рядом с торгово-развлекательным центром «Кремль в Измайлово» (1998–2007 гг.; архитектура основана на мотивах известного по гравюрам дворца царя Алексея Михайловича). Первоначальный проект выставочного центра, предложенный компанией «Петровский Дворик» и исполненный в сказочно-теремной стилистике ТРЦ, был недавно отклонен на рабочем рассмотрении. Тогда же Сергей Кузнецов рекомендовал заказчикам провести конкурс и обратиться к архитекторам с более современными взглядами. Пригласили, действительно, два бюро, в работах которых современная стилистика сочетается (изредка и весьма деликатно) с национальными мотивами.

На проектирование было отведено три недели. Рассмотрев проекты, жюри конкурса остановило свой выбор на концепции Левона Айрапетова и Валерии Преображенской. Мы попросили участников конкурса рассказать о своих проектах; также публикуем все пять конкурсных концепций.

Валерия Преображенская:
«С точки зрения современного архитектора, «Измайловский Кремль» – строение, во многих отношениях инородное. Но туристов из соседнего гостиничного комплекса он не может не привлекать; горожане тоже привыкли к нему и с удовольствием проводят там время. Развлекательный комплекс, безусловно, подавил подлинные здания измайловского дворца, расположенные поодаль, на «острове», отодвинул их на второй план – но нельзя отрицать, что он уже стал фактом жизни этого места.

Так что лейтмотивом наших размышлений над концепцией здания нового торгово-выставочного центра была реакция на контрастное сочетание архитектурных образов. С одной стороны – грандиозная историческая стилизация пестрого терема XVII века, с другой – крайне лаконичные и масштабные пластины гостиниц, построенных в 1970-е, часть образа современного города. Кроме того, необходимо было учесть, что неподалеку запланировано строительство новой магистрали, и, следовательно, на проектируемое здание следовало по-новому взглянуть с градостроительной точки зрения.

Мы предложили два варианта. Версия, на которой остановилось жюри, наиболее близка и нам, она наследует одну из тем павильона шанхайской ЭКСПО, реализованного нами в 2010 году. Первый уровень максимально прозрачный, здесь мы попытались создать парковый ландшафт. Объемы магазинов, кафе и технических помещений расположены в свободном порядке наподобие больших разноцветных скульптур, а пространство между ними – это общая прогулочная зона.
Международный многофункциональный деловой комплекс ремесел Арт-Палас. Проект-победитель. Totement/Paper. Схема генплана
Международный многофункциональный деловой комплекс ремесел Арт-Палас. Проект-победитель. Totement/Paper. Схема генплана
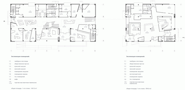
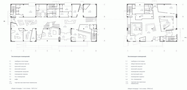
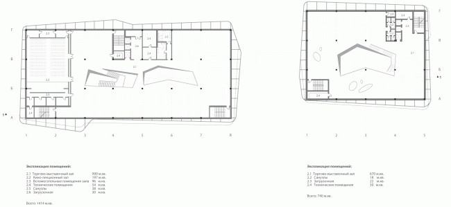
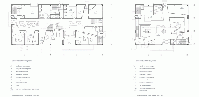
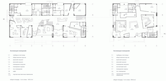
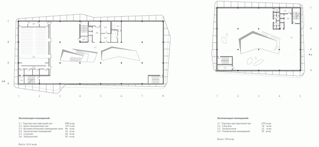
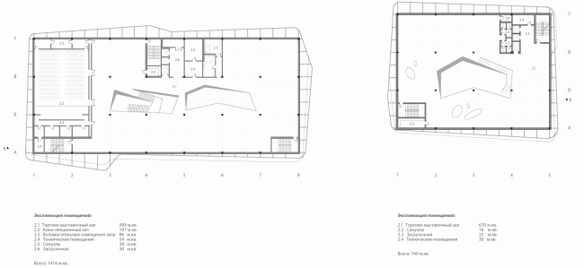
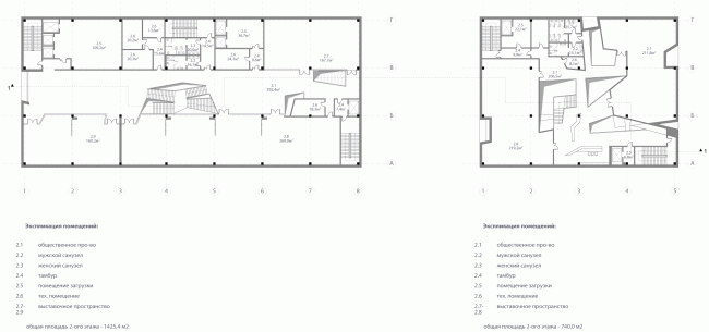
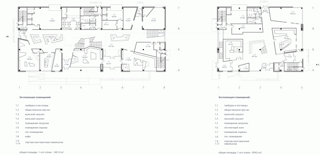
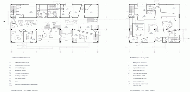
Международный многофункциональный деловой комплекс ремесел Арт-Палас. Проект-победитель. Totement/Paper. План первого этажа
Международный многофункциональный деловой комплекс ремесел Арт-Палас. Проект-победитель. Totement/Paper. План первого этажа
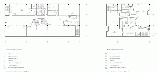
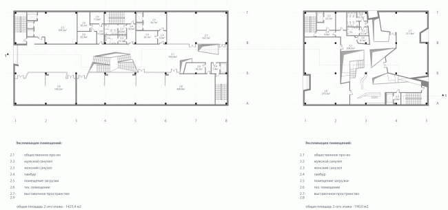
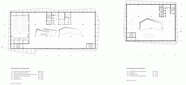
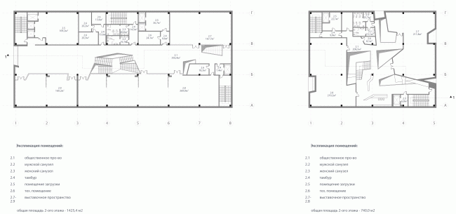
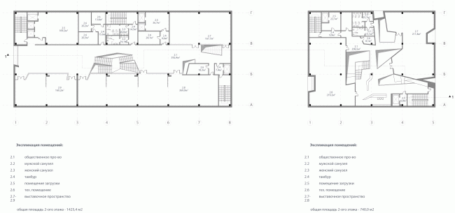
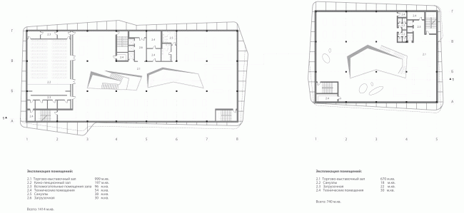
Международный многофункциональный деловой комплекс ремесел Арт-Палас. Проект-победитель. Totement/Paper. План второго этажа
Международный многофункциональный деловой комплекс ремесел Арт-Палас. Проект-победитель. Totement/Paper. План второго этажа

Учитывая необходимость подчеркнуть отношение комплекса к русской культуре и традициям, мы предложили отделать объемы первого уровня стеклом, нанеся на него разноцветные паттерны традиционного русского декора.

Поверх ярких скульптур первого яруса спокойно лежат два белых «облака» основного объема. Нам показалось, что мягкая, тягучая горизонталь с нейтральным фасадным решением поможет снять конфликт, возникающий здесь из-за соседства множества спорящих друг с другом вертикалей: башенки «Измайловского Кремля» спорят с доминантой гостиничного комплекса «Измайлово». 
Международный многофункциональный деловой комплекс ремесел Арт-Палас. Проект-победитель. Totement/Paper.
Международный многофункциональный деловой комплекс ремесел Арт-Палас. Проект-победитель. Totement/Paper.
Международный многофункциональный деловой комплекс ремесел Арт-Палас. Проект-победитель. Totement/Paper.
Международный многофункциональный деловой комплекс ремесел Арт-Палас. Проект-победитель. Totement/Paper.
Международный многофункциональный деловой комплекс ремесел Арт-Палас. Проект-победитель. Totement/Paper.
Международный многофункциональный деловой комплекс ремесел Арт-Палас. Проект-победитель. Totement/Paper.
Международный многофункциональный деловой комплекс ремесел Арт-Палас. Проект-победитель. Totement/Paper. Фасад
Международный многофункциональный деловой комплекс ремесел Арт-Палас. Проект-победитель. Totement/Paper. Фасад
Международный многофункциональный деловой комплекс ремесел Арт-Палас. Проект-победитель. Totement/Paper. Разрез
Международный многофункциональный деловой комплекс ремесел Арт-Палас. Проект-победитель. Totement/Paper. Разрез

Другой вариант был для нас с Левоном своего рода экспериментом, здесь мы попробовали себя в новом качестве. Главное в нем – это формообразование. Мы попытались соединить в одном объеме две темы-антагониста: простую форму гостиниц и причудливо-острый силуэт «Кремля», буквально врезав стилизованный абрис башенок в простую «модернистскую коробку». На уровне первого яруса абрис башен прозрачен и уменьшен – «Кремль» как бы спустился на уровень человека, изменив свой масштаб и став образно более открытым.

Здание вобрало в себя две полярные темы, а получившаяся форма стала продуктом переосмысления пластического конфликта между ними. Форма оказалась заряженной энергией столкновения противоположностей, возможно поэтому мы почувствовали в ней стремление к самоусложнению. Так что мы сделали несколько версий: со спокойной и с более сложной геометрией.»
Международный многофункциональный деловой комплекс ремесел Арт-Палас. Второй вариант. Totement/Paper.
Международный многофункциональный деловой комплекс ремесел Арт-Палас. Второй вариант. Totement/Paper.
Международный многофункциональный деловой комплекс ремесел Арт-Палас. Второй вариант. Totement/Paper.
Международный многофункциональный деловой комплекс ремесел Арт-Палас. Второй вариант. Totement/Paper.
Международный многофункциональный деловой комплекс ремесел Арт-Палас. Второй вариант. Totement/Paper. Фасад
Международный многофункциональный деловой комплекс ремесел Арт-Палас. Второй вариант. Totement/Paper. Фасад
Международный многофункциональный деловой комплекс ремесел Арт-Палас. Второй вариант. Totement/Paper.
Международный многофункциональный деловой комплекс ремесел Арт-Палас. Второй вариант. Totement/Paper.
Международный многофункциональный деловой комплекс ремесел Арт-Палас. Второй вариант. Totement/Paper.
Международный многофункциональный деловой комплекс ремесел Арт-Палас. Второй вариант. Totement/Paper.
Международный многофункциональный деловой комплекс ремесел Арт-Палас. Второй вариант. Totement/Paper.
Международный многофункциональный деловой комплекс ремесел Арт-Палас. Второй вариант. Totement/Paper.
Международный многофункциональный деловой комплекс ремесел Арт-Палас. Второй вариант. Totement/Paper. Генплан
Международный многофункциональный деловой комплекс ремесел Арт-Палас. Второй вариант. Totement/Paper. Генплан
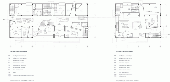
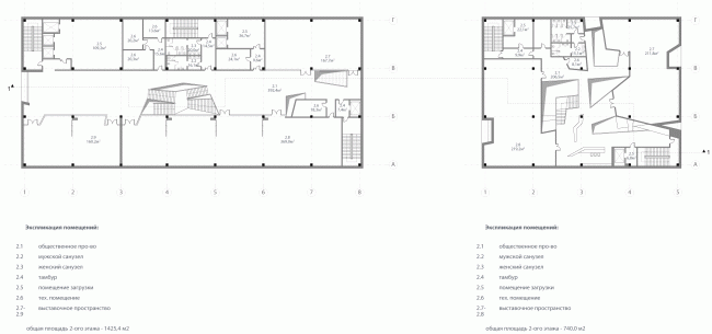
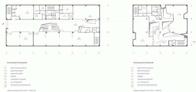
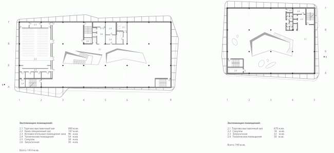
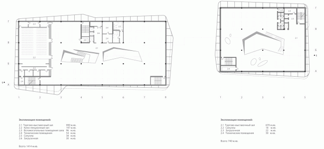
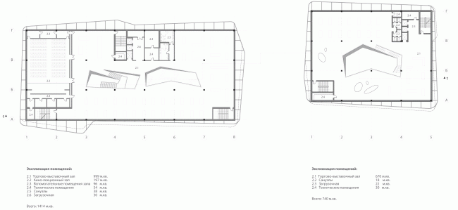
Международный многофункциональный деловой комплекс ремесел Арт-Палас. Второй вариант. Totement/Paper. План 1 этажа
Международный многофункциональный деловой комплекс ремесел Арт-Палас. Второй вариант. Totement/Paper. План 1 этажа
Международный многофункциональный деловой комплекс ремесел Арт-Палас. Второй вариант. Totement/Paper. План 2 этажа
Международный многофункциональный деловой комплекс ремесел Арт-Палас. Второй вариант. Totement/Paper. План 2 этажа
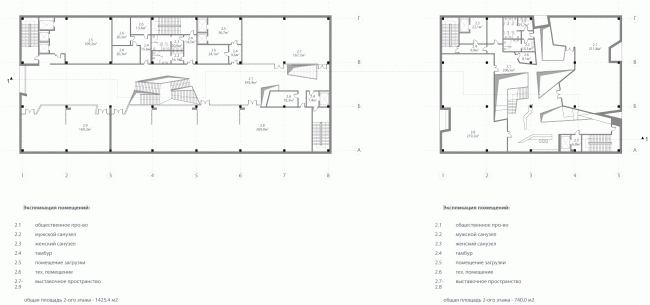
Международный многофункциональный деловой комплекс ремесел Арт-Палас. Второвй вариант. Totement/Paper. Разрез
Международный многофункциональный деловой комплекс ремесел Арт-Палас. Второвй вариант. Totement/Paper. Разрез

Андрей Асадов:
«Наша основная задача заключалась в попытке современными средствами архитектуры создать гармоничный с окружением комплекс. Новая и довольно масштабная постройка должна появиться рядом с Измайловским Кремлем, и мы подумали, что, продолжая традиции русского градостроительства, здесь правильнее всего было бы сформировать некий «посад». Нам хотелось создать такое сооружение, которое не спорило бы с архитектурой Кремля, но при этом обладало бы собственной художественной выразительностью. В результате мы разработали несколько вариантов. Сначала у нас был «посад» в виде «купеческих теремов», стоящих на общем подклете, окруженном прогулочной галереей. Кровлю подклета предполагалось использовать в качестве «аптекарского огорода» летом или катка зимой. Потом в продолжение работы над проектом наши «терема» срослись со стилобатом, появились крыльца, ведущие на эксплуатируемую кровлю, а аркада торговой галереи превратилась в крупные арочные пролеты.
Международный многофункциональный деловой комплекс ремесел Арт-Палас в Измайлово. Первый вариант. А.Асадов, Н.Асадов, Т.Лебедева, при участии И.Шевченко, Ю.Шалетри. «АБ Асадова»
Международный многофункциональный деловой комплекс ремесел Арт-Палас в Измайлово. Первый вариант. А.Асадов, Н.Асадов, Т.Лебедева, при участии И.Шевченко, Ю.Шалетри. «АБ Асадова»
Международный многофункциональный деловой комплекс ремесел Арт-Палас в Измайлово. Первый вариант. А.Асадов, Н.Асадов, Т.Лебедева, при участии И.Шевченко, Ю.Шалетри.
«АБ Асадова»
Международный многофункциональный деловой комплекс ремесел Арт-Палас в Измайлово. Первый вариант. А.Асадов, Н.Асадов, Т.Лебедева, при участии И.Шевченко, Ю.Шалетри. «АБ Асадова»
Международный многофункциональный деловой комплекс ремесел Арт-Палас в Измайлово. Второй вариант. А.Асадов, Н.Асадов, Т.Лебедева, при участии И.Шевченко, Ю.Шалетри.
«АБ Асадова»
Международный многофункциональный деловой комплекс ремесел Арт-Палас в Измайлово. Второй вариант. А.Асадов, Н.Асадов, Т.Лебедева, при участии И.Шевченко, Ю.Шалетри. «АБ Асадова»
Международный многофункциональный деловой комплекс ремесел Арт-Палас в Измайлово. Второй вариант. А.Асадов, Н.Асадов, Т.Лебедева, при участии И.Шевченко, Ю.Шалетри.
«АБ Асадова»
Международный многофункциональный деловой комплекс ремесел Арт-Палас в Измайлово. Второй вариант. А.Асадов, Н.Асадов, Т.Лебедева, при участии И.Шевченко, Ю.Шалетри. «АБ Асадова»

И только после этого возник третий вариант, который лично мне нравится больше всего. Нам показалось, что отдельные пространства не вполне удобны в функциональном смысле, поэтому решено было создать один большой объем, нарытый ярким «пологом» из перфорированных панелей. Источником вдохновения здесь послужили ярмарочные шатры. Панели с перфорацией, отступающие от основного фасада, подчеркивают декоративность и воздушность сооружения.
Международный многофункциональный деловой комплекс ремесел Арт-Палас в Измайлово. Третий вариант. А.Асадов, Н.Асадов, Т.Лебедева, при участии И.Шевченко, Ю.Шалетри.
«АБ Асадова»
Международный многофункциональный деловой комплекс ремесел Арт-Палас в Измайлово. Третий вариант. А.Асадов, Н.Асадов, Т.Лебедева, при участии И.Шевченко, Ю.Шалетри. «АБ Асадова»
Международный многофункциональный деловой комплекс ремесел Арт-Палас в Измайлово. Третий вариант. А.Асадов, Н.Асадов, Т.Лебедева, при участии И.Шевченко, Ю.Шалетри.
«АБ Асадова»
Международный многофункциональный деловой комплекс ремесел Арт-Палас в Измайлово. Третий вариант. А.Асадов, Н.Асадов, Т.Лебедева, при участии И.Шевченко, Ю.Шалетри. «АБ Асадова»
Международный многофункциональный деловой комплекс ремесел Арт-Палас в Измайлово. Третий вариант. А.Асадов, Н.Асадов, Т.Лебедева, при участии И.Шевченко, Ю.Шалетри.
«АБ Асадова»
Международный многофункциональный деловой комплекс ремесел Арт-Палас в Измайлово. Третий вариант. А.Асадов, Н.Асадов, Т.Лебедева, при участии И.Шевченко, Ю.Шалетри. «АБ Асадова»
Международный многофункциональный деловой комплекс ремесел Арт-Палас в Измайлово. Третий вариант. А.Асадов, Н.Асадов, Т.Лебедева, при участии И.Шевченко, Ю.Шалетри.
«АБ Асадова»
Международный многофункциональный деловой комплекс ремесел Арт-Палас в Измайлово. Третий вариант. А.Асадов, Н.Асадов, Т.Лебедева, при участии И.Шевченко, Ю.Шалетри. «АБ Асадова»
Международный многофункциональный деловой комплекс ремесел Арт-Палас в Измайлово. Третий вариант. Ночной вид. А.Асадов, Н.Асадов, Т.Лебедева, при участии И.Шевченко, Ю.Шалетри.
«АБ Асадова»
Международный многофункциональный деловой комплекс ремесел Арт-Палас в Измайлово. Третий вариант. Ночной вид. А.Асадов, Н.Асадов, Т.Лебедева, при участии И.Шевченко, Ю.Шалетри. «АБ Асадова»
Международный многофункциональный деловой комплекс ремесел Арт-Палас в Измайлово. Третий вариант. А.Асадов, Н.Асадов, Т.Лебедева, при участии И.Шевченко, Ю.Шалетри.
«АБ Асадова»
Международный многофункциональный деловой комплекс ремесел Арт-Палас в Измайлово. Третий вариант. А.Асадов, Н.Асадов, Т.Лебедева, при участии И.Шевченко, Ю.Шалетри. «АБ Асадова»
Международный многофункциональный деловой комплекс ремесел Арт-Палас в Измайлово.  А.Асадов, Н.Асадов, Т.Лебедева, при участии И.Шевченко, Ю.Шалетри.
«АБ Асадова». Генплан
Международный многофункциональный деловой комплекс ремесел Арт-Палас в Измайлово. А.Асадов, Н.Асадов, Т.Лебедева, при участии И.Шевченко, Ю.Шалетри. «АБ Асадова». Генплан

У заказчика, как и у членов жюри, сформировалось определенное видение: чтобы рядом с активной архитектурой Кремля появилось максимально спокойное и даже нейтральное здание. Из всех предложенных вариантов концепция Totement/Paper наиболее соответствовала этому пожеланию. Надо сказать, что сроки проектирования у нас были очень сжатыми, мы даже не успели толком пообщаться с заказчиком, чтобы понять его предпочтения. Но в целом впечатления от конкурса очень позитивные. Тематика русской идентичности в архитектуре нас давно интересует, мы активно работаем в этом направлении. Конкурсное задание стало интересным вызовом, на который мы постарались дать достойный ответ».