Размещено на портале Архи.ру (www.archi.ru)

16.09.2013

«Прекрасное небо» датского дизайна

Елизавета Эбнер
Объект:
Гостиница Bella Sky
Адрес:
Дания, None, Копенгаген.
Мастерская:
3XN

Репортаж из Копенгагена об отеле Bella Sky бюро 3XN.

Гостиница Bella Sky © Adam Mørk
Гостиница Bella Sky © Adam Mørk

Найти хороший отель в Копенгагене – дело не из легких. То, что у отеля – 5 звезд, и датчане рассказывают, что в нем останавливалась Пэрис Хилтон, не значит ничего: пять звезд здесь сопоставимы с добротной «тройкой», к примеру, в Мюнхене. Интерьеры таких отелей поражают своим минимализмом, но что поделать: таков датский дизайн. Но если в Radisson, фактически ставшим монументом Арне Якобсену, это кажется более чем оправданным и интересным, то в большинстве современных гостиниц класса «люкс» – просто смотрится грустно. И пусть вам говорят, что в скудно обставленном номере имеется шкаф XVIII столетия и телевизор стоимостью в отечественный автомобиль, а кровать застелена простынями старейшей датской мануфактуры, это не спасает от ощущения глубокой тоски, вызванной дизайном этой комнаты. Возникает ощущение, что это все сделано специально: чтобы хотелось быстрее бежать из гостиницы наслаждаться красотами Копенгагена. А ведь там действительно есть, что посмотреть, причем не последний «аттракцион» ¬– именно современная архитектура.
Гостиница Bella Sky © Adam Mørk
Гостиница Bella Sky © Adam Mørk

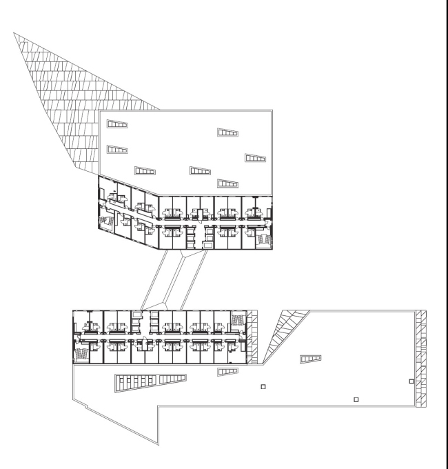
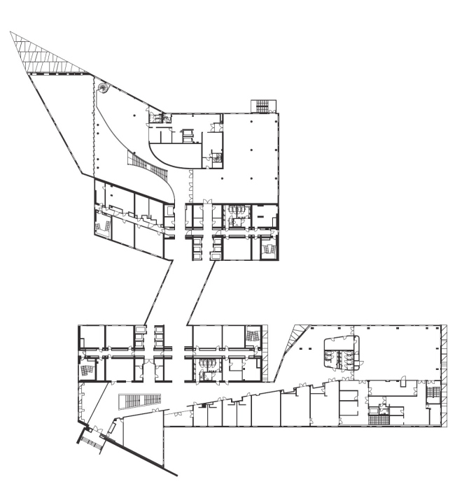
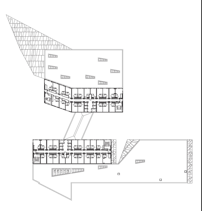
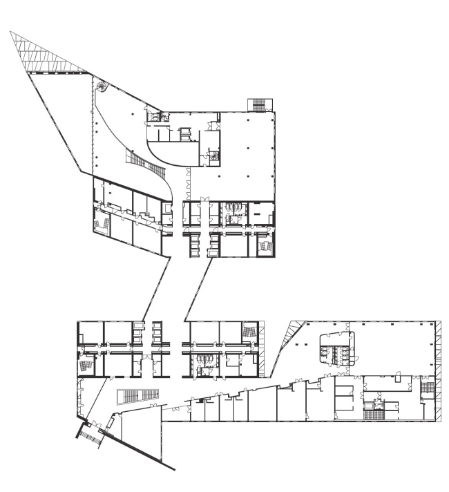
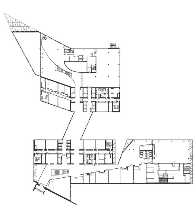
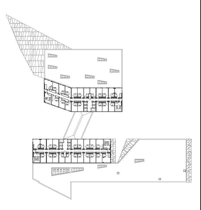
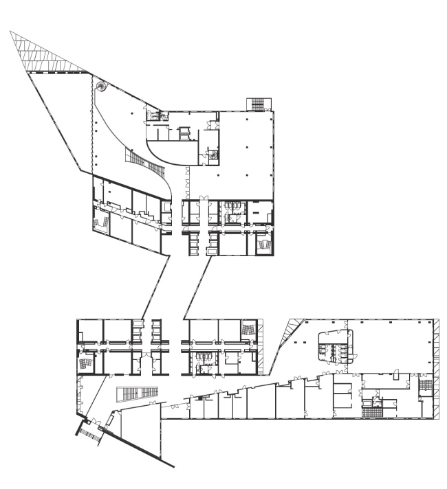
Отель Bella Sky – четырехзвездочный. Заказчик, владелец расположенного рядом конгресс-центра Bella Center, здраво рассудил, что добавить к нему отель – удачная идея. Bella Sky – это прекрасный пример датской архитектуры начала 21 века, работа известного архитектурного бюро 3XN. Отель составляют две башни, изогнутые в противоположном направлении друг от друга. Рядом находится аэропорт, поэтому при проектировании необходимо было учитывать ограничения по высоте: максимум в 23 этажа, поэтому необходимое количество квадратных метров добрали путем расширения корпусов по горизонтали. Между башнями перекинут мостик: при его проектировании учли сильные ветровые нагрузки – чтобы обеспечить устойчивость его конструкции, по углам моста были сделаны специальные гибкие элементы.
Гостиница Bella Sky © Adam Mørk
Гостиница Bella Sky © Adam Mørk

Bella Sky расположен в новом столичном районе Эрестад. Здесь уже есть жилье, торговые центры, школа, метро, концертный зал, а еще – красивые лесопарки, в то время, как раньше здесь находилась тренировочная база датских войск. Однако сами датчане от Эрестада не в восторге: несмотря на то, что это, возможно, самый знаменитый датский «полигон» для национальной и зарубежной современной архитектуры, жить здесь коренному населению не очень хочется. Датчане привыкли к узким улицам, маленьким магазинам и «загадочным» кафе со свечами. К примеру, расположенная здесь школа, тоже построенная по проекту 3XN – очень привлекательна и удобна. Но при этом она до ужаса новаторская: обучение ведется исключительно на компьютерах и спонсируется компанией Apple. Так что консервативные датчане переезжать сюда не торопятся.
Гостиница Bella Sky © Adam Mørk
Гостиница Bella Sky © Adam Mørk

Но вернемся к Bella Sky. При входе в отель первое, что бросается в глаза – это большая эффектная люстра, составленная из светодиодных трубок. Это работа Каспера Йоргенсена, партнера в бюро 3XN и главы его отдела GXN, который занимается инновационными материалами и технологическим разработками (Архи.ру публиковало интервью с ним). Все интерьеры гостиницы, кроме Sky Bar, находящегося на последнем этаже одной из башен, также выполнены 3XN. Из уютного вестибюля на второй уровень ведет лестница, которая сделана таким образом, чтобы встретившимся на ней двум постояльцам можно было комфортно пообщаться. Лестницы – своеобразный «фетиш» архитекторов 3XN: в их зданиях они причудливо изгибаются, вьются и даже парят в пространстве. Поэтому в Bella Sky даже эвакуационные лестницы не похожи на их совершенно непривлекательные аналоги в других высотных зданиях: они красивы и удобны.
Гостиница Bella Sky © Adam Mørk
Гостиница Bella Sky © Adam Mørk

В отеле есть все необходимое постояльцу: номера различного уровня комфорта, фитнес-центр, спа, бар и ресторан. Но есть и «изюминка» – этаж только для дам. Он – розовый, и там в каждом номере особое внимание уделено гелям для душа, размеру фена, гладкости полотенец. Мужчинам сюда вход строго воспрещен, поэтому в демократичной Дании сразу разгорелись дебаты по поводу неравенства, которое провоцируется таким архитектурным решением. Но через некоторое время все пришли к выводу, что это просто забавно, и вопрос был снят сам собой.
Гостиница Bella Sky © Adam Mørk
Гостиница Bella Sky © Adam Mørk

Оформление номеров Bella Sky – датский дизайн в идеальном своем проявлении, причем совсем не в духе пятизвездочных отелей Копенгагена. Это его современный виток развития: здесь есть что-то от искусства новой датской кухни, влияния ресторана NOMA и инсталляций Олафура Элиассона.
Гостиница Bella Sky © Adam Mørk
Гостиница Bella Sky © Adam Mørk

В интерьере продолжено решение экстерьера: от цвета мягкой мебели и выработки ковра до покрывала с узором «треугольничками» – все напоминает об оформлении фасадов здания.
Гостиница Bella Sky © Adam Mørk
Гостиница Bella Sky © Adam Mørk

Ясно, что ключевое достоинство каждого гостиничного номера – вид из него. Поэтому в Bella Sky окна – от пола до потолка. Видом можно наслаждаться даже из душа, причем напыление на ограждающей панели сделано так, что из кабины видно все, что происходит в комнате и за окном, но того, кто моется в душе, снаружи не увидеть.
Гостиница Bella Sky © Елизавета Клепанова
Гостиница Bella Sky © Елизавета Клепанова

В каждой комнате имеются деревянные панели с небольшими кнопкам: с их помощью посетитель может вызвать персонал, оставить сигнал о необходимости уборки номера или включить индикатор «не беспокоить».
Гостиница Bella Sky © Adam Mørk
Гостиница Bella Sky © Adam Mørk

Bella Sky – не просто гостиница, это квинтэссенция современной датской архитектуры и дизайна – так же, как отель Radisson Арне Якобсена стал их манифестом полвека назад.
Гостиница Bella Sky © Елизавета Клепанова
Гостиница Bella Sky © Елизавета Клепанова
Гостиница Bella Sky © Adam Mørk
Гостиница Bella Sky © Adam Mørk
Гостиница Bella Sky © Adam Mørk
Гостиница Bella Sky © Adam Mørk
Гостиница Bella Sky © Adam Mørk
Гостиница Bella Sky © Adam Mørk
Гостиница Bella Sky © Adam Mørk
Гостиница Bella Sky © Adam Mørk
Гостиница Bella Sky © Adam Mørk
Гостиница Bella Sky © Adam Mørk
Гостиница Bella Sky © Adam Mørk
Гостиница Bella Sky © Adam Mørk
Гостиница Bella Sky © Елизавета Клепанова
Гостиница Bella Sky © Елизавета Клепанова
Гостиница Bella Sky © Елизавета Клепанова
Гостиница Bella Sky © Елизавета Клепанова
Гостиница Bella Sky © Елизавета Клепанова
Гостиница Bella Sky © Елизавета Клепанова
Гостиница Bella Sky © Елизавета Клепанова
Гостиница Bella Sky © Елизавета Клепанова
Гостиница Bella Sky © Елизавета Клепанова
Гостиница Bella Sky © Елизавета Клепанова
Гостиница Bella Sky © Елизавета Клепанова
Гостиница Bella Sky © Елизавета Клепанова
Гостиница Bella Sky © Adam Mørk
Гостиница Bella Sky © Adam Mørk
Гостиница Bella Sky © Adam Mørk
Гостиница Bella Sky © Adam Mørk
Гостиница Bella Sky © Adam Mørk
Гостиница Bella Sky © Adam Mørk
Гостиница Bella Sky © Adam Mørk
Гостиница Bella Sky © Adam Mørk
Гостиница Bella Sky © Елизавета Клепанова
Гостиница Bella Sky © Елизавета Клепанова
Гостиница Bella Sky © Елизавета Клепанова
Гостиница Bella Sky © Елизавета Клепанова
Гостиница Bella Sky © Елизавета Клепанова
Гостиница Bella Sky © Елизавета Клепанова
Гостиница Bella Sky © Елизавета Клепанова
Гостиница Bella Sky © Елизавета Клепанова
Гостиница Bella Sky © Елизавета Клепанова
Гостиница Bella Sky © Елизавета Клепанова
Гостиница Bella Sky © 3XN
Гостиница Bella Sky © 3XN
Гостиница Bella Sky © 3XN
Гостиница Bella Sky © 3XN
Гостиница Bella Sky © 3XN
Гостиница Bella Sky © 3XN
Гостиница Bella Sky © 3XN
Гостиница Bella Sky © 3XN
Гостиница Bella Sky © 3XN
Гостиница Bella Sky © 3XN
Гостиница Bella Sky © 3XN
Гостиница Bella Sky © 3XN