Размещено на портале Архи.ру (www.archi.ru)

15.06.2013

«Тело. Чувство. Архитектура»

Алла Павликова

Проекты студентов школы МАРШ за второй семестр. Студия Евгения Асса.

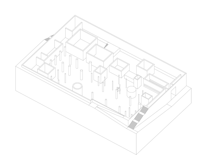
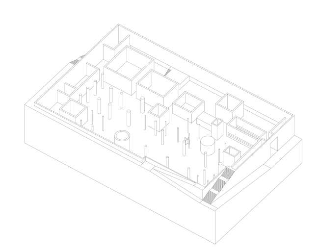
Баня по-черному. Проект Анны Шевченко
Баня по-черному. Проект Анны Шевченко
В начале июня в архитектурной школе МАРШ прошла защита проектов, выполненных студентами школы во втором семестре. Предлагаем вашему вниманию лучшие работы студии под руководством Евгения Асса. Напомним, что тема предложенная студентам этой студии звучала как «Тело. Чувства. Архитектура», а объектом проектирования были выбраны бани, они же термы.

О том, как проходила работа над проектами и о самих проектах рассказывает
Евгений Асс:
«Студентам было предложено спроектировать баню в Москве. Нам показалось, что баня в наибольшей степени соответствует заявленной теме «Тело. Чувства. Архитектура». Мы предложили на выбор несколько участков разного свойства и размера, но не ставили никаких ограничений в отношении программы проектирования. Ее разработка стала частью проекта. Работа началась с самых разных исследований и в первую очередь с исследования чувствительности самих студентов, их реакций и восприятий на те или иные события. Для них мы организовали поход в бани, целью которого было зафиксировать все свои переживания. После этого необходимо было изучить и проанализировать мировой опыт в области строительства бань. В обязательном порядке студенты исследовали римские термы и термы Петера Цумтора, также они могли ознакомиться с другими современными банями на свой выбор.

Тема «Тело. Чувства. Архитектура» была предложена мной еще и для того, чтобы попытаться преодолеть традиционное для архитекторов мышление чертежами и приблизиться к мышлению реальными пространствами, материалами и ощущениями от архитектуры. Конечно, полностью мы не смогли отказаться от чертежей, но большинство проектов в значительной степени сохранили свежесть восприятия и передачи потенциальных чувств. В результате мы получили несколько совершенно выдающихся проектов, хотя, конечно, интересными были все.

Например, одна из наших студенток, Аня Шевченко, сделала проект, в основе которого был образ традиционной бедной русской бани по-черному, где зола и сажа являлись главными атрибутами чистоты. Она придумала трехслойную баню. Первый уровень, подземный – это слой ада, где собственно сконцентрировано все черное, над ним располагается слой чистилища, где можно вымыться, а наверху – слой рая с открытым бассейном и возможностью созерцать мир и высокое небо. Аня сделала очень хорошие рисунки, которые в некотором смысле даже более содержательны, чем чертежи, потому что в них значительно больше эмоционального наполнения.

Очень необычную баню спроектировал Ваня Греков, превратив ее в чистый аттракцион. Это вертикальная баня, в которой нет ни одного горизонтального уровня, кроме уровня воды. Основной мотив проекта – конвекция и циркуляция воздуха, использованная как основа инженерного решения, отопления и вентиляции. Весь теплый воздух поднимается наверх, и посетители бани тоже поднимаются вверх по пандусам. И по мере подъема температура воздуха становится все выше. Спускаясь вниз, люди, наоборот, постепенно остывают. Это очень экстравагантная работа, но придуманная до конца, это не просто концепция, а проработанный до конструкций проект – экспериментальный, радикальный, но, как ни странно, он вполне мог бы быть реализован.

Отдельного упоминания заслуживает работа Маши Тюлькановой, которая начала со своих сибирских воспоминаний о баньках, одиноко стоящих посреди заснеженного поля под черным куполом неба. Этот образ она провела сквозь весь проект и, в конце концов, превратила его в гигантский закрытый атриум при спа-отеле, который расположился по периметру атриума. Таким образом, проект приобрел дополнительную функциональность. Предложена довольно странная, но увлекательная тема, когда из галереи гостиницы можно видеть бассейн с темной водой, облака пара и блуждающие среди них тени купающихся.

Также хочется отметить проект Ани Козловой, которая предложила построить баню на участке перед Лефортовским дворцом со стороны Яузы. Это место – пропащее и безнадежное. Придумать там что-то стоящее было довольно трудно. Но Аня нашла интересное, даже в общегородском плане, решение. Она организовала вход в баню по пандусу через Лефортовский дворец, в котором сейчас находится закрытое военное учреждение. Партер дворца по проекту обращен к благоустроенной площади с бассейном и зданием бани в виде большого цилиндра. Можно представить себе, как зимой из этого цилиндра валит красиво подсвеченный пар. А летом этот объем предполагается использовать как фонтан.

Максим Зуев, наш студент из Одессы, тоже удивил нас нестандартностью решений. Он придумал баню водных ощущений. Это большое единое пространство, в котором есть зоны дождя и тумана, а вода заполняет разноуровневые бассейны. Создана очень сложная водно-температурная среда, упакованная в мутный стеклянный ящик, который наполовину закопан в землю. У Максима получились очень красивые интерьеры, в которых в тумане и в мороси бродят неразличимые тени. Вначале его исследования он в качестве прототипов привел кадры из «Сталкера» и из фильмов Джорджа Лукаса, которым присуща похожая неопределенная дождливая атмосфера. И, мне кажется, что такая странная идея вполне могла бы стать предметом практического обсуждения.

За этот семестр студенты разработали много замечательных проектов. Во всяком случае, у нас не было ни одной бани как просто места для мытья. Баня рассматривалась в первую очередь как общественное пространство, иногда – культовое, баня как форум или баня как храм. Задача была сформулирована таким образом, чтобы создать пространство, в котором были бы предельно обострены все чувства и восприятия, тактильные, осязательные, обонятельные, температурные. И, как мне кажется, студенты с заданием справились. После защиты проектов я разговаривал со студентами, и одна из них высказала драгоценную для меня мысль, что никогда уже она не сможет проектировать иначе».

Мы попросили Евгения Асса назвать несколько наиболее удачных, на его взгляд, проектов, и публикуем их с авторскими комментариями.

Баня по-черному. Автор: Анна Шевченко
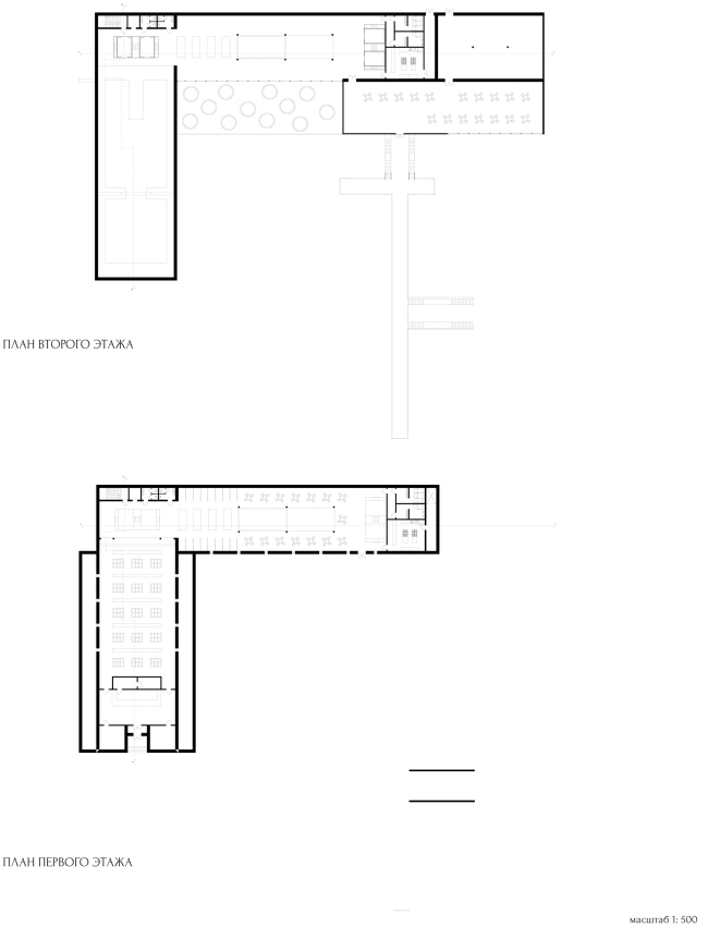
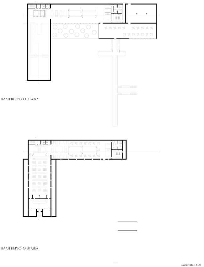
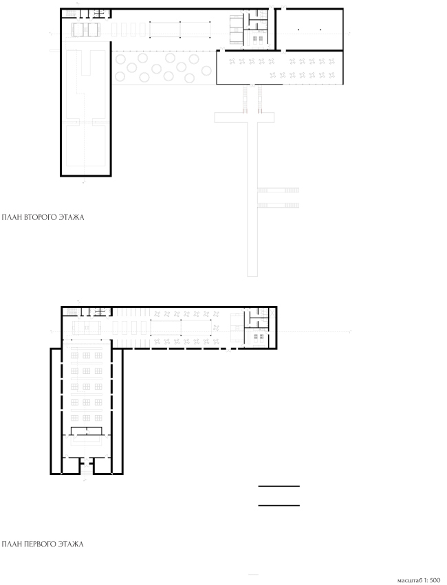
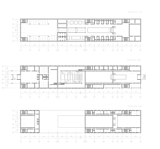
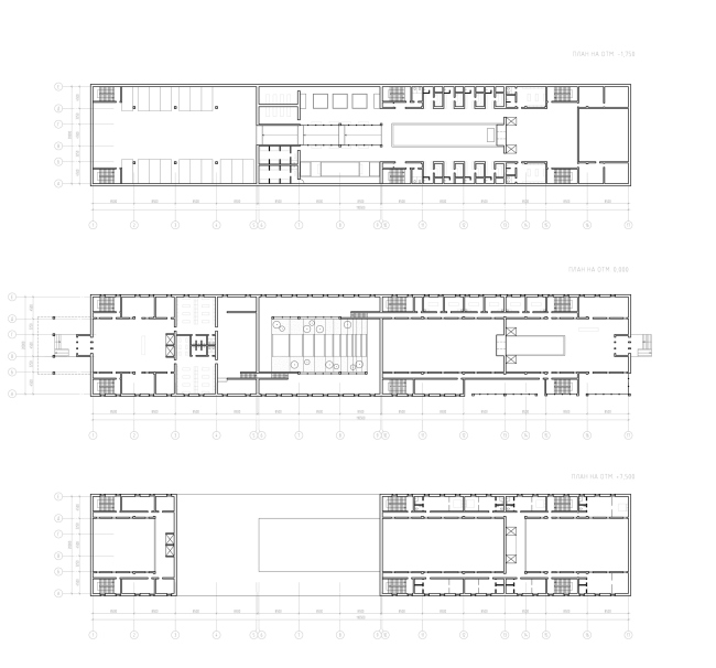
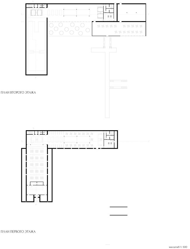
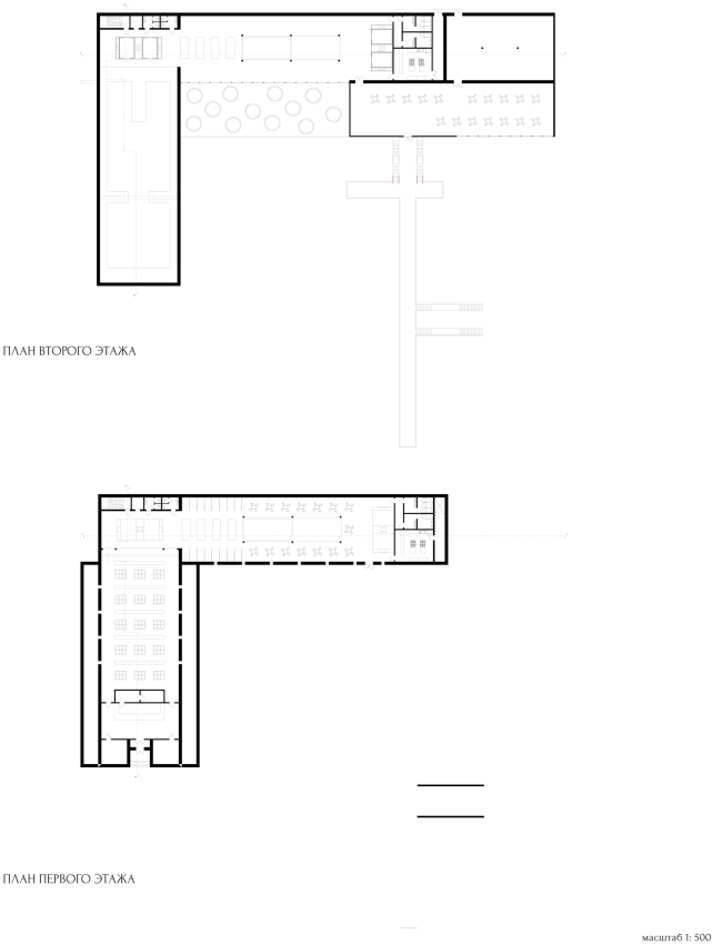
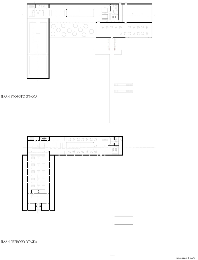
Участок расположен на Котельнической набережной, в 10 метрах от причала и неподалеку от станции метро «Таганская». Рельеф имеет значительный перепад высот. Баня Анны Шевченко представляет собой трехуровневый объем, состоящий из простых геометрических форм. В качестве прообраза автор выбрал русскую баню по-черному. И нижний, подземный уровень здания как раз обыгрывает данную тему – черные, обожженные стены, зола и металлические котлы для купания на горячих углях. Второй уровень занимает собственно баня, а наверху устроен открытый бассейн. Конструкция здания – железобетонная, обшитая панелями из обожжённого дерева. В виду дефицита зелени в рассматриваемом районе предлагается окружить баню небольшим зеленым садом.
Ситуация. Баня по-черному. Проект Анны Шевченко
Ситуация. Баня по-черному. Проект Анны Шевченко
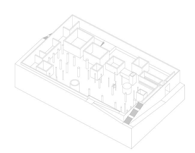
Рабочий макет. Баня по-черному. Проект Анны Шевченко
Рабочий макет. Баня по-черному. Проект Анны Шевченко
Баня по-черному. Проект Анны Шевченко
Баня по-черному. Проект Анны Шевченко
Главный фасад. Баня по-черному. Проект Анны Шевченко
Главный фасад. Баня по-черному. Проект Анны Шевченко
Фасад. Баня по-черному. Проект Анны Шевченко
Фасад. Баня по-черному. Проект Анны Шевченко
Развертка. Баня по-черному. Проект Анны Шевченко
Развертка. Баня по-черному. Проект Анны Шевченко
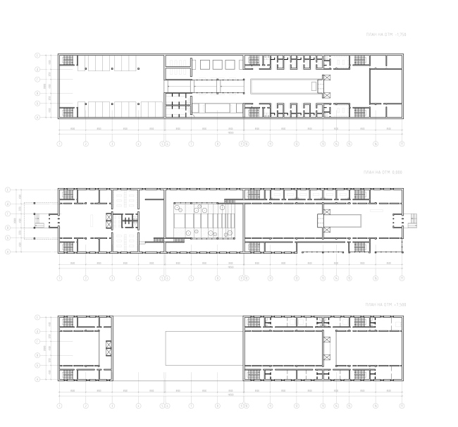
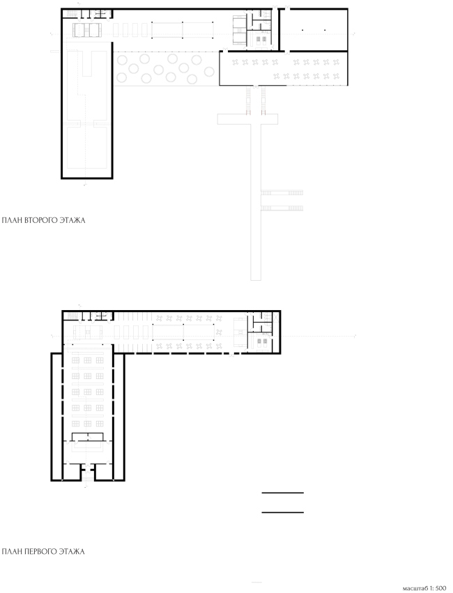
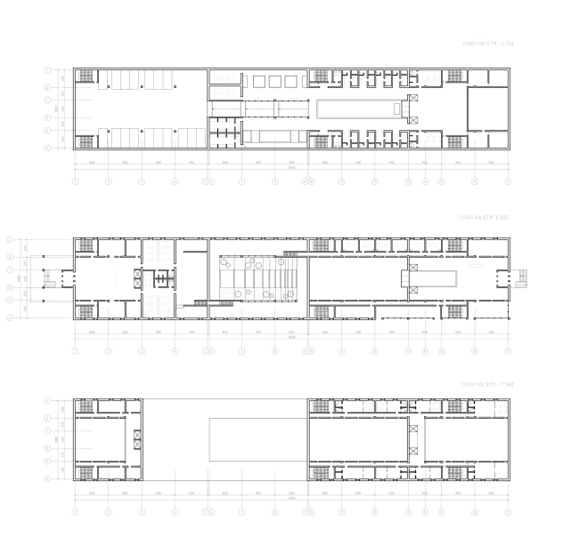
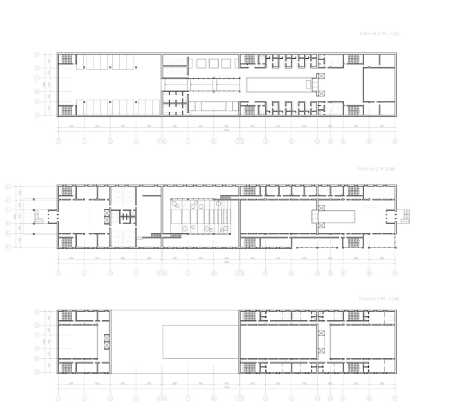
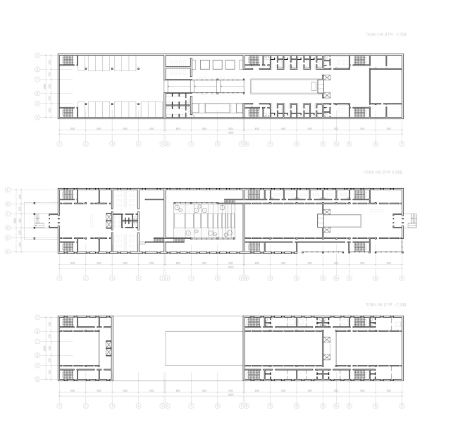
Планы. Баня по-черному. Проект Анны Шевченко
Планы. Баня по-черному. Проект Анны Шевченко
Разрез. Баня по-черному. Проект Анны Шевченко
Разрез. Баня по-черному. Проект Анны Шевченко


Вертикальная баня. Автор: Иван Греков
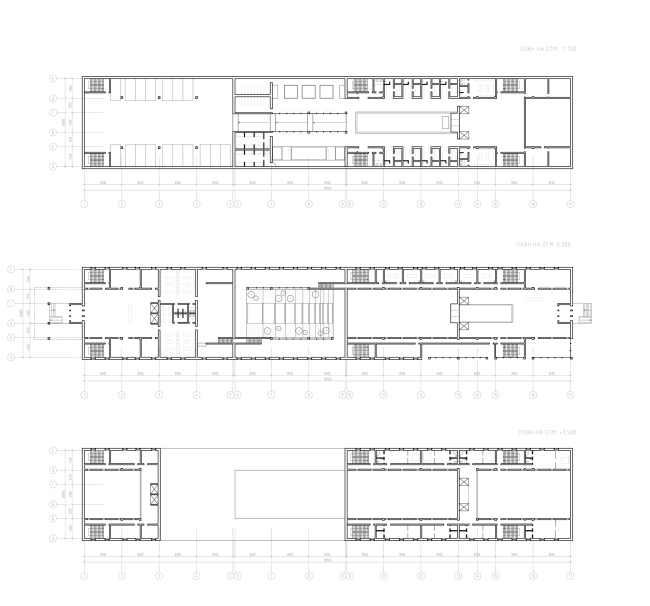
Участок, выбранный для проектирования, расположен на Садовнической набережной. Баня Ивана Грекова имеет простую форму в виде вертикального стеклянного объема с двуслойным полупрозрачным фасадом и выведенным в верхушку «частоколом» конструктивного скелета. Вход в здание устроен со стороны набережной, а выход – в противоположной части, на Садовническую улицу. Основная идея проекта – вертикальное движение вверх и вниз, причем не только посетителей, путешествующих по рампе, но и воздуха, постоянно циркулирующего внутри за счет разницы температур. Конвекция – это основной формообразующий принцип в проекте. Схема расположения функциональных пространств, необходимых в современной бане (сухая баня с купелью, сауна, хамам, массажные комнаты, бассейны, парилки, горячие камни, ванные для релакса и т.п.), напоминает термометр, где вверху посетителя ожидают предельно горячие температуры, но по мере снижения становится все прохладнее.
Ситуация. Вертикальная баня. Проект Ивана Грекова
Ситуация. Вертикальная баня. Проект Ивана Грекова
Схема построения пространства. Вертикальная баня. Проект Ивана Грекова
Схема построения пространства. Вертикальная баня. Проект Ивана Грекова
Вертикальная баня. Проект Ивана Грекова
Вертикальная баня. Проект Ивана Грекова
Вертикальная баня. Проект Ивана Грекова
Вертикальная баня. Проект Ивана Грекова
Ночной вид. Вертикальная баня. Проект Ивана Грекова
Ночной вид. Вертикальная баня. Проект Ивана Грекова
Интерьеры. Вертикальная баня. Проект Ивана Грекова
Интерьеры. Вертикальная баня. Проект Ивана Грекова
Вертикальная баня. Проект Ивана Грекова
Вертикальная баня. Проект Ивана Грекова
Вертикальная баня. Проект Ивана Грекова
Вертикальная баня. Проект Ивана Грекова


Баня-атриум в спа-отеле. Автор: Мария Тюльканова
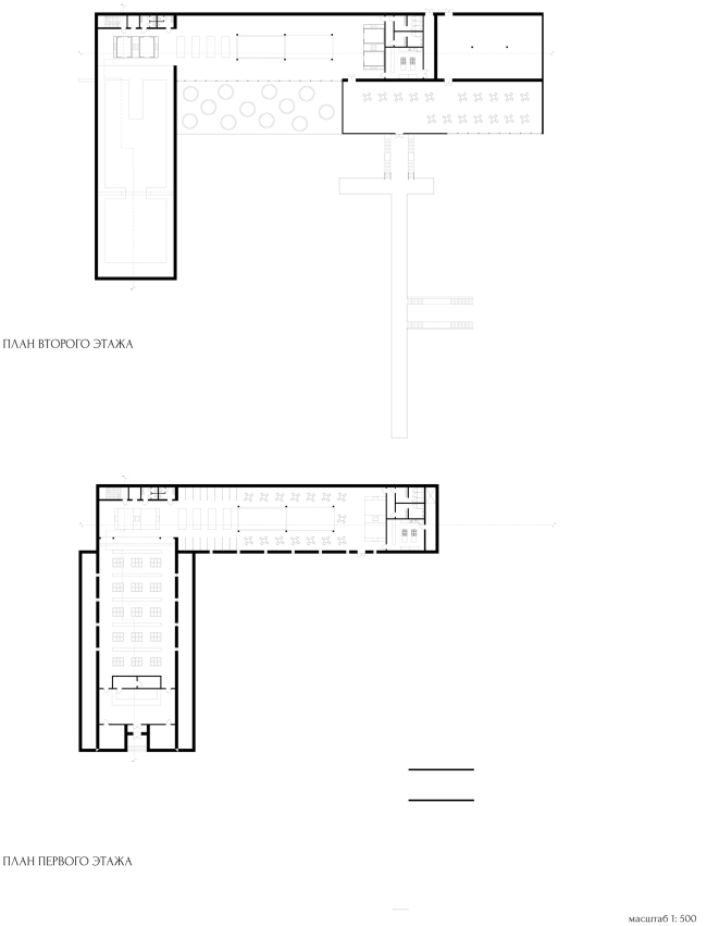
Спа-отель занимает протяженный участок вдоль Водоотводного канала на Садовнической набережной. Это многослойный объем с перепадами от низкого к высокому, от узкого к широкому, от глухих простенков к открытым пространствам. Постоянно сменяется и фактура здания – от ребристого бетона к теплому дереву и прозрачному стеклу. Баня, по мысли автора, это центр аккумуляции энергии, погружающий в медитативное состояние. Основная тема проекта – мечта, греза, воспоминания из детства о теплой и ароматной деревенской бане с неярким светом. По-своему интерпретированное внутреннее пространство этой бани удивительным образом вмещается в атриум современного спа-отеля, становясь его главной составляющей, ядром.
Ситуация. Баня-атриум в спа-отеле. Проект Марии Тюлькановой
Ситуация. Баня-атриум в спа-отеле. Проект Марии Тюлькановой
Макет. Баня-атриум в спа-отеле. Проект Марии Тюлькановой
Макет. Баня-атриум в спа-отеле. Проект Марии Тюлькановой
Баня-атриум в спа-отеле. Проект Марии Тюлькановой
Баня-атриум в спа-отеле. Проект Марии Тюлькановой
Отделка фасадов. Баня-атриум в спа-отеле. Проект Марии Тюлькановой
Отделка фасадов. Баня-атриум в спа-отеле. Проект Марии Тюлькановой
Фасад. Баня-атриум в спа-отеле. Проект Марии Тюлькановой
Фасад. Баня-атриум в спа-отеле. Проект Марии Тюлькановой
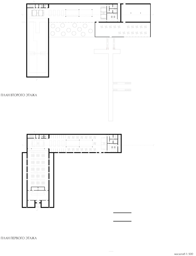
Планы. Баня-атриум в спа-отеле. Проект Марии Тюлькановой
Планы. Баня-атриум в спа-отеле. Проект Марии Тюлькановой
Разрезы. Баня-атриум в спа-отеле. Проект Марии Тюлькановой
Разрезы. Баня-атриум в спа-отеле. Проект Марии Тюлькановой


Lefortovo lighting bath. Автор: Анна Козлова
Анна Козлова разработала проект бани на территории Лефортовского дворца, центральный двор которого на сегодняшний день окружен складами и не доступен для посетителей. Автор предлагает открыть доступ на площадь через главную арку со стороны 2-й Баумановской улицы, а вокруг дворца разбить парк. Вход в баню, которая расположена ближе к Лефортовской набережной и большей частью находится под землей, предполагается осуществлять по пандусу, берущему свое начало прямо из центра дворцовой площади. Видимая над поверхностью земли часть бани имеет форму цилиндра, поставленного в центре большого прямоугольного бассейна. Однако выведенный на поверхность объем не позволяет составить полное представление о внутренней структуре всего здания, имеющего строгую прямоугольную в плане форму. Основной функциональный блок поделен на две половины – мужскую и женскую – и включает в себя все блага современной бани. Особая роль в формировании внутреннего пространства отведена свету.
Генплан. Lefortovo lighting bath. Проект Анны Козловой
Генплан. Lefortovo lighting bath. Проект Анны Козловой
Макет. Lefortovo lighting bath. Проект Анны Козловой
Макет. Lefortovo lighting bath. Проект Анны Козловой
Lefortovo lighting bath. Проект Анны Козловой
Lefortovo lighting bath. Проект Анны Козловой
Lefortovo lighting bath. Проект Анны Козловой
Lefortovo lighting bath. Проект Анны Козловой
Lefortovo lighting bath. Проект Анны Козловой
Lefortovo lighting bath. Проект Анны Козловой
План. Lefortovo lighting bath. Проект Анны Козловой
План. Lefortovo lighting bath. Проект Анны Козловой
Разрезы. Lefortovo lighting bath. Проект Анны Козловой
Разрезы. Lefortovo lighting bath. Проект Анны Козловой


Баня атмосферных явлений. Автор: Максим Зуев
Участок расположен на Котельнической набережной, на крутом рельефе. Объем бани посажен на рельеф, частью уходя под землю, а главным фасадом обращаясь к реке. Баня решена в виде стеклянного объема с прямыми углами. Фасад формируют крупные стеклянные блоки, различные по размеру, имитируя слоистую скальную фактуру. Основная идея проекта – представить внутри одного здания практически все атмосферные явления. Пространство поделено на зоны дождя, тумана, облачности, которые плавно перетекают из одной в другую. Вода представлена здесь почти во всех своих состояниях – в виде горячего и холодного пара, мелкой мороси, конденсата. На крыше расположен открытый бассейн с окружающей его общественной площадью, доступ на которую осуществляется по лестнице со стороны набережной.
Ситуация. Баня атмосферных явлений. Проект Максима Зуева
Ситуация. Баня атмосферных явлений. Проект Максима Зуева
Баня атмосферных явлений. Проект Максима Зуева
Баня атмосферных явлений. Проект Максима Зуева
Открытый бассейн на кровле бани. Проект Максима Зуева
Открытый бассейн на кровле бани. Проект Максима Зуева
Фрагмент фасада. Баня атмосферных явлений. Проект Максима Зуева
Фрагмент фасада. Баня атмосферных явлений. Проект Максима Зуева
Интерьеры. Баня атмосферных явлений. Проект Максима Зуева
Интерьеры. Баня атмосферных явлений. Проект Максима Зуева
Баня атмосферных явлений. Проект Максима Зуева
Баня атмосферных явлений. Проект Максима Зуева
План. Баня атмосферных явлений. Проект Максима Зуева
План. Баня атмосферных явлений. Проект Максима Зуева
Разрез. Баня атмосферных явлений. Проект Максима Зуева
Разрез. Баня атмосферных явлений. Проект Максима Зуева