Размещено на портале Архи.ру (www.archi.ru)

03.06.2013

Архсовет Москвы–3

Алла Павликова
Объект:
Многофункциональный комплекс Alcon II на Ленинградском проспекте
Адрес:
Россия, Москва. Ленинградский проспект, 72
Предпроектное предложение по приспособлению территории усадьбы Останкино
Адрес:
Россия, Москва. Останкинская улица
Проект выставочного комплекса в Большом Чудовом переулке
Адрес:
Россия, Москва.
Мастерская:
ADM
Авторский коллектив:
ФГУП ГИПРОНИИ РАН, ТПО-5 Бюро Платонов, Ю. Платонов, Л. Барщ, В. Трошин

На обсуждение третьего архитектурного совета, который состоялся 15 мая в Москомархитектуре, были вынесены три очень разных проекта – многофункциональный комплекс на Ленинградском проспекте, выставочной комплекс в Большом Чудовом переулке и проект реставрации усадьбы Останкино.

Многофункциональный комплекс на Ленинградском проспекте. Заказчик – «Сокол Эстейт», проектировщик – ADM, автор – Андрей Романов
Многофункциональный комплекс на Ленинградском проспекте. Заказчик – «Сокол Эстейт», проектировщик – ADM, автор – Андрей Романов
Многофункциональный комплекс на Ленинградском проспекте
Многофункциональный комплекс на Ленинградском проспекте. Заказчик – «Сокол Эстейт», проектировщик – ADM, автор – Андрей Романов
Многофункциональный комплекс на Ленинградском проспекте. Заказчик – «Сокол Эстейт», проектировщик – ADM, автор – Андрей Романов

Первым свой проект представлял Андрей Романов, руководитель бюро ADM. Здание комплекса расположено возле станции метро Сокол, на пересечении Ленинградского проспекта с Волоколамским шоссе. Проект представляет собой вторую очередь комплекса (преимущественно офисного) – здание, вытянутое вдоль трассы, планируется построить на месте советского фабричного корпуса, который снесут этой осенью. Над первой очередью тоже работает бюро ADM: четыре корпуса, расположенных в глубине участка, уже почти готовы. Архитекторы, как рассказал Андрей Романов совету, уделяют особенное внимание качеству благоустройства территории: примерно 2 гектара между корпусами и вокруг них станут открытым городу общественным пространством с хорошей вымосткой, подсветкой, скамейками и деревьями.
Многофункциональный комплекс на Ленинградском проспекте. Заказчик – «Сокол Эстейт», проектировщик – ADM, автор – Андрей Романов
Многофункциональный комплекс на Ленинградском проспекте. Заказчик – «Сокол Эстейт», проектировщик – ADM, автор – Андрей Романов

Здание второй очереди, представленное совету, наследует образность корпусов, расположенных в глубине территории, но реагирует на проспект, укрупняя масштаб и добавляя пластики. Этажи объединены попарно в высокие ленты, и эти ленты изогнуты – неравномерными волнами, образно реагирующими на потоки автомобилей. Архитекторы предложили совету целых четыре варианта фасадов, в целом похожих, но варьирующих плотность поверхности: где-то больше терракотовых панелей, где-то стекла (совет выбрал четвертый вариант, который и показан здесь на картинках).

Два нижних яруса  полностью отданы магазинам и кафе, их немного отступающие в глубину здания фасады – целиком стеклянные, с плавно скругленными углами, ближе к центру здания расступаются двумя асимметричными криволинейными проходами, ведущими к зеленому скверу в глубине территории. Кроме того, предусматривается строительство подземного трехуровневого паркинга. Зона загрузки убирается под землю. А еще благоустраивается тротуар вдоль проспекта – по личной инициативе заказчика и архитектора.
Многофункциональный комплекс на Ленинградском проспекте. Заказчик – «Сокол Эстейт», проектировщик – ADM, автор – Андрей Романов
Многофункциональный комплекс на Ленинградском проспекте. Заказчик – «Сокол Эстейт», проектировщик – ADM, автор – Андрей Романов

Рассмотрение проекта на совете было скорее благожелательным – все выступления начинались и заканчивались комплиментами авторам, а Сергей Чобан даже отозвался об ADM как о молодом и перспективном бюро, каких в Москве сейчас мало. Члены совета были, однако, очень внимательны к деталям и обсуждали долго. Обоснованные вопросы вызвал сразу замеченный Сергеем Кузнецовым участок сквера, отданный наземной парковке. По обоюдному согласию архитекторов и совета парковку решено было убрать, отдав всю территорию скверу.
Многофункциональный комплекс на Ленинградском проспекте. Заказчик – «Сокол Эстейт», проектировщик – ADM, автор – Андрей Романов
Многофункциональный комплекс на Ленинградском проспекте. Заказчик – «Сокол Эстейт», проектировщик – ADM, автор – Андрей Романов

Дальнейшее обсуждение вращалось вокруг планировки прохода в нижнем ярусе здания. Дело в том, что между симметрично расставленными четырьмя корпусами первой очереди образуется своего рода пространственный крест: два коротких широких бульвара пересекаются в центре территории. Часть членов совета сочла получившуюся ось важным пространственным элементом, требующим «классического» выхода на проспект в виде одного крупного проема, а не двух скошенных проходов. Ханс Штимманн рассказал, что накануне посетил участок строительства и с удовольствием отметил для себя высокое качество архитектуры первой очереди, но рекомендовал сохранить ось, которая соединила бы уже построенный комплекс с новым. Алексею Воронцову, напротив, показалось необязательным выводить ось аллеи на Ленинградский проспект, по его словам, «два прохода создают куда большую интригу». Сергей Чобан тоже поддержал идею с двумя проходами, но предложил сделать их симметричными, расходящимися от внутренней оси двумя лучами.

В целом же все члены совета единодушно начинали свои выступления с комплиментов, подчеркивая, что сегодня в Москве настолько качественная, аргументированная и зрелая архитектура встречается крайне редко. Проект с минимальными доработками решено было согласовать.

Проект выставочного комплекса в Большом Чудовом переулке
Юрий Платонов. Фотография Аллы Павликовой
Юрий Платонов. Фотография Аллы Павликовой

Проект входит в состав туристического маршрута, над которым Юрий Платонов работает уже довольно давно (он составляет своего рода цепочку проектов, куда входит, в частности, реконструкция Провиантских складов и многие другие участки между Киевским вокзалом и Зубовской площадью). В данном случае участок расположен между выходом из станции «Парк культуры» кольцевой линии и церковью Николы в Хамовниках, прекрасным и хорошо сохранившимся храмом XVII века. Впрочем от церкви участок теперь загорожен торговым центром «Акрополь», построенным в 1990-е в характерных для того времени масштабе и стилистике.

Проект Юрия Платонова несколько раз менял функцию: сейчас это выставочный комплекс (раньше был торговым). Стеклянное здание с дугообразным пассажем внутри окружено тонким портиком в духе классицистических веяний 1970-х. На открытых террасах планируется разворачивать летние экспозиции и кафе.
Проект выставочного комплекса в Большом Чудовом переулке. Заказчик – «Фирма Парк Культуры», проектировщик – ФГУП ГИПРОНИИ РАН, ТПО-5 Бюро Платонов, авторы – Ю. Платонов, Л. Барщ, В. Трошин
Проект выставочного комплекса в Большом Чудовом переулке. Заказчик – «Фирма Парк Культуры», проектировщик – ФГУП ГИПРОНИИ РАН, ТПО-5 Бюро Платонов, авторы – Ю. Платонов, Л. Барщ, В. Трошин

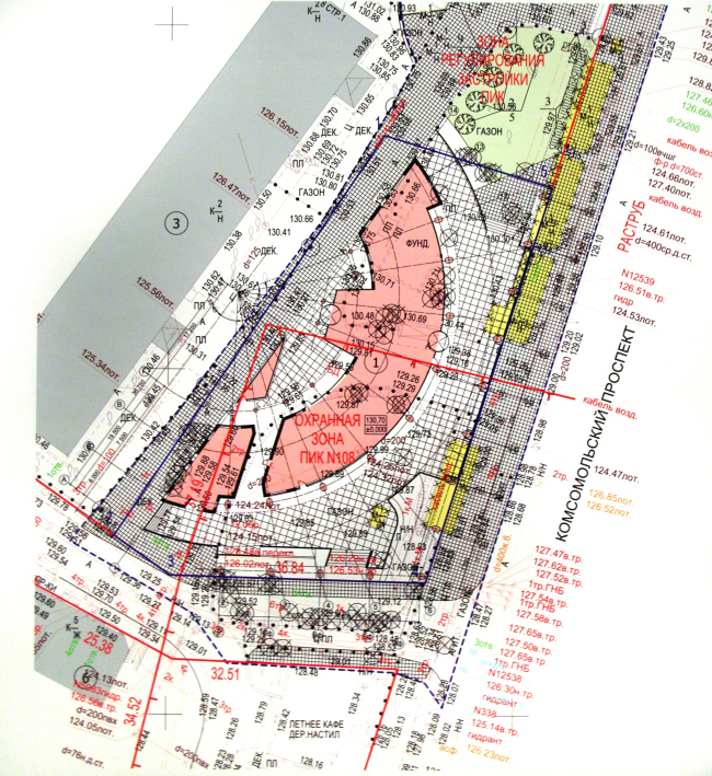
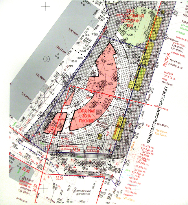
На участке Зубовской эстакады предлагается расположить подземный паркинг. Пешеходные потоки от метро пойдут вдоль Комсомольского проспекта, а также позади проектируемого здания. В связи с этим запланированы сквозные проходы через вестибюль. Также существует диагональный проход, ориентированный на храм. На первом этаже созданы общественные пространства – вестибюль и кафе. Остальные этажи занимают экспозиционные залы – односветные, двусветные и антресольные.
Проект выставочного комплекса в Большом Чудовом переулке. Заказчик – «Фирма Парк Культуры», проектировщик – ФГУП ГИПРОНИИ РАН, ТПО-5 Бюро Платонов, авторы – Ю. Платонов, Л. Барщ, В. Трошин
Проект выставочного комплекса в Большом Чудовом переулке. Заказчик – «Фирма Парк Культуры», проектировщик – ФГУП ГИПРОНИИ РАН, ТПО-5 Бюро Платонов, авторы – Ю. Платонов, Л. Барщ, В. Трошин

Проект выставочного комплекса в Большом Чудовом переулке. Заказчик – «Фирма Парк Культуры», проектировщик – ФГУП ГИПРОНИИ РАН, ТПО-5 Бюро Платонов, авторы – Ю. Платонов, Л. Барщ, В. Трошин
Проект выставочного комплекса в Большом Чудовом переулке. Заказчик – «Фирма Парк Культуры», проектировщик – ФГУП ГИПРОНИИ РАН, ТПО-5 Бюро Платонов, авторы – Ю. Платонов, Л. Барщ, В. Трошин

Члены совета не рассматривали архитектуру проекта (хотя в целом чувствовалось, что ее оценили скорее доброжелательно), – потому, что главным предметом обсуждения стала юридическая проблема участка. По словам Александра Кибовского, почти половина застраиваемого по проекту участка находится в охранной зоне, установленной правительством Москвы еще в 1997 году. А по ныне действующему законодательству какое-либо новое строительство в охранной зоне запрещено. По словам Кибовского, экспертиза этот проект не пропустит: «Чудовищный торговый центр «Акрополь», ранее построенный в охранной зоне, не оправдывает ее дальнейшую застройку. Либо надо корректировать ее границы, либо умещать проект на участке за ее пределами». Вокруг этой мысли вращалась вся дальнейшая дискуссия.

Алексей Куренной подтвердил, что данный проект был согласован Москомархитектурой более пяти лет назад: «Проект получил ГПЗУ, затем рассматривался на градостроительно-земельной комиссии. На основании ГПЗУ коллектив Юрия Платонова разработал концепцию с соблюдением указанных объемов». На это Александр Кибовский заметил, что все помнят, каким образом согласовывались проекты пятилетней давности и как в то время относились к охранным зонам. К тому же, по словам Кибовского, ГПЗУ формирует предельно допустимые параметры, и это не означает, что нужно целиком застроить весь участок.

«В первую очередь нужно определиться с параметрами объема, – присоединился к обсуждению Алексей Воронцов. – Следовать нужно сегодняшнему законодательству, а значит, необходимо уменьшать объем. Это сделать гораздо проще, чем изменить границы охранной зоны. Но самое главное – нужно откорректировать градостроительные документы, чтобы авторы проекта не попадали в такую неприятную ситуацию».

А вот Андрею Бокову ситуация представилась не столь уж безнадежной. Он предложил авторам использовать ресурс воссоздания в пределах охранной зоны, а также подземные пространства.

Своего рода итог обсуждения подвел Рустам Рахматуллин с выступлением из зала. По словам Рахматуллина возможности для проектирования на данном участке есть, но только в режиме регенерации (то есть – строительства зданий в объемах ранее утраченной застройки, прим. ред.), и подчеркнул, что будет неправильно, если архитектурный совет выскажется за изменение границ охранной зоны.

Проект был отклонен. Авторам рекомендовали изменить проект, выйдя за линию охранной зоны, либо предложить обоснование для изменения ее границ.

Предпроектное предложение по приспособлению территории усадьбы Останкино
Станислав Пошвыкин. Фотография Аллы Павликовой
Станислав Пошвыкин. Фотография Аллы Павликовой

Знаменитая усадьба Останкино, загородная резиденция графов Шереметевых с роскошным деревянным дворцом и театром, хорошо известна всем, кто хоть сколько-нибудь знает Москву. С прошлого года дворец закрыт на реставрацию. Архсовету был показан полный проект будущей реставрации, в рамках которой планируется построить (а точнее сказать, выкопать) довольно-таки большой объем новых музейных помещений на территории бывшего хозяйственного двора усадьбы.
Предпроектное предложение по приспособлению территории усадьбы Останкино. Заказчик – «Мосреставрация», проектировщик – ГУП «Моспроект-2» им. М.В. Посохина, авторы – М. Посохин, С. Повышкин, Д. Минеева, М. Голубин, О. Галаничева, Н. Мухин, М. Морина, О. Жибуртович, М. Мордвинова, О. Волковская
Предпроектное предложение по приспособлению территории усадьбы Останкино. Заказчик – «Мосреставрация», проектировщик – ГУП «Моспроект-2» им. М.В. Посохина, авторы – М. Посохин, С. Повышкин, Д. Минеева, М. Голубин, О. Галаничева, Н. Мухин, М. Морина, О. Жибуртович, М. Мордвинова, О. Волковская

Один из авторов проекта Станислав Пошвыкин, показывая его совету, рассказал, что усадьба всегда была двухчастной и разделялась на территорию «праздника», балов и парадных зал – и хозяйственную часть, где располагались комплекс оранжерей, конный двор и подсобные флигеля. Помимо реставрации сохранившихся зданий усадьбы проект предполагает восстановление в прежних формах всех оранжерей, хозпостроек, конного двора и устройство под ними на территории хозяйственного двора обширной подземной части, где поместятся музейное фондохранилище, реставрационные мастерские, лекционный, театральный и несколько экспозиционных залов и парковка.

Единственным ново-внедрением, по словам авторов, станет понижение уровня конного двора более чем на четыре метра. Вниз можно будет спуститься по длинному пандусу. За все время существования музея в нем скопилось порядка 30 тысяч экспонатов, которые сегодня складируются во флигеле и в самом дворце, занимая почти половину музейных площадей. Поэтому прежде чем браться за реставрацию усадебного комплекса необходимо его освободить, построив фондохранилище. Специально для этих нужд правительство Москвы выделило музею участок площадью более 5 га рядом с парком. Предлагается сделать главным вход в музей со стороны храма (а не со стороны дворца, как сейчас) и провести газ для круглогодичной работы музея (раньше Останкино было закрыто зимой).
«Моспроект-2» им. М.В. Посохина, авторы – М. Посохин, С. Повышкин, Д. Минеева, М. Голубин, О. Галаничева, Н. Мухин, М. Морина, О. Жибуртович, М. Мордвинова, О. Волковская
«Моспроект-2» им. М.В. Посохина, авторы – М. Посохин, С. Повышкин, Д. Минеева, М. Голубин, О. Галаничева, Н. Мухин, М. Морина, О. Жибуртович, М. Мордвинова, О. Волковская

Глава Москомнаследия Александр Кибовский, выступающий в данном проекте в роли технического заказчика, с горячностью рассказал о стадиях его реализации. Начать предполагается с хозяйственных построек и фондохранилища, и лишь предположительно к 2018 году можно будет приступать к реставрации дворца. Восстановление будет происходить за счет бюджетных средств, запланированный бюджет около 9 млрд. рублей, которые планируется выделять постепенно. Кибовский высказал надежду, что эта работа станет образцово-показательной (и уникальной по масштабам восстановления усадьбы) среди всех реставрационных работ не только в России, но и в мире.
«Моспроект-2» им. М.В. Посохина, авторы – М. Посохин, С. Повышкин, Д. Минеева, М. Голубин, О. Галаничева, Н. Мухин, М. Морина, О. Жибуртович, М. Мордвинова, О. Волковская
«Моспроект-2» им. М.В. Посохина, авторы – М. Посохин, С. Повышкин, Д. Минеева, М. Голубин, О. Галаничева, Н. Мухин, М. Морина, О. Жибуртович, М. Мордвинова, О. Волковская

Обсуждение проекта сосредоточилось вокруг вопросов деликатности и аутентичности реконструкции. По словам Сергея Чобана, если речь о восстановлении, то строить необходимо только из аутентичных, то есть аналогичных историческим, материалов; а современные пандусы, понижение уровня земли и т.п., неуместны. «В этом случае нужно строить так, как строили в XVIII веке, не должно быть ни одной видимой современной детали», – уверен Сергей Чобан. Андрею Гнездилову современное решение входной части, напротив, показалось остроумным и деликатным. Ханс Штимманн обратил внимание собравшихся на то, что речь идет о новой, присоединенной к парку территории, на которой вполне закономерно появляются новые постройки. Делать пандус внутри конного двора, по мнению Штимманна, не вполне оправданно, а вот оставить на границе с улицей какой-нибудь знак современной архитектуры, напоминающий, что реставрация происходила в XXI веке, имеет смысл.
«Моспроект-2» им. М.В. Посохина, авторы – М. Посохин, С. Повышкин, Д. Минеева, М. Голубин, О. Галаничева, Н. Мухин, М. Морина, О. Жибуртович, М. Мордвинова, О. Волковская
«Моспроект-2» им. М.В. Посохина, авторы – М. Посохин, С. Повышкин, Д. Минеева, М. Голубин, О. Галаничева, Н. Мухин, М. Морина, О. Жибуртович, М. Мордвинова, О. Волковская

Проект активно поддержали музейные сотрудники, напомнив, что речь идет о сохранении подлинного до каждой дверной ручки и половицы памятника, подобных которому практически не осталось в России и в мире.

Под занавес развернулась напряженная дискуссия между Рустамом Рахматуллиным и Александром Кибовским. Рахматуллин интересовался очередностью рассмотрения: почему проект показывают в первую очередь на архсовете и какую юридическую силу имеет в таком случае протокол архсовета. Ответом Кибовского было: мы хотим показать проект коллегам и узнать их мнение. «Этот проект рано или поздно попадет на согласование в ведомство, начальником которого я являюсь, – сказал Александр Кибовский, – И мне хотелось бы знать все мнения компетентных людей, прежде чем запустить столь серьезный и затратный проект».