Размещено на портале Архи.ру (www.archi.ru)

04.03.2013

Геометрия комфорта

Алла Павликова
Объект:
Omega House
Адрес:
Россия, Москва.
Архитектор:
Роман Леонидов
Мастерская:
АБ Романа Леонидова
Авторский коллектив:
Авторы проекта дома: Роман Леонидов, Россия, г. Москва (Архитектурное бюро Романа Леонидова), Елена Волгина, Россия, г. Москва (Архитектурное бюро «Шаболовка»)
Автор проекта интерьера: Елена Волгина, Россия, г. Москва (Архитектурное бюро «Шаболовка»)

В Подмосковье идет строительство загородного дома по проекту мастерской Романа Леонидова, в основу которого положен принцип единения с природой.

Omega House © Архитектурное бюро Романа Леонидова
Omega House © Архитектурное бюро Романа Леонидова
Над проектом этого загородного жилого дома мастерская Романа Леонидова начала работать в середине 2011 года, и сейчас строительство уже входит в свою завершающую стадию. Дом возводится на востоке Московской области, на участке, практически свободном от застройки. Вокруг дома, куда ни кинь взгляд, – густой лиственный лес да зеленые лужайки. Техническое задание диктовало архитекторам расположить довольно внушительный объем на квадратном участке площадью 0,35 га таким образом, чтобы оставить пространство для фруктового сада и занятий спортом. И поскольку сам дом в плане получил форму вытянутого прямоугольника, авторы проекта вписали его в квадрат точно по одной из сторон. Благодаря подобному смещению относительно центральной оси за домом и появилось обширное пространство для спорта и отдыха, где сад, зона барбекю и детский городок соседствуют с площадками для игр в сквош, стритбол и настольный теннис. Фактически увлечение заказчика спортом и стало отправной точкой проекта – оно нашло отражение и в активности архитектурного образа, и в рациональности внутренней планировки, и в логике дворовых территорий.

Вообще этот дом с первых увиденных рендеров мгновенно опознается как леонидовский: экспрессивные разнонаправленные дуги кровель, огромные террасы, четкое разделение на два крыла, соединенных центральным ядром с парадным входом. За счет террас эти «флигели» заметно выдаются вперед, словно фланкируя центральный двухэтажный объем, который Роман Леонидов практически полностью остекляет и накрывает покатой кровлей. Сдвоенные, обшитые деревом колонны поддерживают оголенный конструктивный скелет кровли и каменную плиту открытой террасы в уровне второго этажа.
Проект загородного жилого дома в Подмосковье. Общий вид
Проект загородного жилого дома в Подмосковье. Общий вид

Правый «флигель», вместивший в себя все спортивные функции, требующие закрытых помещений, – тренажерный зал, бассейн и парную, – вылетает вперед динамичным стеклянным объемом, плоская кровля которого служит большой террасой, от солнца и осадков защищенной длинным волнообразным козырьком. Слева композиция уравновешивается строгим навесом, условно принимающим на себя роль левого «флигеля». Под ним организована прогулочная зона, ведущая к центральному входу в дом, а сам навес превращен еще в одну террасу – на этот раз открытую. 

Вообще обилие террас и огромных открытых пространств в этом проекте поражает воображение. Фактически они окружают дом со всех сторон – практически из любой его части, будь то первый или второй этаж, можно попасть на одну из террас и почувствовать себя один на один с окружающей участок березовой рощей. Да и внутри здания, благодаря панорамному остеклению фасадов, ощущение единства с окружением не покидает ни на минуту, а границы дома раздвигаются почти до бесконечности.  
Omega House © Архитектурное бюро Романа Леонидова
Omega House © Архитектурное бюро Романа Леонидова

Архитектурный образ этого загородного дома строится на пересечении и взаимодействии простых геометрических фигур и плоскостей. Так, гигантская стена из натурального камня насквозь пробивает основной объем, разделяя его на две части и возвышаясь над кровлей. Ей вторит более низкая, но массивная каменная стена, которую архитектор делает несущей конструкцией правого крыла. Эти столь артикулированные вертикали разнообразят горизонтальную направленность террас и навесов.

Дом поделен на несколько частей не только визуально, но и функционально. Так, первый этаж поделено на территорию спорта и общественную зону, вместившую в себя кухню, кабинет, комнату отдыха, винотеку и бар, а также бильярдную и музыкальную комнату, из которой предусмотрен выход на задний двор. Связующим звеном между спортом и бытом становится двусветная гостиная, главным украшением которой архитектор делает каменный портал камина и стену-аквариум, разделяющую гостиную и кухню. На второй этаж из гостиной поднимается широкая лестница, ведущая на внутренний балкон, который, в свою очередь, служит буферной зоной между хозяйской и гостевыми спальнями.
Omega House © Архитектурное бюро Романа Леонидова
Omega House © Архитектурное бюро Романа Леонидова

Характерно, что в интерьере архитекторы используют те же материалы, что и в наружной отделке – дерево, камень и стекло. Еще больше связь внешнего облика с внутренним усиливают выведенные в интерьер деревянные конструкции кровли. Единение с природой подчеркнуто и сознательным отказом заказчиков от техники и электронных приборов. Здесь нет даже телевизора, ибо огонь в камине и лес за окном, по мнению хозяев, дают куда более интересную пищу для глаз и ума.
Omega House © Архитектурное бюро Романа Леонидова
Omega House © Архитектурное бюро Романа Леонидова
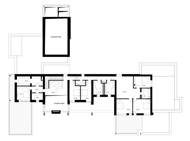
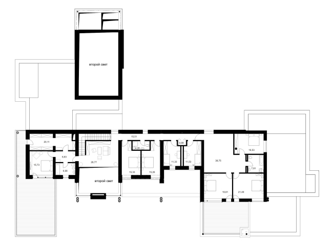
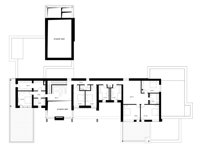
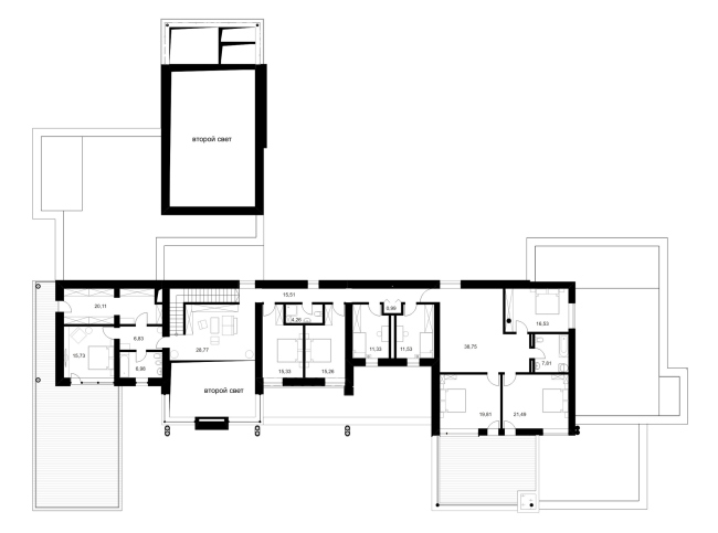
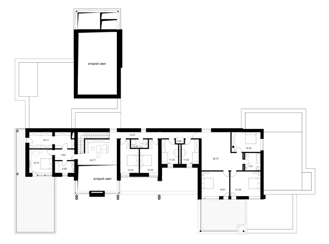
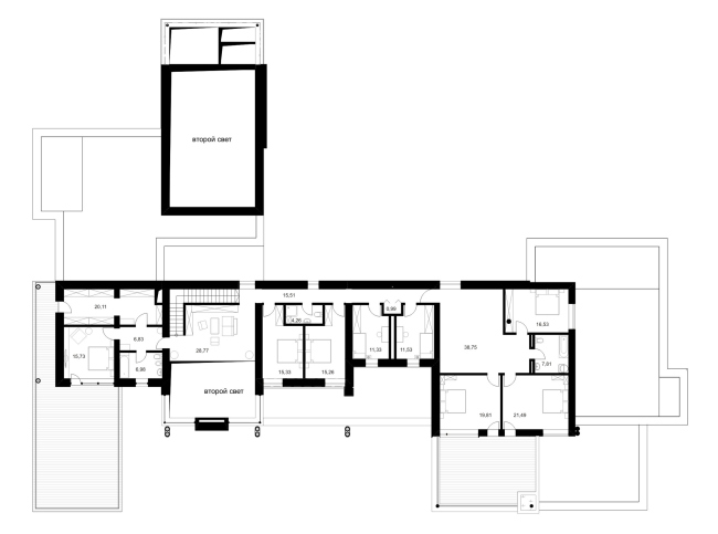
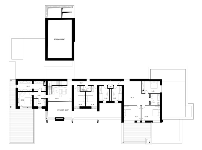
План первого этажа
План первого этажа
План второго этажа
План второго этажа