Размещено на портале Архи.ру (www.archi.ru)

29.01.2013

Воспоминание о замке

Анна Мартовицкая, Юлия Тарабарина
Объект:
Клубный дом Art View House на набережной Мойки
Адрес:
Россия, Санкт-Петербург. Наб. р. Мойки, д.102, лит. А
Мастерская:
Евгений Герасимов и партнеры
Авторский коллектив:
Архитекторы – Е.Л. Герасимов (рук. проекта), А.А. Юдин (ГАП), О.Я. Ольшанская (рук. группы), А.Г. Гвоздик, И.В. Припоров (ведущие архитекторы), А.С. Матияш, М.Р. Губайдуллина, Н.Е. Шабалин, А.С. Котов
Конструкторы – М.Я. Резниченко (гл. констр.), Д.А. Астапчик (зам. гл. констр), Е.А. Пантелеева (рук. группы), С.П. Ненашев, Е.Н. Пестова, Т.Р. Мустафина, А.С. Денисов
Генплан – Е.Н. Кузнецова, А.С. Титова
Скульптор – В.А. Маначинский

На набережной Мойки, прямо напротив Новой Голландии, мастерская «Евгений Герасимов и партнеры» проектирует элитный жилой дом. Когда-то здесь располагался Литовский замок, и в архитектуре нового комплекса авторы подчеркнули преемственность с его утраченным зданием.

Проект. Клубный дом Art View House на набережной Мойки
Проект. Клубный дом Art View House на набережной Мойки
© Евгений Герасимов и партнеры
Литовский замок, построенный в конце XVIII века на пересечении Мойки и Крюкова канала, сначала служил для размещения Кавалергардского полка, а затем стал городской тюрьмой для уголовных преступников. Оригинальное в плане здание – неправильный 5-угольник с круглыми башнями на углах – было возведено по проекту архитектора И.Е. Старова, известного мастера классицизма. Под тюрьму его перестраивал не менее знаменитый  И.И. Шарлемань, который значительно изменил внутреннюю планировку замка, но сохранил его внешний облик. Возможно, оно бы и дошло до наших дней, если бы не Февральская революция – рабочие освободили заключенных, а сам замок сожгли.
Литовский замок. Источник изображения: dic.academic.ru
Литовский замок. Источник изображения: dic.academic.ru

И лишь в 1930-е годы на этом месте были возведены жилые дома, а потом и детский сад – трехэтажный модернистский «кубик», заметно выбивавшийся из общего ритма застройки набережной. В 2007-м году это здание было приватизировано небезызвестной «Охта групп», у которой на него были крайне амбициозные планы – к разработке проекта реконструкции приглашался сам Эрик ван Эгераат. Но кризис поумерил пыл инвесторов, детсад в итоге не снесли, а лишь минимально реконструировали, превратив в хостел «Graffiti». В соответствии с названием его фасады украшены яркими геометрическими композициями в стиле Пита Мондриана. В таком виде здание даже успело стать достопримечательностью, хотя хостел изначально задумывался как мера временная. Разработка нового проекта была поручена коллективу Евгения Герасимова.
Хостел «Графитти». Фотография: © Репеен Техвеен, источник panoramio.com
Хостел «Графитти». Фотография: © Репеен Техвеен, источник panoramio.com

Яркий «кубик», несмотря на всю свою популярность, были признан КГИОП диссонирующим элементом городской среды, и Евгений Герасимов с этим определением согласен. Все дело в расположении участка – он замыкает перспективу Мойки со стороны Большой Морской улицы и хорошо просматривается с ближних и дальних точек обеих набережных. И хотя здание хостела по-своему «держит» панораму, совершенно очевидно, что оно не вписывается в свое окружение – визуально задавленное более высокой крышей стоящего за ним дома, оно нарушает масштаб и фасадный ритм застройки набережной. «Мы ни минуты не сомневались в том, что оптимальным градостроительным решением для этого места станет объект, способный регенерировать историко-градостроительную среду, – говорит Евгений Герасимов. – Иными словами, с помощью нового здания мы пытались восстановить планировочную и объемно-пространственную структуру квартала, в частности, вернуть исконный периметр и замкнуть линию застройки со стороны Крюкова канала».

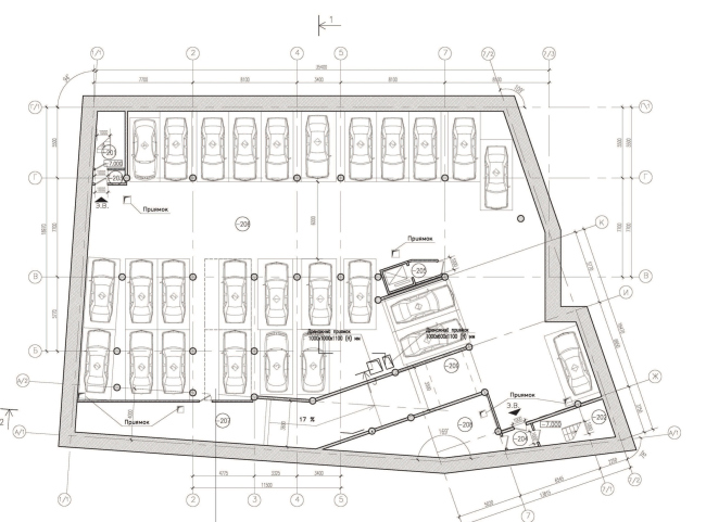
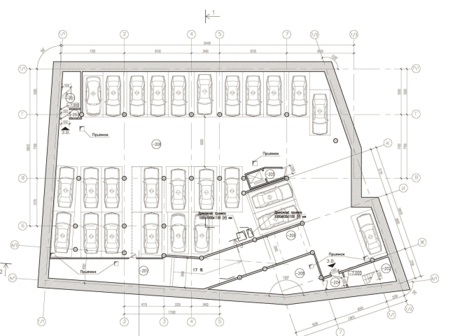
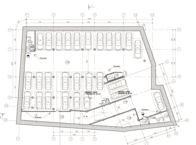
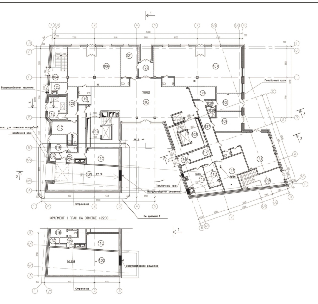
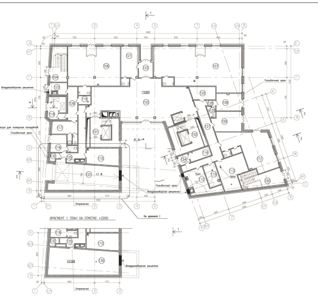
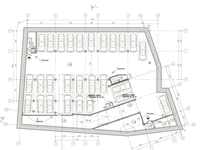
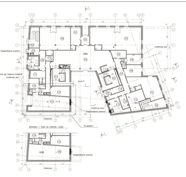
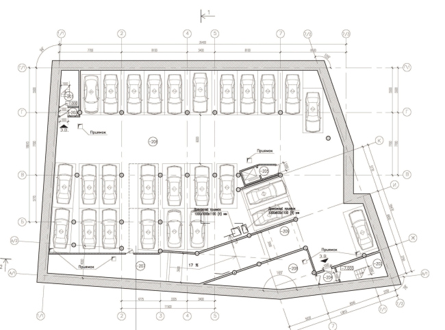
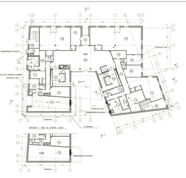
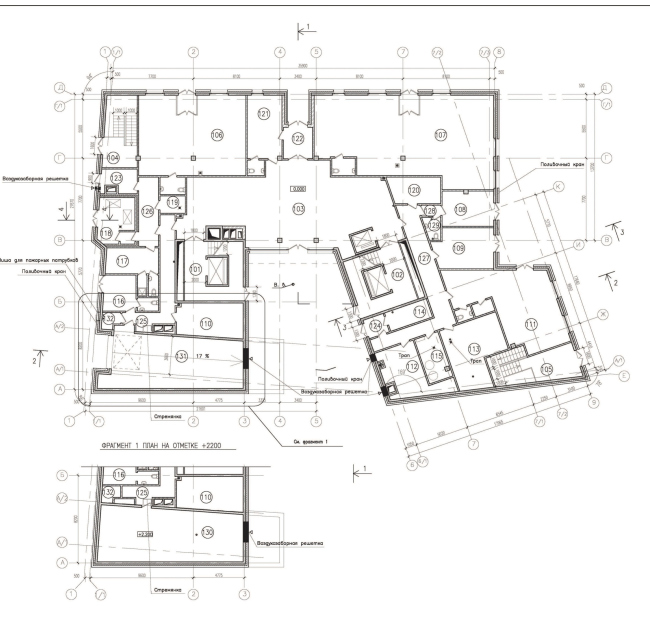
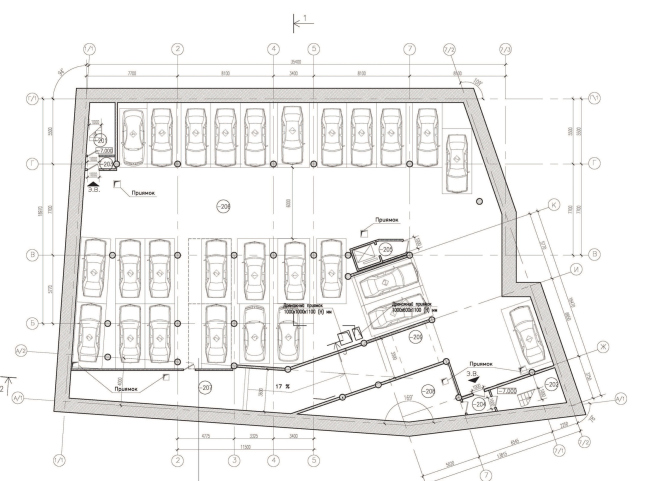
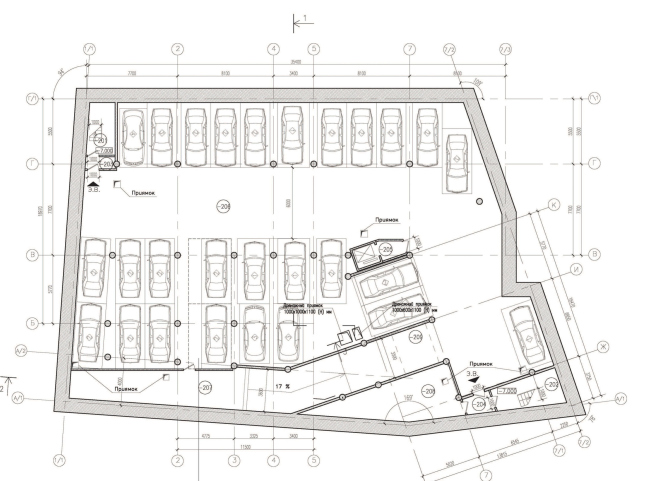
Строя жилой дом на месте, где когда-то стоял Литовский замок, архитекторы практически позаимствовали план последнего. Подземная часть нового здания, занятая паркингом, – это именно пятиугольник, позволивший максимально эффективно освоить площадь, выделенную под застройку, а надземный объем в плане представляет собой букву R, между палочками которой вписан внутренний двор. Как не сложно догадаться, последний разместился на кровле подземной стоянки.
Клубный дом Art View House на набережной Мойки
Клубный дом Art View House на набережной Мойки
© Евгений Герасимов и партнеры

Встраивая дом в панораму Мойки, архитекторы стремились сделать его плотью от плоти застройки набережной, которая в основном относится к XIX веку. Отсюда и пропорции, и масштабность проектируемого здания – двухсекционное и шестиэтажное, оно обладает целым рядом элементов и приемов, роднящих его с ближайшими соседями. Так, главный фасад имеет симметричное решение с выделенной центральной частью – нишей главного входа, фланкированной двумя большими овальными окнами. Первый этаж облицован объемным каменным рустом, остальные – более деликатным по фактуре натуральным камнем, оттенок которого варьируется от темно-бежевого до почти кремового.
Проект. Клубный дом Art View House на набережной Мойки
Проект. Клубный дом Art View House на набережной Мойки
© Евгений Герасимов и партнеры

Авторы определенно вдохновлялись петербургской неоклассикой 1910-х годов: характерный аттик-фронтон, вписанный в балюстраду над кровлей, брутальная шуба руста первого этажа, пилястры, вытянутые на высоту трех этажей, не оставляют в этом сомнений. Хотя выбор легкого ионического ордера, каннелюры на пилястрах и в целом насыщенный, но суховатый декор отсылают нас к более ранней архитектуре историзма, а фланкирующие вход овальные окна могли бы, конечно, встретиться и в неоклассическом здании, но более привычны на фасадах домов, построенных в духе северного модерна.
Проект. Клубный дом Art View House на набережной Мойки
Проект. Клубный дом Art View House на набережной Мойки
© Евгений Герасимов и партнеры

Но все же главным источником для архитекторов – что ощущается достаточно ясно, – остается Литовский замок. Он был отчетливо ампирным сооружением, на углах которого, отчасти утопая в массиве традиционных для позднего классицизма двухэтажных корпусов, стояли крупные, широкие и приземистые круглые башни. Отдавая должное предшественнику, архитекторы тоже подвесили на углах главного фасада круглые башни, впрочем, их пропорции намного более вертикальны, изящны. Башням вторят два фланкирующих вход трехгранных эркера – все вместе делает выходящий на набережную главный фасад дома неожиданно-пластичным, лепным и объемным, а издали напоминает замок – не тот, лаконичный и приземистый, Литовский, а какой-нибудь замок из венгерского XIX века, романтический и почти игрушечный.

Еще один мотив Литовского замка – крупный, высокий, но схематичный триглифный фриз, который венчает основную часть тела здания. Очень похожий фриз украшал замок Старова-Шарлеманя, и в данном случае мотив выглядит определенно цитатой. Неоклассика подобных элементов не использовала. Впрочем, триглифный фриз также обнаруживается на соседнем ампирном здании – и фриз с фасадов Евгения Герасимова визуально продолжает его горизонталь, стремясь, как мы уже говорили, как можно органичнее вписаться в историческую застройку.

И наконец, аттик-фронтон, который мы раньше опознали как неоклассический, можно понять как напоминание о другом фронтоне, венчавшем входной корпус Литовского замка. Любопытно, что для архитекторов-неоклассиков форма аттика с треугольным верхом была отсылкой к ампиру. В данном случае две темы: ампирного прототипа и неоклассической стилистики – вполне ненавязчиво сливаются в одну, давая волю искусствоведам-интерпретаторам и (что, вероятно, важнее) – многосоставное контекстуальное обоснование проекту нового здания.

Итак, в новом проекте Евгения Герасимова обнаруживается множество исторических аллюзий: часть из них служит напоминанием о сожженном во время революции Литовском замке, часть – помогает вписать дом в строй набережной, а также (что немаловажно) обозначить его принадлежность к категории элитного жилья.

Но в его архитектуре можно обнаружить и немало современного. В частности, одна из характерных  особенностей современного историзма – многосоставность цитат, возможность при ближайшем рассмотрении обнаружить признаки разных стилей (в данном случае ампира, модерна и неоклассики). Кроме того на современность указывают широкие окна, а также отсутствие у угловых башен характерной консоли-поддержки, своего рода «второго подбородка», и венчающей башенки-шатра или граненого купола, которые в конце XIX – начале XX века были практически обязательны.

Так как башни ничем не поддержаны и ничем не увенчаны, то ничем не поддержанная тема вертикали слабеет и здание начинает восприниматься как состоящее из горизонтальных слоев – цокольного, основного и двух верхних, полегче и попроще, напоминающих надстройки, которые перед войной часто сооружались над доходными домами. Отсюда следуют две вещи. Во-первых, в этом здании меньше тектоники, чем было в его исторических прототипах, но в нем, несмотря на весь консерватизм его фасадов, ощущается вполне модернистское тяготение к горизонтали. Две темы, классическая тектоническая и модернистская «ленточная», переплетаются в довольно-таки причудливом сочетании – что делает здание узнаваемо-современным, принадлежащем нашему времени.

Во-вторых, отступающие от края верхние этажи, в данном случае похожие на поздние надстройки над историческим зданием, задают тему имитации нескольких жизненных циклов здания – когда совершенно новый дом делает вид, что он несколько раз перестроен. Что тоже можно считать «приметой времени». И наконец, ступенчатый силуэт, созданный отступающим в глубину шестым этажом – самая узнаваемая черта современного дома, построенного в историческом городе.

К слову, мансардный этаж, хотя и скрывается от прохожих за карнизом, при взгляде издали сослужит хорошую службу: за новым домом, благодаря его высоте, словно за ширмой, исчезнет советская застройка квартала.
Проект. Клубный дом Art View House на набережной Мойки
Проект. Клубный дом Art View House на набережной Мойки
© Евгений Герасимов и партнеры
Проект. Клубный дом Art View House на набережной Мойки
Проект. Клубный дом Art View House на набережной Мойки
© Евгений Герасимов и партнеры
Клубный дом Art View House на набережной Мойки
Клубный дом Art View House на набережной Мойки
© Евгений Герасимов и партнеры