Размещено на портале Архи.ру (www.archi.ru)

25.10.2007

Единство и борьба

Юлия Тарабарина
Объект:
Деловой центр «Красная Роза», ул. Тимура Фрунзе, д. 11. Корпус № 8
Адрес:
Россия, Москва. ул. Тимура Фрунзе, д. 11
Архитектор:
Сергей Киселев
Мастерская:
АМ Сергей Киселев и Партнеры
Авторский коллектив:
Сергей Киселев, Валерий Швецов, Сергей Заянчковский, Антон Литовский
при участии: Евгения Анваера, Макса Коберта, Ирины Плотицыной
инженеры: Игорь Шварцман, Константин Спиридонов

Архитектура самого крупного из новых корпусов «Красной Розы» - это пластический этюд на тему взаимодействия старого и нового. Местами они мирно соседствуют, а где-то фасад превращается в батальную сцену

Ситуационный план
Ситуационный план

Реконструкция территории фабрики «Красная Роза» - один из ранних и самых известных в Москве проектов такого рода. Можно сказать, что этот проект, стартовавший еще в конце 1990-х – один из тех, что стоят у истоков набирающей сейчас все большую силу моды на превращение промзон в современные офисные (реже жилые) пространства. В 2003-2004 годах компания «Сергей Киселев и партнеры» разработала градостроительную концепцию реконструкции территории «Красной Розы», а затем – спроектировала два самых внушительных офисных здания класса «А» для этой территории. Об одном из них, «шедовом» корпусе №1, мы рассказывали недавно. Второй, под номером 8, расположен в противоположной, юго-восточной, части территории.

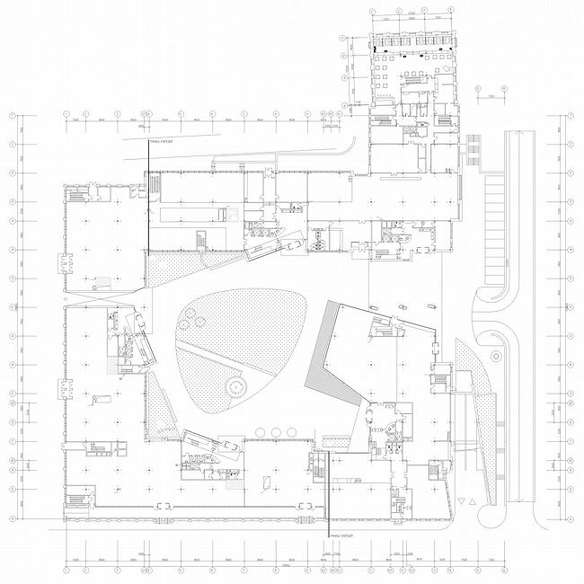
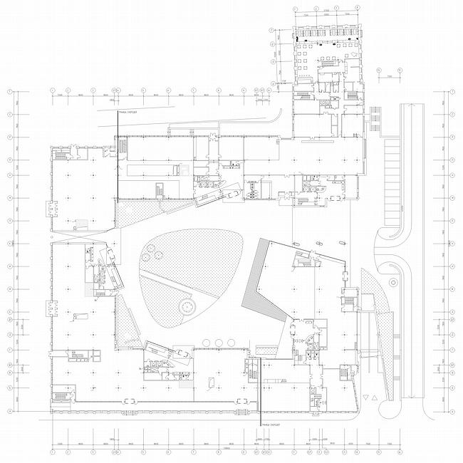
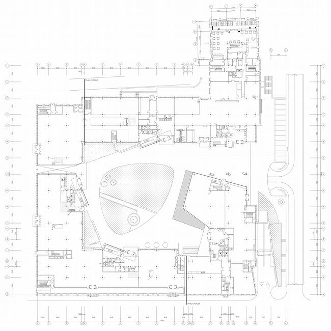
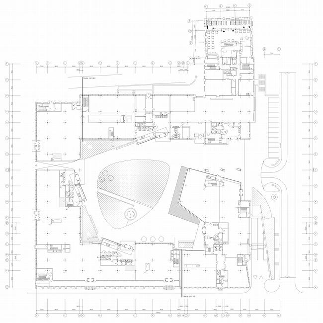
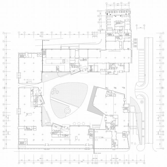
Корпус 8, строительство которого начато весной 2007 года, представляет из себя большой квадрат с внутренним двором. Этот корпус, самый большой в квартале (общая площадь более 61 тыс. кв. метров), объединит несколько восстановленных по чертежам фасадов, одно старое здание и современное стекло основного объема.

Сохраняемое здание примыкает к корпусу сбоку и выходит главным фасадом на улицу Тимура Фрунзе. Оно, по словам архитекторов, обошлось заказчикам дороже всего – маленький затратный бриллиант среди «полезных площадей». Вероятно, его и продадут подороже, как эксклюзив – целиком, для одного большого представительства. Правда, сохранятся только три фасадные стенки, но они будут не бетонные, а настоящие, из старого кирпича. Для того, чтобы стены не упали, потребовалось укрепление фундаментов, которое и обошлось особенно дорого.
 
Вдоль противоположной улицы Льва Толстого выстроены три фасада, подлежащие разборке с последующей реконструкцией по обмерам (они попадают в «сферу влияния» памятника – музея-усадьбы писателя). Это длинный кирпичный корпус, и два небольших домика, покрытых желтоватой штукатуркой. Для воссоздаваемой облицовки планируется использовать немецкий кирпич ручной формовки, напоминающий материал XIX века. В нижней части красного фасада вместо бывших окон устроят отрытую галерею, увеличив с ее помощью тротуар.

Третий фасад корпуса хочется назвать переулочным: вдоль него возникнет проход, которого в фабричные времена не было. В северной части этот фасад начинается сохраненным кирпичным зданием, в южной – заканчивается реконструируемым штукатурным. Между ними – зримо воплощенное взаимодействие двух начал современной архитектуры: технологичного структурного стекла и контекстуальных поисков, которые здесь более чем оправданы и неизбежны из-за присутствия исторической «рамы» с двух сторон. Архитектурные формы здесь складываются в подобие абстрактной скульптуры – это прямо-таки батальное полотно, изображающее, как «историзм» и «модернизм» борются между собой. Фланкирующие композицию «старые» дома засылают в среднюю часть своих «эмиссаров» - красно-кирпичные пластины, которые вступают в сражение с большим стеклянным объемом, возрастающим выше, с небольшим отступом от линии нового переулка. «Линия фронта» ломается, изгибается, а посередине – порывается широкой аркой проезда, плоскости красного кирпича местами покрыты выступающими стеклянными эркерами – представителями «противника», но позиций не сдают – кажется, что в ответ на это в модернистских плоскостях возникают асимметричные «прорывы» - углубленные лоджии. Все динамично, ступенчато, и будет реализовано из дорогого структурного стекла, которое позволяет создавать большие и цельные витражные плоскости.

«Динамический потенциал», ощутимый со стороны переулка, несколько иначе воздействует на внутренний двор. Его большое квадратное пространство выглядит лагерем сил модернизма в окружении реставраций и реконструкций, расположенных по периметру здания. Здесь, во дворе, много стекла в гигантских бетонных рамах, переплеты разных форм, асимметричные вставки. Объемы лестничных клеток, приближенные к трем основным фасадам дворового каре, развернуты на 20 градусов относительно стенных плоскостей; на четвертой стене это движение поддержано похожим выступом большого зала – таким образом, пространство двора перестает быть однозначно квадратным, а закручивается по часовой стрелке. А если посмотреть на план здания, становится очевидным, что контур дворового пространства составлен из двух квадратов, повернутых под углом и наложенных друг на друга – одному подчиняются основные объемы и стены, а другому – лестницы.

Корпус №8. Общий вид
Корпус №8. Общий вид
Корпус №8. Вид с ул. Тимура Фрунзе
Корпус №8. Вид с ул. Тимура Фрунзе
Корпус №8. Южный фасад
Корпус №8. Южный фасад
Корпус №8. Вид с ул. Льва Толстого
Корпус №8. Вид с ул. Льва Толстого
Корпус №8. Главный вход
Корпус №8. Главный вход
Деловой центр «Морозов». Корпус №8. Вид внутреннего двора. Проект © СКиП
Деловой центр «Морозов». Корпус №8. Вид внутреннего двора. Проект © СКиП
Корпус №8. План 1 этажа
Корпус №8. План 1 этажа