|
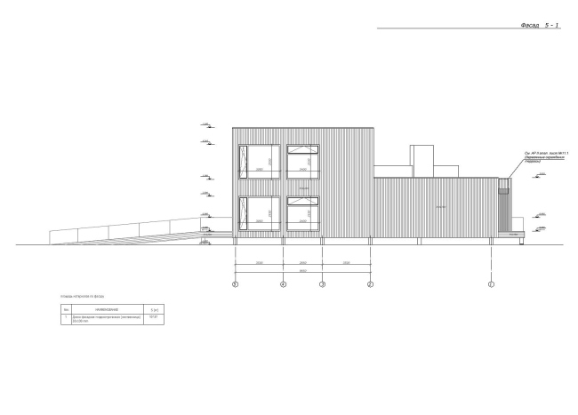
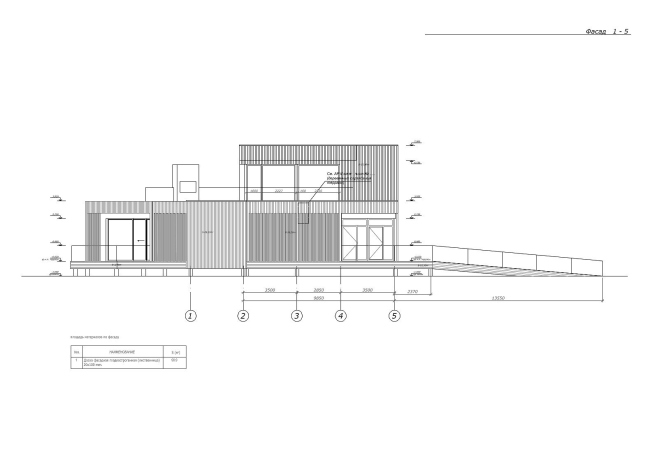
Для туристической базы отдыха «Лазурный берег», что в Истринском районе Подмосковья, Архитектурная мастерская Тотана Кузембаева спроектировала гостевой коттедж, фасады которого решены как многоцветные деревянные пазлы.

Изначально мастерской был заказан проект всей базы отдыха, и команда Тотана Кузембаева разработала и генеральный план «Лазурного берега», и эскизные проекты общественных сооружений, и предложения по благоустройству причала и набережной с плавающим бассейном. В рамках этой масштабной работы гостевые домики, предназначенные для отдыхающих, были едва ли не самым малозаметным этапом. Архитекторы успели придумать для будущей базы даже такие необычные объемы, как летний подвесной чайный домик и каплеобразная в плане терраса-танцпол, когда вдруг выяснилось, что заказчик намерен ограничиться строительством только коттеджей. Так изначально второстепенный объект стал главным и единственным, попутно выявив, насколько тщательно и нестандартно подходит мастерская Тотана Кузембаева к проектированию каждого объема.

Требования, которые изначально предъявлялись к гостевому домику, просты и более чем предсказуемы – при максимальной экономичности сооружения он должен был обладать незаурядной, запоминающейся внешностью и удобной планировкой, в общем, стать тем местом, где приятно отдыхать и куда хочется вернуться. При этом заказчик планировал использовать проект многократно, постепенно увеличивая количество домиков, поэтому Кузембаеву предстояло предложить некое универсальное архитектурное решение, которые бы только выиграло от возможного тиражирования. Сама эта задача по созданию некоего временного абстрактного жилья и подсказала архитектору образную идею для проекта: если один домик здесь – это часть целого, а целое при этом может складываться годами, то наиболее уместным Кузембаеву показалось сравнить гестхауз с элементом пазла. Эта метафора нашла отражение и в названии дома и в декоративном оформлении его глухой стены.
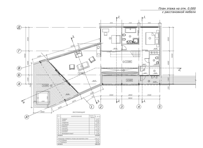
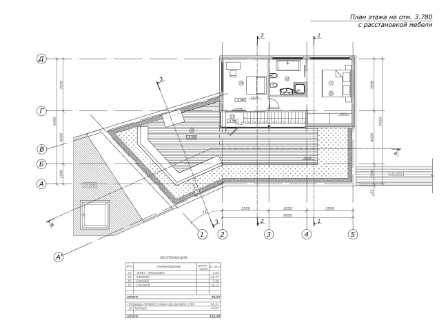
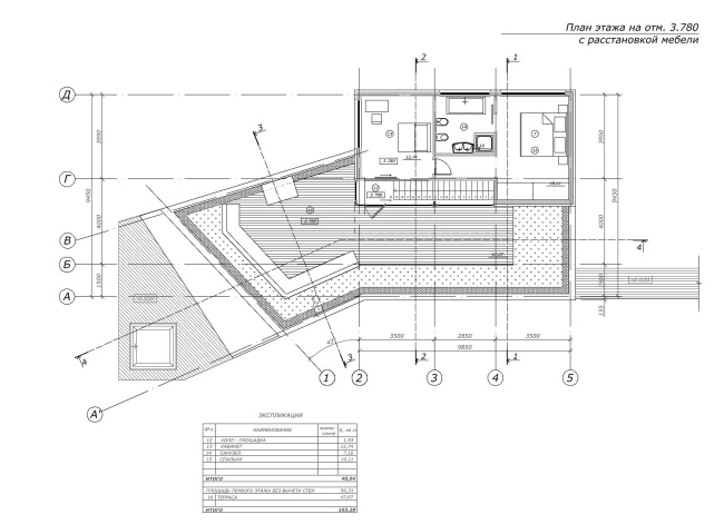
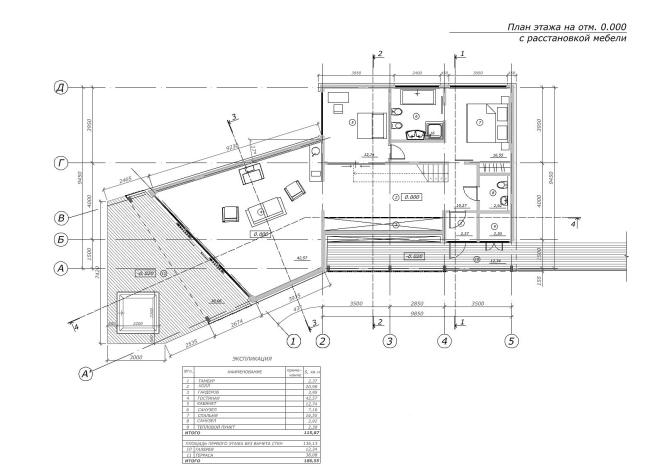
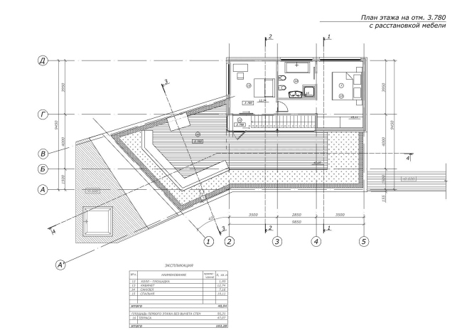
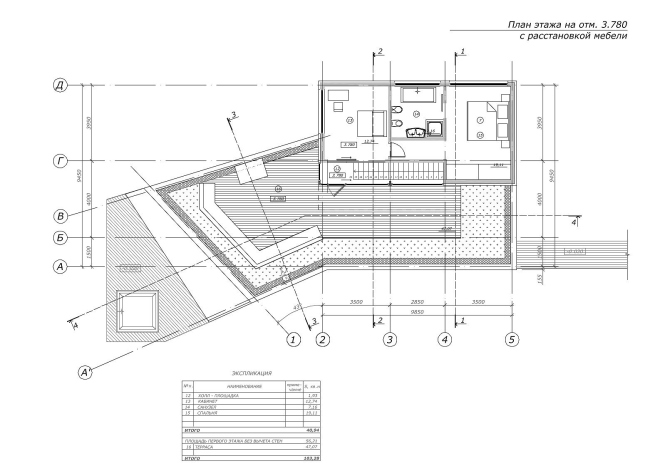
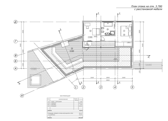
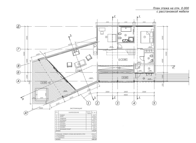
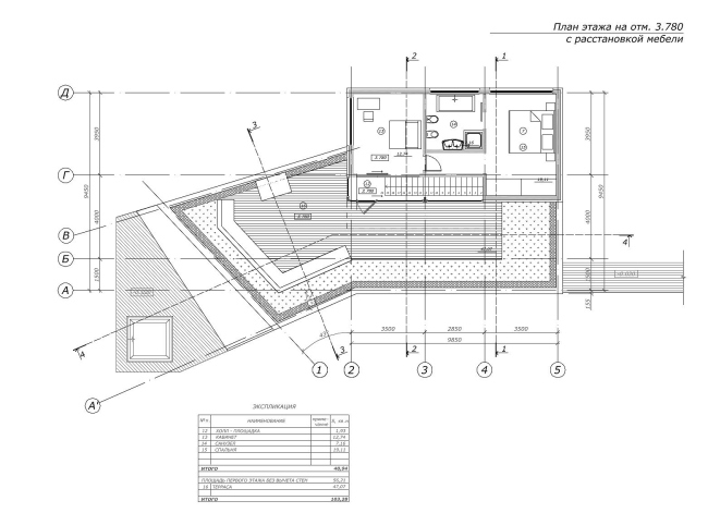
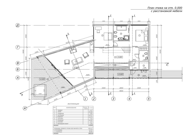
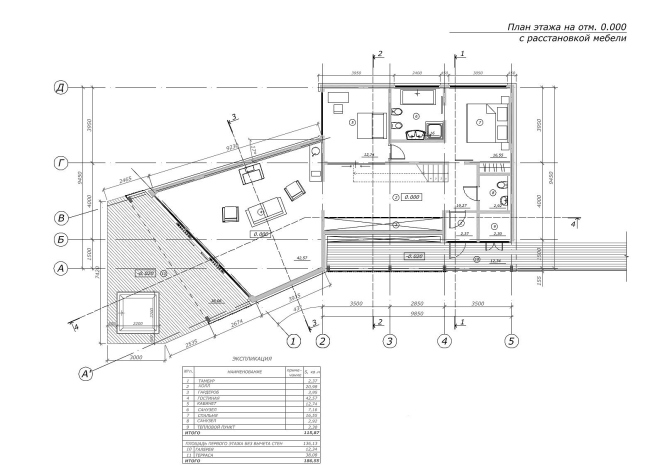
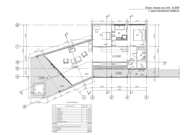
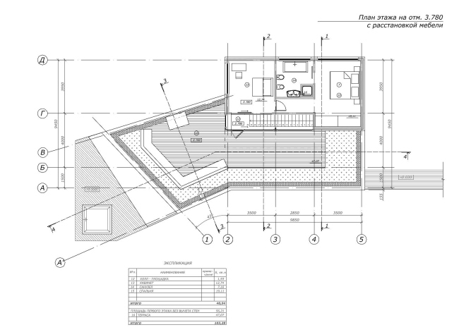
План дома вырос из его назначения: предельно лапидарная часть с приватными и техническими помещениями (спальни, санузлы, лестниц.ы и т.п.) дополняется свободно нарисованными зонами отдыха – как внутренними, так и расположенными на открытом воздухе. Эти зоны носят довольно разнообразный характер: помимо привычного пространства гостиной, объединенной с кухней и столовой, здесь есть открытые и закрытые террасы, протяженные галереи с пандусами, озелененные кровли, место для барбекю и даже ванная под открытым небом. Система этих пространств воплощает еще один важный для Кузембаева художественный замысел, который он сам называет «паспарту для леса». Иными словами, этот дом задуман как средство созерцания окружающего его векового леса. Вот почему во всех изолированных комнатах спроектированы огромные, лишенные переплетов оконные проемы, две противоположные стены гостиной в плане слегка расходятся, задавая направление для любования окружающим пейзажем, а открытые пространства дома так многочисленны – по мнению архитектора, если человек выехал на природу, не стоит отгораживаться от нее стенами.

Помещения скомпонованы таким образом, что постепенно «выводят» обитателя из внутреннего пространство во внешнее, через крытую террасу на открытую, из галереи на пологий пандус. Эту же идею помогают реализовать и приемы, которые фактически размывают границу между домом и лесом: фасад здания заходит в его интерьер, ограждения террас прозрачные, часть стен гостевой зоны решены как вертикальные жалюзи. Кроме того, в соответствии с изначальным проектом, сквозь крышу дома будут «прорастать» зеленые растения: пока озеленение кровли не реализовано, но благодаря современным изоляционным материалам это не представляет никакой трудности.Интерьеры дома, подтверждая идею о паспарту, отличаются предельной лаконичностью и ясностью. Главным их украшением служат массивные клееные балки, составляющие часть конструктивной схемы каркасного по своей структуре дома. Их ритм немного более частый, чем это необходимо для выполнения несущей функции, что сделано в декоративных целях – во внутренних пространствах возникает ощущение динамичности.
В решении дома есть и еще один прием, который решает одновременно и утилитарную и эстетическую задачи. Это дублирующие друг друга лестницы на второй этаж. Одна расположена во внутреннем пространстве около спален; другая на галерее, огражденной жалюзийной стеной и вторящей своими вертикалями ритму балок. Вдоль этой стены лестница ведет на открытую террасу второго этажа. Такой прием позволяет владельцам сдавать коттедж как целиком, так и поэтажно. Визуально лестницы связаны, и вместе с полупрозрачной стеной и проходом вдоль галереи они создают многослойное пространство, чуть запутанное и невероятно привлекательное. Кстати, «Дом-пазл» существует и в одноэтажном варианте. В этом случае наружная лестница ведет на эксплуатируемую кровлю, а внутренняя исчезает, что делает пространство проще, но увеличивает его. Как говорит сам Тотан Кузембаев: «Это город нуждается в красивых и представительных зданиях, а здесь, в лесу и на воде может существовать только очень простая, лаконичная архитектура».
|