Размещено на портале Архи.ру (www.archi.ru)

16.10.2012

Знак качества

Алла Павликова
Объект:
Дом "Ъ"
Адрес:
Россия,
Мастерская:
Архитектурная мастерская Тотана Кузембаева
Авторский коллектив:
Руководитель проекта: Тотан Кузембаев. Главный архитектор проекта: Александр Первенцев. Архитектор: Сергей Колчин. Конструктор: Сергей Пенский

Среди многочисленных объектов Тотана Кузембаева для курорта «Пирогово» есть один, чье название неизменно вызывает легкое замешательство. Речь о доме «Ъ», имя собственное которого произносится как «ер» и наводит на мысль о старорусских временах и постройках из нетесаных бревен.

Жилой дом, построенный на берегу Клязьминского водохранилища, на самом деле своим именем обязан отнюдь не русской старине, а вполне себе современной газете «КоммерсантЪ», для которой буква «Ъ» является неотъемлемой частью фирменного стиля. Дело в том, что заказчик этого дома имеет к газете самое непосредственное отношение, а поскольку в создании проекта он принимал активное участие, решение Тотана Кузембаева назвать результат совместного творчества буквой «Ъ» кажется более чем логичным.

Как вспоминает сам архитектор, заказчик и его супруга с первой встречи произвели на него впечатление «молодых и продвинутых ребят», которые хотели получить что-то вроде правительственной загородной дачи – дом в заповедном лесу, среди стройных сосен у кромки воды, в облике которого роскошь органично сочеталась бы с деревенской простотой. «Я организовал им небольшую экскурсию по поселку, – рассказывает Тотан Кузембаев, – И во время этой прогулки им больше всего понравился наш первый яхт-офис. Это, наверное, самый экономичный объект из всех, что мы делали, построенный к тому же в сжатые сроки. В нем мы применили горбыль, обрезки досок, которые на пилорамах обычно выбрасывают и даже не тратят средства на их утилизацию. В результате нам почти даром достался основной строительный материал, который к тому же очень стильно выглядит – объект как будто облицован рваным травертином». Фасады яхт-офиса настолько покорили заказчиков своей фактурой, натуральностью и простотой, что они попросили сделать их дом таким же.

Иными словами, еще даже приблизительно не представляя себе, каким в целом будет дом,  архитектор знал наверняка, что он будет построен из горбыля. Этот материал стал своего рода точкой отсчета и во многом предопределил лаконизм и брутальность проектируемого здания. Основные черты постройки прорисовывались постепенно – двухскатная кровля, сильно выступающая за линию основного объема, просторные веранды, открытые балконы и остекление в стиле ретро. Рука Кузембаева здесь видна сразу: взять хотя бы выпущенный наружу «скелет» кровли – строгий ритм ферм завораживает  сложностью и выверенностью инженерных решений.

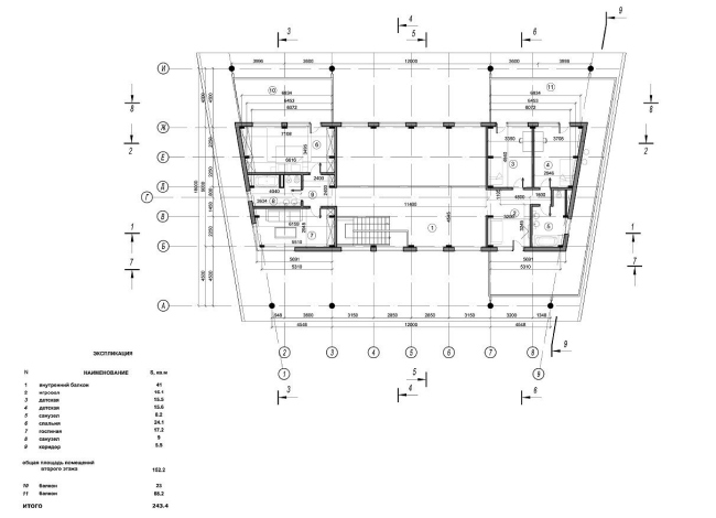
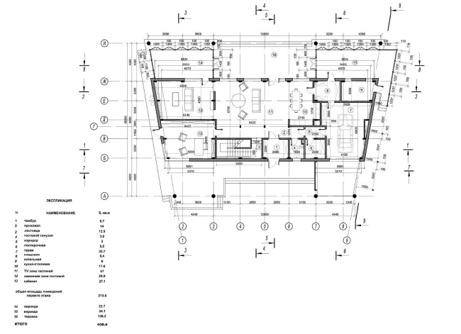
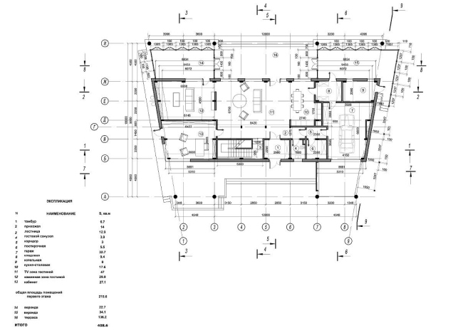
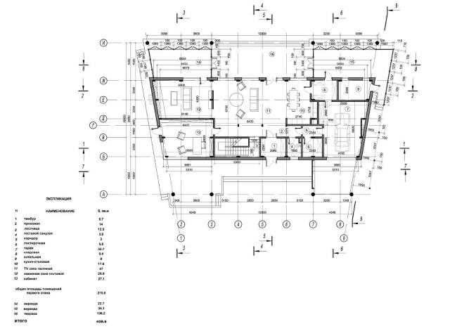
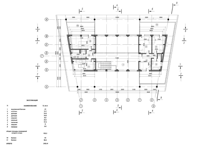
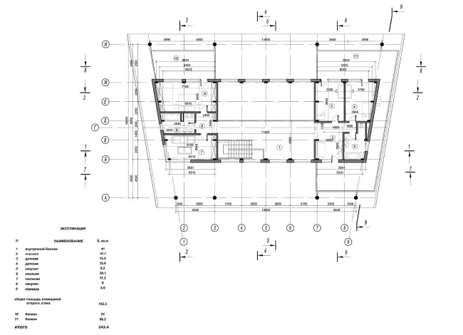
Главный фасад дома, в плане имеющего форму трапеции, обращен к воде. Он украшен двумя вместительными верандами, которые изначально проектировались холодными – как своего рода напоминание о традициях загородных дач первой половины XX века. Правда, впоследствии веранды все же были утеплены, но это не лишило их первоначального очарования. Выступающие объемы веранд послужили основанием для балконов в уровне второго этажа. Они прячутся в тени нависающей кровли, меж потемневших балок, и только невысокие ограждения из тонких реек отделяют их от живописного вида на водную гладь водохранилища.

Самым неожиданным в этом, казалось бы, вполне традиционном и в хорошем смысле старомодном здании стала как раз отделка фасадов из горбыля, нашитого то вдоль, то поперек и образующего рваную, неровно объемную поверхность. Невероятно харизматичны и колонны из грубо отесанных бревен, поддерживающие тяжелую конструкцию кровли – они добавляют дому брутальность, причем брутальность не изысканную, а нарочито простую, деревенскую, и тем самым заметно выделяют его среди традиционных загородных построек.

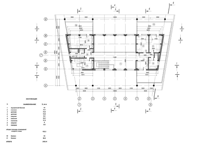
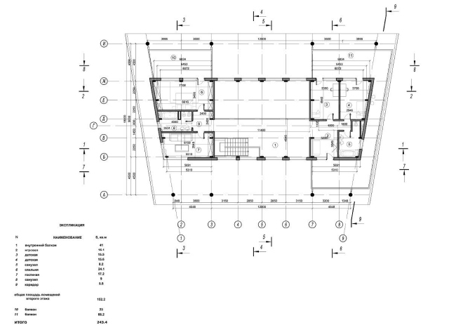
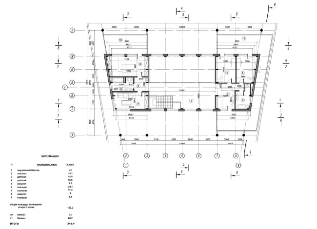
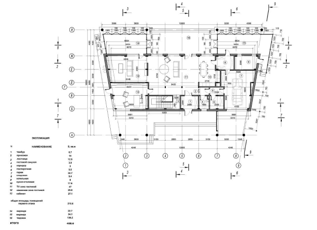
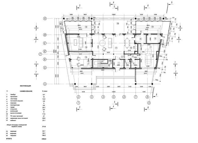
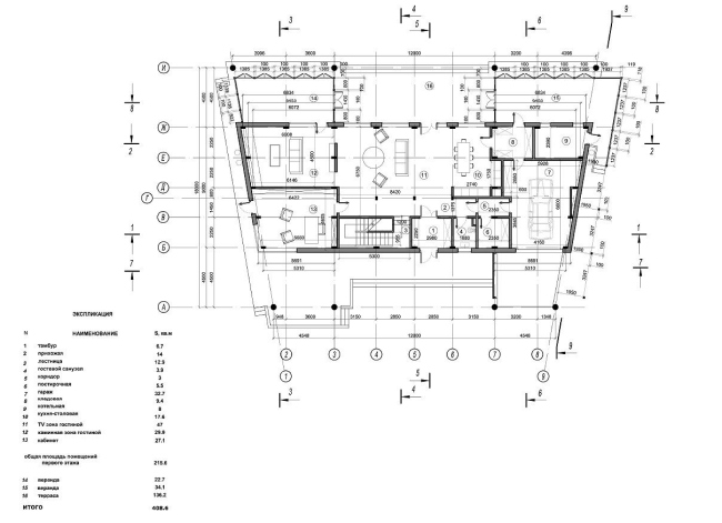
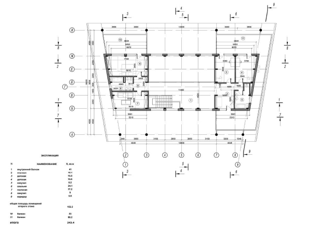
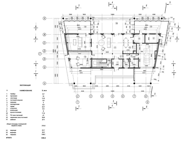
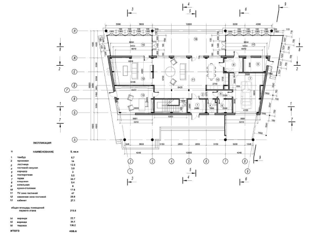
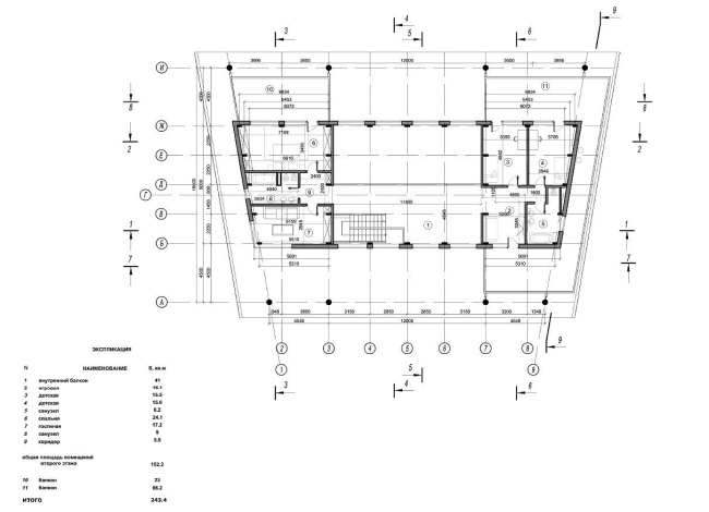
Ядром внутренней планировки дома стала двухсветная гостиная, неотъемлемой частью интерьера которой являются обнаженные конструкции кровли. Гостиная условно разбивает пространство дома на две части: в одной помещается каминная зона, а прямо за ней – рабочий кабинет, в другой – гараж, комната для персонала, котельная, кладовая и кухня-столовая. Обе части дома – восточная и западная – объединены внутренним балконом, пущенным над гостиной.

В одном из вариантов, предложенных Тотаном Кузембаевым, дом «Ъ» имел очень необычный задний фасад, похожий на гриб-лисичку: кровля подобно шляпке гриба плавной волной заворачивается на фасад и спускается ниже – до самой земли. Наверное, такое решение добавило бы проекту провокационной смелости, но заказчики в итоге решили остановиться на более простой классической версии – безоговорочно основательной как знак «Ъ».
Фото Ильи Иванова
Фото Ильи Иванова