Размещено на портале Архи.ру (www.archi.ru)

18.09.2012

Вдохновляясь Поднебесной

Алла Павликова
Объект:
Дом Макалун
Адрес:
Россия,
Мастерская:
Архитектурная мастерская Тотана Кузембаева
Авторский коллектив:
Руководитель проекта: Тотан Кузембаев Главный архитектор проекта: Александр Первенцев Архитекторы: Амина Хазгалеева, Ольга Косова, Павел Исаев, Сергей Пенский

В курортном поселке «Пирогово» близ Клязьминского водохранилища появился жилой дом с интригующим названием «Макалун». Его автор Тотан Кузембаев в очередной раз продемонстрировал виртуозное обращение с деревом, при этом неожиданно наделив свое новое творение чертами, присущими китайской архитектуре.

Дом «Макалун». Фото Ильи Иванова
Дом «Макалун». Фото Ильи Иванова
Свое необычное название этот загородный жилой дом в Пирогово получил с легкой руки Тотана Кузембаева, который, в свою очередь, позаимствовал его у заказчика. Тот однажды упомянул, что в переводе на китайский язык его фамилия звучит как «Макалун», где «Ма» – это лошадь, «Ка» – парус, а «Лун» – дракон. Архитектору так понравилась эта многозначность, что он тут же окрестил этим экзотическим именем свое новое творение. И это тем более актуально, если учесть, что проект во многом строится на современных интерпретациях приемов традиционной китайской архитектуры – таким образом Тотан Кузембаев отдал дань увлечению владельца дома культурой Поднебесной.

Курорт «Пирогово» давно не нуждается в отдельном представлении – и так понятно, что дом «Макалун» сразу попал в более чем достойную компанию произведений современной архитектуры. Участок, на котором Тотан Кузембаев должен был построить свой очередной деревянный объем, расположен недалеко от береговой линии водохранилища, на основной территории комплекса, рядом с дорогой, идущей через лесной массив. Соответственно, именно водоем и дорога стали отправными точками в поисках оптимального места для будущего дома. Кузембаев развернул его южным фасадом к водохранилищу, благодаря чему из дома открывается прекрасная панорама. При этом «Макалун» аккуратно вписан между деревьями и подступает почти вплотную к дороге: архитектор стремился максимально сохранить сосновый лес, занимающий большую часть участка, поэтому дом уступами спускается к дороге, обходя и сохраняя многочисленные мачты сосен.

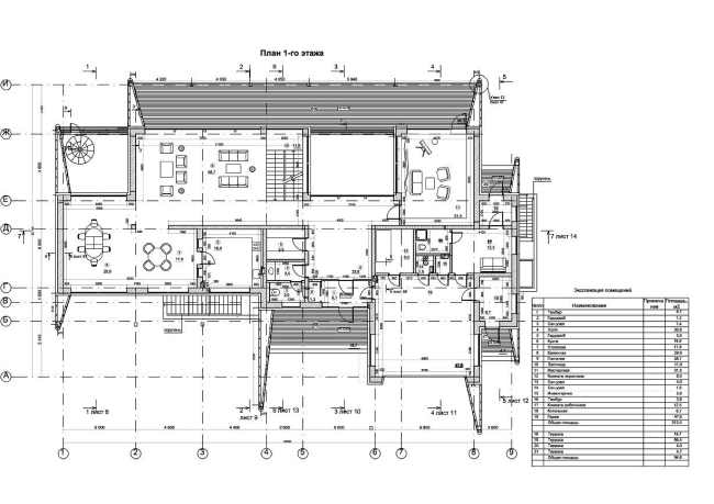
Архитектура двухэтажного дома общей площадью порядка 1200 кв.м выглядит простой и логичной – чистая форма основного объема, пологая двускатная кровля, просторные террасы и балконы с изящными деревянными ограждениями, панорамное остекление. Дьявол, как говорится, в деталях – в скрупулезно проработанных мелочах отделки, демонстрирующих высочайший уровень мастерства архитектора и невероятное разнообразие примененного дерева – материала, ставшего для Тотана Кузембаева брендовым. Так, вся наружная отделка дома, исключая стеклянные поверхности витражей, выполнена из шпунтованной доски красного дерева. Ширина и плотность расположения деревянных реек разнится, местами складываясь в легкую решетку, а местами переходя в глухую стену. Из дерева формируются и полупрозрачные ширмы, в ночное время подсвеченные множеством светильников. Кстати, сам этот элемент – ширма, – вполне китайский по духу и происхождению, был введен в архитектуру дома именно благодаря своей «национальности».

Южный фасад здания, обращенный к воде, предсказуемо более открытый. Ряд стройных рустованных колонн, по всей высоте опоясанных тонкими деревянными ободками, грациозно поддерживает навес второго этажа над широкой террасой. По цвету и толщине колонны почти идеально соотносятся со стволами сосен, вплотную подступающими к зданию. Бросив на дом мимолетный взгляд, не сразу отличишь рукотворные «стволы» от настоящих.


Обширное остекление южного и северного фасадов открывает дом одновременно на лес и на береговую линию водохранилища, проводя мягкую границу между зданием и природным окружением. Сам архитектор называет эти расположенные друг напротив друга витражи жабрами, благодаря которым дом наполняется воздухом и светом днем, а ночью сам превращается в источник освещения.

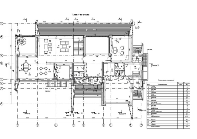
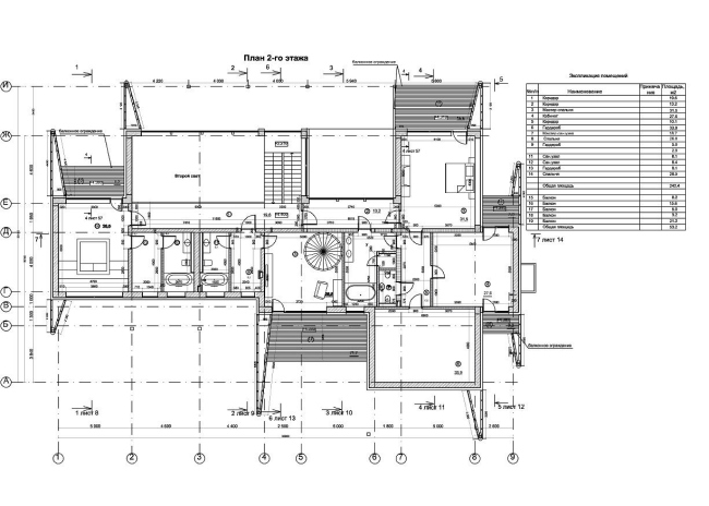
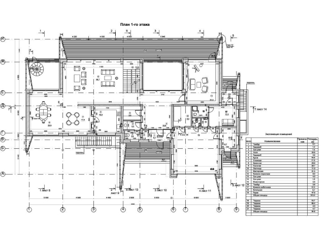
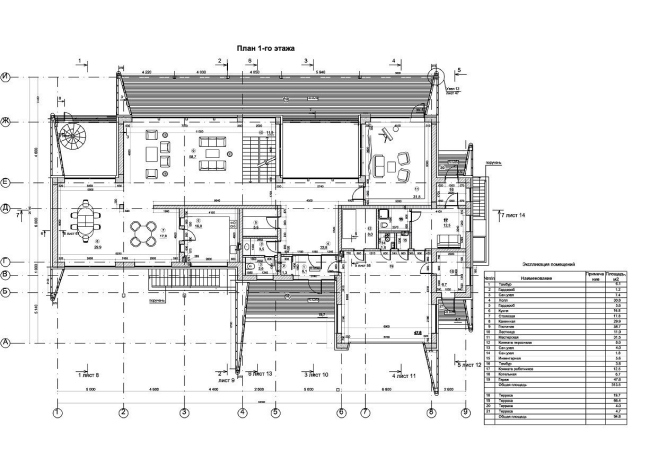
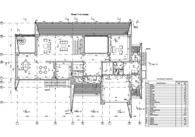
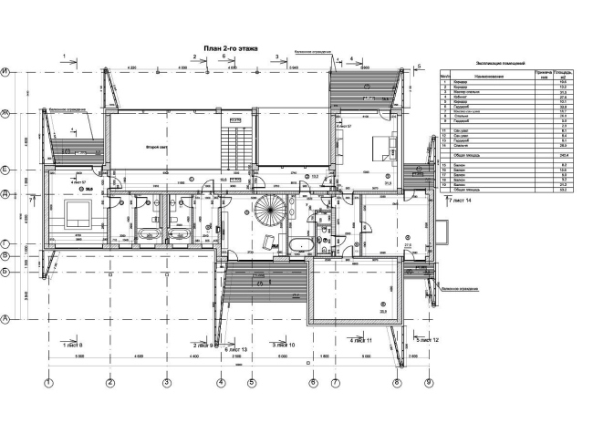
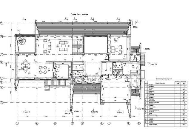
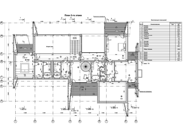
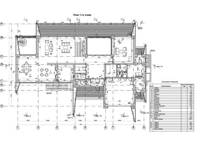
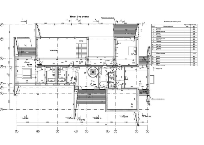
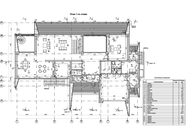
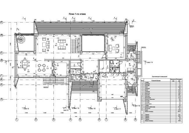
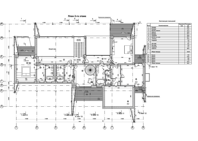
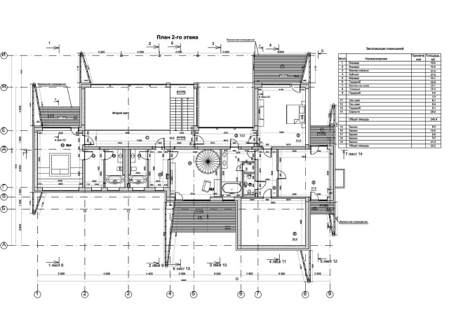
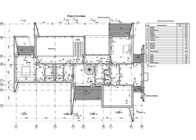
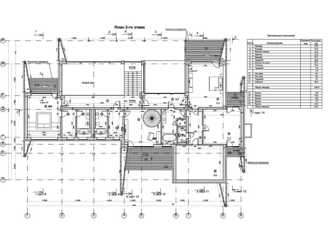
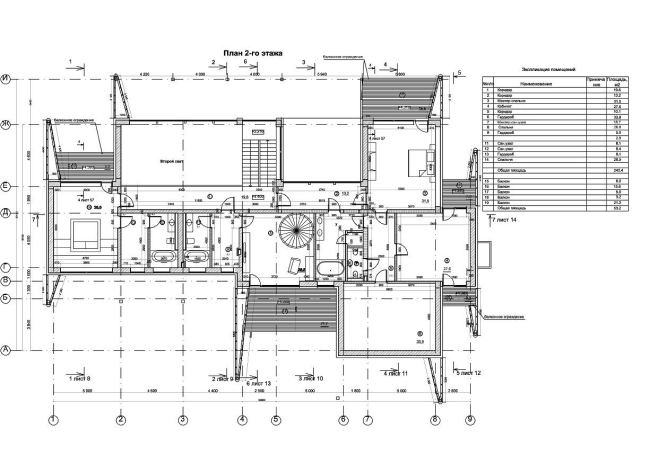
Планировка дома с двумя надземными и одним подземным этажом не выходит за рамки представлений о традиционном загородном жилище. В этаже, расположенном на уровне земли, сосредоточена общественная часть – гостиная, столовая и кухня, наверху разместились спальни и рабочий кабинет, подвальная часть превращена в зону досуга с бассейном, домашним кинотеатром и прочими сопутствующими развлечениями. Архитекторы мастерской Тотана Кузембаева освоили подземное пространство по просьбе заказчика, а два больших атриума помогли превратить подвал в полноценный жилой этаж.

Интерьеры дома заслуживают особого внимания. Чего стоит хотя бы камин, формирующий все пространство гостиной. В нем архитектор развивает основную тему экстерьера дома «Макалун», искусно сочетая дерево и стекло, которые изгибаются в причудливые волны. Волнообразная поверхность камина – это, по словам Тотана Кузембаева, еще один реверанс в сторону Китая: с одной стороны – плавные изгибы напоминают вершины величественных китайских гор, с другой – стеклянные просветы между дубовыми досками вкупе с эффектной подсветкой рождают ассоциации с небоскребами современного Шанхая или Пекина. Тут же, в гостиной, расположена легкая, ажурная лестница, ведущая на второй этаж. В ней, пусть и отдаленно, но тоже присутствуют традиционные китайские орнаменты.


Рассказывая о своем проекте, Тотан Кузембаев заметил, что заказчик мечтал не просто о месте жительства, но о доме, которым он смог бы гордиться. Без сомнений, у автора дома «Макалун» есть все основания считать, что ожидания клиента полностью оправдались.