Размещено на портале Архи.ру (www.archi.ru)

16.10.2007

Красная Роза

Юлия Тарабарина
Объект:
Бизнес-центр «Демидов». Деловой квартал «Красная Роза»
Адрес:
Россия, Москва. ул. Тимура Фрунзе, д. 11, комплекс 1
Архитектор:
Сергей Киселев
Мастерская:
АМ Сергей Киселев и Партнеры
Авторский коллектив:
Руководитель авторского коллектива: Сергей Киселев
ГАП: Валерий Швецов 
Сергей Заянчковский, Антон Литовский, Полина Илюшина
При участии: Ольги Галкиной
Инженеры: Игорь Шварцман, Константин Спиридонов, Евгений Кирюханцев

Реконструкция «Красной Розы» – это, вероятно, самый известный из московских проектов реконструкции старых фабрик. Он начался в 2003 году, а закончится в 2012-м. Вокруг него много восторгов и много споров. Мы попробовали разобраться в этой истории и понять, что будет сохранено, что восстановлено в прежних формах, а что – построено заново

Корпус № 8. Общий вид
Корпус № 8. Общий вид

Тема реорганизации территорий старых заводов московского центра сейчас – одна из самых звучных. А фабрика «Красная Роза» – это один из самых ранних, крупных и известных проектов такого рода. Ее выводом занялась еще в 1990-е гг. инвестиционная компания «Нерль», а в 2003 году архитектурная мастерская Сергея Киселева разработала градостроительную концепцию реорганизации территории, рассчитанную на девять лет – все работы должны быть завершены в 2012 году. Инвестором выступило ЗАО «Красная Роза 1875», а заказчиком – «СтройПроект».

Градостроительная концепция, завершенная и утвержденная в 2004 году, представляет из себя план превращения шести гектаров фабричной территории в новый деловой центр со множеством арендаторов и открытый городу – предполагается, что любой прохожий сможет пересечь ее пешком. В общей сложности комплекс будет включать 10 зданий – корпусов, разного размера и с разной судьбой.

В центре фабричного квартала сохранилось два памятника архитектуры, которые будут реставрированы по проектам Людмилы Барщ (ГИПРОНИИ РАН): первое – это дом усадьбы Всеволожских, на территории которой после 1875 была построена фабрика, Одноэтажный деревянный усадебный дом, переживший пожар 1812 года, в советское время был превращен в спортзал, а бревна его стен почти что сгнили. Сруб будет перебран по технологии реставрации деревянных зданий, старые изразцовые печи сохранят, а интерьер наполнят антикварной мебелью и сделают в нем дом приемов для важных гостей. Второй архитектурный памятник также расположен внутри квартала – это здание галереи для коллекции картин основателя шелковой мануфактуры Клода Жиро, построенное Романом Клейном, знаменитостью конца XIX века, с равным успехом подвизавшегося в деле проектирования музеев и фабричных зданий.

Кроме двух «официальных» памятников, «Красная Роза» владеет целым рядом фабричных зданий средней руки, скромных, но достаточно качественных представителей промышленной архитектуры конца XIX века. Сохранение части этих зданий вызвало некоторое время назад позитивную реакцию критиков – это был редкостный пример бережного сохранения домов, не имеющих статуса памятников чего бы то ни было. Благодаря реконструкции корпуса 9, где сейчас помещается здание банка РБР, в котором в 2004 году поучаствовало бюро «Рождественка», присоединив к дворовому фасаду многоярусную стеклянную галерею, стало очевидно, настолько гармонично могут сочетаться старые стены с новейшим дизайном. Второй сохраняемый корпус – номер 7, также уже отремонтирован. И тот и другой, сохранятся в том виде, какой они имеют сейчас.

Итак, памятники реставрируются – правда, деревянную усадьбу придется практически собрать заново, два кирпичных корпуса отремонтированы, получили современные вкрапления и будут сохранены подлинными. А на двух полюсах фабричной территории возникнут два больших новых офисных корпуса недоступного для исторических зданий класса «А», № 1 и № 2. Их также проектируют «Сергей Киселев и партнеры».

Корпус №1 – самое известное сейчас здание «Красной Розы», потому что в нем с 2003 г. располагается галерея ArtPlay, приютившая целую серию артистических офисов и ставшая уже хорошо известной. ArtPlay стал одним из звучных примеров освоения лофтовых пространств художниками, можно даже сказать, что для Москвы этот пример почти азбучный. Однако сохранить подлинный корпус, по всей видимости, не удастся – об этом уже было неоднократно написано в прессе – однако при этом авторы не особенно упоминали, что так было задумано с самого начала. Сергею Киселеву заказали проект, предусматривающий разборку и восстановление в реставрационном режиме (то есть точно по чертежам) части корпуса, выходящей на улицу Тимура Фрунзе. Архитекторы называют ее «шедовым корпусом» из-за особенностей перекрытия, представляющего из себя крупную бетонную гармошку, в гранях которой проделаны окна для того, чтобы получить максимум верхнего освещения для широкого одноярусного пространства цеха. Шеды – один из характерных приемов перекрытий крупных цехов, а в данном случае они уже стали символом здания. Таким образом, будет воссоздаваться не только фасад, как в других случаях, но и перекрытия – весь объем на глубину около 20 метров от улицы.

Надо сказать, что некоторое время назад, может быть, реагируя на прессу и мнения защитников московской старины, заказчик высказал пожелание не сносить «шедовый» корпус Арт-плея, а сохранить его, пристроив в глубине новое здание. На эту тему было даже проведено специальное совещание. Однако оказалось, что для того, чтобы сохранить корпус, необходимо отказаться приблизительно от одной трети подземной стоянки. Или выкопать ее где-то еще – словом, сделать совершенно новый проект корпуса № 1, исходящий из изменившихся условий. И отложить завершение всех работ не меньше, чем на еще на один год.

Итак, «шедовый» корпус сносится и будет восстановлен с подземным гаражом. Повторим, что это предполагалось с самого начала, с 2003 года. «За его спиной» возникает крупный стеклянный объем с внутренним атриумом, на треть меньше, чем рассмотренный выше 8-й корпус, но все же очень и очень внушительный. Он вместит офисы и фитнес-центр. Это здание, достаточно сдержанное и спокойное, обладает одной затеей, которая составляет его «изюминку». Дело в том, что на восточном фасаде, вырастающем непосредственно за треугольными рядами шедовой кровли, задуманы треугольные выступы, похожие на шеды, но зеркально-стеклянные. Они будут отражать ребристую «фабричную» кровлю, демонстрируя прохожим совершенно недоступный для них «вид сверху». Надо сказать, что тема отражений, для современной стеклянной архитектуры вообще-то нередкая и естественная, здесь оказывается трактованной особенным образом – фасад не просто холодно принимает и показывает все, что ему доступно, а как будто бы делает «прыжок» вперед, отращивает себе какие-то новые части, нужные лишь для того, чтобы показать больше. Архитектура от этого становится зрелищнее, а статус отражения как будто бы проясняется – в данном случае невозможно счесть его случайным, оно определенно просчитано и включено в ткань фасадного декора как одна из важных составных частей. Отражение оказывается наравне с материальными украшениями, и надо сказать, что это по меньшей мере примечательно.

Помимо игры в отражения у корпуса есть еще один небольшой секрет – степень «современности» его архитектуры очень заметно нарастает от выходящего на улицу Тимура Фрунзе края (восстанавливаемого шедового корпуса) к центру. Посередине расположен совершенно стеклянный атриум, фланкированный по краям двумя простыми светло-серыми параллелепипедами – местной версией Сциллы и Харибды, расступившихся, чтобы дать место стеклянному «айсбергу». Кровля атриума перекрыта гигантским стеклянным подобием шедов – они такие большие, что уместилось всего три выступа, отчетливо намекающие на преемственность со старой заводской частью.

Итак, «Красная Роза» – большой квартал в центре города, который начали реконструировать раньше других подобных. За четыре прошедших года он успел стать и своеобразным эталоном, и предметом многих споров. На его примере заметно, насколько это дорогое и сложное дело – сохранять историческую среду, одновременно превращая ее в фешенебельные офисы класса «А» (кстати сказать, офисным пространствам, устроенным внутри старых заводов, выше более дешевого класса «Б» никогда не подняться). В то же время его нельзя назвать компромиссным. Скорее другое – это пример соседства и взаимопроникновения двух крайностей, первая из которых – благородная попытка сохранить абсолютно все, что можно, а вторая – достаточно естественное желание сделать итоговый продукт качественным и успешно продаваемым. Надо сказать, в Москве чаще безоговорочно побеждает второе. А в «Красной Розе», кажется все же возникло хрупкое равновесие.

Бизнес-центр «Демидов». Деловой квартал «Красная Роза». Корпус №1. Общий вид
Бизнес-центр «Демидов». Деловой квартал «Красная Роза». Корпус №1. Общий вид
© Сергей Киселев и Партнеры
Ситуационный план
Ситуационный план
Корпус № 8. Вид с улицы Тимура Фрунзе. Справа - дом, который бедт сохранен и отреставрирован. Правда, со сменой всех внутренних перекрытий
Корпус № 8. Вид с улицы Тимура Фрунзе. Справа - дом, который бедт сохранен и отреставрирован. Правда, со сменой всех внутренних перекрытий
Бизнес-центр «Демидов». Деловой квартал «Красная Роза». Корпус №1. Общий вид
Бизнес-центр «Демидов». Деловой квартал «Красная Роза». Корпус №1. Общий вид
© Сергей Киселев и Партнеры
Бизнес-центр «Демидов». Деловой квартал «Красная Роза». Корпус №1. Вид по ул. Тимура Фрунзе
Бизнес-центр «Демидов». Деловой квартал «Красная Роза». Корпус №1. Вид по ул. Тимура Фрунзе
© Сергей Киселев и Партнеры
Бизнес-центр «Демидов». Деловой квартал «Красная Роза». Корпус №1. Вход с улицы Тимура Фрунзе
Бизнес-центр «Демидов». Деловой квартал «Красная Роза». Корпус №1. Вход с улицы Тимура Фрунзе
© Сергей Киселев и Партнеры
Бизнес-центр «Демидов». Деловой квартал «Красная Роза»
Бизнес-центр «Демидов». Деловой квартал «Красная Роза»
© Сергей Киселев и Партнеры
Бизнес-центр «Демидов». Деловой квартал «Красная Роза». Комплекс №1. Главный вход
Бизнес-центр «Демидов». Деловой квартал «Красная Роза». Комплекс №1. Главный вход
© Сергей Киселев и Партнеры
Бизнес-центр «Демидов». Деловой квартал «Красная Роза». Комплекс №1. Атриум
Бизнес-центр «Демидов». Деловой квартал «Красная Роза». Комплекс №1. Атриум
© Сергей Киселев и Партнеры
Бизнес-центр «Демидов». Деловой квартал «Красная Роза». Комплекс №1. Наружная стена атриума
Бизнес-центр «Демидов». Деловой квартал «Красная Роза». Комплекс №1. Наружная стена атриума
© Сергей Киселев и Партнеры
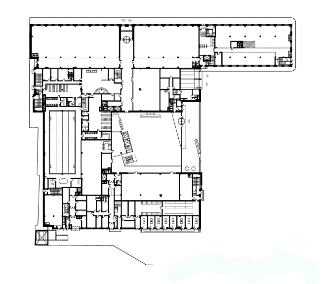
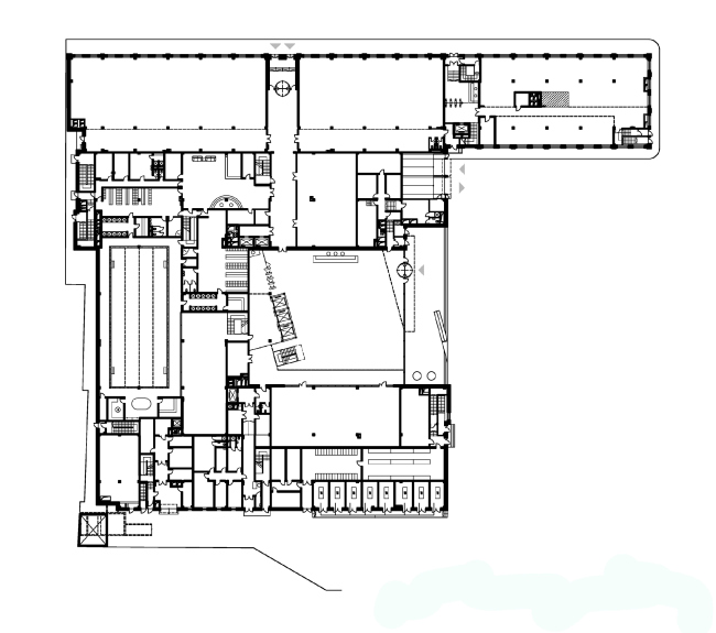
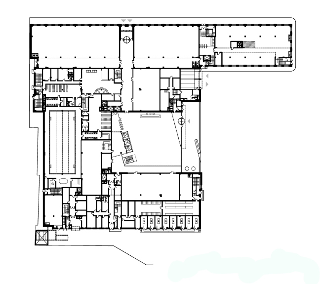
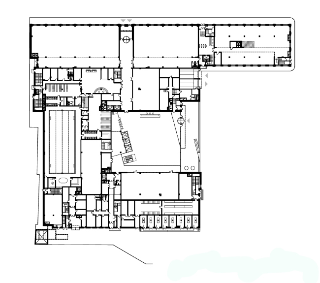
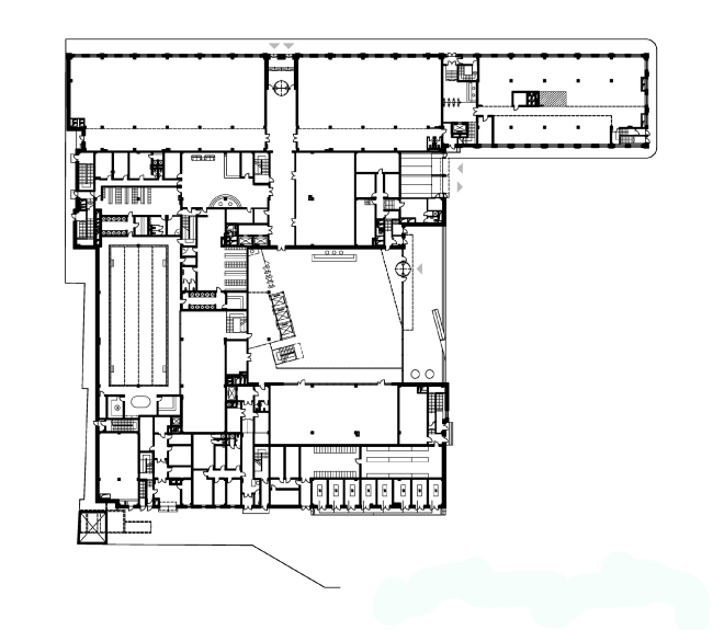
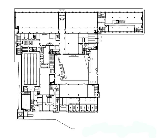
Бизнес-центр «Демидов». Деловой квартал «Красная Роза». Корпус №1. План 1 этажа
Бизнес-центр «Демидов». Деловой квартал «Красная Роза». Корпус №1. План 1 этажа
© Сергей Киселев и Партнеры