Размещено на портале Архи.ру (www.archi.ru)

11.10.2007

Дом с шарниром

Юлия Тарабарина
Объект:
Многофункциональный комплекс Golden Gate («Золотые ворота»)
Адрес:
Россия, Москва. Шоссе Энтузиастов вл. 2-4
Архитектор:
Павел Андреев
Мастерская:
Архитектурная мастерская Павла Андреева
Авторский коллектив:
П. Андреев – руководитель авторского коллектива,
А. Бутырин – главный архитектор проекта
А. Никифорова, Ю. Жукова, И. Римашевская, Л. Рязанов, Е. Павлова, И. Мохаммад

Проект многофункционального комплекса в начале шоссе Энтузиастов получил золотой диплом на прошлогоднем «Зодчестве» – вероятно, за яркий и лаконичный образ, а также за остроту найденного градостроительного решения. Дом, который должен встать прямо за Рогожской заставой, кажется фрагментом гигантского механизма, а следовательно – представителем индустриальной части Москвы, на границе которой он расположен

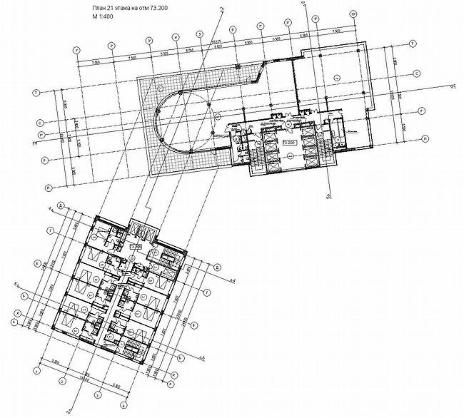
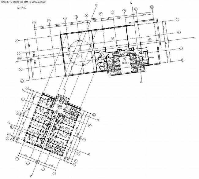
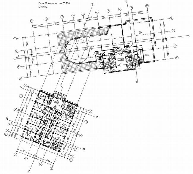
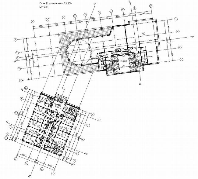
МФК «Золотые ворота». © Мастерская Павла Андреева
МФК «Золотые ворота». © Мастерская Павла Андреева

Рогожская застава – район культурных контрастов. Ильич здесь непринужденно соседствует с Сергием Радонежским, Андроников монастырь с «Серпом и молотом», старый и новый город врезаются друг в друга с потрясающей наглядностью – робкий, но местами непрерывный фронт 2-этажных исторических зданий с трудом сдерживает натиск растущих во множестве панельных многоэтажек. Рваная городская ткань этого района – результат неудачной попытки сочетания старого города с новым, самым ярким примером которого стала отреставрированная в 1980-е гг. Школьная улица. Непосредственно «за», вплотную к памятникам историко-архитектурных экспериментов начинается настоящая промзона, закрытые территории, склады, прокатные станы и прочие чудеса индустриализации – прямо-таки технический рай, правда, к настоящему времени заметно устаревший.

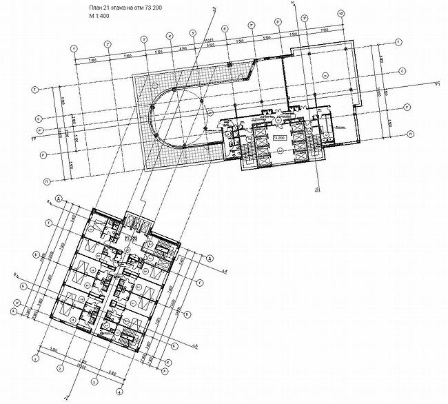
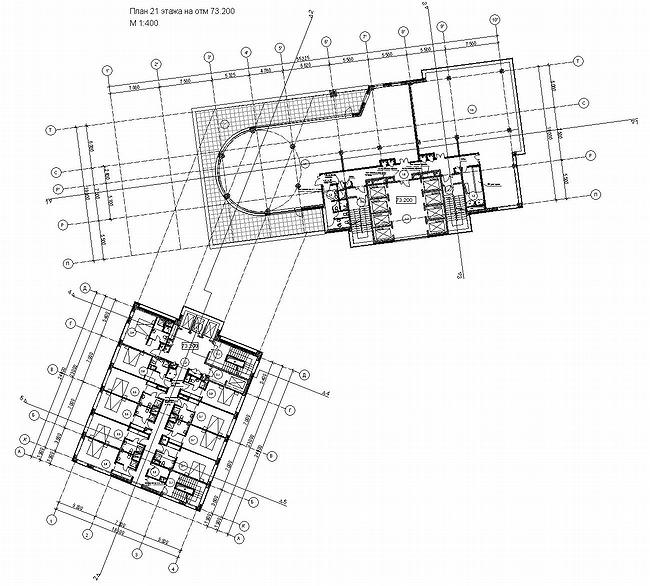
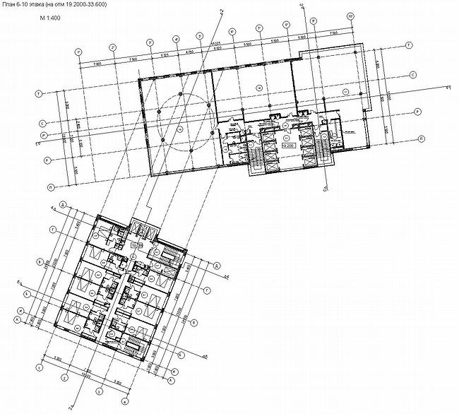
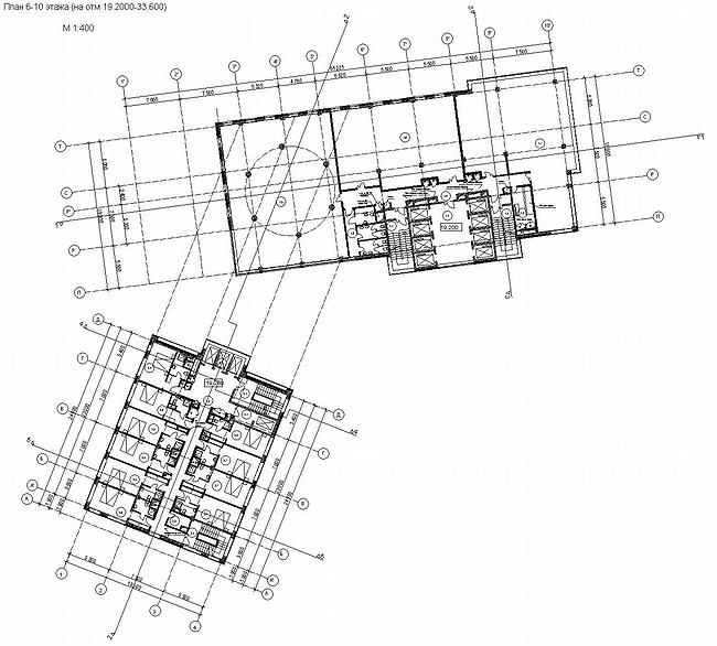
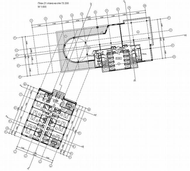
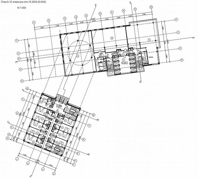
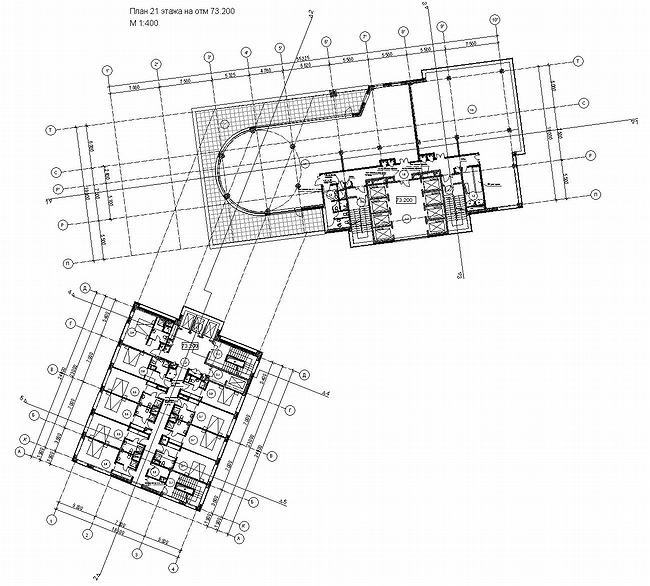
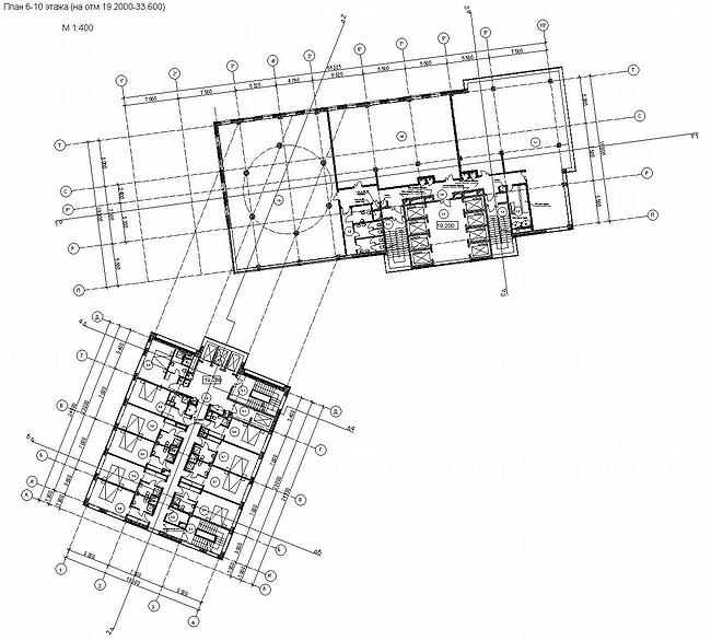
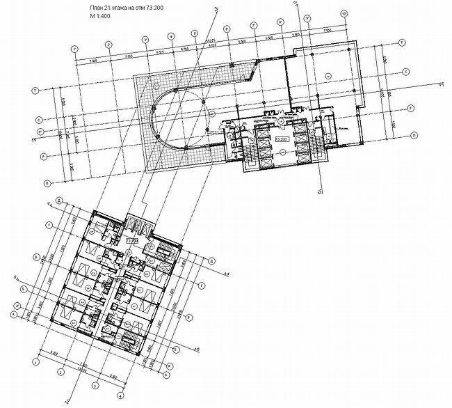
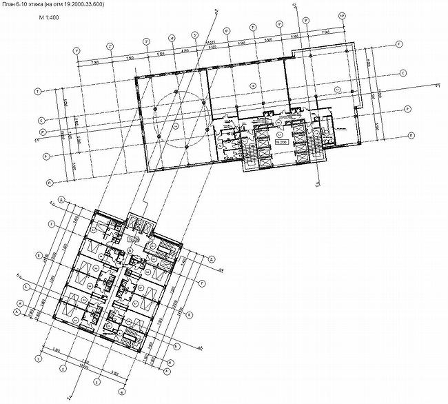
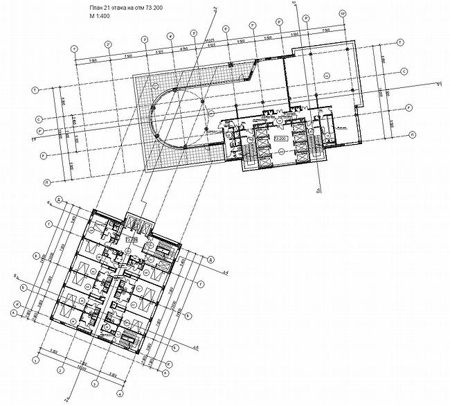
Итак, окружение очень контрастно – и проект мастерской Павла Андреева чутко отзывается на эту ноту, он как будто бы впитывает всю архитектурную двойственность и жесткость контекста, усиливает и воплощает в архитектурных формах – доходя в этом деле до знакового лаконизма. Гигантский, почти 100-метровый дом состоит из двух прямоугольных корпусов: один черный, другой белый. На уровне верхних этажей черный объем Г-образно вытягивается и прорезает белый, в котором для этого проделан большой, в несколько этажей, проем. В месте сочленения две формы кажутся соединенными крупным «шарниром» - так, как будто бы гигантские пластины могли когда-то вращаться вокруг оси, а потом застыли под определенным углом – одна вдоль площади, другая по линии бульвара Энтузиастов. Внутри роль шарнира исполняет круглый зал, который присутствует на всех этажах и таким образом пронизывает здание по вертикали «насквозь», надевая его на ось, снаружи видимую лишь отчасти.

Итак, все сделано для того, чтобы здание казалось представителем технического прогресса, деталью механизма или вообще – домом-машиной, который может, повинуясь необходимости, развернуть свои корпуса под нужным углом. Такой дом становится пластическим представителем «техногенной» части города – своеобразными хай-тековскими «пропилеями» Рогожской заставы.

В этом смысле здание наследует индустриальной разновидности конструктивизма 1920-х, той ветви авангарда, представители которой увлекались воспроизведением разных технических чудес своего времени в застывших и укрупненных архитектурных формах, например, строили дома в виде трактора или паровоза. С тех пор техницистические ассоциации вошли в копилку модернизма и стали нормой – большую часть произведений XX века можно с той или иной мерой натяжки сравнить с чем-нибудь техническим – чаще всего корабле, поездом или ракетой. Однако же в данном случае все несколько иначе – здесь нет изображения конкретного предмета, а есть шарнир, во много раз увеличенный и изнутри предстающий самым классическим из известных интерьерных приемов – круглым залом, обставленным опорами, похожими на колонны.

Тогда возникает несколько иная аналогия – с фрагментом какого-то очень большого, непредставимых размеров механизма, который оказался почему-то на земле и используется как дом. Этот образ представляется более верным, потому что здание местами собирается зарасти зеленью – на открытых лоджиях и кровлях нижних этажей, а также – на площадке в основании видимой части «шарнира» будут устроены висячие сады. Если этот экологический жест будет реализован, сходство с элементом гигантского механизма, каким-то образом вросшего в землю, только усилится.

МФК «Золотые ворота». © Мастерская Павла Андреева
МФК «Золотые ворота». © Мастерская Павла Андреева
МФК «Золотые ворота». © Мастерская Павла Андреева
МФК «Золотые ворота». © Мастерская Павла Андреева
МФК «Золотые ворота». © Мастерская Павла Андреева
МФК «Золотые ворота». © Мастерская Павла Андреева
МФК «Золотые ворота». © Мастерская Павла Андреева
МФК «Золотые ворота». © Мастерская Павла Андреева
МФК «Золотые ворота». © Мастерская Павла Андреева
МФК «Золотые ворота». © Мастерская Павла Андреева
МФК «Золотые ворота». © Мастерская Павла Андреева
МФК «Золотые ворота». © Мастерская Павла Андреева