|
Жилой дом-башня мастерской Павла Андреева старательно вписан в его архитектурное окружение – однако одновременно дом оказывается выразительной зарисовкой на тему «контекст и современность», представляя любому заинтересованному зрителю почти театрально разыгранный сюжет превращения «жесткого» модернизма в «контекстуальный». Ему даже можно сопереживать
 Дом строится в глубине двора между Яковоапостольским и Большим Казенным переулком. В 1970-е здесь уже построили две розово-кирпичные элитные башни, жестко вклинившиеся в ткань выстроенного вдоль старых улиц исторического квартала – башни-близнецы игриво встали по диагонали, презирая планировку: охранители тех времен еще называли такие дома «вставными зубами». С появлением двух советских башен городское пространство вокруг них растеряло все качества исторической среды – для своего времени это был один маленьких шажков экспансии современной застройки в центр, этакий мини-новый-арбат, лоскуток, которых осталось немало и в пределах Садового кольца, и за его чертой. Поэтому можно согласиться с авторами проекта в утверждении, что «исторический морфотип застройки полностью разрушен». Поэтому, несмотря на расположение участка в историческом центре, недалеко от заповедной улицы Покровки, главным контекстом для нового дома оказался не окрестный XIX век, а те самые жилые башни брежневского времени. На них и ориентируется новая башня – и ростом (13 этажей), и квадратностью объема.
Далее, однако, с ней происходят трансформации, которые развиваются по двум направлениям. Во-первых, и это самое понятное – новая башня далека от агрессивного модернизма, она дитя эпохи контекстуализма, что порождает некоторые противоречия. Дело в том, что дом всерьез относится и к ближнему «брежневскому» окружению и к дальнему, более старому. Вроде бы он вторит контурам соседних башен, но в то же время не заимствует их жесткой и нахальной расстановки, игнорирующей все вокруг, а наоборот, слегка поворачивается, выстраиваясь параллельно линии Б.Казенного переулка – единственного, с которого его будет полностью видно, как бы намекая – да, я тоже башня, но вежливая, я не признак будущей перепланировки города, я наоборот, за примирение и согласие.
Вторая особенность более заметна – все-таки прошло почти сорок лет, и новая башня стремится сочетать современные приемы и материалы со старательной «контекстуальностью» всего облика. Это неудивительно и уже не ново – все, что строится в центре, стремится в наше время к этой цели – иначе никак. Однако в данном случае привычный процесс совмещения старого и нового приобрел очень зримые формы.
Со стороны кажется, что дом состоит из квадратного стеклянного стержня – основы, прикрытой четырьмя щитами очень «кирпичного» вида, но изогнутыми слабой волной. Эти «щиты» выдвинуты вперед на ризалитах, боковые стены которых тоже остеклены и таким образом кажутся принадлежащими к материи «основы». Если рассуждать в этом направлении дальше, то можно себе представить такую историю – вот, условно говоря, квадратная кирпичная башня, похожая на «брежневскую». По каким-то причинам она начинает перерождаться: сначала изменяется «кожа» – фактура облицовки, она становится аккуратнее и начинает выглядеть подороже. Затем объем раздвигается изнутри и от этого движения кирпичные плоскости расступаются и изгибаются, как будто бы «под внутренним напором» – примерно так, как это делает фасад в «Матрице», то есть волнообразно. Раздвигаясь, дом обнаруживает свою внутреннюю «суть» - стеклянные плоскости, из которых он «на самом деле состоит». Разумеется, эта история – плод воображения, дома не растут и не превращаются, однако в ней есть доля правды. Она заключена в том, что архитектурная образность башни, новой, но вторящей контексту, заключает в себе описанный сюжет, более того, оно подан настолько явственно, что дом кажется пластической зарисовкой на тему «современное здание в полуразрушенном историческом центре». Особенно точно здесь схвачено противоречивое желание таких зданий, которое заключается в том, чтобы спрятаться за ширмой кирпичной фактуры и одновременно – разорвать, раздвинуть, сломать свою скорлупу «изнутри».
Генплан - схема озеленения
План 1 этажа
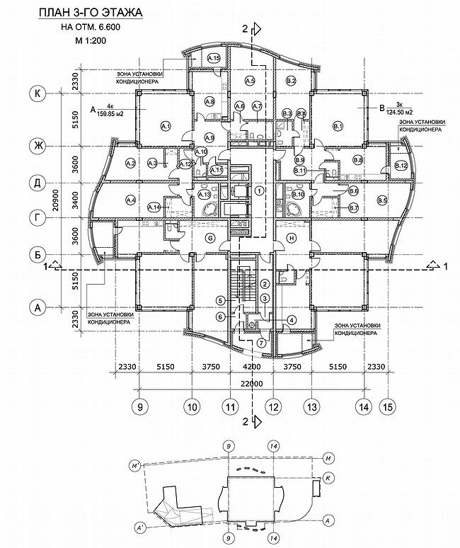
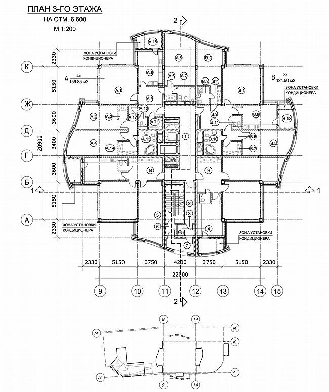
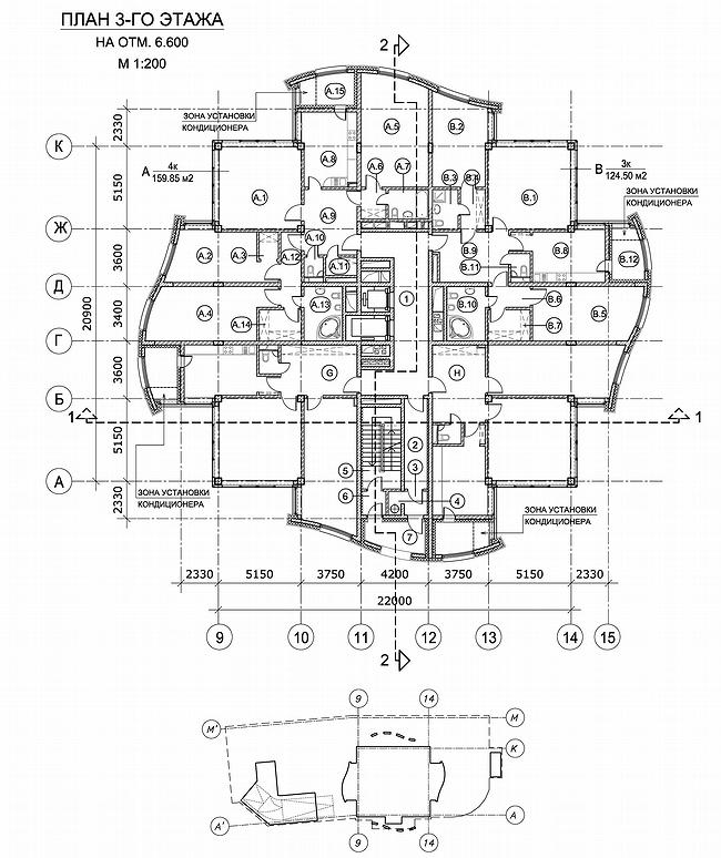
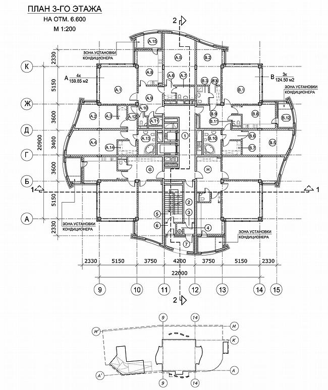
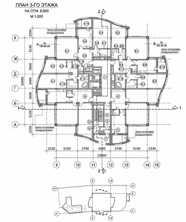
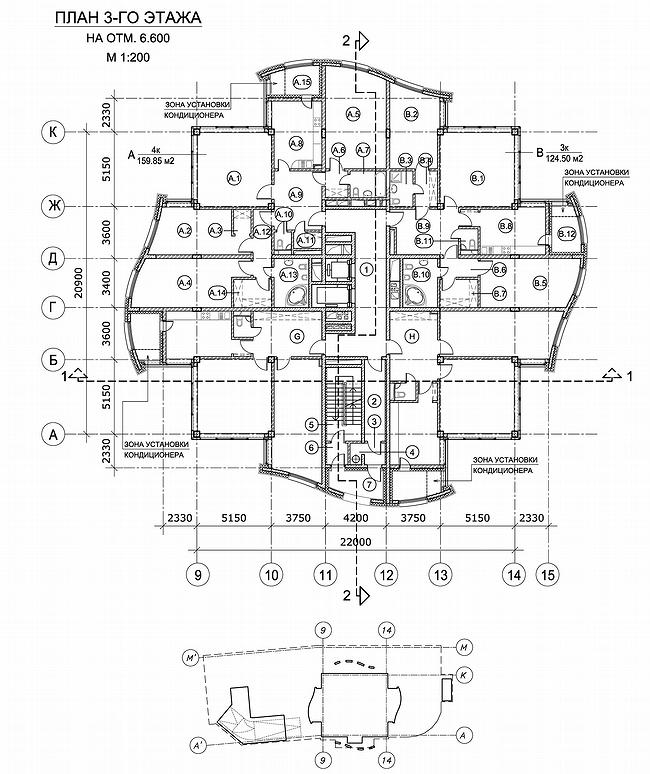
План 3 этажа
|