Размещено на портале Архи.ру (www.archi.ru)

17.09.2007

Маньеризм от модернизма

Юлия Тарабарина
Объект:
Дом 1, дом 2 для «курорта Пирогово»
Адрес:
Россия, Московская область, "курорт Пирогово"
Мастерская:
Архитектурная мастерская Лызлова («АМЛ»)
Авторский коллектив:
Николай Лызлов, Марат Гареев, Надежда Воскресенская

Ансамбль из двух домов, спроектированный Николаем Лызловым для Пирогова, сочетает чистоту форм с изысканностью их трактовки, давая в сумме сложносочиненный образ, растворенный в окружающей природе, но исподволь настраивающий ее на собственный лад

Дом 1, дом 2 для «курорта Пирогово». Проект, 2007 © Архитектурная мастерская Лызлова
Дом 1, дом 2 для «курорта Пирогово». Проект, 2007 © Архитектурная мастерская Лызлова

Вилла, спроектированная Николаем Лызловым для «коллекции курорта Пирогово», состоит из двух домов, вкопанных в землю рядом с идеальной травяной поверхностью гольф-поля таким образом, чтобы их, по возможности, было не видно. Почти все стены, которые оказались выше земли – стеклянные, а крыши предполагается покрыть дерном, придав им сходство с поверхностью окрестных полей. Для роскошной модернисткой виллы на природе все эти приемы – типичные, почти что обязательные: они позволяют, с одной стороны, спрятать дом в окружающем ландшафте, по-японски сливая его с природой, а с другой стороны – через стеклянные стены впустить пейзаж внутрь, давая возможность обитателям роскошного жилища насладиться одновременно красотами окружающих виллу пейзажей и собственной защищенностью от дождя и ветра. Ведь известно, что слушать шум дождя, сидя в тепле в деревенском доме – это особенное удовольствие. А когда это дом на 2000 метров, очень большой, а его стены – непроницаемо-прозрачные и на всю высоту, то оно, вероятно, оказывается еще сильнее.
Развивая эту идею, архитектор идет дальше, привнося ее внутрь одного из двух домов – внутренняя стена одной из гостиных сделана стеклянной, за стеной – бассейн, вода.

Эти мотивы, равно как и стремление слиться с природой – едва ли не основы азбуки модернизма. Здесь на них сделан акцент, они использованы на полную катушку, что и полагается в роскошной вилле: стекла много, тонко срежиссированных перепадов высот – тоже, может показаться, что автор ставит опыт на тему «природа в современной архитектуре». Однако интересно другое. Вкапывание в землю, слияние здания с природой и демонстрация ее красот осуществляются в пироговской вилле Лызлова с помощью одного очень классического античного приема, а именно – дома уподоблены амфитеатрам.

Особенно ясно это видно на примере того дома, который побольше, предназначен для семьи и обращен к парадному въезду, если в данной ситуации это словосочетание вообще уместно. Сходство хорошо заметно на эскизах и на плане дома, и вероятно, будет ощущаться, когда он будет готов – весь объем дугообразно выстроен вокруг сравнительно небольшой круглой площадки, и плавно уменьшает свою высоту в сторону воображаемого центра окружности, вторя слабому перепаду рельефа в этой части поля. Греки вписывали свои театры в склоны гор, в Подмосковье гор нет, однако принцип все же соблюден «в миниатюре». Вилла велика, но настоящий амфитеатр больше – и масштабная аналогия позволяет по достоинству оценить всю степень парадности этого «спрятанного» в природном окружении дома.

Вилла-театр обозревает окрестности, фокусируя свое внимание на круглом газоне парадного двора, занимающего место воображаемой «сцены» –  соответственно, главным представлением оказываются подходящие и подъезжающие на машинах гости. Центральный газон превращен таким образом в некоторое подобие дворцового «курдонера», парадного двора. На него строго радиально ориентированы все внутренние перегородки дома – отсюда очень красивый, «лучистый» и геометрически правильный план, образцово-показательный пример радиально-кольцевой планировки в отдельно взятом поместье.

Второй дом, поменьше и предназначенный для одного человека – это архитектурный переход между темой виллы-амфитеатра и традиционного «деревенского» дома. Его большая половина тоже изогнута, но в обратном направлении и точка ее фокуса оказывается с противоположной стороны от парадного двора первого дома. Иными словами, «семейный» дом и «холостяцкий» отвернулись друг от друга – прекрасный вариант для молодого поколения, которое отделилось от родителей неокончательно: живут вроде бы рядом, а смотрят в разные стороны. Вместе две дуги – большого и малого дома, образуют подобие буквы S, разорванной посередине. Со стороны, противоположной «соседу», малый дом пересечен длинной и прямой стрелой поперечного объема, объединяющего на разных уровнях бассейн и каминный зал – и дальше после этого пластического «вторжения» он начинает изгибаться уже в противоположную сторону, но уже слегка, а вверху возникает самый традиционный мотив, какой только можно здесь придумать – двухскатная вальмовая кровля, правда, очень уплощенных очертаний, как будто бы не верящая в то, что это консервативное превращение произошло именно с ней.

В конце концов два дома, стартуя от очень «чистых» приемов и четкой геометрии, складываются в сложный ансамбль, работающий скорее на ассоциациях, переходах и перетеканиях – причем все это касается как смыслов, так и форм – объемов, линий, точек зрения и даже вероятных прототипов. То это круглый «амфитеатр», то вдруг – благовоспитанный «домик», то его видно, то нет, то он прозрачный, то закрытый, то широкий, то узкий – масса вариаций при простом обходе. Получается что вилла-ансамбль не просто прячется внутри ландшафта, а заигрывает с несложной подмосковной природой, развивая ее возможности путем деликатного добавления новых ракурсов.

Дом 1, дом 2 для «курорта Пирогово». Проект, 2007 © Архитектурная мастерская Лызлова
Дом 1, дом 2 для «курорта Пирогово». Проект, 2007 © Архитектурная мастерская Лызлова
Дом 1, дом 2 для «курорта Пирогово». Проект, 2007 © Архитектурная мастерская Лызлова
Дом 1, дом 2 для «курорта Пирогово». Проект, 2007 © Архитектурная мастерская Лызлова
Дом 1, дом 2 для «курорта Пирогово». Проект, 2007 © Архитектурная мастерская Лызлова
Дом 1, дом 2 для «курорта Пирогово». Проект, 2007 © Архитектурная мастерская Лызлова
Дом 1, дом 2 для «курорта Пирогово». Проект, 2007 © Архитектурная мастерская Лызлова
Дом 1, дом 2 для «курорта Пирогово». Проект, 2007 © Архитектурная мастерская Лызлова
Дом 1, дом 2 для «курорта Пирогово». Проект, 2007 © Архитектурная мастерская Лызлова
Дом 1, дом 2 для «курорта Пирогово». Проект, 2007 © Архитектурная мастерская Лызлова
Дом 1, дом 2 для «курорта Пирогово». Проект, 2007 © Архитектурная мастерская Лызлова
Дом 1, дом 2 для «курорта Пирогово». Проект, 2007 © Архитектурная мастерская Лызлова
Дом 1, дом 2 для «курорта Пирогово». Проект, 2007 © Архитектурная мастерская Лызлова
Дом 1, дом 2 для «курорта Пирогово». Проект, 2007 © Архитектурная мастерская Лызлова
Дом 1, дом 2 для «курорта Пирогово». Генплан участка © Архитектурная мастерская Лызлова
Дом 1, дом 2 для «курорта Пирогово». Генплан участка © Архитектурная мастерская Лызлова
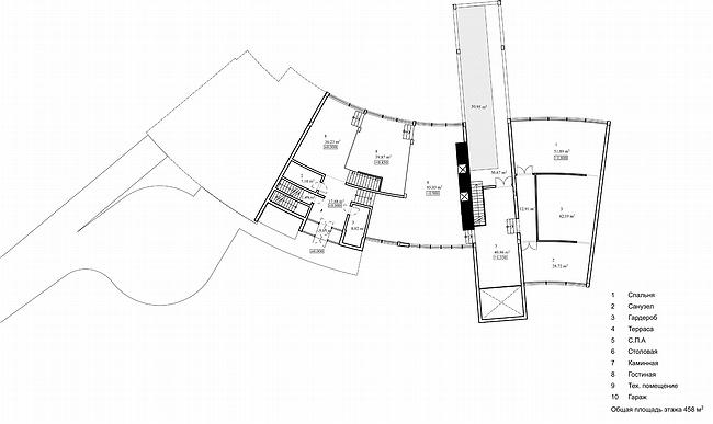
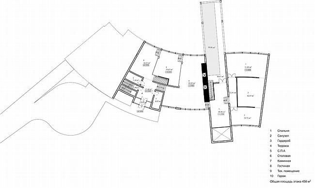
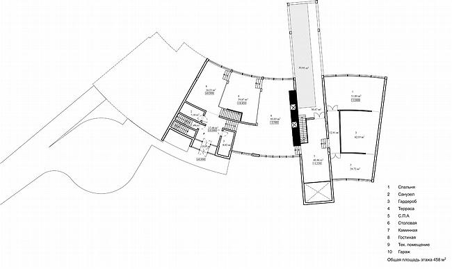
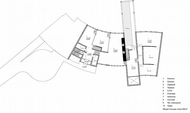
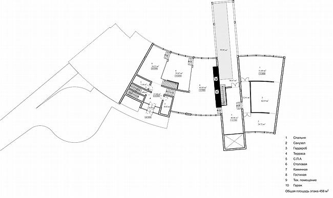
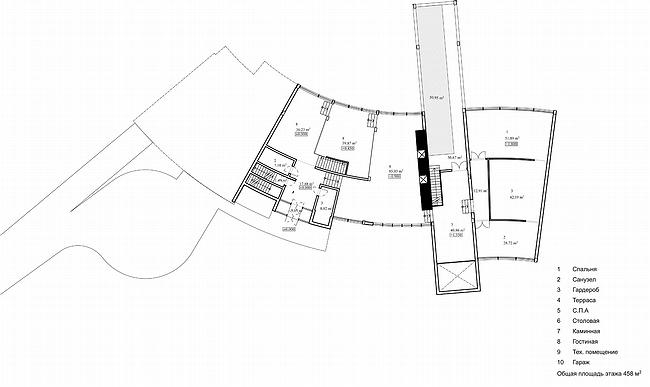
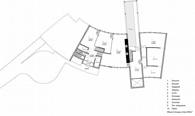
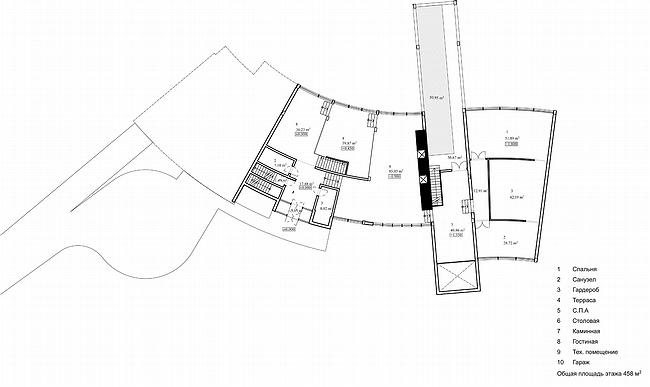
Дом 1, дом 2 для «курорта Пирогово». Дом 2. План 1 этажа © Архитектурная мастерская Лызлова
Дом 1, дом 2 для «курорта Пирогово». Дом 2. План 1 этажа © Архитектурная мастерская Лызлова
Дом 1, дом 2 для «курорта Пирогово». Проект, 2007 © Архитектурная мастерская Лызлова
Дом 1, дом 2 для «курорта Пирогово». Проект, 2007 © Архитектурная мастерская Лызлова
Дом 1, дом 2 для «курорта Пирогово». Проект, 2007 © Архитектурная мастерская Лызлова
Дом 1, дом 2 для «курорта Пирогово». Проект, 2007 © Архитектурная мастерская Лызлова