Размещено на портале Архи.ру (www.archi.ru)

25.06.2012

Архитектурные фразы и слова

Татьяна Шовская
Объект:
ЖК «Победы, 5» в Петербурге
Адрес:
Россия, Санкт-Петербург. ул. Победы, д.5
Мастерская:
Евгений Герасимов и партнеры
Авторский коллектив:
Руководитель проекта Герасимов Е.Л., главный архитектор проекта Ярощук Т.Е., руководитель группы АР Осколкова Т.Б., архитекторы Бурдакова О.Е., Хухка И.В.

Проект жилого дома, предложенный мастерской Евгения Герасимова для улицы Победы в Петербурге, соединяет в себе ретро-фразы с современным прочтением.

Участок под строительство нового дома располагается на улице Победы, которая впервые появилась на плане города в связи с генеральной реконструкцией, начатой в 1935-37 гг. Улица решена в виде бульвара, диагонально подходящего к Московскому проспекту. Московский проспект – одна из основных магистралей города. Хотя это название появилось только во второй половине XX века, проспект изначально сложился как дорога на Москву и возник одновременно с Невским, но, в отличие от последнего, застраивался не сразу, процесс растянулся на два столетия. Таким образом, застройка XIX века в начале проспекта сменяется после Обводного канала сталинскими зданиями. Похоже, именно это соединение архитектуры разных периодов определило облик нового дома в непосредственной близости от проспекта. Трехчастная структура фасада словно разворачивается во времени.

Вид цокольного этажа со стороны улицы Победы. Дом на ул. Победы, 5 © Евгений Герасимов и партнеры
Вид цокольного этажа со стороны улицы Победы. Дом на ул. Победы, 5 © Евгений Герасимов и партнеры

Объемный руст из натурального камня, камерная лоджия центрального входа, его оформление аркой с маской льва и особенно пропорции и постановка парных дорических колонн – решение цокольного этажа, несомненно, отсылает к доходным домам в стиле северного модерна.
Портал входа в жилые апартаменты
Портал входа в жилые апартаменты

Однако эклектика плоть от плоти этого стиля, поэтому совершенно органично на этой базе возникает основное тело здания, формы которого чрезвычайно близкипозднесталинским сооружениям: едва выступающие пилястры, сочетание почти квадратных оконных проемов с вытянутыми по вертикали проемами французских балконов и даже облицовочный камень светло-бежевого цвета. В сходстве этого цвета с цветом кожи известный исследователь сталинской архитектуры Владимир Паперный видел один из характернейших признаков отношения к зданию как к живому организму в то время. Сейчас отношение к постройкам совершенно иное, что и иллюстрирует верхняя часть дома: трехэтажный пентхаус с панорамным остеклением являет собой современное прочтение сталинской архитектуры с невероятно вытянутыми полукруглыми пилястрами, карнизом крупных форм и обелисками по углам здания.
Главный фасад
Главный фасад

Интересно, что фасад членится по вертикали не только во времени, но и в пространстве: если его цокольный этаж выражено питерский, может быть, с даже более точным адресом Петроградской стороны, то все что выше цоколя представляется по облику скорее московским. Словно авторы вслед за Робертом Вентури провозглашают жизненность и противоречивость в архитектуре. Однако, с учетом ширины улицы, ее озеленения, очевидно, что на город будет работать исключительно цокольный этаж, а фасад целиком в реальной жизни смогут оценить только жители дома напротив, да и то лишь в холодный период года. Поэтому акцент на цокольном этаже, тщательная разработка его проемов и декора, включение скульптуры полностью оправданы и изменят в положительную сторону общее ощущение от всего отрезка улицы до ее пересечения с проспектом.
Венчающий карниз и обелиск на парапете крыши
Венчающий карниз и обелиск на парапете крыши

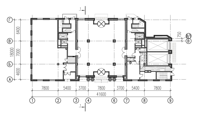
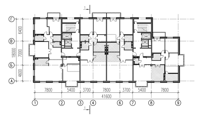
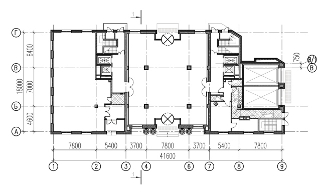
Площадь выделенного под застройку участка небольшая, поэтому подземная парковка занимает его целиком, даже устройство пандуса для заезда на парковку оказалось невозможным, и машины будут опускаться туда на лифтах. Небольшой двор дома с озеленением располагается на крыше парковки. Вестибюль отвечает парадному характеру сооружения в целом, он занимает основную часть высокого цокольного этажа и выходит на обе стороны здания. Сквозной подъезд, возможность выйти на улицу или во двор – привилегия «старорежимных» домов, которую охотно копировали в сталинское время. Несмотря на свою небольшую протяженность по фасаду, дом имеет два блока вертикальных коммуникаций, расположенных по обе стороны от вестибюля, таким образом, на каждой площадке только две квартиры при их общем количестве четыре на этаже.
Вестибюль со стойкой консьержа. Дом на ул. Победы, 5 © Евгений Герасимов и партнеры
Вестибюль со стойкой консьержа. Дом на ул. Победы, 5 © Евгений Герасимов и партнеры

Интересно, что все квартиры в доме близки по площади и набору помещений, т.е. рассчитаны на примерно одинаковые по составу семьи из 3-4 человек, а вот одинокие или, как говорили в советское время, малосемейные вряд ли будут здесь селиться. Все квартиры имеют выраженную открытую гостевую зону; многочисленные эркеры, воспринимаемые с фасада как остекленные балконы, украшают приватные части квартир. В целом же, характер этого дома соединяет в себе представления о современном жилье с некой ретро-направленностью, столь близкой и органичной Петербургу.
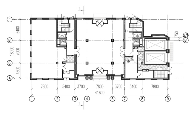
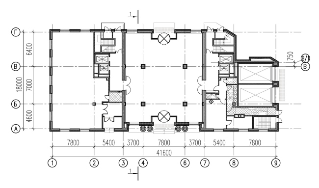
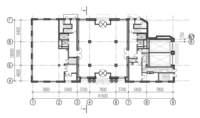
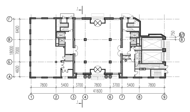
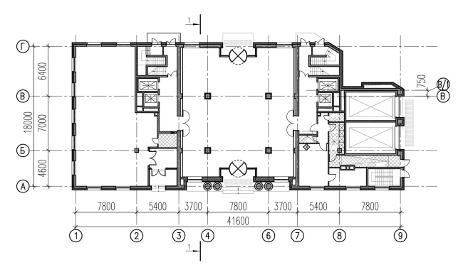
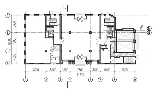
План первого этажа
План первого этажа
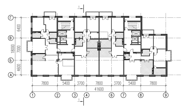
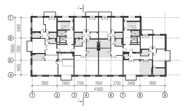
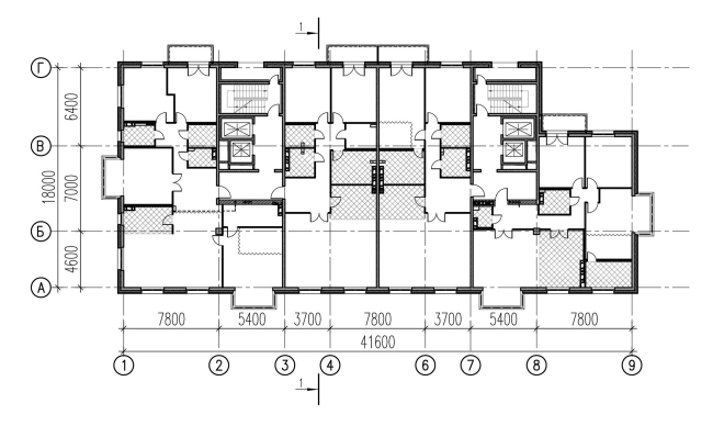
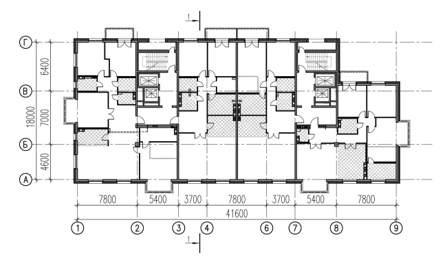
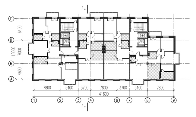
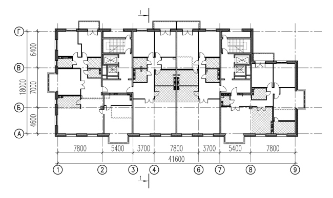
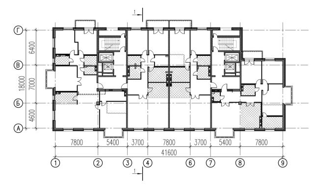
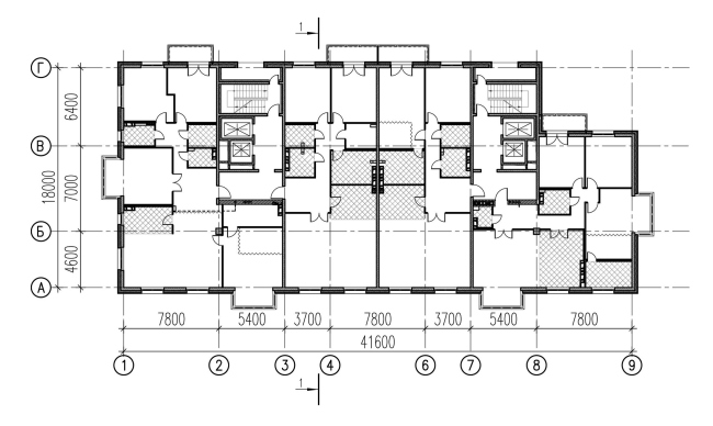
План типового этажа.  Дом на ул. Победы, 5 © Евгений Герасимов и партнеры
План типового этажа. Дом на ул. Победы, 5 © Евгений Герасимов и партнеры
Вид со стороны улицы Победы
Вид со стороны улицы Победы
Первоначальный эскиз фасада
Первоначальный эскиз фасада
Эскиз интерьера вестибюля. Дом на ул. Победы, 5 © Евгений Герасимов и партнеры
Эскиз интерьера вестибюля. Дом на ул. Победы, 5 © Евгений Герасимов и партнеры