Размещено на портале Архи.ру (www.archi.ru)

30.07.2007

Белый и пушистый

Юлия Тарабарина
Объект:
Здание Федерального Арбитражного суда Московского округа
Адрес:
Россия, Москва. Селезневская ул., вл. 9
Архитектор:
Владимир Плоткин
Мастерская:
ТПО «Резерв»
Авторский коллектив:
В. Плоткин – ркуоводитель авторского коллекстива, Н. Ромишевская – ГАП, И. Лелякина, М. Ильевская, И. Тюрин, А. Травкин
А. Мамаев – ГИП, конструкторы: В. Андреев, А. Набатников

Архитектура недавно завершенного здания арбитражного суда на Селезневской улице вмещает в себя целый ряд экспериментов с "чистой" формой. Но главный из поставленных здесь опытов – это воплощение нового пластического образа справедливого суда – чистого, открытого, рационального

Здание Федерального Арбитражного суда Московского округа на Селезневской улице
Здание Федерального Арбитражного суда Московского округа на Селезневской улице
© ТПО «Резерв»

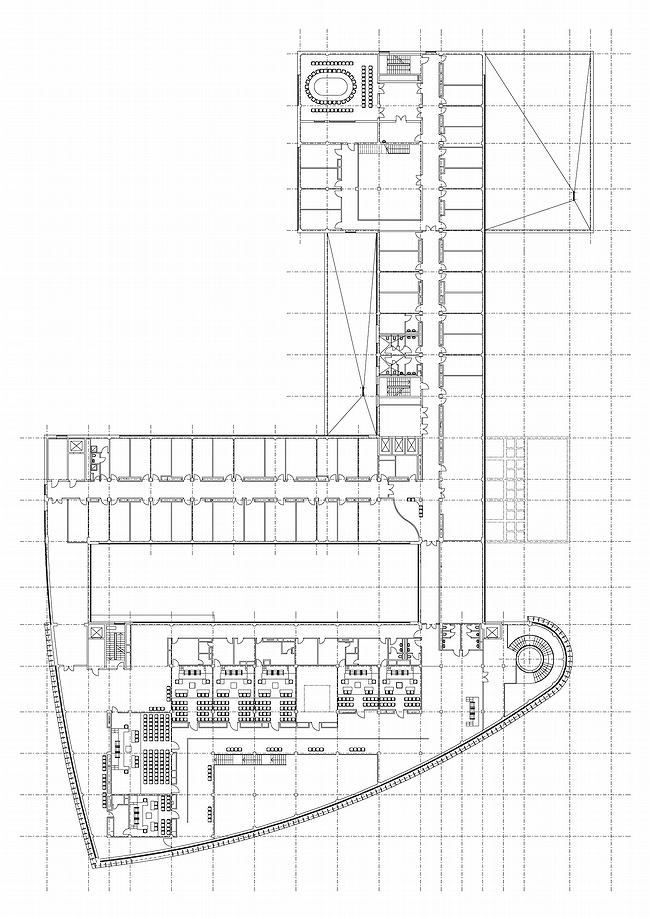
Здание состоит из двух корпусов, один – место для повседневной работы судей, он побольше и стоит в глубине участка, а второй общественный, он расположен ближе к улице и вмещает залы судебных заседаний. Между корпусами – небольшой открытый дворик, над ним – два перехода, и все устроено так, чтобы судьи проходили в залы, не встречаясь со случайными просителями.

Композиция построена на сопоставлении двух корпусов: один большой, прямоугольный и блестит ровными поверхностями больших, от пола до потолка, стекол. Другой невысокий, изогнутых овальных очертаний и снаружи опушен белыми тонкими металлическими пластинами ламелей, внешних жалюзи. Эти ряды изящных вертикальных пластин, обращенные в сторону прохожих, оказываются главной составляющей архитектурного образа. Их появление мотивировано необходимостью защитить интерьеры общественных пространств от прямого солнечного света, но в этом практическом объяснении нельзя не увидеть некоторую долю лукавства.

Дело в том, что, во-первых, от солнца дешевле спасаться простыми внутренними жалюзи, которые тоже есть. А во-вторых, фасадные пластины неподвижны. Сначала, рассказывает Владимир Плоткин, их собирались сделать управляемыми изнутри, но потом выяснилось, что это не очень эффективно и очень дорого – солнце у нас бывает нечасто, зато бывает долгая зима, во время которой сложные механические конструкции портятся. Поэтому остановились на фиксированных ламелях. Это рассуждение вполне справедливо. Однако представим себе, что было бы с фасадом, если бы ламели управлялись по прихоти находящихся внутри людей, местами складываясь в белую непроницаемую плоскость, а местами топорщась. Вероятно, это решение бы выглядело снаружи очень гуманистичным – техника служит человеку, но фасад был бы загублен. Поэтому кажется, что ламели – не столько технический, сколько артистический прием – и в этом своем качестве они прекрасно «работают», создавая образ удивительной чистоты и эфемерности.

Пластины обращены к зрителю тонким торцом и если смотреть на них фронтально, ничего не скрывают. Зато в перспективе складываются в некоторую ровную, но по сути своей зыбкую поверхность. Эта преграда сродни решетке, она еще более открытая, чем стекло, хотя ей и удается создать вокруг фасада вторую оболочку с очень своеобразными свойствами – достаточно толстую, но очень неплотную, хоть и металлическую, но открытую. Таким образом фасады, обращенные к улице и прохожим, составлены из трех последовательных частей, различных по структуре и характеру, но одинаково эфемерных. Сначала острые ребра ламелей, составляющие воздушно-проницаемую внешнюю прослойку, потом – холодно блестящее, но прозрачное стекло, за ним – опять белые матерчатые полосы внутренних жалюзи. Все три «слоя» выглядят тонкими, по разному проницаемыми, хотя при желании позволяют замечательно отгородиться от внешнего мира. Однако дом совершенно теряет массивность и материальность, потому что вместо материи стен у него – легкость оболочек, поддержанная яркой белизной всего, что непрозрачно.

Здание кажется бумажным, настолько оно легкое. Как будто бы его не отливали в течение нескольких лет из бетона, а оно соткалось тут из воздуха – материализованная визуализация, застыв где-то на грани окончательного воплощения. Дом-геометрия, воплощающий разные абстрактные начала – цвета, света, пространства, линии – причем с таким видом, как будто все это часть формального эксперимента. 

Вторая особенность пластин-ламелей заключается в том, что они порождены изогнутыми поверхностями и присутствуют только на них. Здесь тоже есть два объяснения, одно очень общее: архитектор таким образом создает ощутимое различие фактур, прямые плоскости блестят стеклом, а искривленные топорщатся решетками белых вертикалей. Вторая также кроется в ощущении формы, но более опеределенно-конкретном – Владимир Плоткин никогда не использует в своих домах изогнутых стекол, обращая внимание на то, что снаружи они смотрятся эффектно и стоят столько же, сколько прямые, но внутри дают искаженные отражения наподобие комнаты смеха. Поэтому если в его домах и встречаются изогнутые – всегда по циркулю – поверхности, то ряды окон в них ломаные, составленные из ряда плоскостей. Поэтому здесь перед прямыми стеклами поставлены ряды ламелей – которые прекрасно держат округлость формы, и несмотря на всю прозрачность этой своеобразной решетки без специальных усилий нельзя разглядеть, какие там за ними стекла – объем воспринимается целиком, скульптурно и очень целостно.

Изгибы стен, столь редко встречающиеся у Плоткина, в объеме общественного корпуса неслучайны. Он попал в зону строгих визуально-ландшафтных ограничений, связанных с соседством двух памятников, церкви Пимена и пожарной каланчи – и замечательно вышел из этой ситуации, соединив бескомпромиссный модернизм с внимательным отношением к окружению. Изгибы стен открывают виды и выстраивают перспективы городских belle-vues, которых раньше не было, а стекла умело используются как зеркала, в которых отражаются памятники. на перекрестке с Пименовским переулком есть замечательная точка зрения, соединяющая вид на каланчу с отражением церковной колокольни. Заметим, что отражения не только неслучайны, но они все были запрограммированы и спроектированы, их можно увидеть на проектных визуализациях.

Итак, меньший корпус попал в зоны влияния памятников и был вынужден округлиться, а со стороны Краснопролетарской улицы он оканчивается характерным «носом». Это очень известная форма, любимая русским конструктивизмом и получившая новое рождение среди лучших образцов современной российской архитектуры – где она выступает одновременно как знак почтения к авангарду и признак увлечения модными биологическими гибкостями. Владимир Плоткин скептически относится к откровенному биологизму и изогнутые формы приживаются в его проектах с трудом. Поэтому овальный «нос» на Селезневке имеет целый ряд особенностей.

Прежде всего – если посмотреть на план, видно, что он очень четко и рационально нарисован исходя из особенностей местности, но не пренебрегая правильной геометрией. Конструктивистские носы обычно завершают прямоугольник, а нелинейные – стараются быть кривыми и непредсказуемыми. У Плоткина форма состоит из сопряжения трех дуг и одной прямой, сложенных в подобие треугольника. Две дуги широкие, одна – крутая, с небольшим диаметром, это скругленный угол, собственно «нос». Внутри него спрятана винтовая лестница, спираль которой кажется квинтэссенцией округлого корпуса. Рядом, с противоположной стороны внутреннего двора – пластический представитель второго здания, сильно вынесенный вперед прямоугольный козырек, который, если посмотреть на него снизу, оказывается очень четко расчерченным на большие и маленькие клетки. В козырьке собирались разместить вентиляцию, но передумали, и он остался единственной откровенно нефункциональной формой здания, основой для представительной и заметной вывески.

Все эти очень формальные и абстрактные сопоставления в духе чистого искусства, удачно привитые к современным технологиям, складываются в ясный и чистый образ, у которого есть одна, зато очень замечательная особенность. Основные впечатления от архитектуры этого здания – чистота и открытость, проницаемость, легкость и рационализм, а также уважение ко всему, и к памятникам вокруг и к людям внутри – все это крутится вокруг образа идеального суда, гуманного, разумного, открытого, вокруг всех тех качеств которые мы привыкли связывать с открытым обществом и европейским путем развития. Никакого заказа на образ не было, были только практические рекомендации – концепция целиком принадлежит автору. И в имеющемся контексте, где здание суда как правило мрачновато-представительное, не в меру солидное и страшноватое, получившееся здание выглядит то ли отражением процесса гуманизации страны, то ли – что кажется более объективным – попыткой подтолкнуть его художественными средствами. Не хотелось бы обсуждать, насколько эта мечта архитектора идеалистична, и в какой мере возможно такое активное жизнестроительство средствами чистого искусства. Но совершенно очевидно, что этот идеалистический подход упорно развивался в архитектуре XX века, а в данном случае – породил здание суда, привлекательное снаружи и удобное внутри.

Здание Федерального Арбитражного суда Московского округа на Селезневской улице
Здание Федерального Арбитражного суда Московского округа на Селезневской улице
© ТПО «Резерв»
Здание Федерального Арбитражного суда Московского округа на Селезневской улице
Здание Федерального Арбитражного суда Московского округа на Селезневской улице
© ТПО «Резерв»
Здание Федерального Арбитражного суда Московского округа на Селезневской улице
Здание Федерального Арбитражного суда Московского округа на Селезневской улице
© ТПО «Резерв»
Здание Федерального Арбитражного суда Московского округа на Селезневской улице
Здание Федерального Арбитражного суда Московского округа на Селезневской улице
© ТПО «Резерв»
Здание Федерального Арбитражного суда Московского округа на Селезневской улице
Здание Федерального Арбитражного суда Московского округа на Селезневской улице
© ТПО «Резерв»
Здание Федерального Арбитражного суда Московского округа на Селезневской улице
Здание Федерального Арбитражного суда Московского округа на Селезневской улице
© ТПО «Резерв»
Здание Федерального Арбитражного суда Московского округа на Селезневской улице
Здание Федерального Арбитражного суда Московского округа на Селезневской улице
© ТПО «Резерв»
Здание Федерального Арбитражного суда Московского округа на Селезневской улице
Здание Федерального Арбитражного суда Московского округа на Селезневской улице
© ТПО «Резерв»
Здание Федерального Арбитражного суда Московского округа на Селезневской улице
Здание Федерального Арбитражного суда Московского округа на Селезневской улице
© ТПО «Резерв»
Здание Федерального Арбитражного суда Московского округа на Селезневской улице
Здание Федерального Арбитражного суда Московского округа на Селезневской улице
© ТПО «Резерв»
Здание Федерального Арбитражного суда Московского округа на Селезневской улице
Здание Федерального Арбитражного суда Московского округа на Селезневской улице
© ТПО «Резерв»
Здание Федерального Арбитражного суда Московского округа на Селезневской улице
Здание Федерального Арбитражного суда Московского округа на Селезневской улице
© ТПО «Резерв»
Здание Федерального Арбитражного суда Московского округа на Селезневской улице
Здание Федерального Арбитражного суда Московского округа на Селезневской улице
© ТПО «Резерв»
Здание Федерального Арбитражного суда Московского округа на Селезневской улице
Здание Федерального Арбитражного суда Московского округа на Селезневской улице
© ТПО «Резерв»