Размещено на портале Архи.ру (www.archi.ru)

13.06.2007

Дом в Спасоналивковском

Юлия Тарабарина
Объект:
Реконструкция жилого дома в 1-ом Спасоналивковском переулке
Адрес:
Россия, Москва. 1-ый Спасоналивковский пер, вл. 18 стр. 2
Мастерская:
Александров и партнеры
Авторский коллектив:
Архитекторы: Александров Д.В., Еремеева В.А.
конструктор: Лопаткина Н.В., ГИП Кленов В.Г.

Закончена реконструкция дома в Спасоналивковском переулке, 18, стр.1, проект которой получил бронзовый диплом на "Зодчестве" в 2003 году

Реконструкция жилого дома в 1-м Спасоналивковском переулке в Москве. Архитектурная мастерская «Александров и партнеры». Александров Дмитрий Всеволодович - руководитель
Реконструкция жилого дома в 1-м Спасоналивковском переулке в Москве. Архитектурная мастерская «Александров и партнеры». Александров Дмитрий Всеволодович - руководитель

Здание расположено в глубине квартала, недалеко от Якиманки и принадлежащего французскому посольству дома Игумнова. Оно со всех сторон обстроено и застеснено соседними домами, чередующими в своих не слишком изысканных нарядах современный красный кирпич с облицовочной плиткой модерна начала XX века. Однако от Спасоналивковского переулка дом неплохо видно – потому что здесь находится маленький одноэтажный домик, тоже начала XX в., который не может ничего загородить.

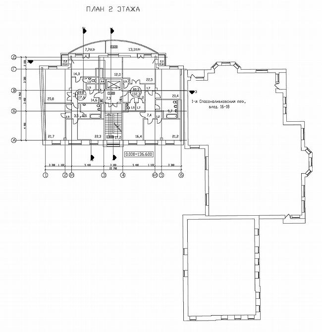
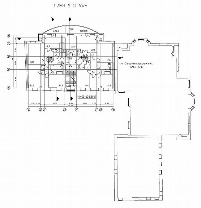
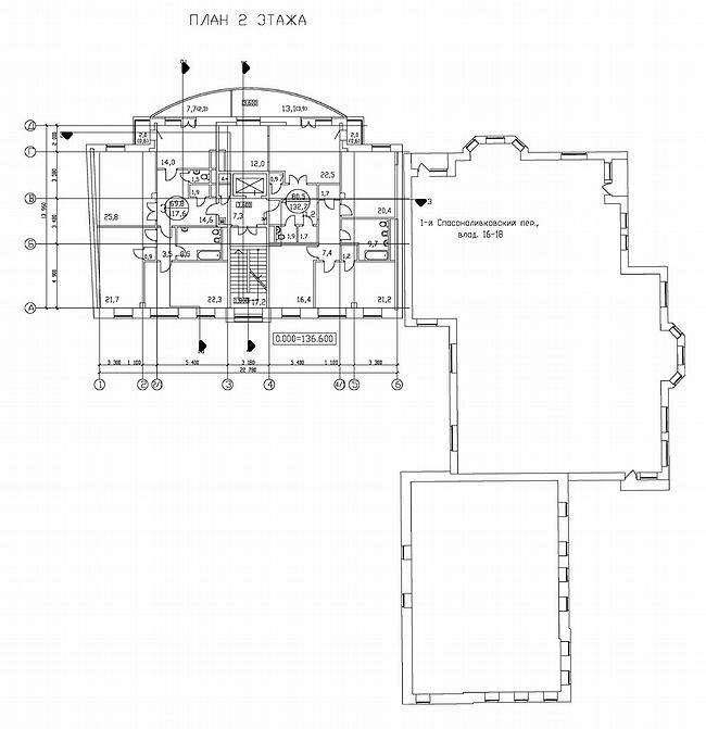
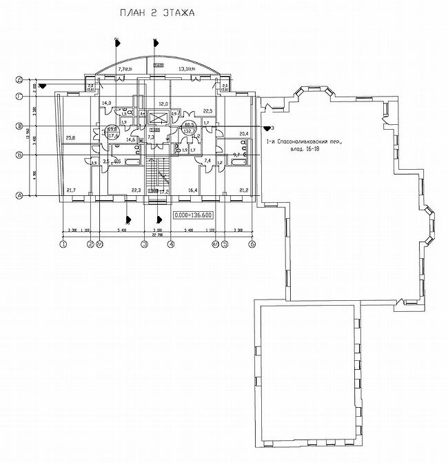
Итак, в 1912 году в глубине одного из дворов недалеко от Якиманки был построен четырехэтажный доходный дом с большими окнами и покрытыми светлой плиткой вертикальными простенками между ними, с большими квартирами по две штуки на этаж и с проездной аркой посередине, ведущей дальше во двор. Затем в 1932 г. его надстроили двумя этажами, протянув вертикали прежнего фасада выше, но уже с помощью одной лишь штукатурки. Арку заложили, а в квартирах сделали коммуналки. В таком виде дом простоял до 2002 года – после чего его реконструировали.

При реконструкции были сохранены все внешние стены здания 1912 года, и почти все что оставалось от скромного и строгого южного фасада, выходящего в сторону переулка. Парадную лестницу внутри заменили монолитной железобетонной конструкцией, объединяющей лестницу и лифт. Поэтому эркер южного фасада, включавший в себя часть лестничной клетки, убрали, заменив на вертикальный ряд сплошных витражей, освещающих новую лестницу. Этот фасад стал несколько более плоским и графичным, чем был. Заметим, что в остальном фасад остался очень похожим на прежний - даже оконные рамы сделаны темно-коричневыми, а не ярко-белыми, как нередко бывает.

С противоположной стороны дом, напротив, получил основательный новый выступ – кирпичный ризалит, увеличивший внутреннюю площадь квартир. Как и положено новообразованию, он имеет другой цвет и фактуру – старая часть дома желтовато-серая, новая – красно-кирпичная. В ней больше стекол – окна выше и шире и, кроме того, окнами по-конструктвистски заняты углы нового объема – таким образом, здесь квартиры получают максимум дневного света, который можно улучить на северной стороне. На уровне второго этажа устроен целиком остекленный полукруглый выступ – откуда открывается панорамный обзор прилегающего двора. Выдвигаясь во двор, ризалит стремится захватить еще чуточку пространства, выбрасывая, с промежутком с один этаж, закрытые консольные лоджии, оживляющие плоскость и добавляющие еще несколько метров.

Помимо переустройства лестницы, во время реконструкции были разобраны два надстроенных этажа 1932 года – и на их месте выстроены пять новых, четыре обычных и один аттиковый. Для того, чтобы воздать должное памяти разобранных двух этажей, в месте, где раньше здание заканчивалось, устроен карниз – выше него плиточная облицовка заканчивается, сменяясь штукатуркой.

Самый верхний этаж, украшен круглыми колоннами и отступает от плоскости фасада, с юга несильно, а с севера – значительно, образуя со стороны двора глубокую и удобную террасу, которая достанется владельцам самых роскошных верхних квартир. Эти два пентхауза будут двухъярусными, им принадлежат восьмой и девятый аттиковый этажи, упомянутая терраса и открывающиеся с нее виды на город – прямо и непосредственно в сторону Кремля. Остальные квартиры возвращаются к своим размерам эпохи модерна, с добавкой благодаря пристроенному ризалиту. Можно сказать, что доходный дом буквально возродился в удвоенном размере, для того, чтобы стать частью элитной застройки возобновленного капитализма.

Получившееся здание, совершенно очевидно, относится в разряду реконструкций с расширением. Однако в ряду себе подобных оно выделяется редкостным спокойствием и целостностью архитектурного решения проблемы, которое представляет из себя очень аккуратный симбиоз остатков подлинного образца рационального модерна, стилизации под него же, элементов очень сдержанного постмодернизма – его представителями выступают колонны аттикового этажа и приемов архитектуры конструктивизма – в виде угловых окон. За стилизацию отвечают прежде всего чугунные решетки с геометрическим орнаментом пересекающихся линий, удачно сочетающие простоту и ажурность. Они ограждают верхние террасы и все высокие окна, начинающиеся от пола, совмещая таким образом функцию обеспечения безопасности и главного элемента фасадной декорации. Очень похожими ограждениями украшена новая лестница, которая в общих чертах повторяет формы старой. Решетки появляются перед выстроенными в вертикальную линию лестничными витражами на южном фасаде и почти перед всеми окнами на северном, связывая дом, состоящий из двух частей, старой и новой, в одно целое. Рассматривая сочетание решеток, аккуратной геометрии кирпича и старой плитки, консолей, угловых окон и колонн вверху, можно сказать, что объединение происходит где-то на уровне стиля ар-деко – что отчасти логично, потому что если сложить начало XX и XXI века, а потом разделить пополам, то примерно так и получится.

Южный фасад до реконструкции
Южный фасад до реконструкции
проект реконструкции . Вид с северо-запада
проект реконструкции . Вид с северо-запада
Северный фасад до реконструкции
Северный фасад до реконструкции