|
Отчет о презентации архитектуры группы Maxwan в Москве
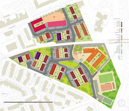
De Gasperi Housing development - концептуальное предложение по застройке 5,2 гектаров на периферии Неаполя
В путеводителе «Арх Москвы 2007» было вполне конкретно указано: лекция нидерландской архитектурной группы Maxwan будет проходить 30 мая с 21:00 по 22:00 в клубе «Красный Октябрь», расположенном в одном из корпусов одноименной фабрики (карта с отмеченным на ней местоположением клуба прилагалась)… В итоге же оказалось, что клуб «Красный Октябрь» - это вовсе не клуб, а фабричное помещение (ни кофе, ни минеральной водичкой никто не торговал, столики отсутствовали), временно обустроенное под лекционный зальчик, довольно-таки обшарпанное, с эдаким макабрическим налетом в духе поздних фильмов Д. Линча (вспомните логово Бена из «Синего бархата», Черный Вигвам из сериала «Твин Пикс» или клуб Silencio из «Малхолланд драйв»): стены затянуты красной тканью, освещение тусклое, где-то посередине помещение перегораживает стенка с проемом около трех метров в ширину и двух с половиной в высоту – ну чисто сцена в театре. 
Сразу признаюсь, я опоздал на десять минут – то есть пришел в 21:10. Но, само собой разумеется, я рассчитывал увидеть как минимум 70% презентуемого материала. Не тут-то было: по неведомой мне причине лекция началась в 20:45 и на момент моего прибытия близилась к завершению, так что я успел застать только самую нудную часть – «вопросы зала». Я попенял на халтурность составителей программы «Арх Москвы» и жутко занервничал – чего ж я в итоге писать-то буду! Однако куда больше меня удивило другое. По приходе, открыв металлическую дверь «клуба», я увидел у экрана нетерпеливо потрясающего микрофоном куратора «Арх Москвы» Б. Голдхоорна – не группу Maxwan или хотя бы ее представителя, а почему-то именно господина Голдхоорна. Я, само собой, немного опешил… Но потом, пробираясь через передние ряды к галерке, заметил скромного, аскетического вида японца, примостившегося на лавочке у стенки – справа от замученного духотой куратора. Как вскоре выяснилось, это и был представитель Maxwan. Он вещал что-то такое еле слышное – впрочем, слушатели тоже не отличались громогласностью и внятной дикцией, когда задавали ему свои вопросы. Барт Голдхоорн исполнял роль переводчика с английского (и на английский, в зависимости от того, кто говорил) – говорил не без запинок, но при этом, пожалуй, громче всех. Вероятно, именно из-за этого у меня и сложилось обманчивое впечатление, что Барт Голдхоорн и есть главный «виновник торжества»: то есть будто бы он не просто главный редактор «Проекта России» и соучредитель остальных «Проектов…», но – по неясной причине – еще и член группы Maxwan. В зале было невыносимо душно – кондиционеры не работали, все присутствующие примерно раз в три минуты протирали салфеточками вспотевшие лбы и затылки, мечтая, по-моему, только об одном – поскорее выбраться наружу. Впрочем некоторые, самые бессовестные, реализовывали эту мечту еще до окончания лекции… Каждый раз, когда очередной пытливый слушатель тянул руку и задавал вопрос господину Хироки Матсура (так зовут представителя Maxwan), в зале повисала невероятно напряженная атмосфера – люди, по своей деликатности не решавшиеся покинуть зал, нервно трясли коленками и шепотом проклинали вопрошающего. 
Когда все закончилось, присутствующие, жадно глотая воздух, хлынули на улицу беспорядочным потоком, не обращая никакого внимания на Хироки Матсура и Барта Голдхоорна. Японец, явно ожидавший куда большего внимания к своей персоне, как-то сник и принялся с мрачным видом собирать свой лэптоп в сумку. И тут к нему подхожу я в надежде выпросить хоть какие-нибудь материалы из демонстрировавшихся на лекции. Только я сунул ему свою флэшку и промямлил что-то там такое по-английски, как он сразу же оживился и стал рассказывать мне о том, что они очень молодое бюро, что их начальнику всего 45 и что они устремлены в будущее дальше некуда… Понятное дело, ни о чем таком я его не спрашивал, но мне было приятно, что он на меня хоть как-то среагировал. Я-то думал, что незамедлительно буду послан на три буквы. 
Maxwan называют себя «архитекторы и урбанисты», но при этом урбанистического – то есть градостроительного – в их творчестве, судя по всему, куда больше чем объемно-пространственного. Первый проект, показанный на лекции – судя по последовательности, в которой размещались файлы в переписанной мне господином Матсурой папке – называется De Gasperi Housing development: это концептуальное предложение по застройке 5,2 гектаров на периферии Неаполя. На данный момент там располагается совершенно кошмарный район, состоящий из грязных, серовато-коричневой расцветки, пятиэтажек, во дворах у которых практически нет зеленых насаждений. Половина тамошних улиц заканчивается тупиками. Все это сильно напоминает российскую глубинку, где все сплошь хрущевки и покосившиеся деревянные сарайчики и где единственным намеком на общественное пространство служит какой-нибудь дом культуры или сельский клуб, в который и зайти-то страшно. С тем лишь отличием, что здешние жители предпочитают травиться не алкоголем, а тяжелыми наркотиками (на одной из переписанных мне фотографий была запечатлена обочина, усеянная огромным количеством шприцов). Идея Maxwan заключается в том, чтобы сделать все проезды сквозными и, таким образом, «облегчить» пространство в пределах района. Вместо существующих кривеньких, расставленных тот тут то там домиков, предлагается возвести трех-двухэтажное блокированное жилье, никак не изгибающееся в плане и имеющее уступчатую форму. Домики эти будут объединены в группы (по три-четыре штуки в каждой), центр которых будет формировать небольшой дворик – к нему же будут обращены террасы блокированного жилья. Предполагается также построить школу и почту, к каковым будут примыкать соответственно парк с теннисным кортом и баскетбольной площадкой и маленькая piazza. 
Сомневаюсь, что все эти блага смогут отвлечь неаполитанских пролетариев от наркотиков – город-то портовый, что тут поделаешь. Но в том, что жизнь местного населения хоть в каких-то пунктах после всех планируемых изменений заметно улучшиться, я уверен на все сто.
Следующий проект куда более амбициозный – территория, предназначенная к застройке, здесь составляет 180 гектаров. Это промышленная зона на берегу реки Темзы в северо-восточной оконечности Лондона, находящаяся в районе Barking Riverside, с крайне примитивной инфраструктурой (я бы даже сказал, что ее там почти нет – за ненадобностью), образуемой улицами River road и Renwick road, имеющими всего две полосы движения. Проект реконструкции промышленной зоны на берегу реки Темзы в северо-восточной оконечности Лондон в районе Barking Riverside
Первая улица идет вдоль набережной и, поворачивая на север, плавно переходит во вторую – Maxwan же решили продлить River road до пересечения с Choats road, огибающей промзону на северо-востоке. Благодаря этому River road будет как бы насквозь «пронизывать» район, соединяя его западную и восточную части. На юге перспективу Renwick road будет замыкать т-образная пристань, один из мостков которой увенчан таинственным стеклянным сооружением сферической формы, частично напоминающим такой, знаете, новогодний сувенир с какой-нибудь пластиковой или оловянной игрушечкой внутри, который если встряхнуть, то будет забавная имитация снежной вьюги, и частично аудиторию Института библиотековедения им. Ленина И. Леонидова. Однако самое любопытное в этом градостроительном проекте – это то, как решена транспортная связь с центром Лондона: прямо над River road предполагается соорудить т. н. Dockland Light Railway – рельсовую эстакаду, поднятую над землей на высоту где-то около трех этажей и тянущуюся прямиком из Сити. 
Все это, конечно, здорово и ультрасовременно. Но представьте себе картину: люди, живущие в домах, выстроенных вдоль River road, будут с утра, потягиваясь и зевая, выходить на прекрасные террасы, столь заботливо предусмотренные для каждой квартиры Maxwan, и созерцать размалеванные лондонскими панками вагоны, с отвратительным лязгом проносящиеся мимо их тихого обиталища. Как-то неудобно, не правда ли? Сразу вспоминается начало фильма "Энни Холл" В. Аллена, когда он описывает свое детство: "Маленьким мальчиком я жил в доме под русскими горками – никто мне до сих пор не верит, когда я рассказываю – но, клянусь, все так и было. Наверное, из-за этого я такой нервный". 
Ну, ладно, если забыть о тех беднягах, которые вынуждены будут соседствовать с рельсовой эстакадой, и взглянуть на затею Maxwan более широко, не мелочась, то картина вырисовывается очень даже привлекательная. Вся River road облеплена общественными сооружениями и парками – как на даче, в летнюю пору, клейкая лента мухами (европейцы, я уже заметил, очень любят, когда общественная зона не "одна большая", а когда она дезинтегрирована, т. е. идет вкраплениями)… И это, без сомнения, очень хорошо. 
Сам район поделен на восемь зон, которые практически ничем друг от друга не отличаются – разве что цветовым обозначением (есть розовая, желтая, оранжевая и т. д.) и компоновкой домиков (почти все они как шинкованная сарделька – только кое-где кусочки этой "сардельки" образуют на плане квадратный узор, где-то водорослевый и т. д.). Такое специфическое расположение домиков Maxwan объясняют своим стремлением как-то "оживить" тип среднестатистического британского таунхауса, которому свойственны мрачность и монотонность. При этом, что парадоксально, архитектура предвидится по-прежнему совершенно одинаковая – разнотипным будет само пространство… Maxwan хотят по максимуму искривить улицы и прорубить между домами эдакие "просветы", которые бы визуально соединяли проезжую часть и зеленую зону внутриквартальных двориков… Нет, водителям от таких новшеств, без сомнения, рулить будет куда комфортнее прежнего – улицы украсятся многообразными поворотиками, зачастую неожиданными и от того чуть-чуть опасными, но чего ж с того, в Европе правила блюдутся на совесть; через упомянутые "просветы" можно будет лицезреть играющих детей – правда, и дети будут вынуждены смотреть через эти "просветы" на затор и слушать бибиканье и ругань… Но это ничего, если брать за эталон Бразилиа О. Нимейера, выходит – "водители – все, пешеходы – ничто". А с таким тузом как О. Нимейер спорить трудно… Тем не менее, как всегда, жилье просто-таки утопает в зелени – и это, надо отдать должное Maxwan, отчасти спасает ситуацию с "просветами" (отчасти, потому что некоторые кварталы нет так уж часто засажены растительностью): деревья местами вполне эффективно отгораживают дворы от проезжих частей. 
Странно, в Италии, где все кривое – Maxwan стараются как можно больше выпрямить, а в Англии, где все наоборот прямехонькое – искривить… Архитектура от противного? Хотя, если людям будет от этих нововведений лучше житься – почему бы и нет. Одним из последних проектов, продемонстрированных господином Матсурой, было здание гаража (если не ошибаюсь) с шутливым названием Nuilding (вместо Building): это такая штуковина с зубцами на фасадах, про которую, если б меня вовремя не предупредили, что это дом, я б решил, что это ваза или насадка для пылесоса… вот вам пример того, о чем писал Леон Криер. Классику сколько угодно можно обвинять в формализме, но модернизм и того хуже – он порой стилистически настолько буквально воспроизводит какие-то атрибуты бытовой жизни, что перестает походить на архитектуру. 
Вообще я постепенно начинаю приходить к тому, что мне очень нравится западное градостроительство, и совершенно по барабану западная архитектура – не то чтобы она мне не нравилась… не трогает она меня. А архитектура должна трогать, как и любое искусство. Все чаще вспоминаю фразу одного моего учителя, который по возвращении из Швейцарии сказал следующее: "Был там неделю, изъездил почти все – жить в тамошних городах потрясающе комфортно, пространство организовано на ура, но в них абсолютно нечего смотреть. Все сплошь стекляшки и деревья". Правда, мой знакомый ответил на это: "Правильно, поэтому все и хотят жить в Европе, а смотреть ездить к нам".
|