Размещено на портале Архи.ру (www.archi.ru)

28.03.2012

Ограненная природа

Анна Мартовицкая, Юлия Тарабарина
Объект:
Гостиница в Подмосковье
Адрес:
Россия, Московская область,
Архитектор:
Вера Бутко
Антон Надточий
Мастерская:
ATRIUM
Авторский коллектив:
Архитекторы: Антон Надточий, Вера Бутко, Александр Малыгин, Андрей Сизюк, Петр Алимов, Светлана Харитонова, Юлия Раннева, Николай Филатов
Конструктор: Людмила Буянова

На юго-западе Московской области архитектурная мастерская «Атриум» строит частный отель. Для того, чтобы визуально уменьшить довольно крупный объем, архитекторы использовали свой любимый прием – сделали здание частью рельефа.

Гостиница в Подмосковье
Гостиница в Подмосковье
© ATRIUM
«Самой, что ни на есть, стандартной функции мы постарались придать нестандартную трактовку, решив отель как взаимодействие отдельных объемов и форм. Это особенно уместно именно для архитектурного объекта в природе» – объясняет автор проекта Антон Надточий.

Поскольку участок, выделенный под строительство гостиницы достаточно большой, здание фактически проектировалось в «лесу», с привязкой лишь к природному окружению. При определении ее местоположения и конфигурации архитекторы в основном учитывали растущие здесь вековые дубы, сохранение которых и они, и заказчик видели обязательным условием. В результате план комплекса имеет форму сложного многоугольника, вписывающегося между стволов деревьев.

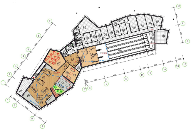
Площадь гостиницы на 25 номеров составляет 3500 квадратных метров, и ее программа насыщена большим количеством общественных функций. Последнее потребовало организации полноценного подземного этажа – иначе сооружение оказалось бы слишком высоким для своего контекста. Кроме технических помещений ниже уровня земли размещена «вечерняя» функциональная часть: кинотеатр, бильярдная зона с караоке и баром, сигарная комната с аудиофильским оборудованием и боулинг на четыре дорожки. В общем, все те форматы проведения досуга, которые не требуют естественного освещения. На первом этаже также общественная функция: входной вестибюль с зоной ресепшн, камином, роялем и диванными группами, ресторан, игровая комната для детей, небольшой офисный блок, а также гараж для снегокатов и электромобилей. Лишь на втором этаже разместились три отдельных гостевых «домика» – каждый на 5-10 номеров и открытые озелененные террасы.

Почерк Веры Бутко и Антона Надточего в этом проекте угадывается сразу. Одна из его характерных особенностей, помимо четкой формальной структуры и сложных объемных взаимодействий – тесное соединение, если не сказать сплав искусственного и естественного. Бетонный стилобат с большими террасами, словно вырастает из земли, а на нем стоят, несколько выдаваясь за его границы три объема жилых блоков. «Домики» наверху образованы из своеобразных небольших скоб, словно кто-то взял деревянный лист и согнул. Они отвернуты друг от друга в разные стороны с тем, чтобы из окон номеров были видны окрестные пейзажи, а не соседи. Боковая часть каждой скобы слоистая – структура из меди и дерева. А за ней открытые галереи, позволяющие гостям свободно перемещаться по крыше стилобата. Ее предполагается благоустроить: здесь будут лавочки и фонари, а также предусмотрены специальные мероприятия для посадки деревьев.

Четыре пологие лестницы соединяют кровлю стилобата с уровнем земли, позволяя гостям отеля выходить из номеров в лес, минуя ресепшн и центральный холл. С последними каждый из блоков связан собственной внутренней лестницей – центральная, идущая над стойкой ресепшн, выполнена из дерева и стекла, а те, что ведут в боковые корпуса, подобны массивным скульптурам из-за отделки черным металлом.

В свою очередь формально стилобат представляет собой складку сложной геометрии с прорезями, отгибами и несовпадающими очертаниями горизонтальных плоскостей (своего рода фолдинговая архитектура). Расстояние между ними заполнено большеразмерным остеклением. Эта складка вмещает несколько функциональных объемов, которые местами ее «протыкают»: выходят на фасады, проваливаются в подвал. Все это создает эффектные пространственные ракурсы, усиливает игру между «внутренними» и «внешними» пространствами впуская окружающий ландшафт внутрь здания.

Взаимопроникновение экстерьера и интерьера следует логике используемых форм. Пол складки переходит в стену, а стена, меняя свое направление, превращается в потолок, и архитекторы мастерски обыграли эту трансформацию плоскостей с помощью материалов. Экологические и природные фактуры: дерево в облицовке и керамический лемех в фасадах и интерьере – сочетаются с промышленными, хотя и вполне натуральными стеклом, металлом и декоративным бетоном, создавая теплую, насыщенную воздухом и светом атмосферу.

Однако, стилобат хоть и выглядит тектоническим образованием в среднерусских лесах, не превращается ни в травянистый холм (что сделали бы радикальные экологи), ни в предельно лаконичный параллелепипед (как поступили бы крайние минималисты). Ломаные линии и плоскости как будто бы носят следы борьбы «дикой» природной материи с человеческим упорядочивающим вмешательством.

И тут, наверное, можно говорить об историко-культурном подтексте проекта, который состоит их двух частей: одна будет понятна для состоятельного гостя, объездившего Европы и решившего для разнообразия наведать подмосковные просторы – это альпийские шале. Три деревянных объема на белом косоугольном основании совершенно определенно напоминают избушки горнолыжников на франко-итало-швейцарских склонах, и таким образом, делают гостиницу узнаваемой для людей, привыкших отдыхать в Шамониксах, а сам комплекс, превращая в альпийскую деревню. Образная альтернатива – среднерусские городские дома XVIII века, часто состоящие из беленого кирпичного подклета и деревянного верха. Эта ассоциация возникнет у гостей, предпочитающих Суздаль, Ростов и другие среднерусские города.

Безусловно, никакого прямого сходства с названными прообразами здесь нет: ни фахверка, ни оцилиндрованных бревен. Архитекторы создали уникальный, органичный именно для этого места продукт, и «огранили» по-своему, исполнив собственным, узнаваемым и определенно актуальным, современным архитектурным языком.  Правда, «Атриум» литературные трактовки, как правило, не жалует, но тем интереснее, когда они все равно возникают.
Гостиница в Подмосковье
Гостиница в Подмосковье
© ATRIUM
Гостиница в Подмосковье
Гостиница в Подмосковье
© ATRIUM
Гостиница в Подмосковье
Гостиница в Подмосковье
© ATRIUM
Гостиница в Подмосковье
Гостиница в Подмосковье
© ATRIUM
Гостиница в Подмосковье
Гостиница в Подмосковье
© ATRIUM
Гостиница в Подмосковье
Гостиница в Подмосковье
© ATRIUM
Гостиница в Подмосковье
Гостиница в Подмосковье
© ATRIUM
Гостиница в Подмосковье
Гостиница в Подмосковье
© ATRIUM
Гостиница в Подмосковье
Гостиница в Подмосковье
© ATRIUM
План подвала. Гостиница в Подмосковье
План подвала. Гостиница в Подмосковье
© ATRIUM
План 1-го этажа. Гостиница в Подмосковье
План 1-го этажа. Гостиница в Подмосковье
© ATRIUM
План 2-го этажа. Гостиница в Подмосковье
План 2-го этажа. Гостиница в Подмосковье
© ATRIUM
Разрезы. Гостиница в Подмосковье
Разрезы. Гостиница в Подмосковье
© ATRIUM