Размещено на портале Архи.ру (www.archi.ru)

24.08.2011

Дом логистиков

Анна Мартовицкая, Юлия Тарабарина
Объект:
Гостиница с офисными помещениями в Зеленограде
Адрес:
Россия, Москва. промзона «Северная», 2-ой Западный проезд, вл. 3
Мастерская:
ПТАМ Виссарионова
Авторский коллектив:
Ю.Г.Виссарионов, К. М.Савкин, Я.В.Черниговский и др.

ПТАМ Юрия Виссарионова спроектировала здание гостиницы с офисами в Зеленограде.

Гостиница с офисными помещениями в Зеленограде © ПТАМ Виссарионова
Гостиница с офисными помещениями в Зеленограде © ПТАМ Виссарионова
Этот комплекс носит статус «приобъектного», то есть построенного на территории предприятия и предназначенного исключительно для «внутреннего пользования». Однако столь утилитарное назначение не остановило авторов проекта от поисков яркого и динамичного архитектурного образа здания.

В роли предприятия в данном случае выступает Московский международный мультимодальный центр – масштабный логистический комплекс, организующий хранение и транспортировку самых разных материалов и товаров на грузовых поездах и машинах. Соответственно, и обстановка вокруг сугубо производственная – это самая что ни на есть промзона, с одной стороны «растворно-бетонный узел», с другой грузовой двор железной дороги (площадка, где скапливаются контейнеры, снятые с поездов). На территории, где планируется построить гостиницу, раньше был асфальтовый завод, а после постройки ее окружат новые стоянки для контейнеров, склады и парковки грузовиков – словом, это гигантский промышленный узел, живущий по собственным законам и правилам, и попадают сюда только люди, для которых логистика и грузоперевозки – работа.

Этим, наверно, в первую очередь и объясняется функциональная программа комплекса, который спроектировала ПТАМ Виссарионова. Будущее здание, хоть и называется гостиницей, состоит в основном из офисов (из 8,5 тысяч квадратных метров на гостиницу приходится всего 811, тогда как на рабочие помещения больше 5 тысяч). По сути, небольшой блок с уютными номерами впаян в тело конторского помещения, а входы в офисы и гостиницу разведены по разные стороны здания для того, чтобы ночующие дальнобойщики и руководящие ими менеджеры не пересекались без необходимости. Архитектура комплекса, с одной стороны, тоже сугубо деловая: прямоугольные объемы и широкие полосы окон напоминают классический модернизм 1970-х годов, все заводские и институтские здания, которые были в изобилии построены в то время. С авторами проекта трудно не согласиться: подобное решение как нельзя более уместно в промышленных условиях, – однако при более внимательном знакомстве с проектом  оказывается, что брутальность и лаконизм модернизма архитекторы органично дополнили элементами хай-тека.

Главный фасад здания задуман не прямым и плоским, как это было принято в 1970-е, а изогнутым. Точнее, стеклянная материя с длинными горизонтальными лентами окон, из которой состоит все здание, здесь разделена на три слоя, аккуратно обернутых по бокам и сверху тонкой бетонной полосой (так буритто заворачивают в тонкую лепешку, а еще ее так и хочется сравнить с нескончаемой лентой дороги). Исключение составляет первый этаж: он полностью остеклен и прозрачное полотно лишь кое-где расчерчено тонкими вертикалями – здесь расположены вестибюль и столовая (с винтовой лестницей, ведущей на антресольный этаж).

Сверху на стеклянную полосу положен трехэтажный «брусок», и его «нос» (примерно треть от общей длины) притянут к земле. За счет этого он частично выталкивает объем первого этажа в противоположную сторону – вестибюль и столовая, получается, существуют как бы слегка автономно от всего комплекса, а динамично скошенный торец придает этой части здания отчетливое сходство со скоростным поездом. Верхние этажи сформированы похожим «бруском», только на этот раз он не просто положен поверх среднего, а вползает на него, как змея, положившая на камень треугольную голову. В довершение ко всему архитекторы слегка разворачивают эти объемы относительно друг друга, благодаря чему здание приобретает ярко-выраженную тектонику и в профиль, и анфас. Велик соблазн вспомнить Заху Хадид, почти в каждом здании которой присутствует подобное сплетение полос. Впрочем, у Виссарионова изгибы не столь радикальны, а главное, эта «волна» всецело продиктована контекстом. По замыслу авторов проекта, фасад гостиницы чутко реагирует на свое непосредственное окружение: вокруг него днем и ночью разъезжают грузовики, воздух постоянно сотрясается от их огромной массы и рычания двигателей, и изгибы стеклянных полос фасада «отзываются» на эти потоки.

Объем, сплетенный из трех изогнутых «полос» – это парадная, фасадная половина здания. Дворовый блок представляет собой прямоугольный параллелепипед, также расчерченный горизонтальными лентами окон. На втором этаже этой части здания как раз и расположена гостиница, а в торцах между двумя объемами спроектированы лестницы – они утоплены глубоко в боковые фасады, поэтому в плане (особенно на втором этаже) комплекс напоминает нечто среднее между буквами «Н» и «К».

Рядом с плоским прямоугольным ангаром Мультимодального центра и предсказуемой «коробкой» ремонтной мастерской здание гостиницы-офисов выглядит представительным и современным. Стеклянные стены, яркая белая оболочка и скульптурная пластика главного объема превращают его в парадный фасад всего логистического комплекса.
Гостиница с офисными помещениями в Зеленограде © ПТАМ Виссарионова
Гостиница с офисными помещениями в Зеленограде © ПТАМ Виссарионова
Гостиница с офисными помещениями в Зеленограде © ПТАМ Виссарионова
Гостиница с офисными помещениями в Зеленограде © ПТАМ Виссарионова
Гостиница с офисными помещениями в Зеленограде © ПТАМ Виссарионова
Гостиница с офисными помещениями в Зеленограде © ПТАМ Виссарионова
Гостиница с офисными помещениями в Зеленограде © ПТАМ Виссарионова
Гостиница с офисными помещениями в Зеленограде © ПТАМ Виссарионова
Гостиница с офисными помещениями в Зеленограде © ПТАМ Виссарионова
Гостиница с офисными помещениями в Зеленограде © ПТАМ Виссарионова
Гостиница с офисными помещениями в Зеленограде © ПТАМ Виссарионова
Гостиница с офисными помещениями в Зеленограде © ПТАМ Виссарионова
Гостиница с офисными помещениями в Зеленограде © ПТАМ Виссарионова
Гостиница с офисными помещениями в Зеленограде © ПТАМ Виссарионова
Гостиница с офисными помещениями в Зеленограде © ПТАМ Виссарионова
Гостиница с офисными помещениями в Зеленограде © ПТАМ Виссарионова
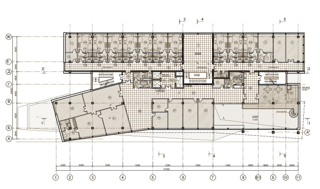
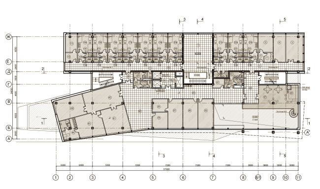
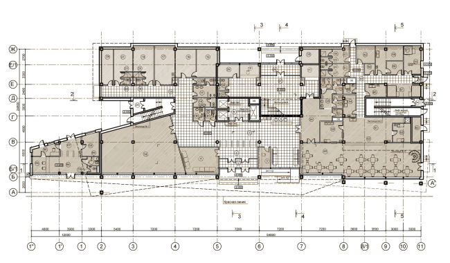
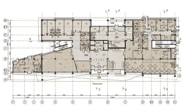
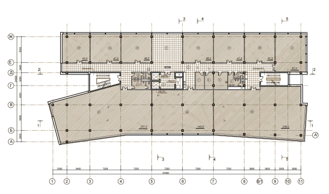
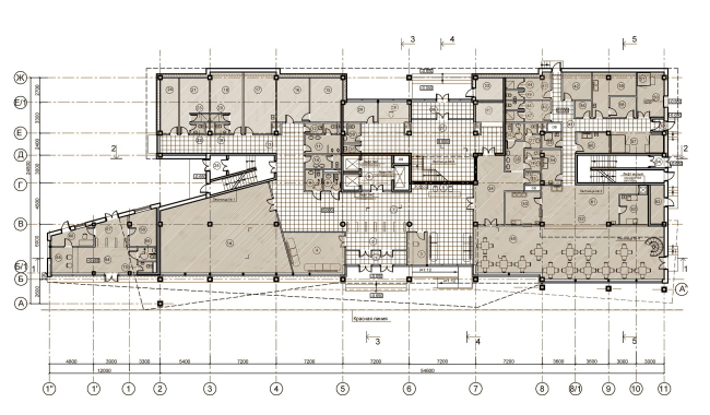
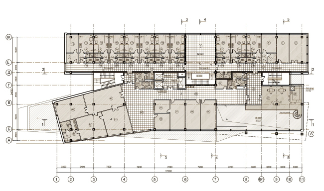
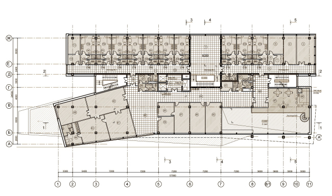
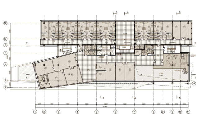
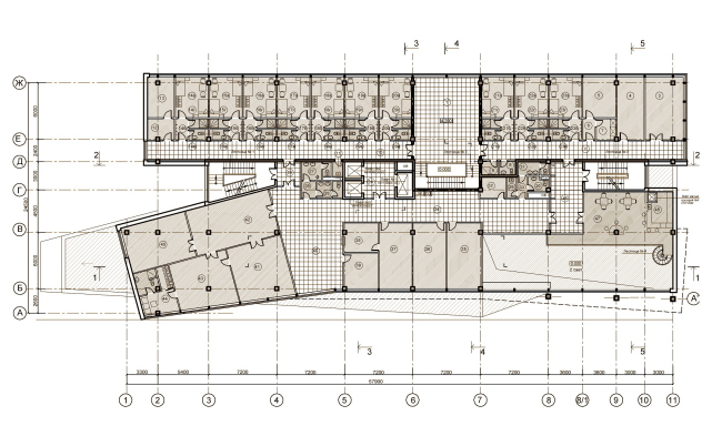
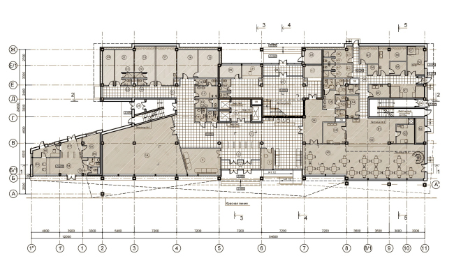
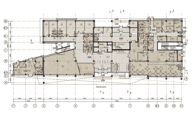
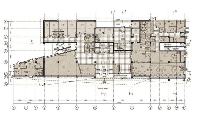
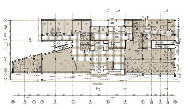
План 2 этажа
План 2 этажа
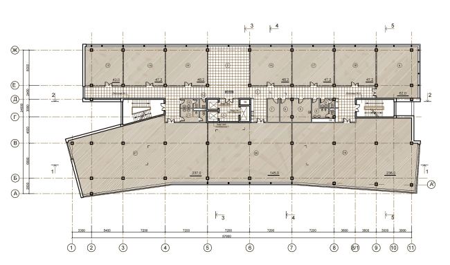
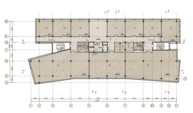
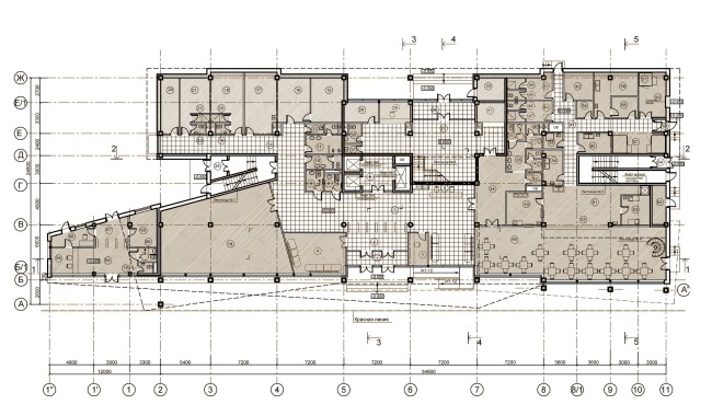
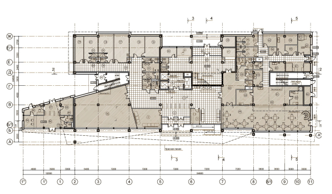
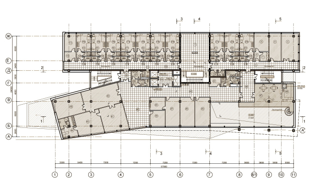
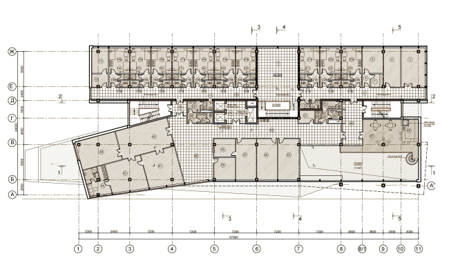
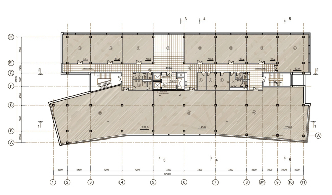
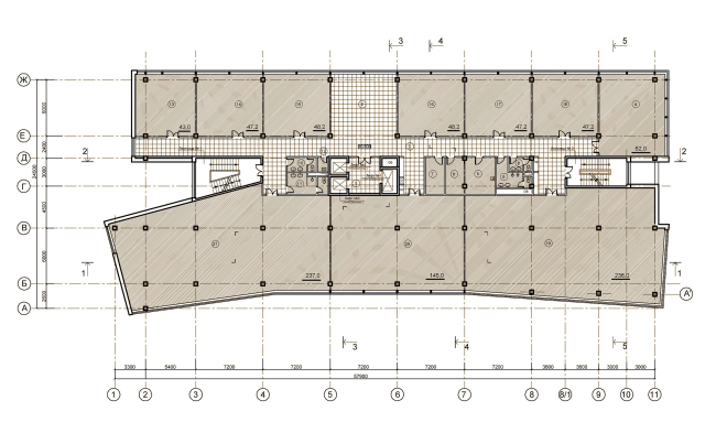
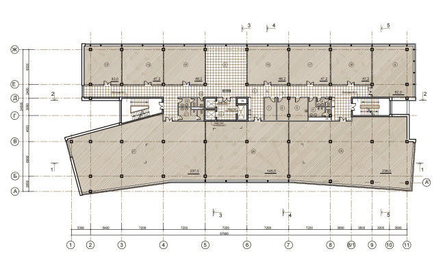
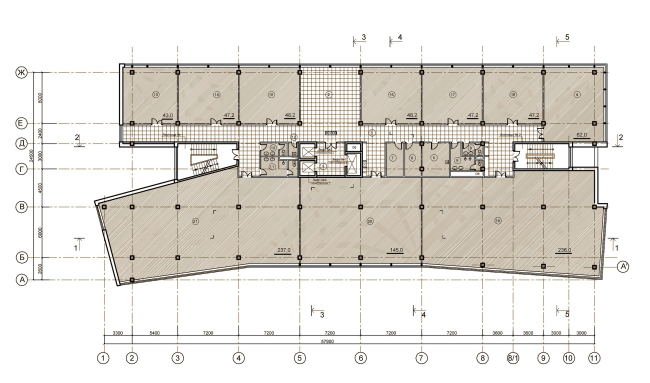
План 4 этажа
План 4 этажа
Продольный разрез
Продольный разрез