Размещено на портале Архи.ру (www.archi.ru)

05.09.2011

Кружевной ларец

Юлия Тарабарина
Объект:
Гостиница на Стрелке в Ярославле
Адрес:
Россия, Ярославль. Волжская набережная, 1
Архитектор:
Владимир Плоткин
Мастерская:
ТПО «Резерв»
Авторский коллектив:
Руководитель мастерской: В.Плоткин, ГАП: А.Бородушкин; архитекторы: А.Мансурова, А.Горелов, А.Лимаренко, Д.Кузнецов, А.Дулевич; инженеры: Ф.Каюмов, И.Кортышко, В.Андреев, В.Паненков

Здание гостиницы в историческом центре, на территории Рубленого города – Кремля города Ярославля, в проекте Владимира Плоткина напоминает белую шкатулку, сплошь покрытую ажурной резьбой. Находясь между двумя памятниками, оно не выступает ни за какие ограничительные линии, а найденные археологами остатки церкви конца XVII века превращает в музей.

Вид ночью
Вид ночью
В Кремль старинного города Ярославля можно попасть, идя по Волжской набережной мимо круглой «беседки Островского». Как раз при подходе к Кремлю Ярославль внезапно перестает быть городом, превращаясь в пустоватый парк с большим футбольным полем по правую руку. Однако это место – ядро исторического центра, здесь князь Ярослав Мудрый, по легенде, убил священного языческого медведя и основал город на мысу при впадении речки Которосль в Волгу. Сейчас о том, что мы попали в Кремль, напоминает только квадратная Волжская башня на речном склоне – стен нет (они были деревянными), не видно и валов. Здесь сохранились только Митрополичьи палаты (здание конца XVII века, в нем музей с неплохой коллекцией икон) и ампирная церковь Тихона с домом ее причта. Как раз между палатами и церковью девелоперская компания «Русрезорт» планирует построить элитную 5-звездочную гостиницу по проекту Владимира Плоткина.

Перед началом строительства заказчики провели охранные раскопки – на территории участка обнаружились фундаменты церкви Иоанна Златоуста (Шуйской Богоматери) 1690 года, взорванной в конце 1920-х годов. Поэтому план будущей гостиницы получился сложным: его можно представить себе в виде прямоугольника, из которого вырезали северный и южный угол – с одной стороны объем отступает от дома причта (с его статусом «выявленного памятника»), а с другой – обходит фундаменты церкви. Фундаменты (по ним хорошо прослеживается план трехапсидной церкви с одним южным приделом) планируется музеефицировать – то есть покрыть сверху слоем реставрационной кладки, защищающей их от дождя и разрушения. Вокруг остатков церкви Владимир Плоткин запланировал музей под открытым небом: небольшая площадка с фундаментами (из-за снятого археологами культурного слоя она ниже современного уровня улицы) будет ограждена с двух сторон каменными стенками, работающими в качестве музейных стендов с рассказом о месте и о памятнике. Из гостиницы этот «встроенный» дворик-музей можно будет рассматривать, как через витрины, через большие стеклянные стены. Похожим образом в средиземноморских гостиницах и ресторанах можно обнаружить во дворе или в стене то античную капитель, то ренессансную скульптуру.

Силуэт гостиницы Владимир Плоткин, как он сам признается, позаимствовал у старинных ларцов, высокие крышки которых, как известно, сужались кверху, образуя подобие трапеции. Форма ларца удивительным образом совпала с популярными в современной архитектуре фасадами, скошенными в верхней части прямо по линии окон. Этот прием, отдаленно и непрямо намекающий на традиционный силуэт скошенной кровли, в наше время довольно-таки популярен. Для современной архитектуры также актуально уподобление всего здания целиком чему-то исторически некрупному: известны дома-чемоданы, а здесь – дом-ларец. Вспоминается образное выражение одного известного профессора истории древнерусской архитектуры, который в шутку называл храмы конца XVII века «резными шкатулками». В данном случае это сравнение как будто бы воплотилось целиком.

Для того, чтобы «ларец» стал «резным», его фасады будут покрыты сеткой мелкого орнамента из качественного фибробетона. Вверху эта сетка будет сквозной, полупрозрачной (так и хочется сказать – как вуаль) и будет прикрывать глубокие лоджии от солнца, ловя при этом свежий ветер с Волги. На нижних этажах орнамент превратится в рельеф, отчасти уподобляя стены белокаменной резьбе. В качестве основы для орнамента Владимир Плоткин взял белокаменную «звездочку», найденную археологом Н.Н. Ворониным в 1940 году на месте ярославского Успенского собора (это место рядом, в ста метрах к югу, и занято гигантским недавно построенным собором архитектора Алексея Денисова). Удивительным образом эта связь с собором остается условной, а покрытый ковровым повторяющимся орнаментом дом находит другие аллюзии в ярославской архитектуре – так, фасады церкви Иоанна Предтечи в Толчкове сплошь усеяны изразцами и дробным рельефом мелких полуколонок.

Однако, несмотря на очевидный историзм, все приемы, использованные в этом проекте, более чем современны. Я бы даже сказала что этот историзм – самого свежего, актуального европейского пошиба. Найти для формы здания цельный исторический прообраз, причем именно не архитектурный прототип, а какой-нибудь предмет, выводящий нас за рамки матери всех искусств; обернуть простую форму орнаментальной вуалью (причем не просто так, а основанной на местом источнике, впрочем, переработанном до неузнаваемости). И наконец – устроить внутри музей, сохранить, показать все, что нашли археологи. Все это признаки историзма новейшего времени, даже точнее сказать XXI века. Его очень просто отличить. Старый консерватизм, растущий непосредственно из средневекового менталитета, стремится повторить все, «что было», буквально и как можно точнее, слиться с прежним целиком, душой и телом, до неотличимости. В XIX веке людям это, наконец, стало удаваться и как раз тогда-то оно и надоело, отчего и появилась новая разновидность историзма. Современный историзм дистанцируется от предмета – именно так ученый отстраняется от того, что он изучает, чтобы взглянуть на это со стороны. Современный историзм – научно-музейного свойства. Он показывает, сохраняет, консервирует и изучает, но не маскируется по старину целиком. Наоборот, он тщательно подчеркивает дистанцию между «тогда» и «сейчас», отчего и дистанция, временное расстояние, читается лучше. Словом, он не обманывает.

С того момента, когда в 2004 году начались раскопки на месте Успенского собора в Ярославле, я наблюдаю за этим местом достаточно пристально. Так вот, спешное строительство нового собора на 4000 прихожан, полностью уничтожившее все, что осталось от фундаментов XVII века – это пример того самого средневекового, диковатого консерватизма, получившего в свое распоряжение большие деньги и современные технологии (в итоге самая эстетически приемлемая часть нового здания собора это его пять глав, срисованных с Софийского собора в Вологде, а интерьер, главная часть храма, получился ужасно). Когда, говоря о строительстве собора, защитники ярославской старины упоминали о гостинице, которую должны построить в Рубленом городе, в самой охраняемой части, мне становилось жутковато – вот возьмут и застроят всю археологию чем-то большим и некрасивым. А этот тонкий, интеллигентный, аккуратный проект (все высоты сведены к минимуму, карнизы выровнены по соседям, от всех возможных лишних метров здесь отказались) – скорее радует, потому что он составляет совершенную противоположность соседней махине. Именно так и надо строить в историческом центре.

Другой вопрос – надо ли строить вообще – выходит за рамки чистой архитектуры. Можно строить, а можно и не строить, конечно же. Однако в древности защищенные стенами кремли были самыми густонаселенными и плотно застроенными частями городов. Правда в торговом Ярославле уже в XVII веке большее значение приобрела купеческая часть, посад, но и Кремль тоже был городом, а не парком. Он начал пустеть при Екатерине, когда перед западным фасадом собора была распланирована площадь с тремя лучами в духе классицистического градостроительства. Но окончательно ярославский Кремль очистили при советской власти, причем начали в 1930-е, а закончили в 1980-е: доломали здания XIX века и проложили бульвар Мира, превратив исторический центр города в парк. Так что, вероятно, оставаться совершенно пустым Кремлю совершено необязательно. Вопрос, скорее, в том, как именно будут выглядеть здания, которые могут там появиться – либо они, уничтожая подлинные останки исторических домов и храмов, подделаются под старину, либо это будет современная, но деликатная и неравнодушная к прошлому архитектура.

Здание планируется строить, используя новейшие технологии и материалы, качественно и очень быстро; процесс строительства продуман таким образом, чтобы причинить минимум неудобств жителям города. С другой стороны, новое здание должно принести городу также и пользу, так как эта гостиница – один из важных элементов реконструкции туристической инфраструктуры Золотого кольца, и будучи построена, она может принести Ярославлю дополнительный доход, сделать его более привлекательным для туристов. Тем более, что гостиница устроена по европейским стандартам, что в наших широтах встречается достаточно редко.
Развертка со стороны Волги - вид ночью
Развертка со стороны Волги - вид ночью
Развертка - вид Стрелки с Волги
Развертка - вид Стрелки с Волги
Церковь Иоанна Златоуста (Шуйской Богоматери) и ее окрестности на открытке начала XX века. Источник: ru.wikipedia.org
Церковь Иоанна Златоуста (Шуйской Богоматери) и ее окрестности на открытке начала XX века. Источник: ru.wikipedia.org
Проект музеефикации фундаментов церкви Иоанна Златоуста
Проект музеефикации фундаментов церкви Иоанна Златоуста
Стенд, представляющий основные источники, использованные архитекторами в поиске образа здания
Стенд, представляющий основные источники, использованные архитекторами в поиске образа здания
Резная деталь, найденная археологами при раскопках Успенского собора в Ярославле, и ставшая основой для орнаментального решения фасадов гостиницы
Резная деталь, найденная археологами при раскопках Успенского собора в Ярославле, и ставшая основой для орнаментального решения фасадов гостиницы
Фотомонтаж: вид от Успенского собора
Фотомонтаж: вид от Успенского собора
Фотомонтаж: вид с набережной
Фотомонтаж: вид с набережной
Фотомонтаж: вид с набережной
Фотомонтаж: вид с набережной
Интерьер вестибюля
Интерьер вестибюля
Ситуационный план на уровне квартала
Ситуационный план на уровне квартала
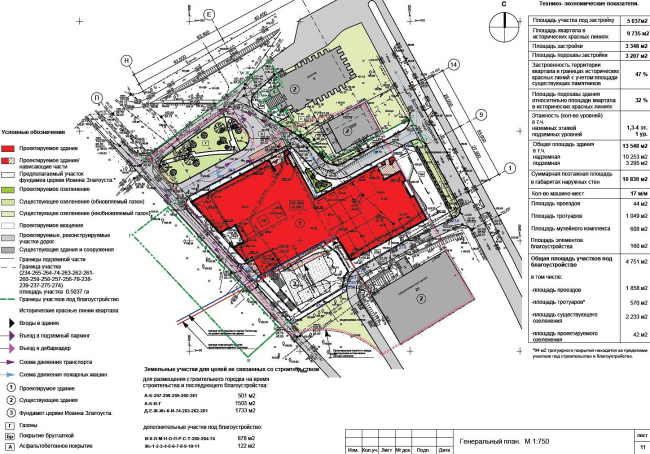
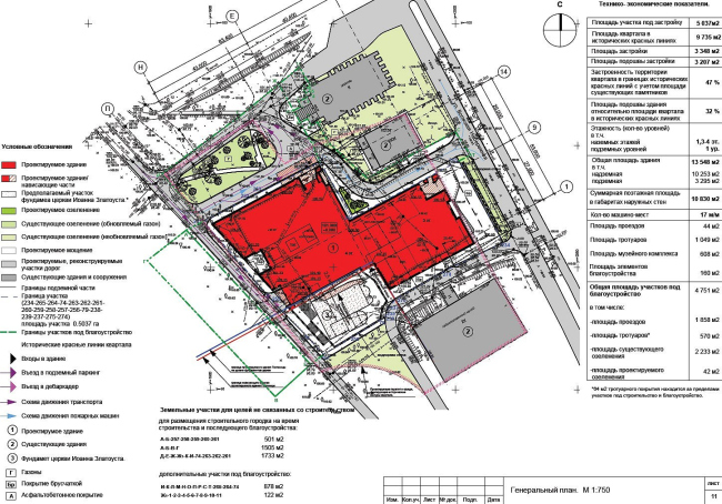
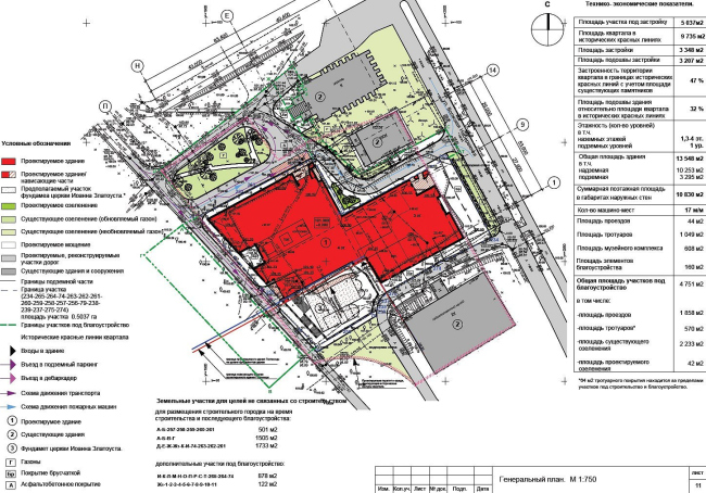
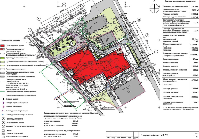
Генплан
Генплан
Графическая реконструкция Ярославского кремля на XVII век. В.Ф. Маров
Графическая реконструкция Ярославского кремля на XVII век. В.Ф. Маров