Размещено на портале Архи.ру (www.archi.ru)

16.08.2011

Помнящий об авангарде

Юлия Тарабарина
Объект:
Многофункциональный торговый комплекс на улице Вешняковская
Адрес:
Россия, Москва. ул. Вешняковская, 22
Мастерская:
ПТАМ Виссарионова
Авторский коллектив:
Ю.Г. Виссарионов, К.М. Савкин, А.М. Осипов и др. при участии М.И.Адиева

На Вешняковской улице закончено строительство торгового центра по проекту бюро Юрия Виссарионова.

Торговый центр расположился недалеко от станции метро Выхино. В 1960-е ее окрестности были сплошь застроены длиннющими дешевыми девятиэтажками, каких в Москве немало; затем пространство между ними заросло деревьями и район превратился в просторный и очень зеленый, что особенно приятно летом. А уже в наше время Выхино стало пересадочным пунктом для множества людей, приезжающих в Москву на работу. Это небогатое, как весь московский восток, а в часы пик еще и жутко напряженное место известно постоянными толпами, давлением усталого людского потока. В таком месте, где и живет, и постоянно перемещается ужасающее количество людей, нужны торговые центры, которые, как известно, в Москве стали главным средством культурного досуга и снятия стрессов. Однако здесь их не то чтобы много: ларьки у метро да коробка Русмаркета чуть поодаль, на круглой площади, когда-то названной по прихоти советского руководства именем генсека компартии Гвинеи-Бисау. Торговый центр, построенный бюро Юрия Виссарионова, расположен как раз между этой площадью и новой жилой башней, прикрывающей его со стороны метро. От метро до нового торгового центра 10 минут пешком.

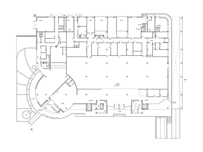
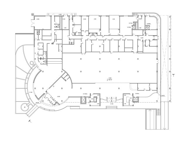
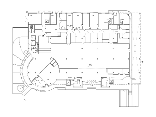
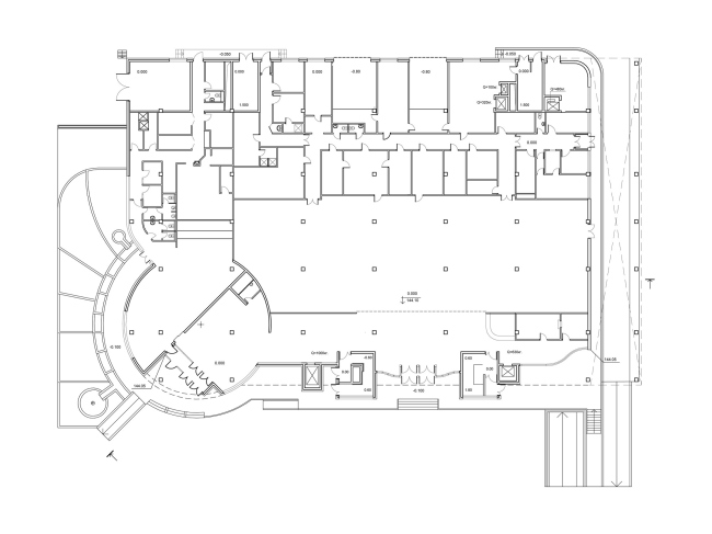
Архитекторы спроектировали торговый центр 8 лет назад, а построили только сейчас. Заказчик возводил его семь лет, последовательно решая организационно-финансовые вопросы. Это важно, потому что объясняет и не слишком большие размеры – общая площадь здания немногим меньше 9000 кв. метров, и не слишком броскую, но при внимательном рассмотрении заметную связь архитектурного проекта с неоконструктивизмом, популярным в начале 2000-х.

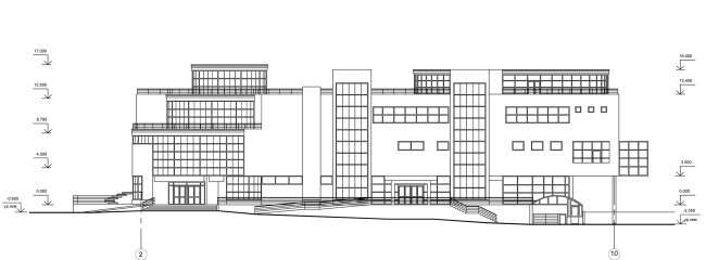
На память о предках-авангардистах указывают многие черты этого здания. Ленточные окна, то длинные, то прерванные пунктиром; точечные опоры первого этажа, две прямоугольные лестничные башни с вертикальными витражами, прорезающие протяженный объем со стороны Вешняковской улицы; круглые алюминиевые опоры, поддерживающие прямые углы, и наконец – один из самых читаемых мотивов, круглое окно над одной из таких опор, слева от «Макдоналдса». Надо сказать, что общая массивность объемов – в этом здании чувствуется материальность стены – позволяет местами сделать ее пластику  скульптурно-активной.

Самый пластичный акцент – трехступенчатая башня на входе, на углу со стороны метро. Это парадный вход, и каскадность круглых террас привлекает к нему внимание прохожих (и проезжающих по улице). К тому же округлая пирамида «отвечает» соседнему круглому дому-башне, и вместе они образуют своеобразные пропилеи при въезде внутрь квартала. Внутри ступенчатая башня не имеет перекрытий – это двухсветное пирамидальное пространство входного атриума; а в самом верхнем цилиндре планируется поместить выставочный зал, круглый и светлый из-за стеклянных стен. Оттуда можно будет выйти на крышу – на ней запланированы веранды кафе и даже спортивные площадки. Там, на кровле, посетителей ожидает еще один округлый объем, большой стеклянный овал, освещенный ленточными окнами со всех сторон – кстати говоря, тоже намекающий на прообразы классического авангарда.

За современность проекта отвечают треугольный эркер на тыльном (со стороны площади) фасаде, треугольные же фонари на крыше, и, пожалуй, волнообразно изогнутые на главном фасаде стены первого этажа (они добавляют строгому, в сущности, зданию неожиданной игривости) и на балконе второго этажа перед Макдональдсом. Следует заметить, что на макете здание выглядит более конструктивистским, чем получилось в реальности – в основном из-за экономного остекления и простой облицовки квадратными плитками. Для здания, которое строилось семь лет и наконец построилось, это небольшая жертва, хотя конечно же, для воплощения архитектурного замысла – в чем-то историзированного, в чем-то современного – теперь можно подобрать более подходящий материал. Впрочем, свершилось: среди вокзальной толчеи и старых панелей, из-под вывески Макдональдса, из-под неизбежной жизненной шелухи оптимистично и уверенно проглядывает любимый, бесценный, хотя и полузабытый гражданами великий русский авангард. Приживается, приспосабливается – от индустриализации, тяжелой промышленности, институтов и клубов переходит к торговым центрам, живет и прорастает в культурном контексте.
Торгово-развлекательный комплекс в Вешняках © ПТАМ Виссарионова
Торгово-развлекательный комплекс в Вешняках © ПТАМ Виссарионова
Первый вариант проекта (2001-2002)
Первый вариант проекта (2001-2002)