Размещено на портале Архи.ру (www.archi.ru)

22.06.2011

Ворота в лес

Юлия Тарабарина
Объект:
Дом в Коровино
Адрес:
Россия, Московская область, пос. Коровино
Мастерская:
PANACOM
Авторский коллектив:
Н. Токарев – директор, Е. Чернышова – ГАП, А. Леонович – архитектор

Большой дом-двухтысячник, спроектированный архитектурным бюро ПАНАКОМ для Подмосковья, велик, импозантен и наполнен разными, принятыми в наше время радостями, от бассейна до кинотеатра. Однако все эти радости жизни – это не более, чем тонко организованные пропилеи: вход в сосновый лес, который живет на второй половине хозяйского участка.

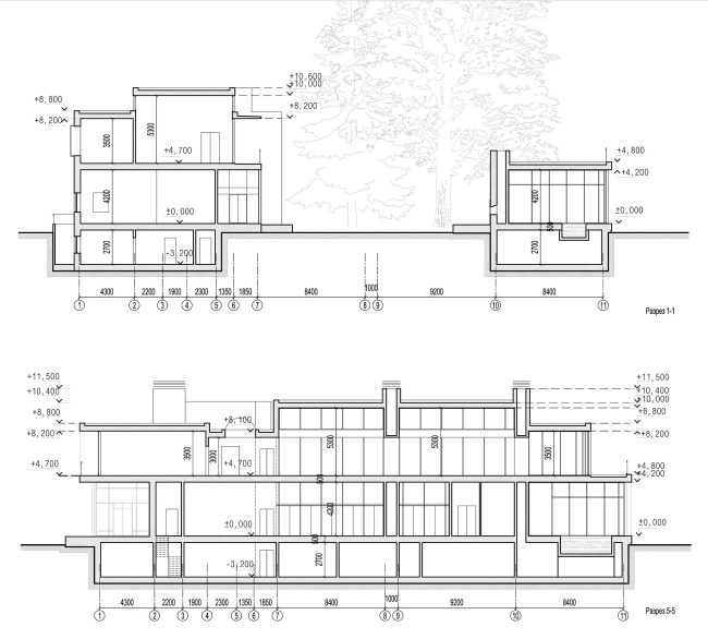
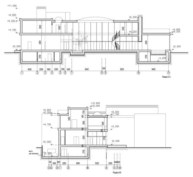
Дом в Коровино
Дом в Коровино
© PANACOM
Дом планируется построить в поселке недалеко от Москвы. Участок – чуть меньше гектара, широкой стороной он обращен к дороге и вторгается в лес острым треугольным носом, обеспечивая обитателям будущего дома собственный кусочек природы. Дом построят вдоль дороги. Треугольник будет служить небольшим (лесо)-парком. Деревья вырубать не будут, в глубине поставят беседку, проложат дорожки и все будет выглядеть похожим на небольшой кусочек английского парка среднерусской усадьбы.

Это, конечно, в том случае, если смотреть на лесную половину. Дом, спроектированный архитектурным бюро ПАНАКОМ, так и поступает: он стоит рядом с дорогой, но отворачивается от нее и «смотрит» на сосны. Так ведут себя сейчас многие новые подмосковные дома: часто, не имея возможности отодвинуться от дорог и поселковых улиц, они делают «парадный» фасад глухим, а парковый, повернутый к саду или, как в данном случае, лесу – превращают в сплошное панорамное окно. Дома отворачиваются от проезжающих мимо машин (и от проходящих людей), и открываются природе. В барских усадебных домах позапрошлого века, у которых чего-чего, а пространства было в избытке, случалось наоборот: дом стоял далеко, на каком-нибудь пригорке, отдельная дорога вела специально к нему, никто не ехал мимо, если кто-то и ехал, то – в гости, специально сюда, так что и дом не отворачивался, он встречал гостей парадным портиком, двором-курдонером, или хотя бы партером с цветами. С тех прошло много времени, и, поневоле стоя рядом с дорогой, дома вынуждены либо отгораживаться забором, либо отворачиваться. Иногда даже сами дома превращаются в забор, выставляя на «красную линию» закрытый индифферентный фасад. 

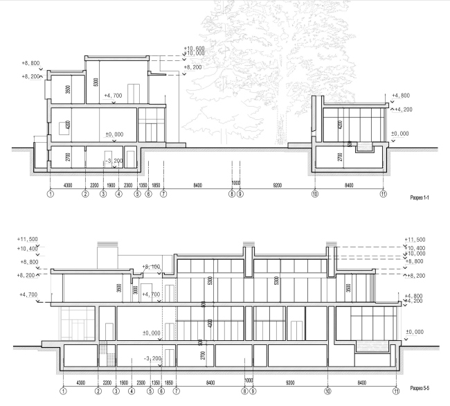
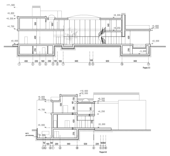
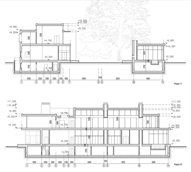
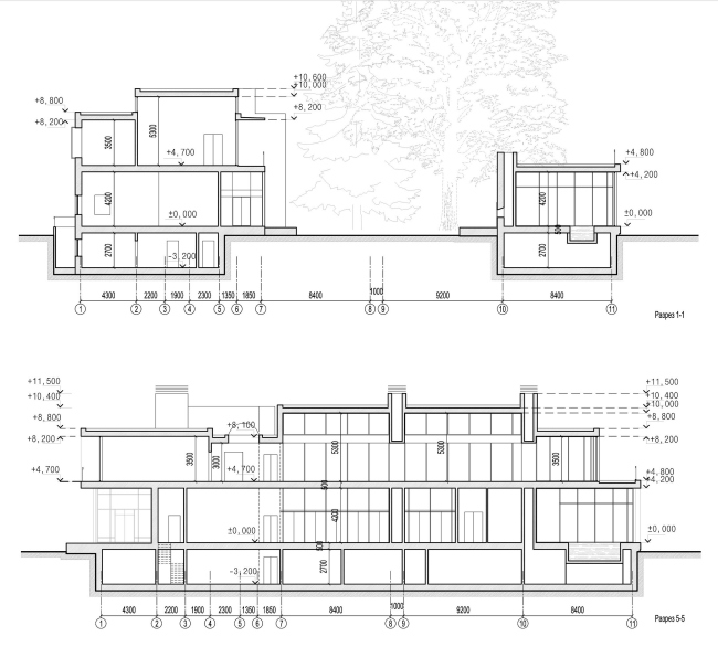
Здесь, однако, дом все же немного отступает от забора, оставляя место для узкого газона с «альпийскими» камнями; к тому же обращенный к улице фасад – это вовсе не глухая стена. Строго говоря, глядя на дом снаружи, то можно сказать, что он состоит из трех вещей: белых плоскостей перекрытий, каменных пластин стен и стекла. Стекло гнется на углах, а на крыше даже выгибается двумя пузырями куполов (больше над зимним садом и поменьше над кабинетом. Пластины камня – наоборот, строго-прямоугольные. Они щедро разбавлены вертикальными каменными «решетками», похожими на брутальные окаменевшие жалюзи. Все это распределено по фасадам асимметрично, но на стене, обращенной в сторону улицы, каменных пластин и решеток собралось больше, а со двора оказалось больше стекла. Кажется, что вот сейчас хозяин нажмет «умную» кнопку – и стены придут в движение, решетки сомкнутся, пластины расступятся, как ширмы, и уедут на соседнюю стену. Только «ширмы» исполнены из респектабельного, плотного юрского известняка, и двигаться, конечно же, не могут. Дом слишком велик и импозантен для того, чтобы быть подвижным. Я бы сказала, что в нем срослись две противоположные идеи: образ-мечта автоматизированной подвижности (из нашего времени) и реальность респектабельного, весомого камня (это из вечности). Своего рода окаменевший механизм. Но суть проекта не в этом.

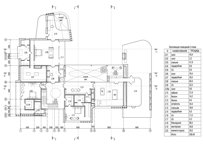
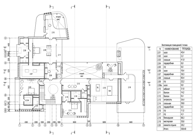
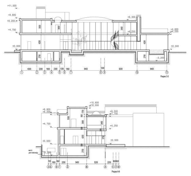
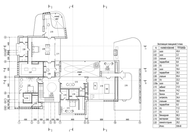
Дом всячески отрицает симметрию. Выступы разной глубины сменяются впадинами, окна-эркеры – лоджиями; стены то сгущаются, то расступаются, а со стороны леса ярусы перекрытий вдруг начинают ступенчато громоздиться, так что можно подумать, что в доме не два этажа, а больше. Главный вход устроен на северном углу дома, под большим окном-экраном в бетонной рамке, которое опирается, как телевизор на ногу, на единственный во всем доме столб-колонну. Даже будучи одна и без капители, эта опора превращается в намек на портик. Намек поддерживает панно из металлических кругов, здесь же, под потолком, на втором плане (см. дворик в библиотеке им. Ленина). Все эти намеки очень легкие, почти неощутимые. Похожим образом – до незаметности тонко, намекали на классику архитекторы «зрелого модернизма» семидесятых (кстати говоря, родственность той архитектуры и этого дома ощущается достаточно остро – разумеется, со всеми поправками на современность).

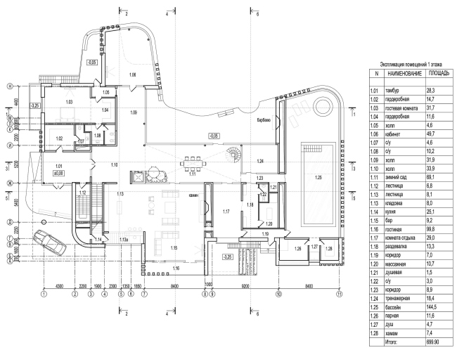
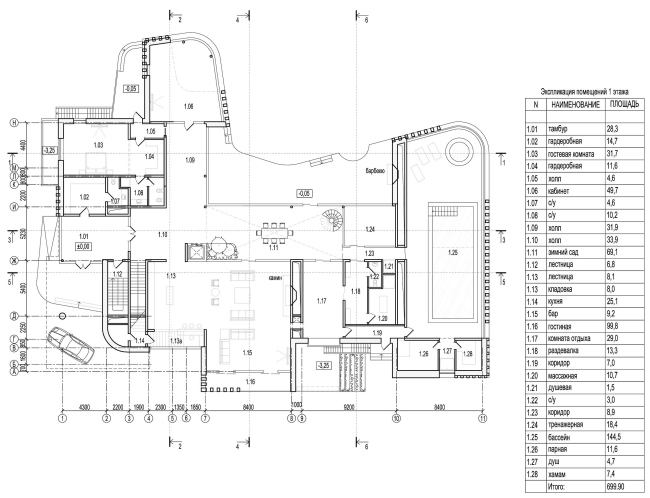
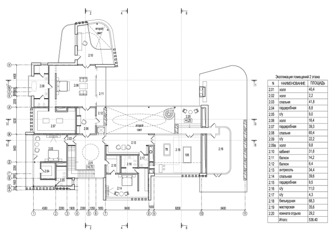
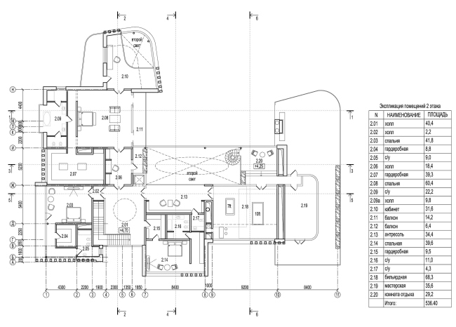
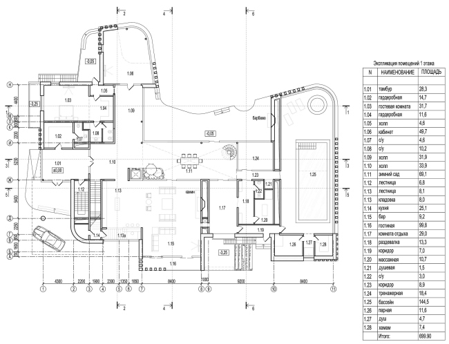
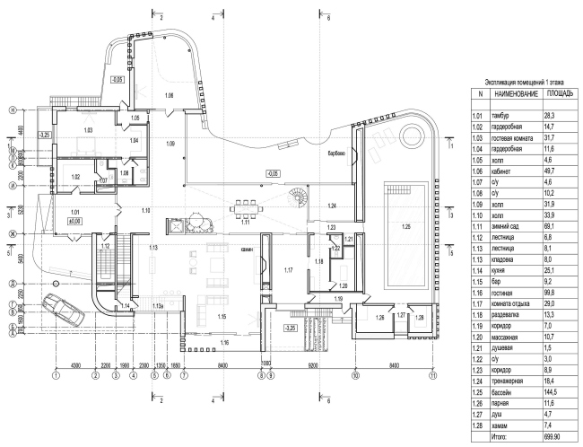
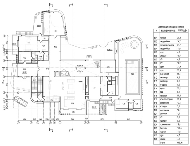
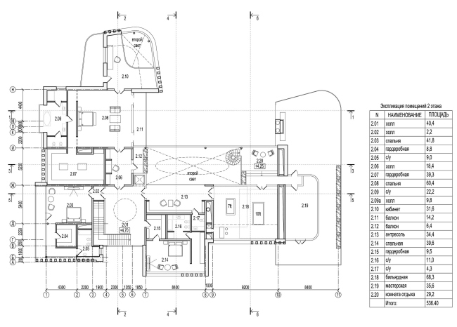
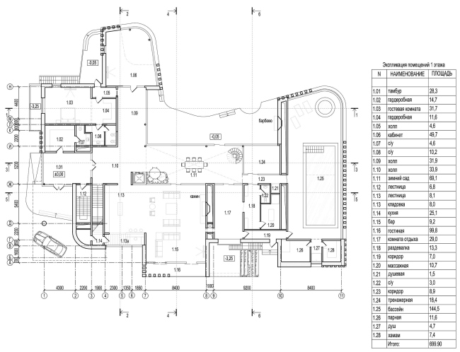
Входя мимо «колонны» в дом, попадаем в прихожую, откуда намечены два основных пути: по лестнице на второй этаж, или прямо – в зимний сад. Это длинный двусветный зал (в памяти всплывает британский long hall, по которому надо прогуливаться, ведя приличествующую положению беседу с гостями) со стеклянной стеной, обращенной к лесу. В одном конце зала – лифт и небольшая группа деревьев (собственно сад), в противоположном – изящная винтовая лестница, главное архитектурное украшение этого пространства. Посередине стол. По сути, это парадная столовая. Справа гостиная, слева спальни (они здесь окружены всеми возможными удобствами, причем косвенное назначение комнат с удобствами – звукоизоляция; гостей может быть до 10-15 человек, и они могут шуметь, не беспокоя хозяев). На отдалении, слева – двусветный кабинет с куполом, в подвале под ним кинотеатр. Прямо – бассейн, окруженный всеми радостями спа-жизни: русская баня, сауна, хамам. Словом, в доме есть все нужное для dolce far niente: из него можно не выходить днями, перемещаясь от бассейна к кинотеатру.

А можно и наоборот: войти, миновать тамбур, пройти сквозь зимний сад, увидеть «домашние» деревья внутри, за стеклом «дикие» деревья снаружи, – да и выйти через стеклянную стену в лес. Этому ничто не мешает. Вот и получается, что дом, со всеми его бесчисленными удобствами – всего лишь пропилеи, ворота для входа в лес. Он же – экран, лоджия, терраса – для созерцания леса, дом-резонатор, рама для общения с природой. Лес здесь хорош, и он вполне заслуженно становится главным героем и почти что – соседом. Архитекторы же делают все возможное для того, чтобы хозяева подружились со своим зеленым «соседом» – в конце концов, ведь это лес жил здесь раньше, еще до людей. Как тут не вспомнить дом прерий (вездесущего) Райта. Только в данном случае – не прерий, а подмосковной сосновой рощи. И надо сказать, симптоматично, что прижившись среди сосен, дом американских прерий стал из простого кирпичного – солидным каменным.
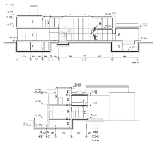
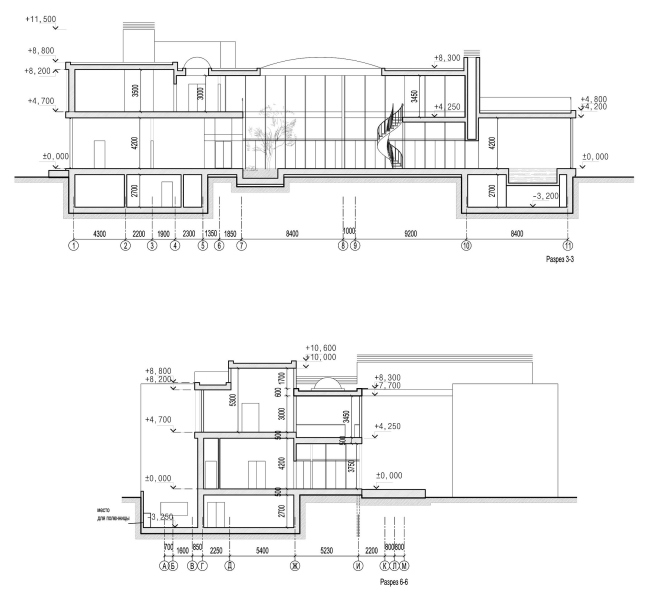
Дом в Коровино
Дом в Коровино
© PANACOM
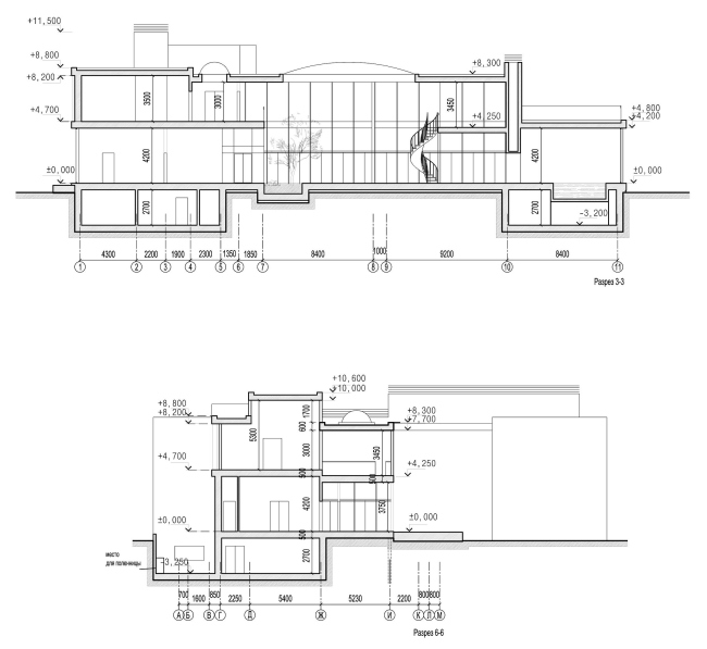
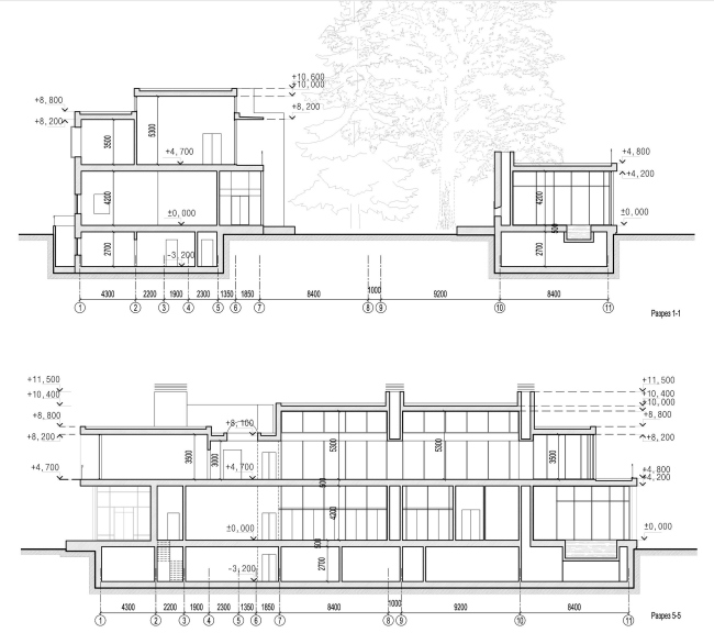
Дом в Коровино
Дом в Коровино
© PANACOM
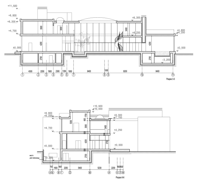
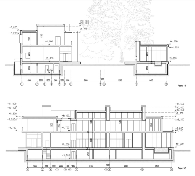
Дом в Коровино
Дом в Коровино
© PANACOM
Дом в Коровино
Дом в Коровино
© PANACOM
Дом в Коровино
Дом в Коровино
© PANACOM
Дом в Коровино
Дом в Коровино
© PANACOM
Дом в Коровино
Дом в Коровино
© PANACOM
Дом в Коровино
Дом в Коровино
© PANACOM