Размещено на портале Архи.ру (www.archi.ru)

26.01.2007

В честь шестидесятых

Юлия Тарабарина
Объект:
Жилой дом на Комсомольском пр., вл.3
Адрес:
Россия, Москва. Комсомольский пр-т, вл.3
Мастерская:
Александров и партнеры
Авторский коллектив:
Д.В. Александров, А.А. Иванов

Небольшой дом сочетает простоту архитектурного решения, навеянного модернизмом 60-х, и технологии, свойственные жилым небоскребам. Это позволит, вписав здание в миниатюрный участок, сохранить почти нетронутым существующий сквер, хорошо осветить квартиры и предоставить жильцам особенные возможности по части свободной планировки. Корреспондент ААН задал несколько вопросов авторам

Расскажите, какая задача стояла перед Вами при проектировании этого дома?

А. Иванов: Сделать качественный, но простой дом. Сложность заключалась в том, чтобы разместить жилой объем класса Делюкс на очень маленьком участке между существующими 9 и 12-этажными домами. Мы очень долго искали план здания, в котором бы учитывались все требования инсоляции, отступ от соседних домов, размещение коммуникаций. Так появился десятиэтажный объем, фасад которого состоит из двух объемов-книжек, выходящих вперед. Скосы на фасадах возникли как ответ соседнему объему – до скоса поверхность здания повторяет ритм окон стоящего справа здания, а после по наклонной плоскости идут галерейные балконы. Дом имеет два главных фасада – в сторону сквера и во внутренние дворы. Второй решен более однородно – единым росчерком простых линейных элементов с ограждениями из закаленного стекла с применением металла и ленточным остеклением.

Дом очень лаконичен. Это дань уважения конструктивизму?

Д. Александров: В последнее время нас относят к неоконструктивистам. Бесспорно, конструктивизм наиболее признан в отечественной архитектуре. Однако, на мой взгляд, существовал не менее достойный период, который начался во время хрущевской «оттепели» и который 60-е гг. превратили в архитектуру советского неомодернизма. Она представлена в этом квартале – район застройки между набережной Москва-реки и Комсомольским проспектом сформирован двумя типами застройками – это сталинское послевоенное строительство и простая геометричная архитектура 60-начала 70-х гг. Существует два известных примера такой архитектуры – это работы Л.Н. Павлова и ранние проекты А. Меерсона – Дом на Беговой и «Лебедь». Другие интересные постройки – гостиничный комплекс у «Аэропорта» недавно был перелицован новым фасадом из современных материалов, но абсолютно повторяет геометрию построенного в 60-е годы здания – архитектура абсолютно модернистская, хотя она напрямую вытекает из интернационального стиля, который был адаптирован на нашей почве в 60-е годы. Аналогичный пример – так называемая «Книжка» старшего Посохина на Арбате, который без изменения архитектурного облика облагорожен новым вентилируемым фасадом – в целом очень сухой современный дом. В нашем случае мы пытались найти определенный компромисс между этой архитектурной геометрией. Это, можно сказать, наш взгляд через плечо на еще один достойный период отечественной архитектуры – шестидесятые.

И каким образом это отразилось на архитектуре?

Д. Александров: План здания выполнен в форме буквы «Т», где средней связкой является лестничная клетка, а два объема – больший и меньший, напоминают пару, мужчину и женщину. То есть, один партнер, несколько более крупный, выступает вперед к красной линии и слегка обнимает лестничным блоком более тонкую и изящную, стоящую буквально «на шпильках» подругу. Так создается движение в сторону парка. Уход последними четырьмя этажами назад, о котором сказал Андрей, вызван двумя причинами: с одной стороны, мы показываем линию ограничения существующей застройки и уходим назад в глубину квартала и второе – здесь расположены лучшие квартиры, оттуда раскрываются наиболее интересные виды.

Практика эксплуатации современных жилых домов показывает, что при организации балконов и каких-либо выступающих элементов нам приходится бороться с тем, что все это стеклится – иногда по проектам согласуемым с нами, но чаще, к сожалению, явочным порядком. В результате дом получается не совсем такой, каким задумывался. Поэтому торцевые фасады, то есть обращенные в сторону застройки, пропадают под французскими балконами или лоджиями с заглублениями внутрь, которые стеклятся совершенно безболезненно. Галерейные балконы объединяют в основном кухни и гостиные, то есть крупные общественные зоны и ориентированы в сторону наиболее интересных точек. Соответственно две структуры материала – светлый камень под кирпич и более темный, который завязывает некие корреспонденции с более хроматической белой дамой.

Ножки-«шпильки», на которые опирается дом – это лишь кивок в сторону корифеев 60-х, или у приема есть практическое обоснование?

А. Иванов: Из-за того, что участок не слишком большой, у нас возникли проблемы с придомовым озеленением – не хватало места, отсюда появилось такое решение: нижняя часть дома со стороны двора максимально сжата, оставляя место только под вестибюли. Все остальное мы подняли на «ноги»-колонны, тем самым, увеличив возможное озеленение почти вдвое, существующий скверик будет сохранен, озеленение будет даже под колоннами. Под землей расположен подземный двухуровневый паркинг, который почти полностью занимает пятно застройки.

Планировка, как сейчас принято, свободная?

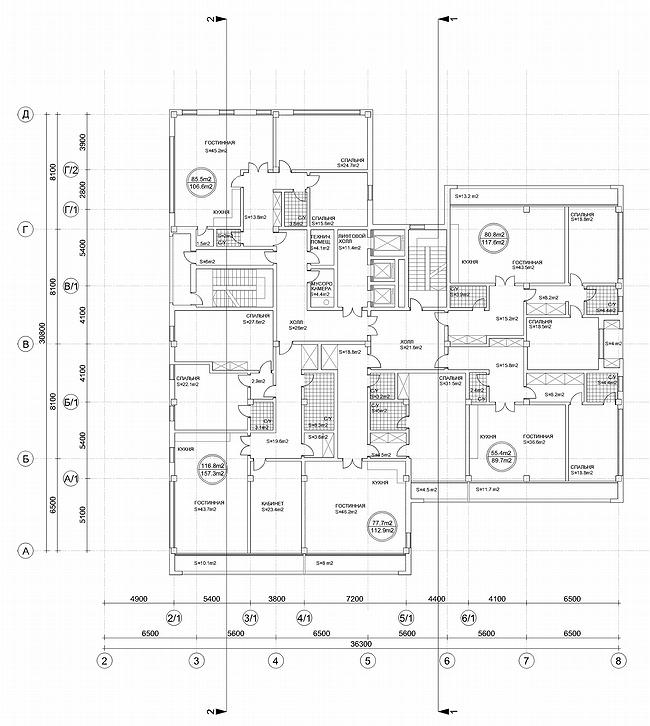
Д. Александров: Свободная. Дело в том, что гибкость планировки заложена в самой конструкции дома. Для здания высотой в десять этажей стилобат, перехватывающий технический этаж – вещь нехарактерная, естественным инженерным образом не вытекающая. Но она, во-первых, во многом определила архитектуру здания: оно целиком стоит на платформе, и эта платформа поднята вверх. Во-вторых, в этой части здания сведены все инженерные коммуникации, которые потом уходят дальше к центральному стволу и затем под землю. Это обеспечило гибкость плана. Все «мокрые» зоны, санузлы и ванные, помещены в стержень дома, а комнаты расположены максимально по периметру здания. 

Другой момент, который отличает это здание от аналогичных домов высокого класса средней этажности: мы здесь применили достаточно крупную сетку колонн. Исходя из того, что у нас здесь есть «перехватывающий стол», на что заказчик согласился, хотя обычно это используется при строительстве высотных комплексов, например, наши башни в «Янтарном городе», где 100-метровые здания стоят на «столе». В небольшом объеме 10-этажного дома на Комсомольском «стол» совмещен с техническим этажом, образуя «двойную скорлупу», внутри которой проходят все коммуникации. Благодаря этому мы смогли применить крупную сетку опор с шагом «восемь сто». Обычно для жилья «шаги» не больше, чем семь с половиной. Это привело к уменьшению количества несущих элементов, а планировка стала достаточно гибкой для возможных трансформаций уже после строительства собственниками квартир. Это же позволило перенести все жилые помещения на внешний контур и улучшить освещение. На торцевых фасадах к соседним домам мы выходим не квартирами, а балконами и эвакуационными лестницами. То есть, все общественные зоны мы ориентируем на свободные пространства и наиболее интересные видовые точки – Москва-реку, Парк культуры и вниз по Комсомольскому проспекту, а с соседними домами, наоборот,  избегаем эффекта «окно в окно».

А сколько квартир на этаже?

Пять квартир. В среднем. Есть варианты – 6 квартир, если добавляется маленькая квартира, studio. В верхних этажах, если понадобится, можно сделать одну большую квартиру – пентхаус. Дом получился на размером на полторы секции. Широкий корпус габаритами 36 на 30 метров (стандартный корпус – не больше 18 м). Это и не башня с одним подъездом, и в то же время не секционный дом. Затесненность участка повлекла за собой подобные решения. На верхних этажах пять квартир могут свободно превратиться в три.