Размещено на портале Архи.ру (www.archi.ru)

14.04.2011

Единство в разнообразии

Юлия Тарабарина
Объект:
Дом в Захарово
Адрес:
Россия, пос. Захарово
Дом в Хлюпино
Адрес:
Россия, Московская обл., пос. Хлюпино
Усадьба «Модерн»: китайский домик
Адрес:
Россия, Жуковка
Архитектор:
Олег Карлсон
Мастерская:
АСБ Карлсон & К
Авторский коллектив:
Карлсон О.А., Куликов А.Ю., Лукманов М.Ш., Кармановский Д.А., Ильин С.А., Художник Оринянский П.А.

Олег Карлсон построил в Подмосковье три деревянных дома с похожими планировками, основанными на общем модуле. Несмотря на подобие планов и сходство размеров дома очень разные – можно даже сказать, что каждый из них представляет собой одну эпоху в истории архитектуры.

Дома из клееного бруса на одном модуле
Дома из клееного бруса на одном модуле
Все три дома были построены в Подмосковье. Они сравнительно невелики: чуть больше, или чуть меньше 200 квадратных метров – для среднестатистического загородного дома нашего времени это самый распространенный размер; в таком доме одна семья размещается с комфортом, но без избытка пространства. Их строят и каменными, и деревянными – в последнее время на рынке появилось достаточно много разнообразных брусяных и бревенчатых домов похожего масштаба. Правда, в большинстве своем они напоминают гибрид русской избы из книжки детских сказок, альпийского шале и финского дома. Олег Карлсон поступил иначе: он сделал дома с похожими (хотя не одинаковыми) планами, но решил их в очень разных стилях.  

Представьте себе квадрат, разделенный на 9 равных клеток, каждая со стороной 5 метров. Все три плана нарисованы в рамках этой простой и ясной сетки, лишь изредка выходя за пределы основного квадрата. Пять клеток, включая центральную, образуют равносторонний крест, который становится ядром композиции каждого дома, делая ее строго-центрической и группируя все квадраты вокруг центрального. Это вечная и очень классическая тема, до того, как Палладио построил виллу «Ротонда», она была исключительно храмовой, а затем с полным правом перебралась и в жилье, придав ему толику строгой репрезентативности. Тем более интересно рассматривать то разнообразие решений, которое получилось у Олега Карлсона.

В «модернистском» доме в Хлюпине центростремительность планировки снаружи не подчеркивается, а скорее нивелируется. Сразу несколькими способами. Во-первых, один квадрат из девяти вынесен за пределы общего контура, что делает композицию асимметричной. Во-вторых, не все три квадрата заполнены – два угловых отданы террасе: основной, жилой объем дома таким образом отступает от линии главного фасада вглубь. И наконец, хотя на плане крест выражен очень отчетливо, снаружи акцент сделан не на повышении его центра, а на пересечении двух объемов.

Представим себе финский дом с пологой двускатной кровлей. Вот только посередине, там где у традиционного дома был бы конек, объем разорван – и на место «обычного» конька помещен другой двухскатный объем, только узкий и развернутый на 90 градусов относительно основного. Один скат перпендикулярного объема длиннее другого, его короткий конек сдвинут к лесу, а длинный скат застеклен. В центре – вместо деревенского крыльца или усадебного портика, – оказывается длинная стеклянная «горка», которая внутри освещает светлое протяженное пространство, стрежень всего дома, похожее на атриум. Мы привыкли к атриумам в торговых центрах; к высоким, освещенным сверху, галереям. А здесь его миниатюрный вариант направляет свет очень необычно: не с потолка, как в обычных атриумах, и не сбоку, как он шел бы из окон, а по косой – стены расступаются, и обитатели дома уже не под крышей, а прямо-таки под небом. Что и требуется от загородного дома.

С другой стороны, стеклянную «горку» можно понять как смелую и необычную, но узнаваемую разновидность веранды. Большинство дачных домов состоит из двух частей: половина дома обычная, со стенами и окнами, это спальни. Другая половина забрана большими решетчатыми стеклами; это веранда, на ней пьют чай и любуются природой. Здесь дом не дачный, более серьезный, но все равно – на природе. Его веранда стала более импозантной, двусветной, эффектно-наклонной. Но от этого не перестала быть собой: стеклянный «нос» заканчивается в центре открытой террасы и люди, сидящие в креслах с видом на лес, оказываются одновременно и дома под крышей, и отчасти на террасе. Это пространство между «внутри» и «снаружи», по смыслу – типичная веранда, но только ее невозможно закрыть кружевными занавесками для большего уюта (как это делает большинство дачников).

Словом, несложно понять, почему этот дом – модернистский, хотя у него важного для узнавания признака этого направления, плоской крыши. Принадлежность к модернизму в данном случае обозначена глубже – через архитектурную игру с объемами и пространством. Дом, главный фасад которого перестал быть стеной, а состоит из террас, балконов и наклонного стекла; дом, улавливающий свет «по косой плоскости»; дом, впускающий в себя окрестную природу и спроектированный как «смотровая площадка» для созерцания ближайших елей – это, определенно, модернистский дом. Говоря точнее, модернистское размышление на тему традиционного деревянного дома. А плоские кровли Олег Карлсон не любит, и совершенно справедливо: для нашего климата этот прием (подсмотренный Ле Корбюзье во время путешествия по Ближнему Востоку) подходит плохо, и сделать правильный водоотвод для него, особенно если дом небольшой, – достаточно сложно.
 
Второй дом из описываемых трех был построен вскоре после первого и неподалеку от него; между поселками Хлюпино и Захарово всего каких-то 10 километров по прямой. Захарово – место известное, здесь стоит дом бабушки Пушкина Марии Алексеевны Ганнибал. Пушкин бывал там в детстве, из-за чего теперь через бывшее имение проходит несколько туристических маршрутов. Дом, правда, уже не тот: в 1991 году его полностью построили заново. Однако старый дом или новый, а пушкинский дом это главная достопримечательность Захарова. Так что, строя дом для заказчика в поселке к северо-западу от имения Ганнибал, Олег Карлсон воспользовался той же плановой схемой, но стилизовал дом в духе классицизма.

Сравнивая этот дом с его предшественником из Хлюпина, несложно заметить, что здесь многое сделано с точностью наоборот. Главный фасад не отступает и не прячется за террасами; здесь он – стена с отчетливым центром, твердо отмеченным четырехколонным портиком с треугольным фронтоном. Терраса имеется, но она, как и полагается в классическом усадебном доме, расположена сзади и образует парковый фасад. И веранда тоже имеется, но она встроена в противоположный портик (все его интерколумнии застеклены по дачному «в сеточку»).

Таким образом, если модернистский дом отодвигается от зрителя во двор, прикрывая свое отступление балконами и террасами, то классический – напротив, выдвигается вперед, как заправский александровский генерал, всех встречает гордо и уверенно. Зато план у дома не столь центричен: крест в нем не читается и квадраты видны не так отчетливо; план спокоен и прост, вытянут продольно, как (опять же) и полагается усадебному дому.

Надо сказать, что эта стилизация не отсылает нас напрямую к пушкинскому времени. Дом не слишком похож на жилище Ганнибал с его толстыми круглыми колоннами и глухими ставнями; хотя цитаты имеются – например, окна, примыкающие верхними сандриками прямо к карнизам. В доме Олега Карлсона можно разглядеть и «пушкинскую» классику, и неоклассику, и дачи начала XX века, а в чем-то даже и сталинские санатории. Плюс совсем немного неизбежного в наше время англицизма; камин и лестница в гостиной, например. У дома нет жесткой стилевой привязанности, это  скорее собирательный образ русского усадебного дома. Сравнительно небольшого и уютного. Что, вероятно, в нем главное: умиротворенное спокойствие, сетка солнечных бликов внутри портика-веранды, заставляющая вспомнить что-то то ли про тургеневских барышень, то ли про старый кинематограф.

Третий дом был построен еще позднее в парке «усадьбы Модерн». Это «китайский домик» для дочери хозяев. Здесь центрическая тема плана разыграна полностью: пять квадратов складываются на плане в равноконечный крест, в центре устроена высокая двусветная гостиная с открытым очагом посередине. Хорошее место, чтобы посидеть у костра, но под крышей (вспоминаем дом в Хлюпине, там было похожее решение, место посидеть на террасе, но под стеклом). Дом получается выстроенным вокруг очага – тема классическая до архетипичного. Надо, правда оговориться, что гостиная несколько шире центрального квадрата, т.е. схема плана не слишком жестко влияет на объем.

То, что это китайский дом, угадывается с первого взгляда: яркий, окруженный балконами с ажурными деревянными сетками, с загнутой на углах массивной кровлей; в окружении красных китайских мостика, ворот и беседки (у всех трех есть аутентичные прототипы) – дом издалека можно с легкостью опознать как «китайский». Однако стилизация «под Китай» в данном случае тоже не стремится к буквализму: сам автор признается, что специфические китайские консоли воспроизводить не стали, сделали похожие. Скорее, мы здесь имеем дело с разновидностью «шинуазри», или «китайщины». Увлечение восточными мотивами расцвело в Европе в XVIII веке, и в России конца этого столетия оно тоже было модным. В китайском стиле оформляли интерьеры, строили парковые павильоны – а в конце XIX века на Мясницкой архитектор Роман Клейн (тот самый, который построил ГМИИ им. Пушкина) построил чайный магазин с очень китайским фасадом. Китайский домик в усадьбе Модерн, построенный Олегом Карлсоном – типичное усадебное шинуазри, яркое, узнаваемое, но намеренно неточное в деталях – в конце концов, это «парковая затея», а не ученый трактат. Поэтому он особенно уместен в «усадьбе»: наличие китайского домика делает ее парк завершенным. 

Строго говоря, глядя на эти дома снаружи, сложно предположить, что их планировки основаны на одном модуле: один дом срастается с природой, другой с губернской гордостью несет портики и фронтоны, третий нанизан на очаг и снаружи весь огненно-красный: огонь-цвет, огонь-орнамент. Дома разные не только стилистически (иначе можно было бы построить одинаковые дома и по-разному их орнаментировать), стилевые различия проникают глубоко, меняют сущность каждого дома, оставляя неизменными только основы планового конструктора. И, что важно – ощущения людей, входящих в эти дома, будут совершенно разными. Все это очень похоже на архитектурную штудию; но дома вполне реальны, построены и обитаемы, хотя и не чужды архитектурных размышлений. В наше время, отдавшее себя «концепциям многофункциональных комплексов» такая архитектурная практика кажется какой-то очень исконной, старо-режимной. И по-человечески правильной, потому что ничья фантазия в данном случае не оторвана от реальности: архитектору придется построить, а заказчику жить в построенном доме. Даже приятно, что в этом процессе находится место для архитектурного размышления над сущностью каждого из воспроизводимых стилей.
Боковой фасад
Боковой фасад
План 2 этажа
План 2 этажа
Жилой дом в Захарово. Реализация, 2010 © Архитектурное бюро «АСБ Карлсон & К»
Жилой дом в Захарово. Реализация, 2010 © Архитектурное бюро «АСБ Карлсон & К»
Жилой дом в Захарово. Реализация, 2010 © Архитектурное бюро «АСБ Карлсон & К»
Жилой дом в Захарово. Реализация, 2010 © Архитектурное бюро «АСБ Карлсон & К»
Жилой дом в Захарово. Реализация, 2010 © Архитектурное бюро «АСБ Карлсон & К»
Жилой дом в Захарово. Реализация, 2010 © Архитектурное бюро «АСБ Карлсон & К»
Жилой дом в Захарово. План 1 этажа. Реализация, 2010 © Архитектурное бюро «АСБ Карлсон & К»
Жилой дом в Захарово. План 1 этажа. Реализация, 2010 © Архитектурное бюро «АСБ Карлсон & К»
Китайский домик
Китайский домик
Интерьер
Интерьер
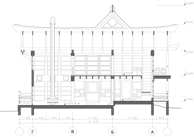
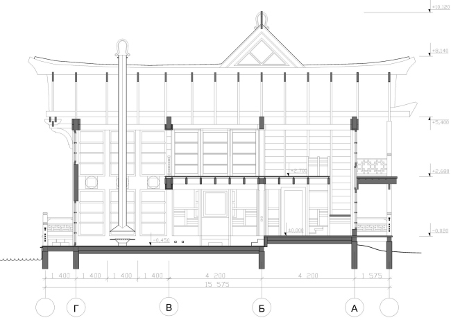
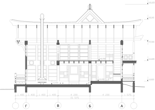
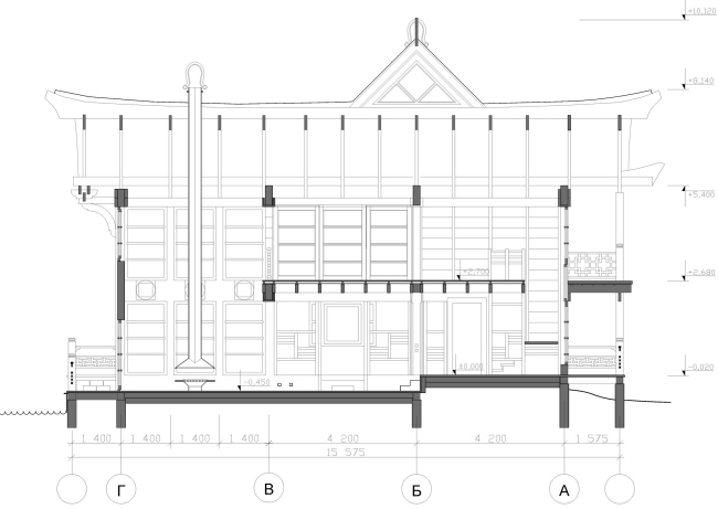
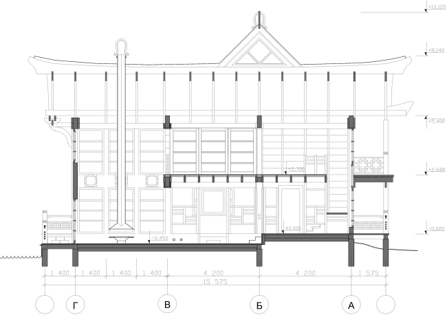
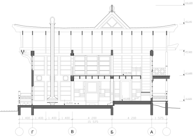
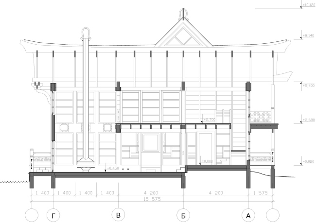
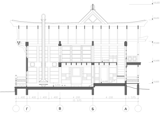
Разрез
Разрез
План 2 этажа
План 2 этажа