Размещено на портале Архи.ру (www.archi.ru)

21.02.2007

Проросший историзм

Юлия Тарабарина
Объект:
Офисное здание с подземной автостоянкой в 4-х уровнях на Можайском шоссе (вариант 2006-2008 гг.)
Адрес:
Россия, Москва. Можайское шоссе, вл. 6
Мастерская:
Алексей Бавыкин и партнёры
Авторский коллектив:
А.Л. Бавыкин, М.М. Марек, Д.Н. Чистов, главный конструктор – К.О. Кабанов; главный инженер проекта – Л.Н. Слуцковская

Здание, которое должно появиться на Можайском шоссе, состоит из 11-этажной «каменной» арки и врезанного в нее под прямым углом футуристического объекта. Первое впечатление – что в руине римского акведука открылся портал, наподобие киношных «звездных врат», и сквозь него в наше пространство проник стеклянный «пришелец»

Офисное здание на Можайском шоссе. Вариант 2006-2007 годов (первый вариант)
Офисное здание на Можайском шоссе. Вариант 2006-2007 годов (первый вариант)

Впечатляющая композиция составлена из двух офисных корпусов, почти равных по объему и пропорциям. Первый остеклен и вытянут вдоль шоссе, второй – это обобщенное изображение полуразрушенного античного моста: одна арка целая, другая начинается со стороны дороги и обрывается посередине. Место гипотетического «обрушения» зависает над тротуаром и превращается в выносную консоль-балкон с видом на небольшой сквер «Кунцево» на противоположной стороне шоссе и дальше на Университет, на Троекурово и Тропарево.

Дом в форме арки станет вторым «римским» акцентом на линии Кутузовского проспекта, где в конце1960-х прижилась Триумфальная арка Бове. Для пешехода расстояние между ними большое, для автомобиля – 5-10 минут, что позволяет выстроить прочную логическую связь между двумя вехами дороги на запад, каковой у нас является Можайское шоссе, осмыслив ее как римскую или ведущую в Рим. В этом – градостроительный смысл здания, которое при средних по современным меркам масштабах, активно участвует в осмыслении городской ткани, структурирует ее, дописывает существующий «текст» - и таким образом, уже на стадии проектирования претендует на роль новой достопримечательности Кутузовки.

«Арка-мост» покрыта изображающим каменную облицовку рустом и прорезана квадратными, прямоугольными и даже конструктивистскими угловыми окнами. Их немного больше со стороны соседнего дома, там они откликаются на жесткий ритм его панельной сетки, а дальше, к аркам – окна становятся меньше и разреженнее. Разбросанные в продуманно-хаотичном порядке проемы не нарушают, а скорее оживляют каменноподобную поверхность арки, в масштабе которой они похожи на следы от выпавших каменных блоков, с геометрической условностью развивая тему руины. На углу, выходящем к шоссе, каменная кладка сгущается, превращаясь с размытый архивольт из тонких длинных плит. Все вместе достаточно точно воссоздает ощущение от римского бетона – гигантской, с редкими щербинами каменной массы.

Кульминация архитектурного сюжета – в месте пересечения стеклянной и каменной части. Блестящий скругленный «нос» проходит под «сохранившейся» аркой «моста» и выныривает c противоположной стороны. Плоскость под аркой застеклена – «нос» как будто преодолевает некоторую материю, отчего узел стыковки похож затянутый пленкой «телепорт» из фантастического кино.

Все вместе напоминает руины городского форпоста, сквозь которые алюминиево-стеклянная современность пытается проникнуть «внутрь»: полпред современности, крестообразный небоскреб, стоит поодаль «с той» стороны, а «передовой отряд», тем временем, нашел лазейку, открыл себе портал под «древней» аркой. Получился очень емкий и точный образ нынешних взаимоотношений между архитектурой центра и окраин. Этим сюжетом дом встречает своих зрителей, выезжающих по Можайскому шоссе из города.

Сопоставление разнохарактерных форм путем «продевания» одной из них в другую – любимый прием Алексея Бавыкина, восходящий к пластическим поискам 1920-х гг. группы АСНОВА  Здесь оно, однако, приобретает иной привкус, потому что происходит не только на формальном, но и на смысловом уровне: условно-старое противопоставлено ультра-новому. В то же время на стенде Арх-Москвы 2006 архитектор предложил точную историческую аналогию своего проекта – римский мост цензора Эмилия (или понте Ротто 179-142 гг. до н.э.). Которая интересна тем, что там уже имеется врезанная в арку полукруглая форма – так решена одна из опор («быков») древнего моста. Следовательно, форму можно понимать как целиком заимствованную у древних, а не возникшую путем авангардного конструирования, что, правда, не снимает пластической разнородности двух сопоставляемых частей композиции.

Вообще, одна из самых любопытных особенностей проекта – тонко срежиссированное взаимодействие историзма и современности. Заметим, что, в отличие от античного прототипа с его коринфскими капителями, тритонами и маскаронами, в арке нет ни одной ордерной формы – только образ рукотворного каменного массива, в котором, сродни хорошей театральной декорации, спрессовано впечатление и ощущение, запах исторических воспоминаний разного рода, сложенных в копилке человеческого опыта от римлян до архитектурного авангарда. Интересно, что все они живут и взаимодействуют внутри одного сюжета – мост, похожий на московский ростокинский акведук, кладка из плоских плит, напоминающая что-то римско-византийское, и угловые окошки авангарда, с успехом играющие «роли» утраченных блоков циклопической кладки. Подъезжая издалека, можно решить, что квадры, из которых сложен «мост» – размером с окно соседнего дома, а приблизившись понять – нет, вот она изящная каменная облицовка. Все это близко к сценографии, к такой декорации, которая сама себе спектакль на тему истории архитектуры. Эта арка не копия, не возрождение и не классицизм, а размышление историка, а когда этот историк архитектор, то размышление получается в форме дома. Или дом в форме размышления об истории архитектуры, всей сразу, включая авангард.

Стеклянный корпус-антагонист в противовес историзму соседа наполняется намеками на природу. Две овальные опоры сделаны похожими на гипертрофированно длинные тополиные стволы – примерно посередине они расслаиваются на два «древесных» отростка: одна с «этой» стороны держит проникший сквозь арку «нос», другая – с «той», прорастает сквозь угол с открытыми балконами. Эта тема уже была использована Бавыкиным в «тополином доме» Брюсова переулка и видимо, пришла оттуда. Но здесь стволы обобщеннее, их смысл глобальнее. Получается, что «мост» городской и каменный, он пронизан гуманитарным историзмом, а вторгающийся в него стеклянный пришелец – не просто ультра-новый, пластично-подвижный, но еще и природный элемент. Вспоминаются киплинговские джунгли, оплетающие каменный город, и выходит, что порыв нынешнего биомодернизма этим джунглям немного сродни.

Дом-арка на Можайском шоссе. Проект. Эскиз. 2007 г. (первый вариант)
Дом-арка на Можайском шоссе. Проект. Эскиз. 2007 г. (первый вариант)
Триумфальная арка на Кутузовском проспекте
Триумфальная арка на Кутузовском проспекте
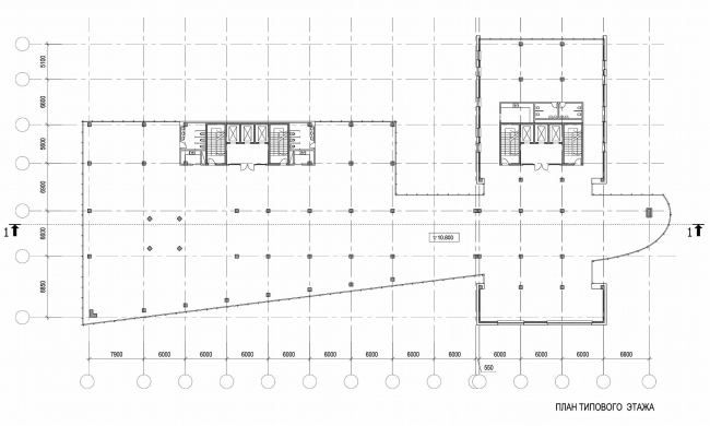
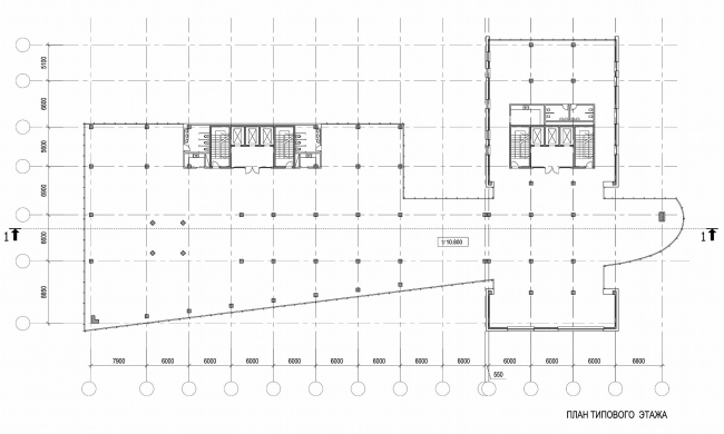
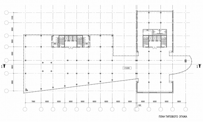
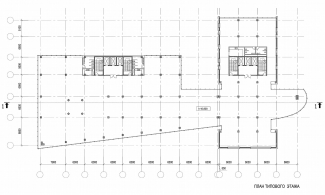
Офисное здание с подземной автостоянкой в 4-х уровнях на Можайском шоссе. Мастерская архитектора Бавыкина А.Л. Бавыкин, М.М. Марек, Д.Н. Чистов, главный конструктор - К.О. Кабанов; главный инженер проекта - Л.Н. Слуцковская. ЗАО район, Можайское шоссе, вл. 6. Вариант 2008 г.
Офисное здание с подземной автостоянкой в 4-х уровнях на Можайском шоссе. Мастерская архитектора Бавыкина А.Л. Бавыкин, М.М. Марек, Д.Н. Чистов, главный конструктор - К.О. Кабанов; главный инженер проекта - Л.Н. Слуцковская. ЗАО район, Можайское шоссе, вл. 6. Вариант 2008 г.
Офисное здание на Можайском шоссе. Вариант 2006-2007 годов (первый вариант)
Офисное здание на Можайском шоссе. Вариант 2006-2007 годов (первый вариант)
Остатки моста цензора Эмилия Лепида
Остатки моста цензора Эмилия Лепида
Офисное здание с подземной автостоянкой в 4-х уровнях на Можайском шоссе. ООО «А. Бавыкин и партнеры»
Офисное здание с подземной автостоянкой в 4-х уровнях на Можайском шоссе. ООО «А. Бавыкин и партнеры»