Размещено на портале Архи.ру (www.archi.ru)

14.03.2011

Брюсов брат

Юлия Тарабарина
Объект:
Edison House
Адрес:
Россия, Москва. Электрический переулок, 10
Жилой дом-апартаменты с подземной автостоянкой в Брюсовом переулке
Адрес:
Россия, Москва. Брюсов пер., 19
Мастерская:
Алексей Бавыкин и партнёры
Авторский коллектив:
А.Л. Бавыкин, М.М. Марек, Г.А. Гурьянов при участии Ю.В. Раневой и Д.Е. Травникова

Алексей Бавыкин спроектировал здание, продолжающее и по-своему развивающее пластические темы дома в Брюсовом переулке. Главной темой в нем стала вечная: борьба вертикалей с горизонталью. Она отсекает, они – прорываются.

Дом в Электрическом переулке, 2010. Вид со стороны Электрического переулка
Дом в Электрическом переулке, 2010. Вид со стороны Электрического переулка
© Алексей Бавыкин и партнёры
Электрический переулок отходит от Грузинского вала в сторону Тишинки примерно в 15 минутах ходьбы от Белорусского вокзала. Окружение в этом районе пестрое: фронт недорогих доходных домов был многократно разломан советскими панельной застройкой, расставленной по градостроительной прихоти то вдоль, то поперек улиц. Но Электрическому переулку как-то удалось сохранить линию домов XIX века и по правой, и по левой стороне почти полностью. Только слева имеется небольшой разрыв с одноэтажным домом – на его месте и планируется построить «гостиничные апартаменты» по проекту Алексея Бавыкина.
 
Участок миниатюрен, и здание аккуратно занимает его целиком, фасадом вписываясь в красную линию улицы. Для того, чтобы добрать полезных метров, со стороны двора в том месте, где нельзя было копать котлован, часть объема поставлена на «ножки». Дом будет несколько выше соседей (семь его этажей против трех справа и четырех слева), но архитектор использует привычный московский прием – отодвигает верхние этажи пентхаусов от красной линии вглубь, что делает их малозаметными со стороны улицы. Пять нижних этажей встраиваются во фронт застройки, выше поднимается лес вертикалей. Прокалывающих ломаный решетчатый козырек и увенчанных разнообразной скульптурой в духе знаковой бавыкинской собаки, с незапамятных времен прижившейся в логотипе мастерской.

Эта асимметричная и нерегулярная «корона», прячущая за собой ломаный зигзагообразный витраж пентхаусов – самая заметная часть фасада. Хотя и не для всех. Все устроено так, что случайный прохожий, суетливо бегущий в свой офис мимо, может быть, и не особо заметит новый дом: о, – скажет он, еще один фитнес-центр открылся (запланирован в первом этаже) – и пройдет мимо, оценив, может быть, только фактуру кирпича и чистоту стекол. Для того, чтобы по-настоящему увидеть дом и познакомиться с ним, надо будет перейти на другую сторону улицы и поднять голову. Такой – внимательный, зритель будет вознагражден полноценным зрелищем: выставкой скульптур. Столь редкой в Москве, особенно в новейшее время и особенно – на фасадах домов.

Впрочем, для того, чтобы поймать внимание «ленивых» прохожих, у дома есть его главный угол – северо-западный, смотрящий в сторону Грузинского вала на тех, кто будет идти от метро. Этот угол в основном стеклянный (хотя его и «держит» строгая кирпичная опора), он покрыт кружевом ковки балконных ограждений, и решетка козырька над ним как-то особенно бодро топорщится: приподнимается вверх и салютует нам, попутно отбрасывая причудливую ажурную тень. Ни капельки этот козырек не защищает ни от солнца, ни от дождя, его задача больше художественная. Он составлен из металлических веток и похож на карниз шалаша, а еще немного – на колючую кружевную манишку.

Источники и составные части образа этого дома достаточно очевидны. Перед нами «младший брат» успевшего прославиться дома в Брюсовом переулке с фасадом из древесных стволов, одетых в каменную шубу. Дом в Электрическом переулке дальше от центра и меньше размером; внутри нет атриума, а только обычные лифтовые холлы; он не так богат по части отделки. Хотя и упрощением его назвать тоже нельзя. Он скорее обобщает и популяризует формы, найденные в Брюсовом, приводит их к несколько более доступному знаменателю и делает основой для архитектурного языка, способного развиваться дальше. Языка форм, хорошо подходящих для строительства в историческом городе, но непохожих на германо-голландскую разновидность современной респектабельности. Своих, особенных, индивидуальных форм.

Что же так узнаваемо? Прежде всего, конечно же, деревья. Здесь нет камня, все будет облицовано кирпичом; нет ветвящихся стволов. Но разновысотные «отростки» в верхней части определенно представляют их парафраз, только геометризированный и «сросшийся» с фасадом, а не поставленный перед нм декоративной стенкой. Даже цвет похож: коричневатая охра главной, выходящей на улицу стены живо напоминает камень Брюсова, и также, как там, контрастирует с белизной боковых стен.

Самая заметная цитата из Брюсова – стилизованные кованые ветки. Там они были на ограждениях внутри атриума, миниатюрно изображали «деревья» фасада. Здесь мотив зажил своей жизнью, свойственной для ажурно-орнаментальной ткани. Из нее сделан козырек, ленты этой «ткани» ограждают лоджии и пять маленьких балкончиков «одинокого курильщика», любимых балкончиков Алексея Бавыкина. Среди них особенно примечателен самый одинокий, в верхней части бокового фасада – этот мини- капитанский мостик кочует из одного бавыкинского здания в другое; есть он и в Брюсовом.

Дом в Брюсове это ближайший, но не единственный родственник нашего героя из Электрического переулка. В последние годы Бавыкин увлеченно развивает идею «короны-над-зданием», леса вертикалей, превращающего завершение любого объема из определенной горизонтали в хаотически растущий тростник. В проекте гданьского Музея войны это настоящая готическая корона с крестами; в проекте офисной башни на Автозаводской вертикали верхней части больше похожи на полосы коры, признак руинированности.

Можно привести и еще несколько дальних ассоциаций для этого приема: трубы над Парижем и над английскими замками; готические башни, пинакли и даже фиалы. Еще одна, приземленная, но верная ассоциация: сейчас в Турции семейные дома строят таким образом – выводят опоры выше кровли, где следующее поколение, как только подрастет, возводит себе новый этаж. Те, кто видел плетеную башню-градирню Николая Полисского в Никола-Ленивце, меня поймут: концы веток, оставляемые там несколько лет подряд, наглядно говорили о том, что плетение незакончено, что его предстоит продолжить.

В сущности эта тема противоположна карнизу. Карниз подводит итог фасаду, потому его и называют: «венчающий». Торчащие ветки, стволы или даже опоры – это тема незавершенная, чреватая продолжением. В данном случае, правда, встретились обе: опоры  прорастают сквозь эфемерный карниз, он возмущается, ломает свою горизонталь. Кстати говоря, столкновение противоположных начал – тоже один из любимых приемов Бавыкина. А все же это удивительная способность архитектора: превращать любую прагматическую задачу, «жилой дом с апартаментами» – в «картинку с выставки».
Дом в Электрическом переулке, 2010. Западный фасад (главный)
Дом в Электрическом переулке, 2010. Западный фасад (главный)
© Алексей Бавыкин и партнёры
Дом в Электрическом переулке, 2010. Восточный фасад
Дом в Электрическом переулке, 2010. Восточный фасад
© Алексей Бавыкин и партнёры
Дом в Электрическом переулке, 2010. Встройка © Мастерская архитектора Бавыкина
Дом в Электрическом переулке, 2010. Встройка © Мастерская архитектора Бавыкина
Дом в Электрическом переулке, 2010. План 6-го этажа © Мастерская архитектора Бавыкина
Дом в Электрическом переулке, 2010. План 6-го этажа © Мастерская архитектора Бавыкина
Дом в Брюсовом переулке. Вид на построенное здание со стороны Тверской ул. 2007 г.
Дом в Брюсовом переулке. Вид на построенное здание со стороны Тверской ул. 2007 г.
© Алексей Бавыкин и партнёры
Дом в Брюсовом переулке. Перила балконов атриума изображают те же древесные стволы, что и на фасаде
Дом в Брюсовом переулке. Перила балконов атриума изображают те же древесные стволы, что и на фасаде
© Алексей Бавыкин и партнёры
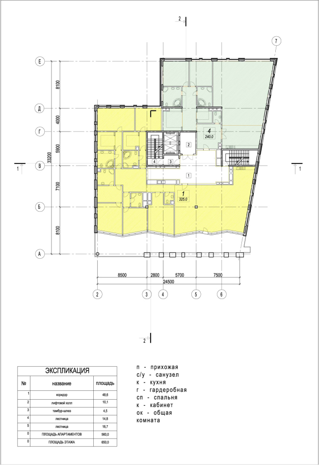
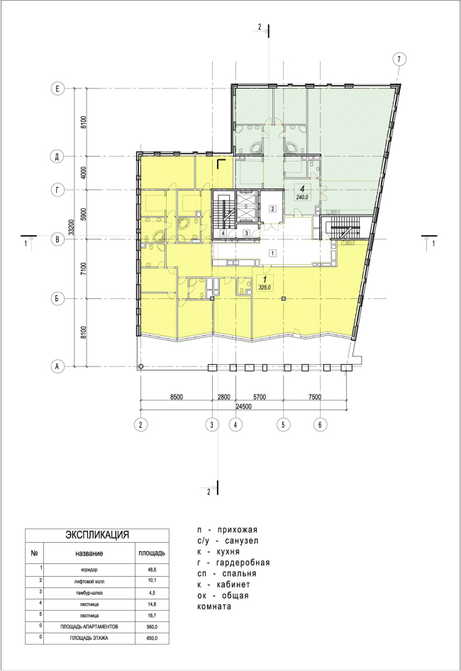
Дом в Электрическом переулке, 2010. План типового этажа © Мастерская архитектора Бавыкина
Дом в Электрическом переулке, 2010. План типового этажа © Мастерская архитектора Бавыкина
Дом в Электрическом переулке, 2010. 1 этаж © Мастерская архитектора Бавыкина
Дом в Электрическом переулке, 2010. 1 этаж © Мастерская архитектора Бавыкина
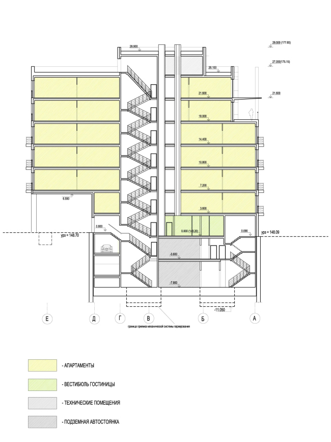
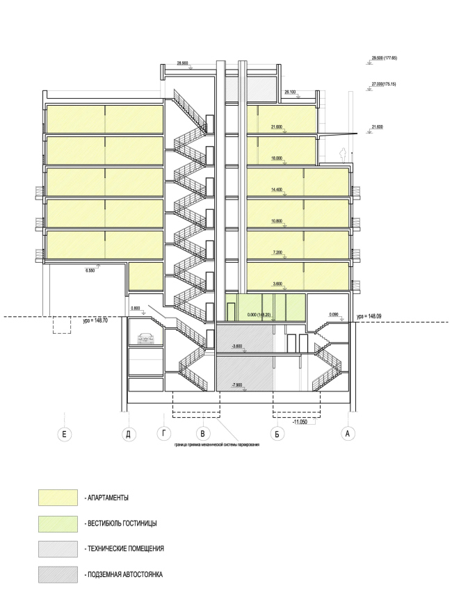
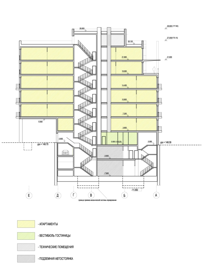
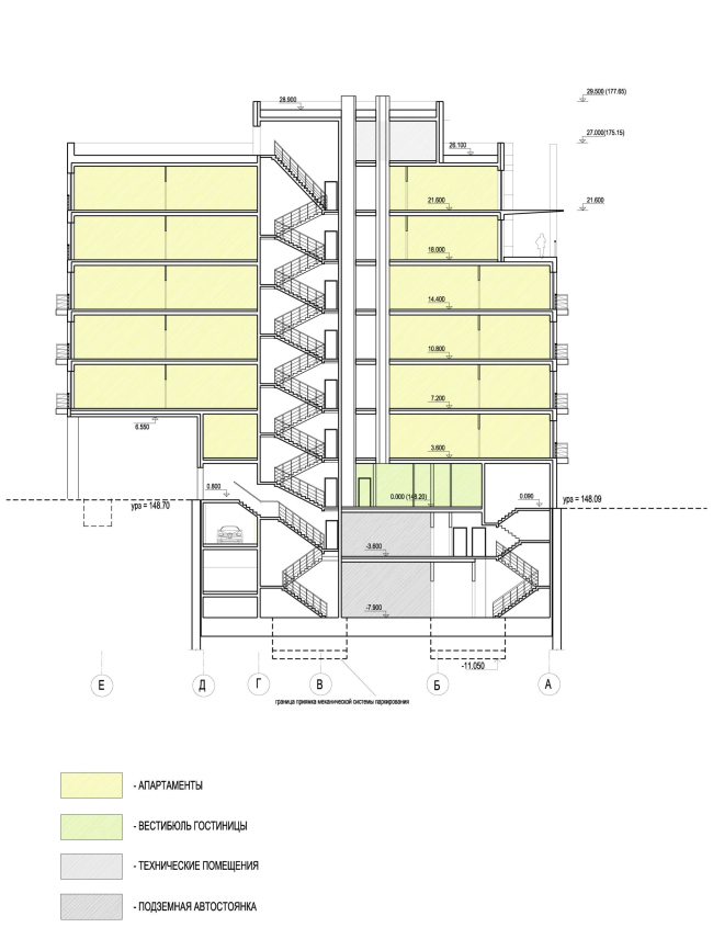
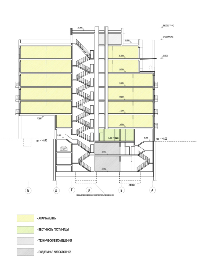
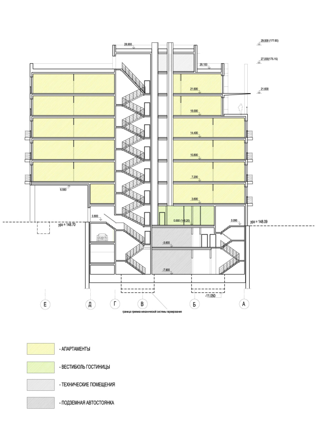
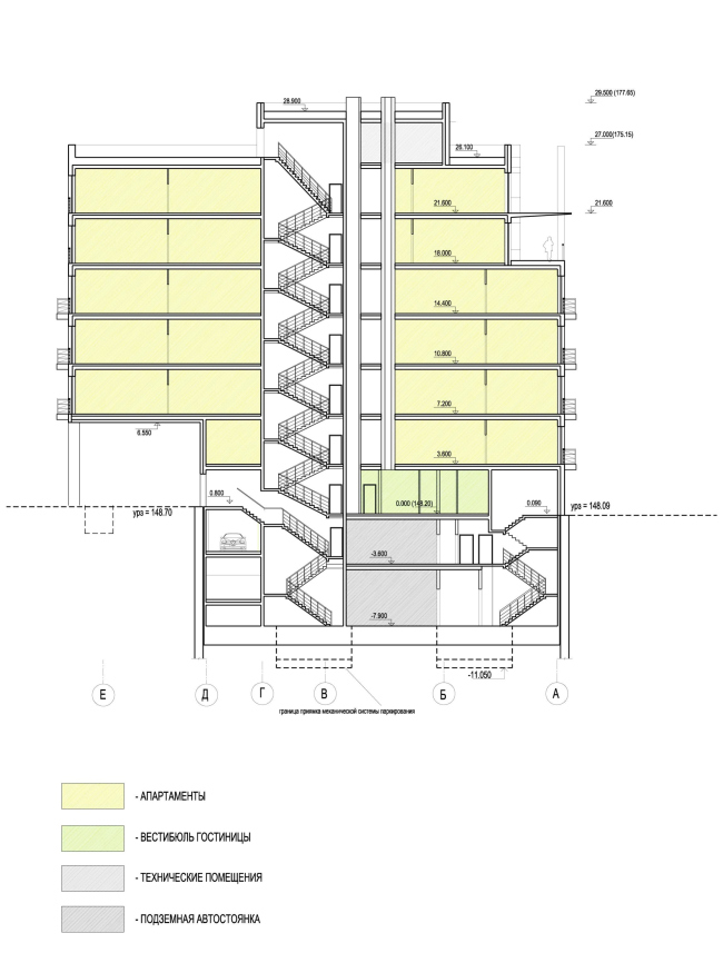
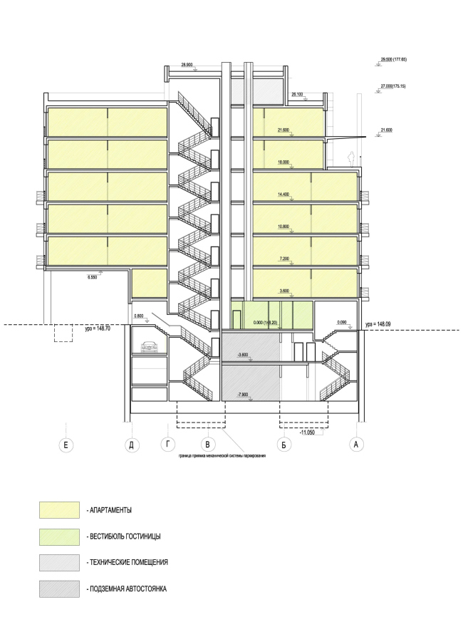
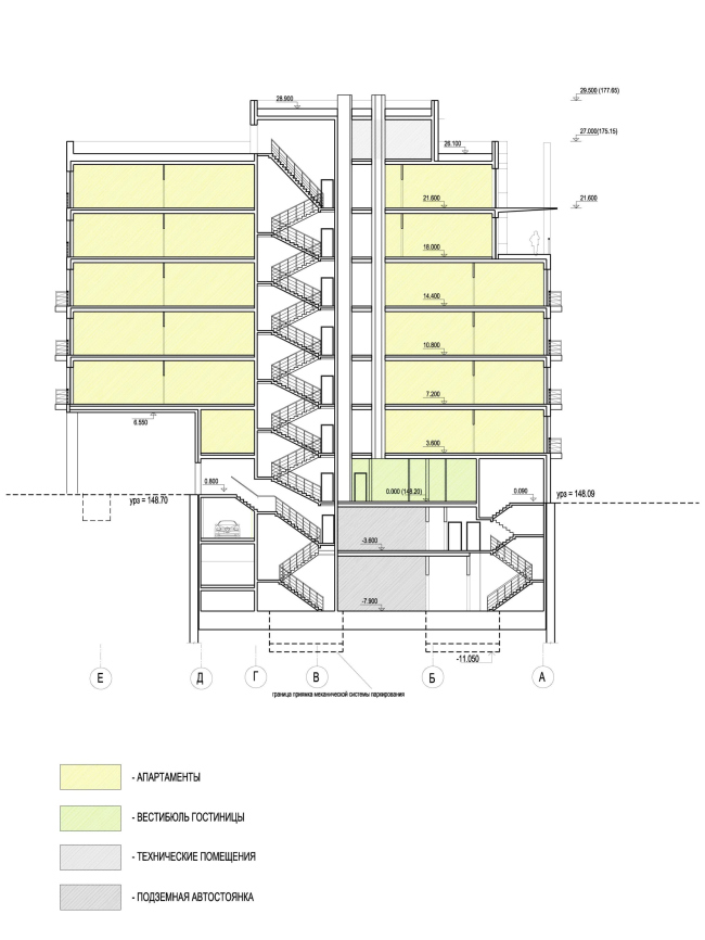
Дом в Электрическом переулке, 2010. Разрез 2-2 © Мастерская архитектора Бавыкина
Дом в Электрическом переулке, 2010. Разрез 2-2 © Мастерская архитектора Бавыкина