| 
 
  |  |  
  | 
    Размещено на портале Архи.ру (www.archi.ru)
    
    |  
  | 26.11.2006 |  
 | Реконструкция для конструктивизма |  
 | Юлия Тарабарина 
 |  
  | Объект: |  
  | Административное здание «Георг Плаза» |  
  | Адрес: |  
  | Россия,
              
              
               Москва.
              
              Мясницкая ул., вл. 40/7 стр. 15 |  
  | Реконструкция здания 1920-х - начала 1930-х гг. по ул. Мясницкая, 40, стр.17 |  
  | Адрес: |  
  | Россия,
              
              
               Москва.
              
              Мясницкая ул., 40, стр.17 |  
           | Мастерская: |  
           | Александров и партнеры |   
          | Дмитрий Александров представил проект реконструкции здания рубежа 20-30 годов, находящегося рядом с его же постройкой Георг ПлазаНачалу проектирования предшествовала несложная, но показательная интрига. Два года назад Дмитрий Александров построил рядом с безымянным конструктивистским зданием новое – Георг Плаза. Тогда, вдохновившись соседством, архитектор придал новой постройке формы, наводящие на воспоминания об архитектурном авангарде 20-х годов. Получилось эссе на тему авангарда, которое, будучи построено, смотрится достаточно органично рядом с соседом. Теперь архитектор решил развить возникший эффект. 
 Но не будем забегать вперед. Итак, Александров построил «Георг Плаза», отчасти навеянный  конструктивистским соседом. Новый дом получил золотой диплом на прошлогоднем «Зодчестве», приз «Качественная архитектура-2006», стал номинантом премии «ARX-awards» (номинация «Архитектурная реализация с позиции девелопмента»). И через некоторое время совершенно другой заказчик предложил архитектору реконструировать теперь уже то, старое, соседнее здание, для офисов класса «А».
 
 Дом, спрятанный в переулке неподалеку от дома пионеров – не шедевр конструктивизма, но симпатичен приверженностью простым истинам – на весь фасад большие ленты окон, корпус-коробка, система коридорная, изначально размещались конторы, потом НИИ, которое переезжает. Из излишеств только гармошка треугольных эркеров, объединяющих два нижних этажа, да круглое окно над вертикалью лестничной клетки. Дом считают ранним Иофаном (даже автор точно неизвестен!). Однако строение очаровывает скорее не уникальностью, а принадлежностью, крепко сбитое, в меру массивное, рабоче-крестьянское и незамысловатое.
 
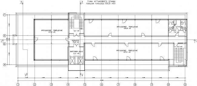
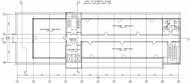
 Таким оно оказалось и внутри – прочное, монолитное, не требующее капитальной реконструкции в отличие от своих прогремевших на весь мир собратьев из камышита. Рамы в окнах до сих пор первоначальные. Соответственно вся конструктивная основа здания сохранится, стены утеплят, заменят столярку, надстроят аттиковый этаж, добавят подземный гараж.
 
 Гараж, который надо будет подвести под существующее здание, задуман оригинально и экономно – этаж в нем один, но ячеек – три, разводить машины будет «механизированная стоянка». Все вместе позволит разместить 27 машин, и еще несколько во дворе.
 
 Внутри после реконструкции прибавится 800 кв. м полезной площади, в частности, за счет надстроенного нового аттикового этажа. Таким образом, здание сравняется по высоте со своим новым соседом Георг Плаза. Внутри уберут некоторые перегородки, усилят каркас, введут металлические элементы. Добавят две новые лифтовые шахты и раздвинут коммуникационные блоки. На внешнем торце вместо ржавых пожарных лестниц возникнет вертикальный ряд балконов с металлическими колоннами.
 
 Помимо уравнивания высоты, еще некоторые приемы призваны сблизить реконструируемый дом с Георг Плаза. Фасады покрасят в тот же цвет: он лишь немного изменится, немного потемнеет и пожелтеет. Дом получит серый гранитный цоколь, и полосатые панели на ленточных окон, вперебежку, перекликающиеся с диагональным ритмом окон Плаза.
 
 Старый, конструктивистский дом отделен от Георг Плаза нешироким проездом. Дома уже сейчас выглядят как два корпуса одного ансамбля – один попроще, конструктивистский, другой «нео», по сравнению с ним почти дворец. История отдает чем-то усадебным: пришел архитектор, увидел, сделал похоже на то, что было. Потом вернулись к старому дому, тоже немного свели с новым, получился конструктивистский ансамбль – возможно, способствует соседство дома Центросоюза Ле Корбюзье, который при делании можно увидеть из верхних окон Георг Плаза.
 Административное здание «Георг Плаза» © Александров и партнеры |  |