Размещено на портале Архи.ру (www.archi.ru)

19.01.2011

Музей света

Юлия Тарабарина
Объект:
Музей Второй Мировой войны в Гданьске. Конкурсный проект. Концепция
Адрес:
Польша, Гданьск.
Мастерская:
Алексей Бавыкин и партнёры
Авторский коллектив:
Архитекторы: Бавыкин А.Л., Марек М.М., Бавыкина Н.А., Усачева А.А., при участии: Гурьяновой А.Э., Кащеевой А.А.
Конструктор : Кабанов К.О.
Инженер: Слуцковская Л.Н.
Визуализация: Маслов К.С.

Проект Музея второй мировой войны в Гданьске, сделанный Алексеем Бавыкиным для открытого международного конкурса, наделен очевидным и романтическим сюжетом. Это светлый храм-замок, вырастающий на пути гигантского снаряда.

Вид со стороны улицы Старая Штольня
Вид со стороны улицы Старая Штольня
Конкурс на здание музея Второй мировой войны в Гданьске был объявлен в начале 2010 года; итоги подвели в сентябре (подробнее об итогах здесь). Музей планируется разместить на большом участке треугольной формы у северной границы туристического центра города: острый «нос» треугольника указывает на остров Оловянка посреди реки Мотлавы, и только портовый канал отделяет территорию будущего музея от исторических кварталов с затейливыми шпилями кирпичных церквей и  рядами характерных ганзейских домов с острыми треугольными крышами.

Выбор места в историческом центре, обремененного ограничениями и поэтому сложного для размещения современной постройки, совершенно не случаен: в двух шагах от него расположено здание почты, оборона которого считается первым сражением Второй мировой. 1 сентября 1939 года служащие этого почтового отделения своими силами воевали с эсэсовцами в течение 15 часов. Создание музея мировой войны в месте, где она фактически началась, и в городе, который стал формальным поводом для ее начала, совершенно справедливо. Концепция экспозиции музея уже разработана, а на проект здания провели открытый международный конкурс с представительным жюри: помимо польских экспертов в его работе участвовали звездный строитель музеев Даниэль Либескинд и урбанист Ханс Штиман, главный архитектор последней реконструкции Берлина. В конкурсе участвовали 240 архитектурных бюро, приблизительно пятая часть их них – иностранные (то есть не польские), и всего одно бюро из России, – мастерская Алексея Бавыкина. Проект не попал в число победителей, но опыт участия в открытом международном конкурсе и проектирования музейного здания такого класса, безусловно, интересен.

С первого взгляда композиция музейного ансамбля в проекте Бавыкна напоминает известный плакат Эль Лисицкого «Клином красным бей белых». Там острый красный треугольник врезается в белый круг; от главного отщепляются маленькие треугольнички и разлетаются, раня белый круг, как осколки. Здесь вместо красного клина – гигантская медная пластина-лезвие, прокалывающая металлическим пальцем светлый каменный куб, увенчанный, как короной, лесом тонких крестов.

Лезвие – служебный корпус музея, в котором расположены кабинеты сотрудников, учебные аудитории и кафе. В нем много окон, и все они наклонены вперед, встроены в косые линии медных пластин, подчеркивая «падающее» направление движения. Похоже на тевтонскую руку в металлической перчатке, на комиссарский маузер, на неразорвавшийся снаряд и на корабль, врезавшийся в белый каменный массив носом. Хотя прямых аллюзий тут нет, это собирательный образ современного-динамичного-энергичного. Как говорится в авторском описании проекта, форма медного корпуса символизирует «силы агрессии».

Но главный объем здесь второй, это прокалываемый агрессивным медным носом каменный куб. Архитекторы назвали его «Белым телом»; оно символизирует «Дух и Тело Польской республики». Это главное здание музея, в нем разместились все экспозиционные залы. Он похож на церковь (таким вполне могло бы быть здание современной церкви), на кладбище (из-за множества белых крестов), на готическую корону (как тут не вспомнить, что еще 200 лет назад отпрыски европейских монархий охотились за польской короной), и на крепостную башню – донжон средневекового замка.

Намеком на укрепление (или даже укрепрайон) служит приземистое отверстие входного портала; сходство усилено тем, что уровень земли перед входом в музей опущен, заглублен в ландшафт. Воображаемый посетитель, таким образом, вначале должен будет спуститься по открытой лестнице на протяженную площадь. Городские виды при этом скрываются за земляными склонами, и человек оказывается наедине с каменной стеной и единственным проемом – сверху угрожающе нависает медная консоль, та самая, проткнувшая каменное здание, и вход в музей оказывается (фигурально, разумеется) единственным укрытием.

Внутри музей тоже построен как крепость: экспозиционные залы нанизаны на квадратный колодец атриума, расположенного в центре. Пространство этого крытого двора – смысловой и, если можно так сказать, световой стержень здания: во внешних стенах окон нет (в музейном деле они только мешают), и вертикаль атриума становится местом сосредоточения рассеянного дневного света. Вертикализм пространства двора всячески усилен: посетитель, по замыслу архитекторов, должен попадать в атриум с углубления площади, а значит, его пол находится в минус-первом уровне. Верхушка атриума, ловя свет своим скошенным потолком, выступает над кровлей музейных залов (прямо как башня католической базилики или глава византийской церкви), прячась за каменной бахромой крестов. Таким образом внутри приземистого куба возникает вертикальное пространство, столб света, – символ надежды (материализованной в трех журавлиных силуэтах под потолком) и смысловой залог устойчивости «Белого тела».

Световая вертикаль внутри – вторая тема и второй вектор движения в ансамбле. Медная пластина врезается в каменный объект, но объект защищен, совершенно закрыт лишенными окон стен по периметру; его тело уверенно держит удар (впрочем, пришедшийся по касательной), стоит, даже не наклоняется. Как дом, в котором застрял неразорвавшийся снаряд. Глухой объем внешне не реагирует, он открыт в другую сторону и хранит в себе другое движение – по прямой непосредственно к небу (открытость обозначена не столько стеклом атриума, сколько прихотливой линией верха). Можно подумать, что в ответ на агрессию в каменной массе открылся портал вверх, и сделал камень совершенно неуязвимым. Получается похоже на заставку какой-то известной кинокомпании, где из земли бьют лучи света. Но тема вечная, в этой сверхъестественной устойчивости есть что-то от христианского праведника, святого Антония, терзаемого бесами, но совершенно не поддающегося; или от горящей свечи.

Световой стержень здания должен стать главным впечатлением для человека, вошедшего в музей – посетитель попадает в атриум практически сразу же. Если главное впечатление снаружи это столкновение двух масс, борьба гигантов и ненадежное укрытие для человечков в углублении перед входом – то как только мы попадаем внутрь, агрессия заканчивается. Укрепление надежное, светлое и какое-то даже радостное; как храм, а не как жуткое бомбоубежище.

Кроме стеклянного потолка атриума, смотрящего на небо, здесь есть еще одно окно, поменьше. Им заканчивается вторая медная консоль (маленький осколок, вышедший из белого объема с противоположной стороны), смотрящая в сторону старого Гданьска, и кстати на ту самую почту, с которой началась война. Вид на город становится второй позитивной эмоцией, не такой крупной и величественной, но зато и не такой абстрактной, как вид на небо вверху двора. Более земной и человеческой. Площадка с видом на Гданьск, зависшая в воздухе в каменной трубе над каналом, с другой стороны заканчивается открытым балконом, выходящим в атриум – так что две темы, вид на небо и вид на город, связаны между собой.

Это чистый, красивый и ювелирно-отточенный проект. Тема столкновения, начатая Бавыкиным в доме-арке на Можайском шоссе, развернулась здесь в полной мере, найдя подходящую тему и почву для размышлений. Но дело не только в очередном пластическом сюжете, нашедшем себе форму, хотя и это тоже важно. Здесь получился довольно-таки неожиданный образ войны. Про войну снято, слеплено, построено очень много, это ближайшая к нас глобальная трагедия. Уже давно выработан язык, привычный и узнаваемый, – его признаки есть и в этом проекте, к нему относится форма лезвия-снаряда, блиндажного входа; журавли под потолком, наконец. Но помимо этих знаков трагедии-надежды есть другое, вереница смыслов и подтекстов, формирующих образ укрытия, он же образ Польши. В проекте Алексея Бавыкина была поставлена и решена задача найти такой образ, сшить его из ряда исторических ассоциаций. Он получился, причем, как это нередко бывает у Бавыкина, этот образ балансирует на грани изобразительности, не пересекая ее. То есть ни одна из множества названных нами ассоциаций не перевешивает других, а они сливаются, образуя нечто новое. Это увлекательная, насыщенная сюжетно, ориентированная на глубокое изучение контекста, но не очень популярная сейчас архитектура; сейчас актуальны более абстрактные вещи, воздействующие напрямую и только на эмоции. Тем более для такой сложной и до сих пор ранящей материи, как война. Вырастающий из земли на пути снаряда светлый храм-замок хорош, но не вполне политкорректен.

Есть и еще одна особенность: это очень позитивный, оптимистический музей. В нем нет поглощающей жути, которой было много в других проектах про войну, в том числе и на этом конкурсе, и которая, конечно же, действительно хорошо отражает кошмар военных событий. Проект, победивший в конкурсе, превратил в музей ужасов войны весь нижний ярус, растекшийся по участку; еще есть среди конкурсантов (ничего не получивший) проект «Темный лес», состоящий из черных столбов, испускающих дым. Архитекторы как будто хотят усилить ужас как можно больше, напугать людей, чтобы они больше не смели. Это, может быть, и верно, воспитание дело такое, не напугаешь не проймешь. Проект Бавыкина противоположен идее пугания. Во-первых, можно сказать, что он фиксирует первый момент войны, первое попадание, что собственно и случилось в Гданьске. Во-вторых в нем главное не ужас, а спасение. Наверное, это важно.
Генплан
Генплан
Вид со стороны главного входа
Вид со стороны главного входа
Вид со стороны лодочного причала
Вид со стороны лодочного причала
Северо-восточный фасад (главный)
Северо-восточный фасад (главный)
Юго-восточный фасад
Юго-восточный фасад
Северо-западный фасад
Северо-западный фасад
Юго-западный фасад
Юго-западный фасад
Интерьер Журавлиного атриума
Интерьер Журавлиного атриума
Разрез 2-2
Разрез 2-2
Разрез 1-1
Разрез 1-1
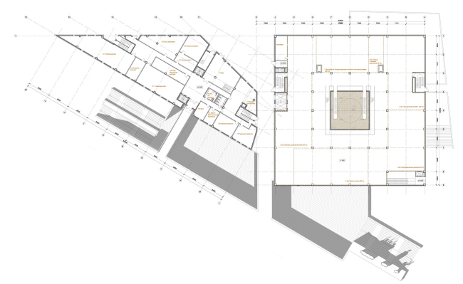
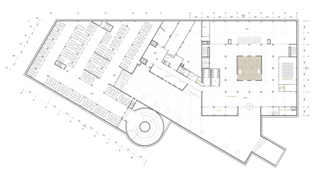
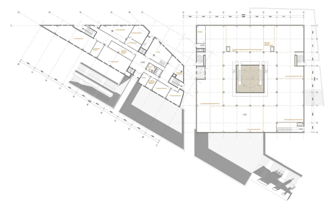
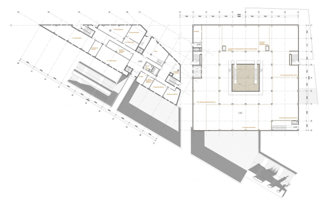
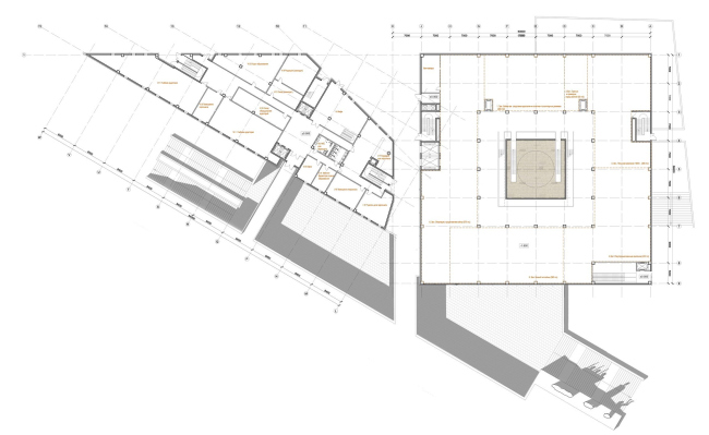
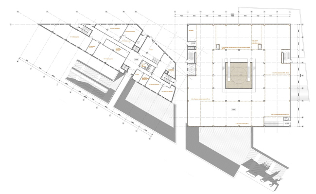
План на уровне второго этажа экспозиции
План на уровне второго этажа экспозиции
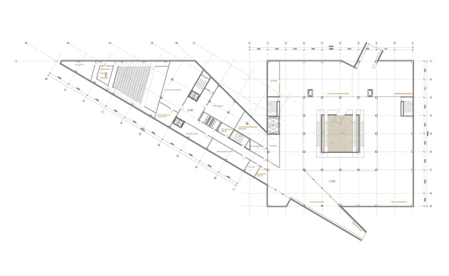
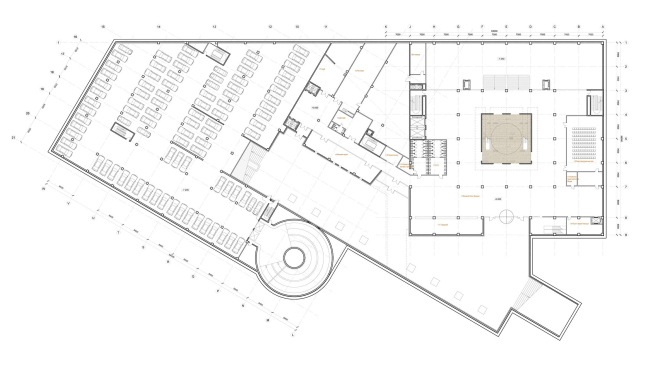
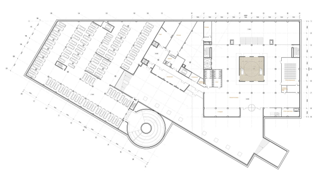
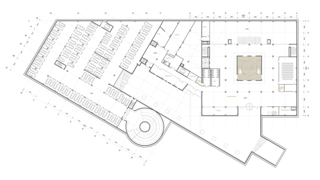
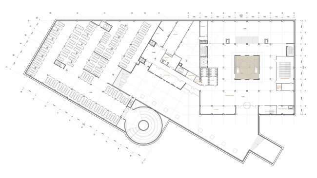
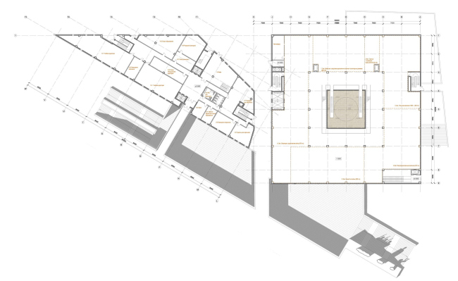
План на уровне первого этажа экспозиции
План на уровне первого этажа экспозиции
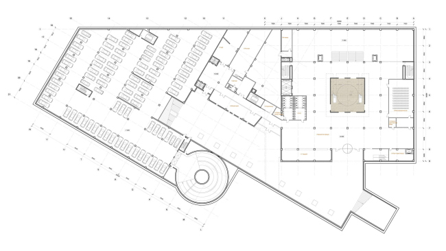
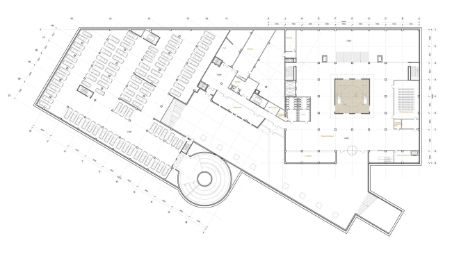
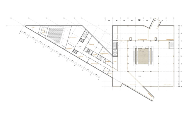
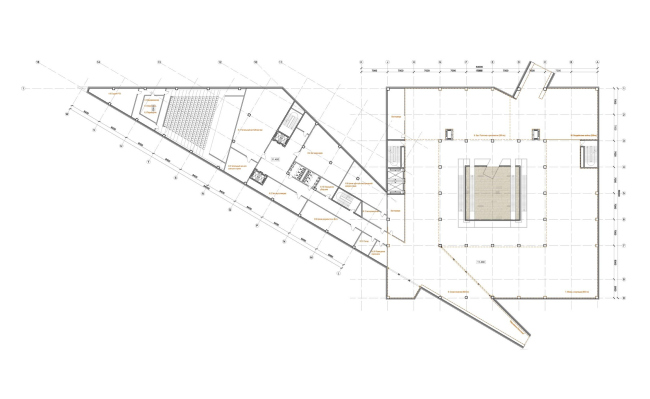
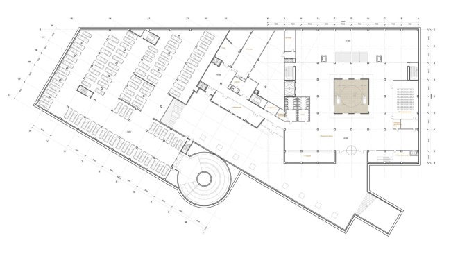
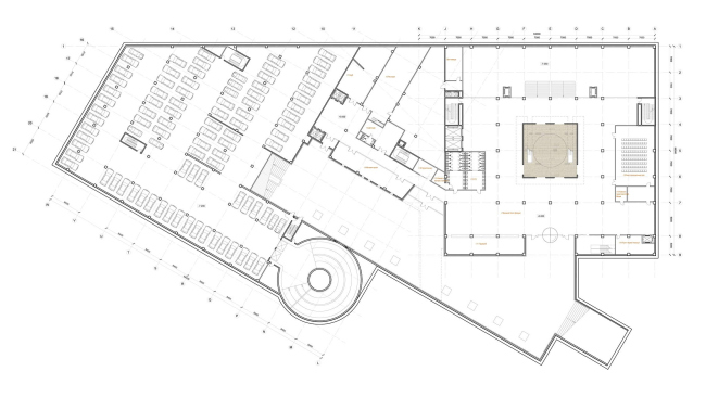
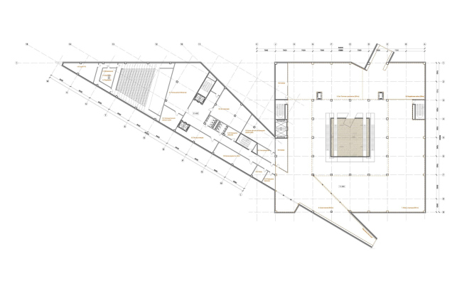
План на уровне главного входа
План на уровне главного входа