Размещено на портале Архи.ру (www.archi.ru)

28.06.2010

Курортная сборка

Анна Мартовицкая, Юлия Тарабарина
Объект:
Апартамент-отель в Зеленогорске
Адрес:
Россия, Санкт-Петербург. г. Зеленогорск, Приморское шоссе, д. 549 литер "А"
Мастерская:
Евгений Герасимов и партнеры
Авторский коллектив:
Е.Л. Герасимов, С.Д. Меркушева, К.В.Смирнов, С.И. Бурдонская, М.Я. Резниченко, А.А. Чепик

В одном из самых живописных и экологически благополучных пригородов Санкт-Петербурга – курортном Зеленогорске – мастерская «Евгений Герасимов и партнеры» закончила строительство нового апартамент-отеля. На зеленом склоне среди гигантских валунов архитекторы воздвигли динамичную композицию из геометрических объемов.

Апартамент-отель в Зеленогорске © Евгений Герасимов и партнеры
Апартамент-отель в Зеленогорске © Евгений Герасимов и партнеры
Зеленогорск – часть так называемого Курортного района Санкт-Петербурга, протянувшегося вдоль северного берега Финского залива на более чем 50 км. Песчаные пляжи вдоль побережья, хвойные леса и многочисленные живописные речки сделали эти места едва ли не самыми притягательными для строительства всевозможных пансионатов, домов отдыха и профилакториев. Активное освоение района началось еще в середине 1950-х годов, а сегодня он переживает новую волну застройки – морально и физически устаревшие сооружения советского периода сносятся ради реализации амбициозных девелоперских проектов. И если полвека назад в Зеленогорске возводились, в основном, санатории, то сегодня куда большим спросом пользуются отели и апартаменты. Заказ на объект именно такой типологии несколько лет назад получила архитектурная мастерская «Евгений Герасимов и партнеры» – апарт-отель предстояло построить на месте некогда одного из самых популярных ресторанов Зеленогорска «Олень». Построенный по проекту архитектора Сергея Евдокимова и ласково прозванный в народе «Олешкой», он был знаменит не столько своим меню, сколько эффектным модернистским зданием с широкими террасами и лихо закрученной винтовой лестницей, однако любовь публики не спасла ресторан от обветшания. К тому времени, когда у «Оленя» появился новый собственник, он уже находился в таком состоянии, что восстанавливать, строго говоря, было нечего.

Участок, предназначенный под размещение апартамент-отеля, фактически представляет собой сквер, с двух сторон ограниченный хвойным лесом, а еще с двух – дорогами (с юга Приморским шоссе, с востока – Кавалерийской улицей). По другую сторону шоссе, то есть ближе к морю, расположился Зеленогорский парк культуры и отдыха, а через улицу – церковь во имя Казанской иконы Богоматери. Само шоссе при этом проходит гораздо ниже сквера, поэтому вопросов, куда ориентировать большую часть номеров будущего отеля, у архитекторов не возникало – что может быть целебнее, чем вид на море, поблескивающее сквозь мохнатые еловые ветви. Не меньше способствует укреплению духа и вид на церковь – к белому многоглавому храму также обращено немало апартаментов.  

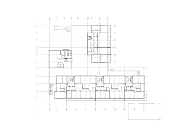
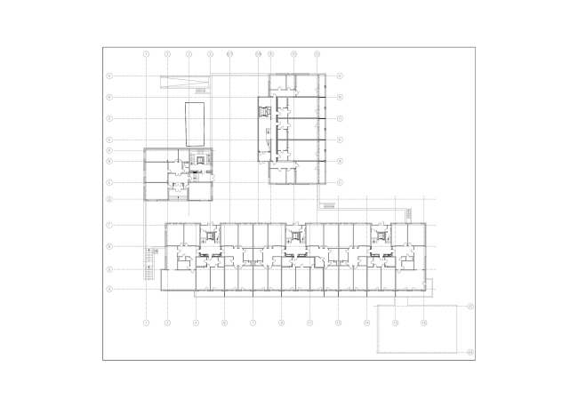
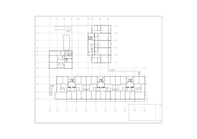
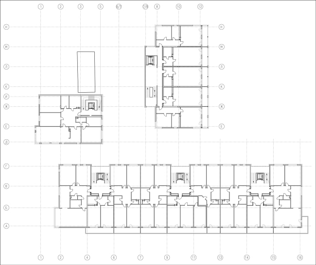
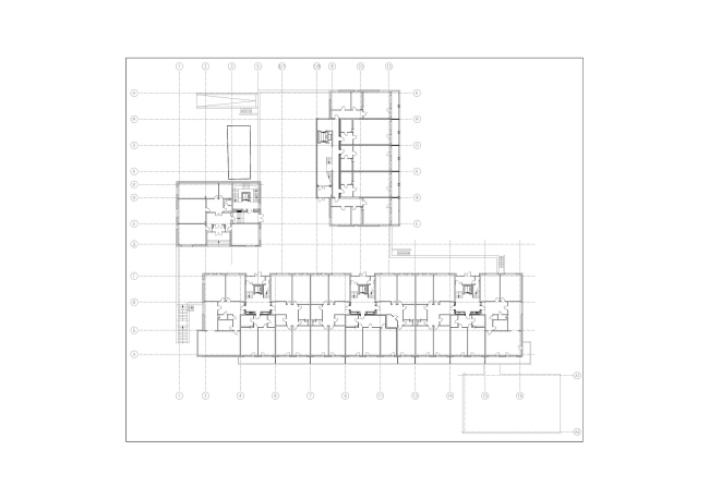
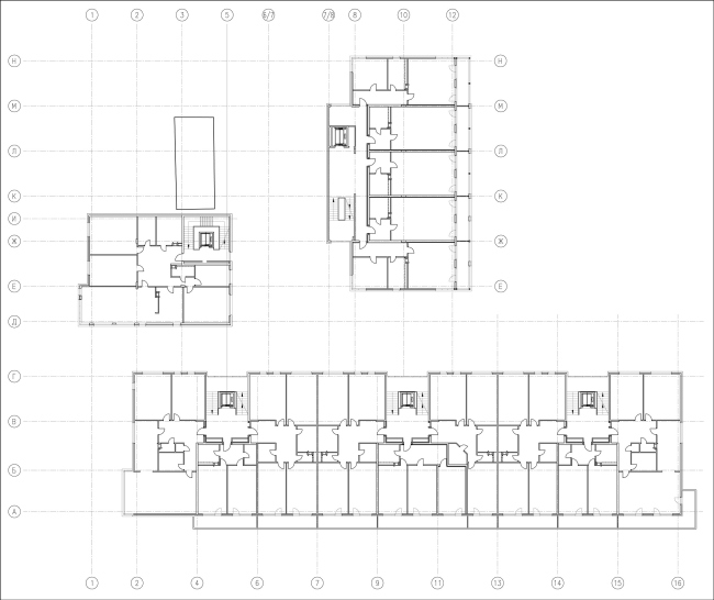
Отель состоит из трех корпусов, объединенных общим стилобатом, на кровле которого, на высоте двух метров над уровнем земли, устроен внутренний двор. Стилобат лаконичен и цеметно-сер – глядя со стороны можно было бы подумать, что он сохранился от прежнего здания; но это не так. Простота серого цвета образует в глазах сведущего наблюдателя смысловую связь нового здания с его предшественником; цоколь окружен широкими маршами открытых лестниц – именно они-то и создают ощущение сходства с «классическим» модернизмом 1970-х. Впрочем, если же не знать подробностей истории места, то стилобат и сам по себе смотрится уместно; с юго-запада к нему примыкает одноэтажный фитнес-центр, такой же каменно-серый и прорезанный пунктирами горизонтальных окон. Рядом с его объемом очень кстати примостилась горка северных валунов – спортивная пристройка кажется вырезанной из такого же камня .

Выше цоколя монохромности приходит конец: корпуса напоминают небольшой разноцветный городок и на первый взгляд даже непросто догадаться, что их именно три, а не шесть и не семь. Классическая трехчастная структура жилого дома замаскирована архитектурными средствами, или даже – раздроблена на части, визуально меньшие, чем они есть на самом деле. Этот эффект оказывается особенно сильным при взгляде на юго-восточный угол здания, откуда видны два соседних корпуса (длинный – №1 и самый маленький квадратный – №2). Солнечно-белый, угольно-черный, благородный терракотовый, серый (но уже не бетонный, а стеклянно-металлический) – контрастно оттеняют друг друга и не дают глазу заскучать ни на минуту. Все вместе как будто бы собрано из разнофактурных элементов, как объемная головоломка

Важно, что смена цветов и фактур не произвольна, а тщательно мотивирована. Возьмем главный корпус: строго говоря, это простой параллелепипед, вытянутый вдоль Приморского шоссе. Его стены – белые. Но перед главным, обращенным в сторону моря, фасадом возникает удивительно легкая и прозрачная прослойка лоджий, состоящая из стекла, металла, воздуха и простых, чистых линий аккуратной серой разгранки. Лоджии застеклены – широта северная; но стекло качественное, рамы тонкие, их почти не заметно; за стеклом видны белые стены. Справа над эфемерной прослойкой лоджий возвышается, частью врезаясь в нее, покрытое плотной медно-терракотовой кожей большое окно-«телевизор» (или «перископ»; прием, популярный сейчас в голландской архитектуре, да и не только в ней). Кажется, что коричневый объем положил на стеклянного соседа свою большую прямоугольную голову и что-то высматривает на горизонте Финского залива. С противоположной стороны, на восточном торце этого же длинного корпуса имеется еще один ризалит, небольшой, вертикальный и черный. Словом, каждый выступ фасада архитекторы используют как повод для игры со зрителем: угадайте-ка, что перед Вами, одно здание, а если несколько – то сколько именно? Впрочем, пластические средства умеренно-лаконичны, а использованные материалы достаточно качественны, чтобы фасады выглядели чистыми и легкими, вовсе не перегруженными игрой форм.

Надо заметить, что здесь Евгений Герасимов вновь проявил себя как архитектор, способный легко и свободно выступать в разных стилевых амплуа. Совсем недавно в профессиональной прессе обсуждался дом на площади Островского, построенный Герасимовым в самом центре Петербурга – пример тщательно исполненного (что в наше время редкость) архитектурного историзма. Здесь же, на берегу залива, мы обнаруживаем тонкий и качественный модернизм, оживленный остроумными стереометрическими комбинациями объемов, чередованиями фактур различных архитектурных «кож» и масштабного остекления. Все вместе позволило создать отель подчеркнуто актуальной архитектуры, европейской по духу (прежде всего приходят на ум похожие поиски голландцев). Эта архитектура, с одной стороны, отвечает всем современным стандартам, а с другой стороны – отдает дань уважения модернистскому прошлому места.
Апартамент-отель в Зеленогорске © Евгений Герасимов и партнеры
Апартамент-отель в Зеленогорске © Евгений Герасимов и партнеры
Апартамент-отель в Зеленогорске © Евгений Герасимов и партнеры
Апартамент-отель в Зеленогорске © Евгений Герасимов и партнеры
Апартамент-отель в Зеленогорске © Евгений Герасимов и партнеры
Апартамент-отель в Зеленогорске © Евгений Герасимов и партнеры
Апартамент-отель в Зеленогорске © Евгений Герасимов и партнеры
Апартамент-отель в Зеленогорске © Евгений Герасимов и партнеры
Апартамент-отель в Зеленогорске © Евгений Герасимов и партнеры
Апартамент-отель в Зеленогорске © Евгений Герасимов и партнеры
Апартамент-отель в Зеленогорске © Евгений Герасимов и партнеры
Апартамент-отель в Зеленогорске © Евгений Герасимов и партнеры
Апартамент-отель в Зеленогорске © Евгений Герасимов и партнеры
Апартамент-отель в Зеленогорске © Евгений Герасимов и партнеры
Апартамент-отель в Зеленогорске © Евгений Герасимов и партнеры
Апартамент-отель в Зеленогорске © Евгений Герасимов и партнеры
Апартамент-отель в Зеленогорске © Евгений Герасимов и партнеры
Апартамент-отель в Зеленогорске © Евгений Герасимов и партнеры
Апартамент-отель в Зеленогорске © Евгений Герасимов и партнеры
Апартамент-отель в Зеленогорске © Евгений Герасимов и партнеры
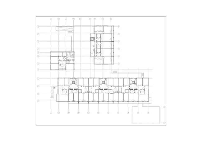
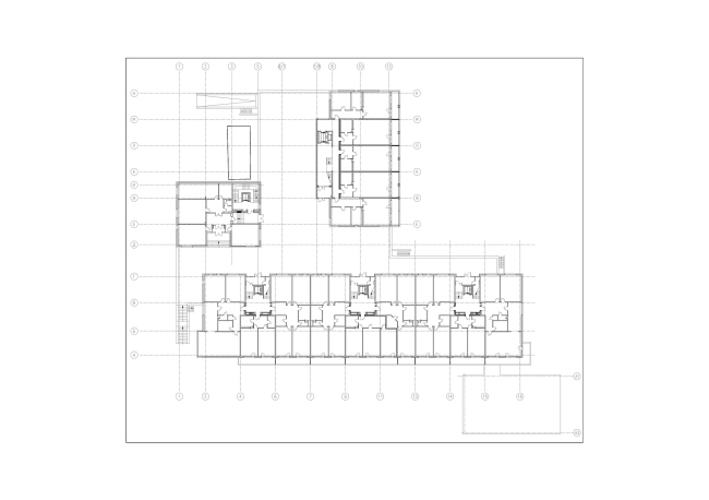
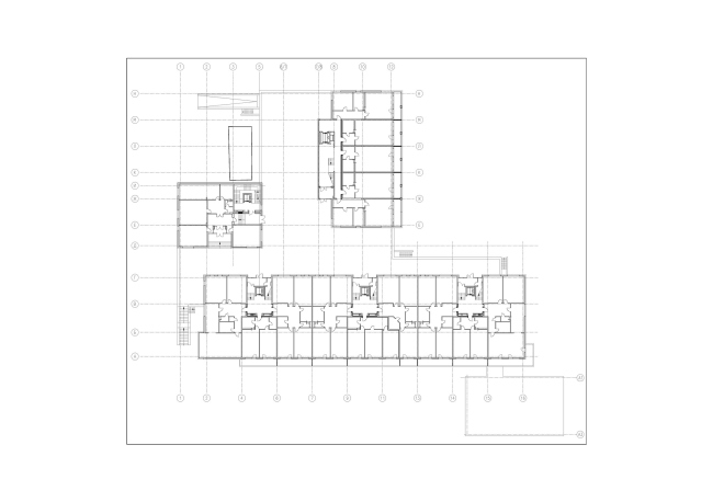
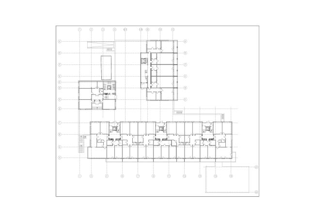
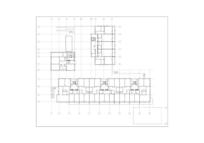
Генеральный план
Генеральный план
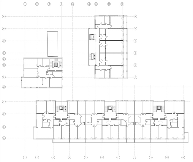
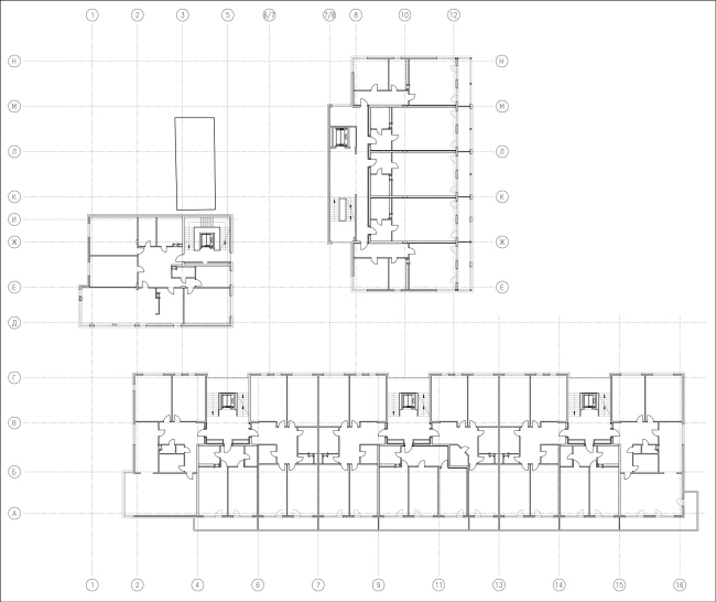
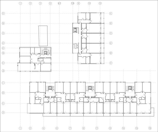
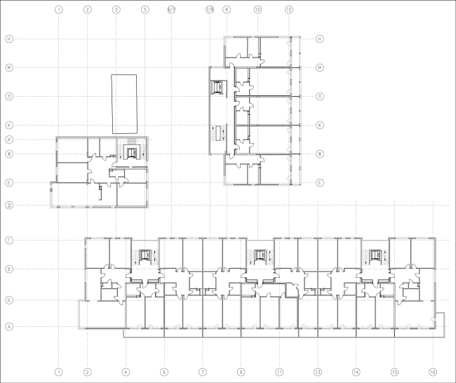
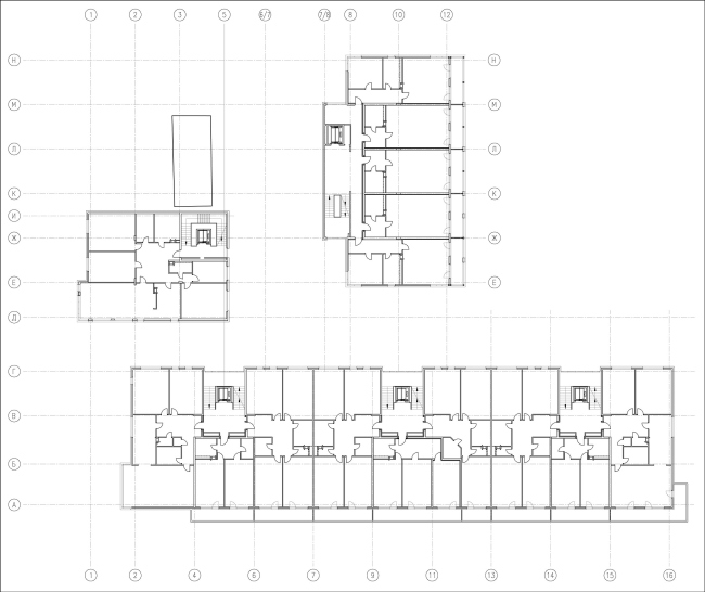
План первого этажа
План первого этажа
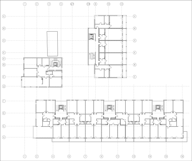
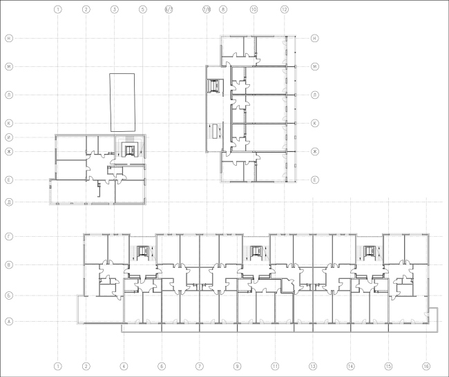
План второго этажа
План второго этажа