Размещено на портале Архи.ру (www.archi.ru)

13.07.2010

Палуба для «Титаника»

Анна Мартовицкая, Юлия Тарабарина
Объект:
Жилой комплекс с подземной автостоянкой по Морскому переулку в Сочи
Адрес:
Россия, Сочи.
Мастерская:
Алексей Бавыкин и партнёры
Авторский коллектив:
Архитекторы: Бавыкин А.Л., Марек М.М., Усачева А.А., Збарская Н.Л. Конструкторы: Кабанов К.О., Федоров М.В., Седов Р.С.

Вслед за высотным «Титаником» мастерская «Алексей Бавыкин и партнеры» спроектировала на Альпийской улице города Сочи малоэтажный жилой комплекс галерейного типа.

Жилой комплекс с подземной автостоянкой по Морскому переулку в Сочи © Алексей Бавыкин и партнёры
Жилой комплекс с подземной автостоянкой по Морскому переулку в Сочи © Алексей Бавыкин и партнёры
Невысокий протяженный дом – вторая очередь башни «Титаника», о котором мы писали три года назад и строительство которого уже закончено. Напомним, обтекаемый силуэт 24-этажного жилого дома отчетливо напоминает нос океанского (судя по размерам) лайнера – во всяком случае, эффект оно производит примерно такой же, как и настоящий лайнер, показавшийся с туристами на борту где-нибудь в Венеции в районе Джардини. Впрочем, в отличие от корабля дом облицован панелями цвета окрестных гор и наследует градостроительной доминанте, заложенной в градплане Сочи еще в 1970-е годы, а значит, занимает свое, правильное место: замыкает (если смотреть от пляжа на горы) перспективу Морского переулка. А Морской переулок – это только звучит несолидно «переулок», на самом деле это ось, на которую нанизана главная площадь города, оформленная Алабяном и Жолтовским – небольшой прямоугольник, где Сочи выглядит регулярно и даже классически; как город, а не как нагромождение санаториев. Надо признать, что «нос Титаника» органично вписался в пейзаж этой площади, с извечным памятником Ленину посередине.

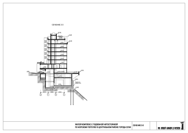
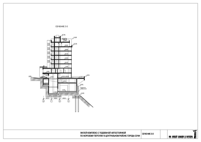
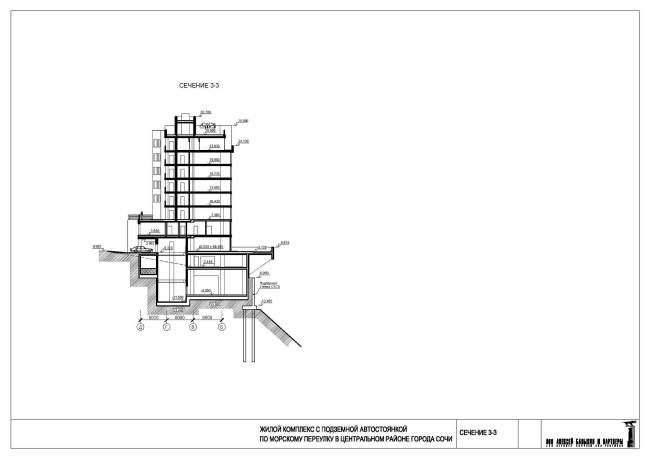
Галерейный дом второй очереди поставлен за спиной «Титаника» и будет служить ему фоном; хотя здания разделены узкой Кубанской улицей и небольшим сквером, этот разрыв издалека будет совершенно незаметен. План нового дома – отчасти вынужденный: архитекторам досталась уже готовая стена в грунте, возведенная для другого объекта, в параметры которой было необходимо вписаться. Дом спроектировали вдоль этой стены и вдоль дороги (Альпийской улицы), которая в этом месте изгибается, что и предопределило его слегка вогнутую линию. Перепад высот здесь большой – фактически, два нижних яруса с парковкой вкопаны в горный склон, и со стороны моря будет видна стена этого цоколя с глубоко вынесенной консолью, висящей в воздухе террасой. Над парковкой расположены офисы (их окна обращены в сторону гор), выше – пять этажей квартир (однокомнатных студий), и на верхнем ярусе двухуровневые пентхаусы с большими террасами.

Дом получился похожим на раскрытый альбом, немного асимметричный – два крыла, одно длиннее другого, соединяются под широким углом, образуя характерную «южную» композицию здания, обращенного к морю всеми окнами главного фасада. Этот «морской» фасад целиком состоят из больших французских окон «в пол»: чтобы не упустить ни малейшего кусочка главной ценности – вида на море. Если же посмотреть издали, то видно, что тонкие металлические переплеты окон уложены в рамки крупных белых клеток, где горизонтали это междуэтажные перекрытия, а вертикали – стены, разделяющие квартиры между собой. Поверх асимметрично разбросаны небольшие металлические балкончики «одинокого курильщика», излюбленный мотив Алексея Бавыкина (такие балкончики встречаются почти во всех его домах). В сумме получается сетчатый рисунок – как будто бы дом смотрит на море через тонкую кружевную вуаль.

Обращенный к горам и Альпийской улице тыльный фасад покрыт рядами длинных балконов – галерей, с которых жильцы будут попадать в свои квартиры. Отсюда название типологии – «галерейный»; такая планировка она часто встречается в приморских отелях. Квартиры состоят из одной комнаты, вытянутой между входом (со стороны балкона, при входе расположена ванная) и большим окном с видом на море – как огромные ложи для наблюдения за пейзажем. «Небольшие» комнаты, правда, не так уж малы, по 60 метров каждая, и это, в частности, отличает элитный дом от курортной гостиницы.

Итак, морской фасад заполнен сеткой окон, а противоположный – лоджиями; это делает дом прозрачным и воздушным. Для более плотной материи остается немного места: одна торцевая стена и два лестничных блока. Лестницы и лифты помещены в овальные объемы – так и хочется назвать их, по аналогии со средневековой архитектурой, «лестничными башнями». Или по аналогии с лайнером – корабельными трубами. Одна из таких башен расположена на юго-восточном торце дома (и размещена так, чтобы оставить место для пожарного подъезда и площадку для разворота), другая – примыкает к тыльному «балконному» фасаду. Объемы лестниц также отвечают за сходство нового дома с «Титаником» – они будут облицованы точно такими же панелями с плавным «пиксельным» переходом от песчаного до серебристого цвета, высветляя объемы кверху и уподобляя их окрестным горам.

В остальном же новый дом не столько похож на свою «пару», сколько контрастно оттеняет его: «Титаник» – высокая башня, форма которой наводит на мысли об аэродинамике, а его «галерейный» сосед горизонтально распластан. Башня материальна и выглядит выточенной из камня; в новом доме акцент сделан на окнах и лоджиях. Впрочем, контраст идет ансамблю на пользу, да и служит развитию сюжета: если башня выступает корабельным носом, то второй дом похож на палубу того же самого корабля.
Жилой комплекс с подземной автостоянкой по Морскому переулку в Сочи © Алексей Бавыкин и партнёры
Жилой комплекс с подземной автостоянкой по Морскому переулку в Сочи © Алексей Бавыкин и партнёры
Жилой комплекс с подземной автостоянкой по Морскому переулку в Сочи © Алексей Бавыкин и партнёры
Жилой комплекс с подземной автостоянкой по Морскому переулку в Сочи © Алексей Бавыкин и партнёры
Жилой комплекс с подземной автостоянкой по Морскому переулку в Сочи © Алексей Бавыкин и партнёры
Жилой комплекс с подземной автостоянкой по Морскому переулку в Сочи © Алексей Бавыкин и партнёры
Жилой комплекс с подземной автостоянкой по Морскому переулку в Сочи © Алексей Бавыкин и партнёры
Жилой комплекс с подземной автостоянкой по Морскому переулку в Сочи © Алексей Бавыкин и партнёры
Генеральный план
Генеральный план
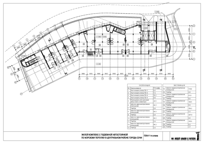
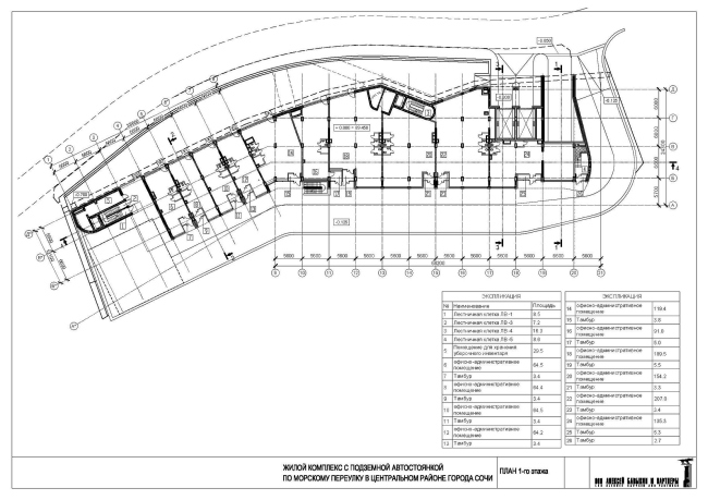
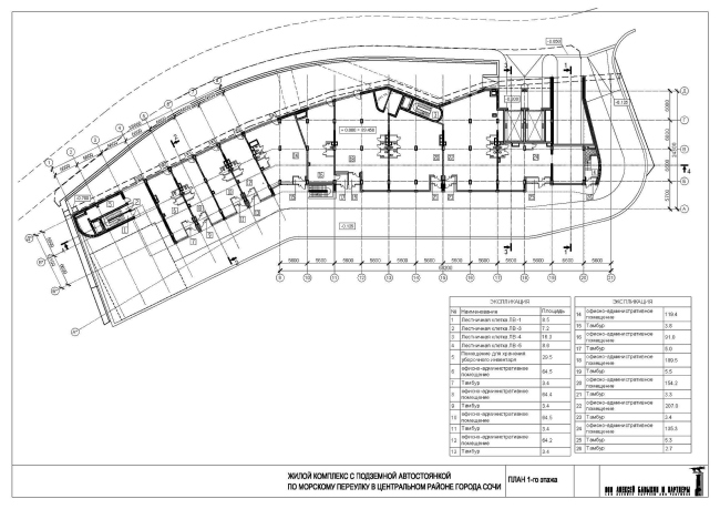
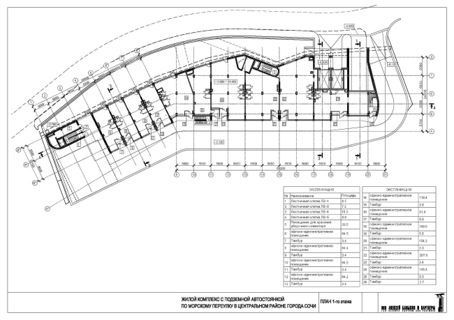
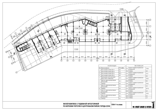
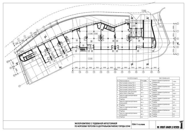
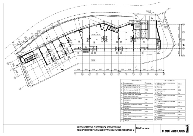
План первого этажа
План первого этажа
План типового этажа
План типового этажа
Жилой комплекс с подземной автостоянкой по Морскому переулку в Сочи © Алексей Бавыкин и партнёры
Жилой комплекс с подземной автостоянкой по Морскому переулку в Сочи © Алексей Бавыкин и партнёры
Жилой комплекс с подземной автостоянкой по Морскому переулку в Сочи © Алексей Бавыкин и партнёры
Жилой комплекс с подземной автостоянкой по Морскому переулку в Сочи © Алексей Бавыкин и партнёры